Информационная система
«Ёшкин Кот»

Скачать базу одним архивом
Скачать обновления
История создания базы
Карта сайта

Скачать Серия 1.865-6 Выпуск 1. Плиты длиной до 3-х м с асбестоцементной нижней обшивкой для покрытий с кровлей из асбестоцементных волнистых листов и для подвесных потолков. Рабочие чертежи

Дата актуализации: 10.08.2017

Серия 1.865-6

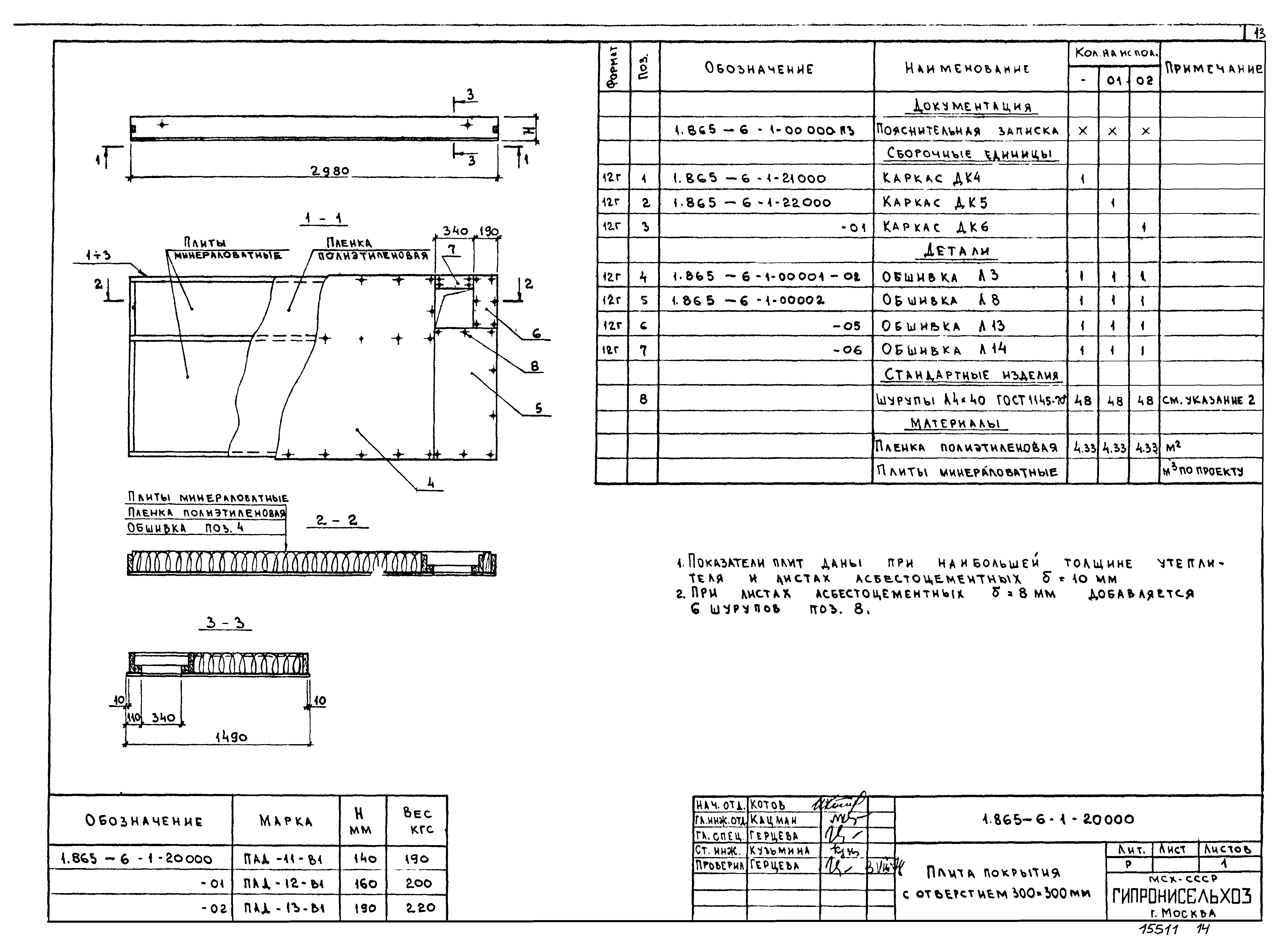
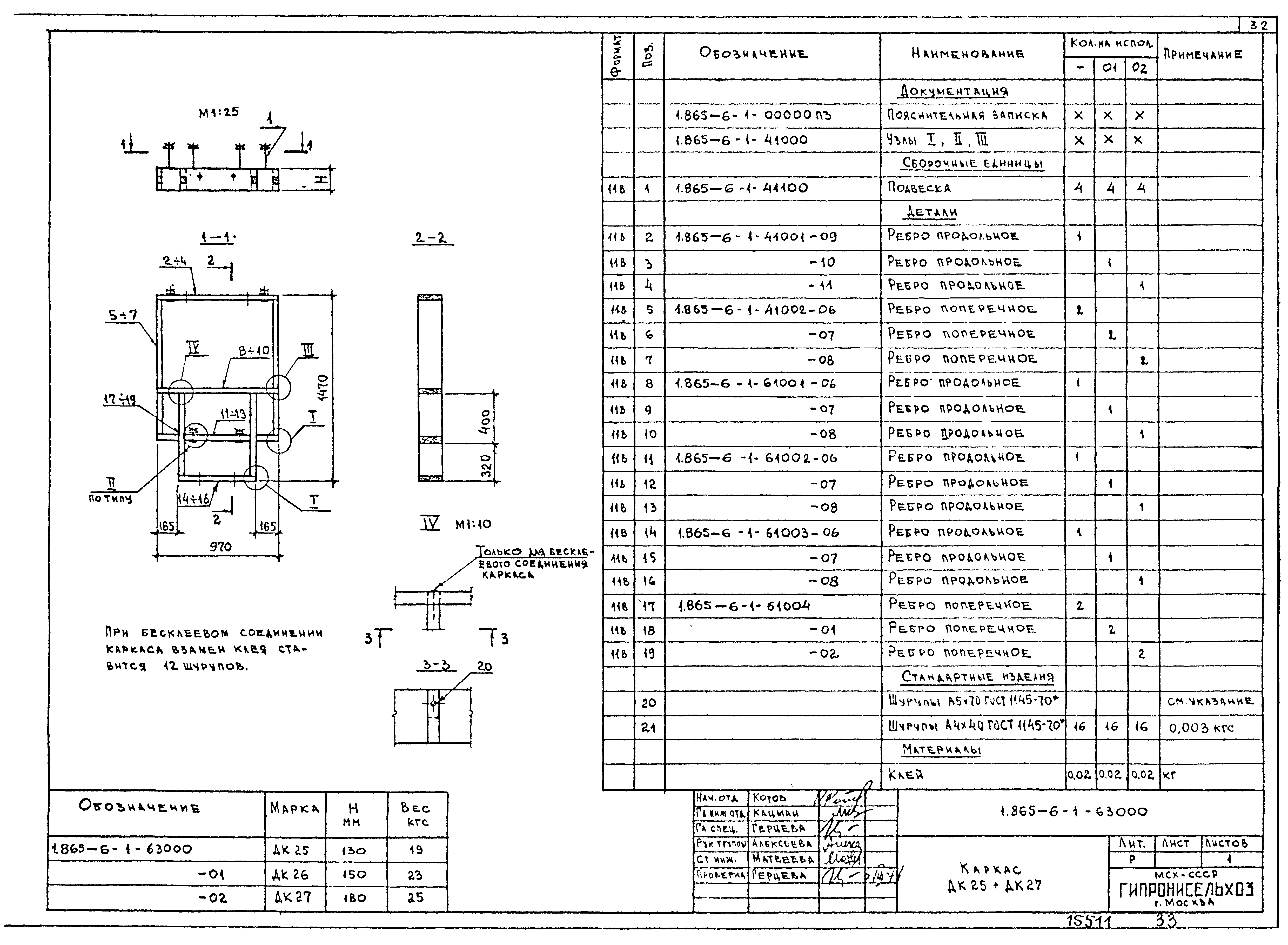
Выпуск 1. Плиты длиной до 3-х м с асбестоцементной нижней обшивкой для покрытий с кровлей из асбестоцементных волнистых листов и для подвесных потолков. Рабочие чертежи

Обозначение: Серия 1.865-6
Обозначение англ: Series 1.865-6
Статус:не действует
Название рус.:Выпуск 1. Плиты длиной до 3-х м с асбестоцементной нижней обшивкой для покрытий с кровлей из асбестоцементных волнистых листов и для подвесных потолков. Рабочие чертежи
Дата добавления в базу:01.09.2013
Дата актуализации:05.05.2017
Дата введения:01.10.1978
Дата окончания срока действия:01.02.1989
Разработан: ЦНИИСК им. В.А. Кучеренко
ЦНИИЭПсельстрой
ГипроНИсельхоз (Институт Гипронисельхоз )
Утверждён:27.04.1978 Госстрой СССР (Государственный комитет Совета Министров СССР по делам строительства) (USSR Gosstroy 2/3-185)
Расположен в:Техническая документация Строительство Справочные документы Типовые строительные конструкции, изделия и узлы Общероссийский строительный каталог Строительные конструкции, изделия и узлы зданий и сооружений для всех видов строительства Конструкции, изделия и узлы зданий Ограждающие конструкции Покрытия Панели из профилированного листа, плиты и кровля из других материалов
Чем заменён:
Серия 1.865-6Серия 1.865-6Серия 1.865-6Серия 1.865-6Серия 1.865-6Серия 1.865-6Серия 1.865-6Серия 1.865-6Серия 1.865-6Серия 1.865-6Серия 1.865-6Серия 1.865-6Серия 1.865-6Серия 1.865-6Серия 1.865-6Серия 1.865-6Серия 1.865-6Серия 1.865-6Серия 1.865-6Серия 1.865-6Серия 1.865-6Серия 1.865-6Серия 1.865-6Серия 1.865-6Серия 1.865-6Серия 1.865-6Серия 1.865-6Серия 1.865-6Серия 1.865-6Серия 1.865-6Серия 1.865-6Серия 1.865-6Серия 1.865-6Серия 1.865-6Серия 1.865-6

© 2013 Ёшкин Кот :-) Карта сайта