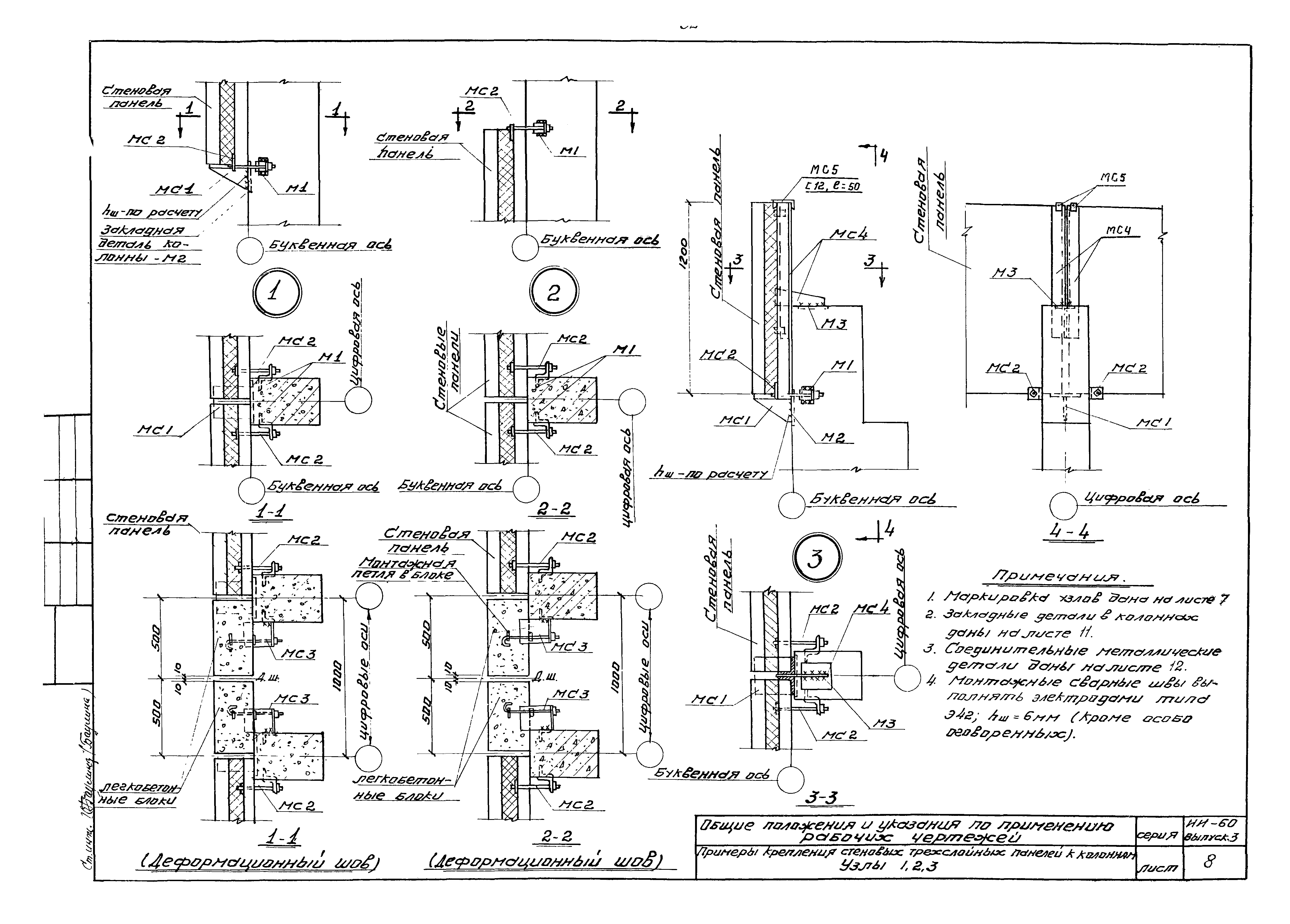
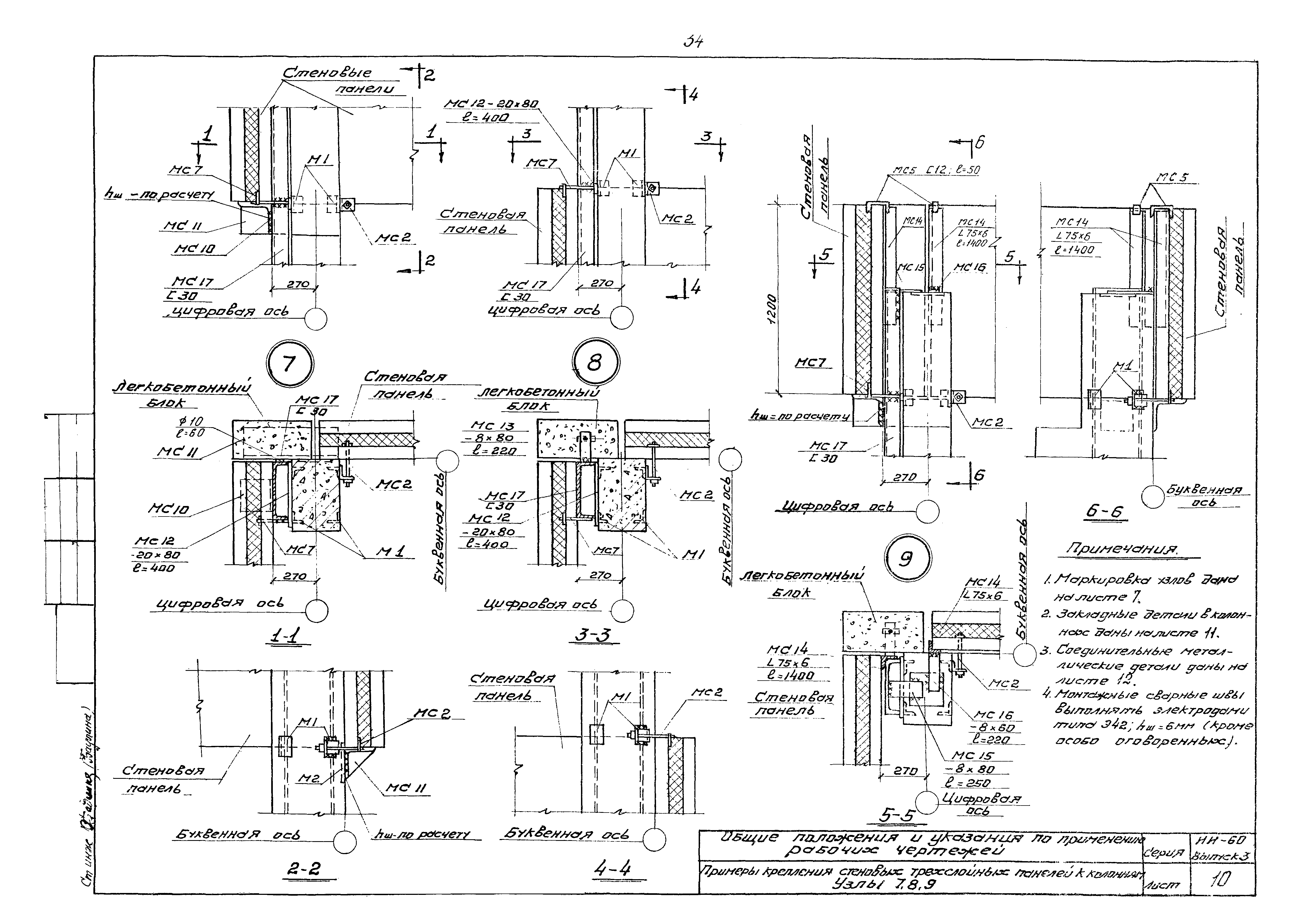
Скачать Серия ИИ-60 Выпуск 3. Общие положения и указания по применению рабочих чертежейДата актуализации: 10.08.2017 Серия ИИ-60
Выпуск 3. Общие положения и указания по применению рабочих чертежей| Обозначение: | Серия ИИ-60 | | Обозначение англ: | Series ИИ-60 | | Статус: | не действует | | Название рус.: | Выпуск 3. Общие положения и указания по применению рабочих чертежей | | Дата добавления в базу: | 01.09.2013 | | Дата актуализации: | 05.05.2017 | | Разработан: | ГСПИ-10 Гипротис Гипромолпром Минмясомолпрома СССР НИИЖБ АСиА СССР
| | Утверждён: | 14.12.1962 Госстрой СССР (Государственный комитет Совета Министров СССР по делам строительства) (USSR Gosstroy 466)
| | Расположен в: |
|
                                    
|