Информационная система
«Ёшкин Кот»

Скачать базу одним архивом
Скачать обновления
История создания базы
Карта сайта

Скачать Серия 3.900-2 Выпуск 2. Панели стеновые высотой 1200 - 6000 мм (градация через 600 мм) и панели перегородчатые высотой 3600, 4200 и 4800 мм для прямоугольных сооружений. Рабочие чертежи

Дата актуализации: 10.08.2017

Серия 3.900-2

Выпуск 2. Панели стеновые высотой 1200 - 6000 мм (градация через 600 мм) и панели перегородчатые высотой 3600, 4200 и 4800 мм для прямоугольных сооружений. Рабочие чертежи

Обозначение: Серия 3.900-2
Обозначение англ: Series 3.900-2
Статус:заменен
Название рус.:Выпуск 2. Панели стеновые высотой 1200 - 6000 мм (градация через 600 мм) и панели перегородчатые высотой 3600, 4200 и 4800 мм для прямоугольных сооружений. Рабочие чертежи
Дата добавления в базу:01.09.2013
Дата актуализации:05.05.2017
Дата введения:01.10.1978
Оглавление:Содержание
Пояснительная записка
Контрольные нагрузки и схемы испытания консольных панелей
Контрольные нагрузки и схемы испытания блочных панелей
Номенклатура изделий
Панели ПК1-12-1, ПК1-12-2. Опалубочный чертеж и показатели
Панели ПК1-12-1, ПК1-12-2. Армирование. Спецификация арматурных изделий
Панели ПК1-18-1, ПК1-18-2. Опалубочный чертеж и показатели
Панели ПК1-18-1, ПК1-18-2. Армирование. Спецификация арматурных изделий. Детали
Панели ПК1-18-1, ПК1-18-2. Детали
Панели ПК1-24-1, ПК1-24-2. Опалубочный чертеж и показатели
Панели ПК1-24-1, ПК1-24-2. Армирование. Спецификация арматурных изделий. Детали
Панели ПК1-24-1, ПК1-24-2. Детали
Панели ПК1-30-1, ПК1-30-2. Опалубочный чертеж и показатели
Панели ПК1-30-1, ПК1-30-2. Армирование. Спецификация арматурных изделий. Детали
Панели ПК1-30-1, ПК1-30-2. Детали
Панели ПК1-36-1, ПК1-36-2. Опалубочный чертеж и показатели
Панели ПК1-36-1, ПК1-36-2. Армирование. Спецификация арматурных изделий. Детали
Панели ПК1-36-1, ПК1-36-2. Детали
Панели ПК1-42-1, ПК1-42-2. Опалубочный чертеж и показатели
Панели ПК1-42-1, ПК1-42-2. Армирование. Спецификация арматурных изделий. Детали
Панели ПК1-42-1, ПК1-42-2. Детали
Панели ПК1-48-1, ПК1-48-2. Опалубочный чертеж и показатели
Панели ПК1-48-1, ПК1-48-2. Армирование. Спецификация арматурных изделий. Детали
Панели ПК1-48-1, ПК1-48-2. Детали
Панели ПК1-54-1, ПК1-54-2. Опалубочный чертеж и показатели
Панели ПК1-54-1, ПК1-54-2. Армирование. Спецификация арматурных изделий. Детали
Панели ПК1-54-1, ПК1-54-2. Детали
Панели ПБ1-24-1, ПБ1-24-2. Опалубочный чертеж и показатели
Панели ПБ1-24-1, ПБ1-24-2. Армирование. Спецификация арматурных изделий
Панели ПБ2-24-1, ПБ2-24-2. Опалубочный чертеж и показатели
Панели ПБ2-24-1, ПБ2-24-2. Армирование. Спецификация арматурных изделий
Панели ПБ1-30-1, ПБ1-30-2. Опалубочный чертеж и показатели
Панели ПБ1-30-1, ПБ1-30-2. Армирование. Спецификация арматурных изделий
Панели ПБ2-30-1, ПБ2-30-2. Опалубочный чертеж и показатели
Панели ПБ2-30-1, ПБ2-30-2. Армирование. Спецификация арматурных изделий
Панели ПБ1-36-1, ПБ1-36-2, ПБ1-36-3. Опалубочный чертеж и показатели
Панели ПБ1-36-1, ПБ1-36-2, ПБ1-36-3. Армирование. Спецификация арматурных изделий
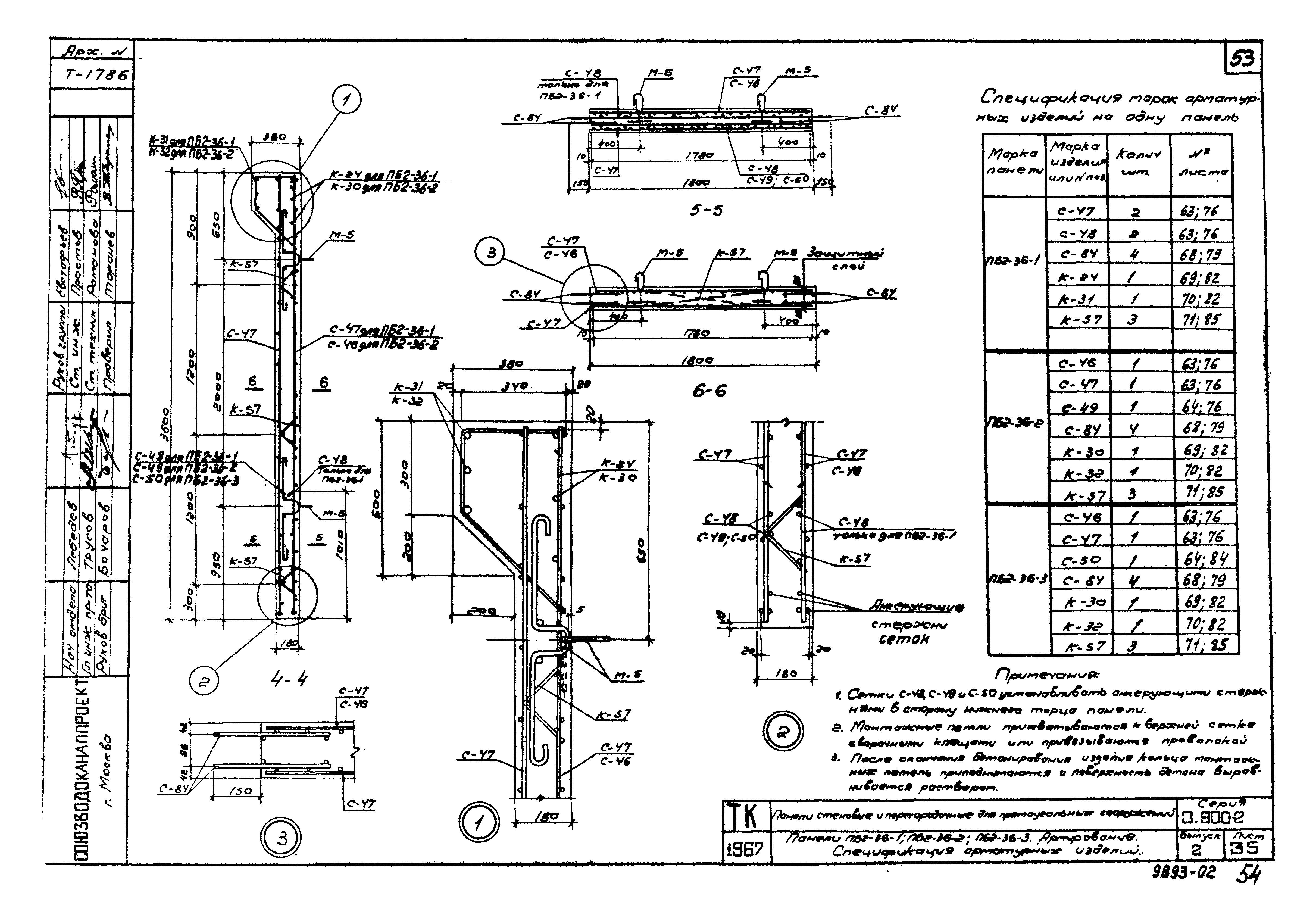
Панели ПБ2-36-1, ПБ2-36-2, ПБ2-36-3. Опалубочный чертеж и показатели
Панели ПБ2-36-1, ПБ2-36-2, ПБ2-36-3. Армирование. Спецификация арматурных изделий
Панели ПБ1-42-1, ПБ1-42-2. Опалубочный чертеж и показатели
Панели ПБ1-42-1, ПБ1-42-2. Армирование. Спецификация арматурных изделий
Панели ПБ2-42-1, ПБ2-42-2. Опалубочный чертеж и показатели
Панели ПБ2-42-1, ПБ2-42-2. Армирование. Спецификация арматурных изделий
Панели ПБ1-48-1, ПБ1-48-2, ПБ1-48-3. Опалубочный чертеж и показатели
Панели ПБ1-48-1, ПБ1-48-2, ПБ1-48-3. Армирование. Спецификация арматурных изделий
Панели ПБ2-48-1, ПБ2-48-3. Опалубочный чертеж и показатели
Панели ПБ2-48-1, ПБ2-48-3. Армирование. Спецификация арматурных изделий
Панели ПБ1-54-1, ПБ1-54-2. Опалубочный чертеж и показатели
Панели ПБ1-54-1, ПБ1-54-2. Армирование. Спецификация арматурных изделий
Панели ПБ2-54-1, ПБ2-54-2. Опалубочный чертеж и показатели
Панели ПБ2-54-1, ПБ2-54-2. Армирование. Спецификация арматурных изделий
Панели ПБ1-60-1, ПБ1-60-2. Опалубочный чертеж и показатели
Панели ПБ1-60-1, ПБ1-60-2. Армирование. Спецификация арматурных изделий
Панели ПБ2-60-1, ПБ2-60-2. Опалубочный чертеж и показатели
Панели ПБ2-60-1, ПБ2-60-2. Армирование. Спецификация арматурных изделий
Панель ПП1-36-1. Опалубочный чертеж и показатели
Панель ПП1-36-1. Армирование. Спецификация арматурных изделий
Панель ПП1-42-1. Опалубочный чертеж и показатели
Панель ПП1-42-1. Армирование. Спецификация арматурных изделий
Панель ПП1-48-1. Опалубочный чертеж и показатели
Панель ПП1-48-1. Армирование. Спецификация арматурных изделий
Сварные сетки с С-1 по С-7
Сварные сетки с С-8 по С-12
Сварные сетки с С-13 по С-18
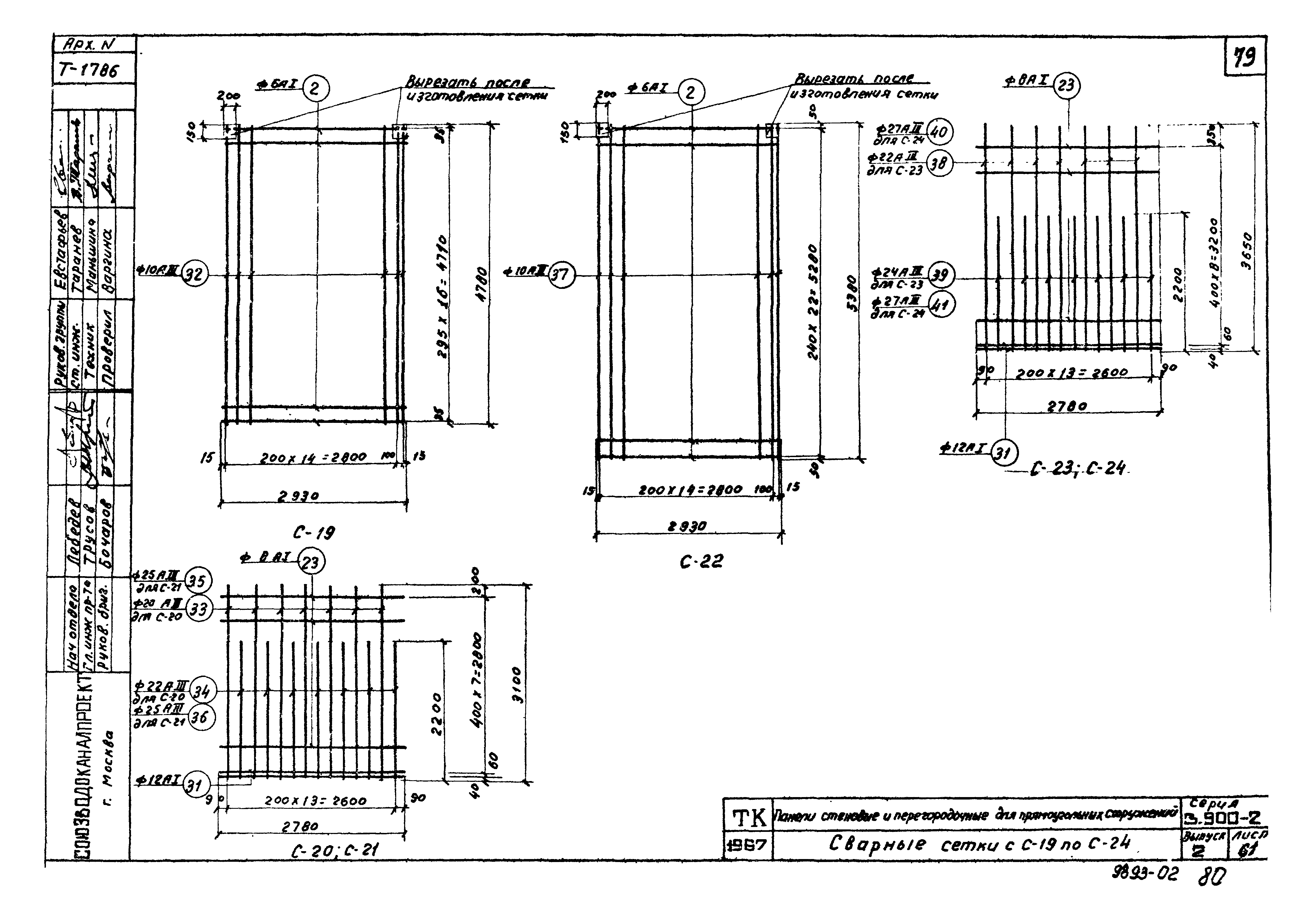
Сварные сетки с С-19 по С-24
Сварные сетки с С-25 по С-34, 54, 58
Сварные сетки с С-35 по С-47, 61
Сварные сетки с С-48 по С-53, с С-55 по С-57, 59, 60, 62, 65, 66
Сварные сетки С-63, 64, с 67 по 70
Сварные сетки с С-71 по С-75
Сварные сетки с С-76 по С-79
Сварные сетки с С-80 по С-84
Сварные каркасы с К-1 по К-14, 17, 18, 21, 24, 27, 30, 33, 35, 37, 38, 42, 51
Сварные каркасы К-15, 16, 19, 20, 22, 23, 25, 26, 28, 29, 31, 32, 36, 39, 40, 41, с 43 по 50, 52, 53, 34
Сварные каркасы с К-54 по К-58
Спецификация и выборка стали на одно арматурное изделие. Сетки с С-1 по С-11
Спецификация и выборка стали на одно арматурное изделие. Сетки с С-12 по С-20
Спецификация и выборка стали на одно арматурное изделие. Сетки с С-21 по С-30
Спецификация и выборка стали на одно арматурное изделие. Сетки с С-31 по С-41
Спецификация и выборка стали на одно арматурное изделие. Сетки с С-42 по С-53
Спецификация и выборка стали на одно арматурное изделие. Сетки с С-54 по С-64
Спецификация и выборка стали на одно арматурное изделие. Сетки с С-65 по С-75
Спецификация и выборка стали на одно арматурное изделие. Сетки с С-76 по С-84
Спецификация и выборка стали на одно арматурное изделие. Каркасы с К-1 по К-11
Спецификация и выборка стали на одно арматурное изделие. Каркасы с К-12 по К-22
Спецификация и выборка стали на одно арматурное изделие. Каркасы с К-23 по К-32
Спецификация и выборка стали на одно арматурное изделие. Каркасы с К-33 по К-42
Спецификация и выборка стали на одно арматурное изделие. Каркасы с К-43 по К-51
Спецификация и выборка стали на одно арматурное изделие. Каркасы с К-52 по К-58 и отдельные стержни
Закладные детали с М-1 по М-14
Спецификация и выборка стали на одну закладную деталь. Марки с М-1 по М-14
Вариант закладных деталей с М-1 по М-14
Разработан: Союзводоканалпроект
ЦНИИпромзданий
НИИЖБ
Утверждён:09.07.1968 Госстрой СССР (Государственный комитет Совета Министров СССР по делам строительства) (USSR Gosstroy 61)
Расположен в:Техническая документация Строительство Справочные документы Типовые строительные конструкции, изделия и узлы Общероссийский строительный каталог Строительные конструкции, изделия и узлы зданий и сооружений для всех видов строительства Конструкции и изделия сооружений и оборудования зданий Подземные сооружения Емкостные сооружения
Чем заменён:
Серия 3.900-2Серия 3.900-2Серия 3.900-2Серия 3.900-2Серия 3.900-2Серия 3.900-2Серия 3.900-2Серия 3.900-2Серия 3.900-2Серия 3.900-2Серия 3.900-2Серия 3.900-2Серия 3.900-2Серия 3.900-2Серия 3.900-2Серия 3.900-2Серия 3.900-2Серия 3.900-2Серия 3.900-2Серия 3.900-2Серия 3.900-2Серия 3.900-2Серия 3.900-2Серия 3.900-2Серия 3.900-2Серия 3.900-2Серия 3.900-2Серия 3.900-2Серия 3.900-2Серия 3.900-2Серия 3.900-2Серия 3.900-2Серия 3.900-2Серия 3.900-2Серия 3.900-2Серия 3.900-2Серия 3.900-2Серия 3.900-2Серия 3.900-2Серия 3.900-2Серия 3.900-2Серия 3.900-2Серия 3.900-2Серия 3.900-2Серия 3.900-2Серия 3.900-2Серия 3.900-2Серия 3.900-2Серия 3.900-2Серия 3.900-2Серия 3.900-2Серия 3.900-2Серия 3.900-2Серия 3.900-2Серия 3.900-2Серия 3.900-2Серия 3.900-2Серия 3.900-2Серия 3.900-2Серия 3.900-2Серия 3.900-2Серия 3.900-2Серия 3.900-2Серия 3.900-2Серия 3.900-2Серия 3.900-2Серия 3.900-2Серия 3.900-2Серия 3.900-2Серия 3.900-2Серия 3.900-2Серия 3.900-2Серия 3.900-2Серия 3.900-2Серия 3.900-2Серия 3.900-2Серия 3.900-2Серия 3.900-2Серия 3.900-2Серия 3.900-2Серия 3.900-2Серия 3.900-2Серия 3.900-2Серия 3.900-2Серия 3.900-2Серия 3.900-2Серия 3.900-2Серия 3.900-2Серия 3.900-2Серия 3.900-2Серия 3.900-2Серия 3.900-2Серия 3.900-2Серия 3.900-2Серия 3.900-2Серия 3.900-2Серия 3.900-2Серия 3.900-2Серия 3.900-2Серия 3.900-2Серия 3.900-2Серия 3.900-2Серия 3.900-2Серия 3.900-2Серия 3.900-2Серия 3.900-2Серия 3.900-2

© 2013 Ёшкин Кот :-) Карта сайта