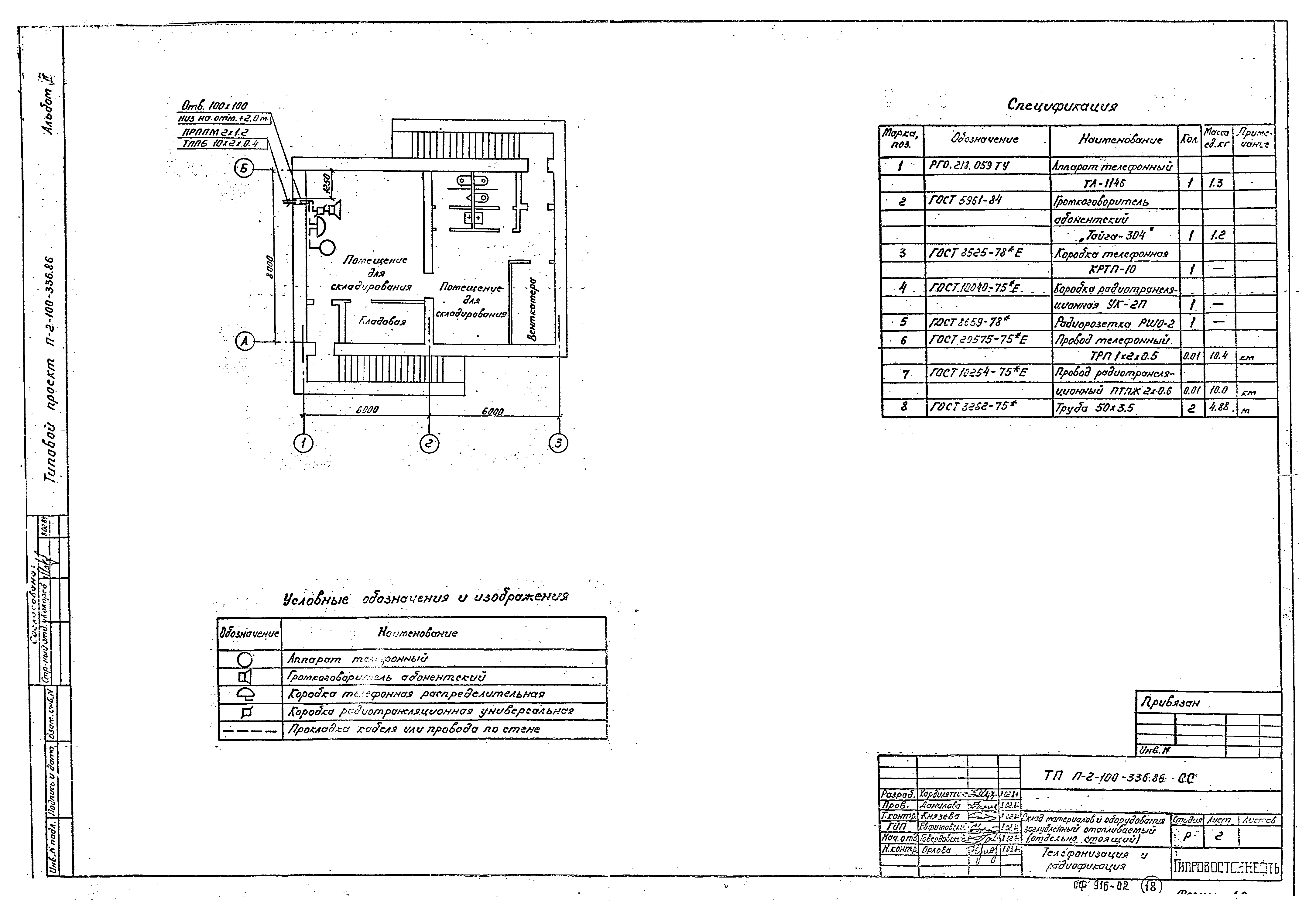
Скачать Типовой проект П-2-100-336.86 Альбом II. Архитектурно-строительные решения, санитарно-техническая и электротехническая частиДата актуализации: 10.08.2017 Типовой проект П-2-100-336.86
Альбом II. Архитектурно-строительные решения, санитарно-техническая и электротехническая частиОбозначение: | Типовой проект П-2-100-336.86 | Обозначение англ: | П-2-100-336.86 | Статус: | не определен законодательством | Название рус.: | Альбом II. Архитектурно-строительные решения, санитарно-техническая и электротехническая части | Дата добавления в базу: | 01.09.2013 | Дата актуализации: | 05.05.2017 | Дата введения: | 01.05.1986 | Разработан: | Гипровостокнефть
| Утверждён: | 21.04.1986 Миннефтепром (Minnefteprom 1)
| Расположен в: |
|
               
|