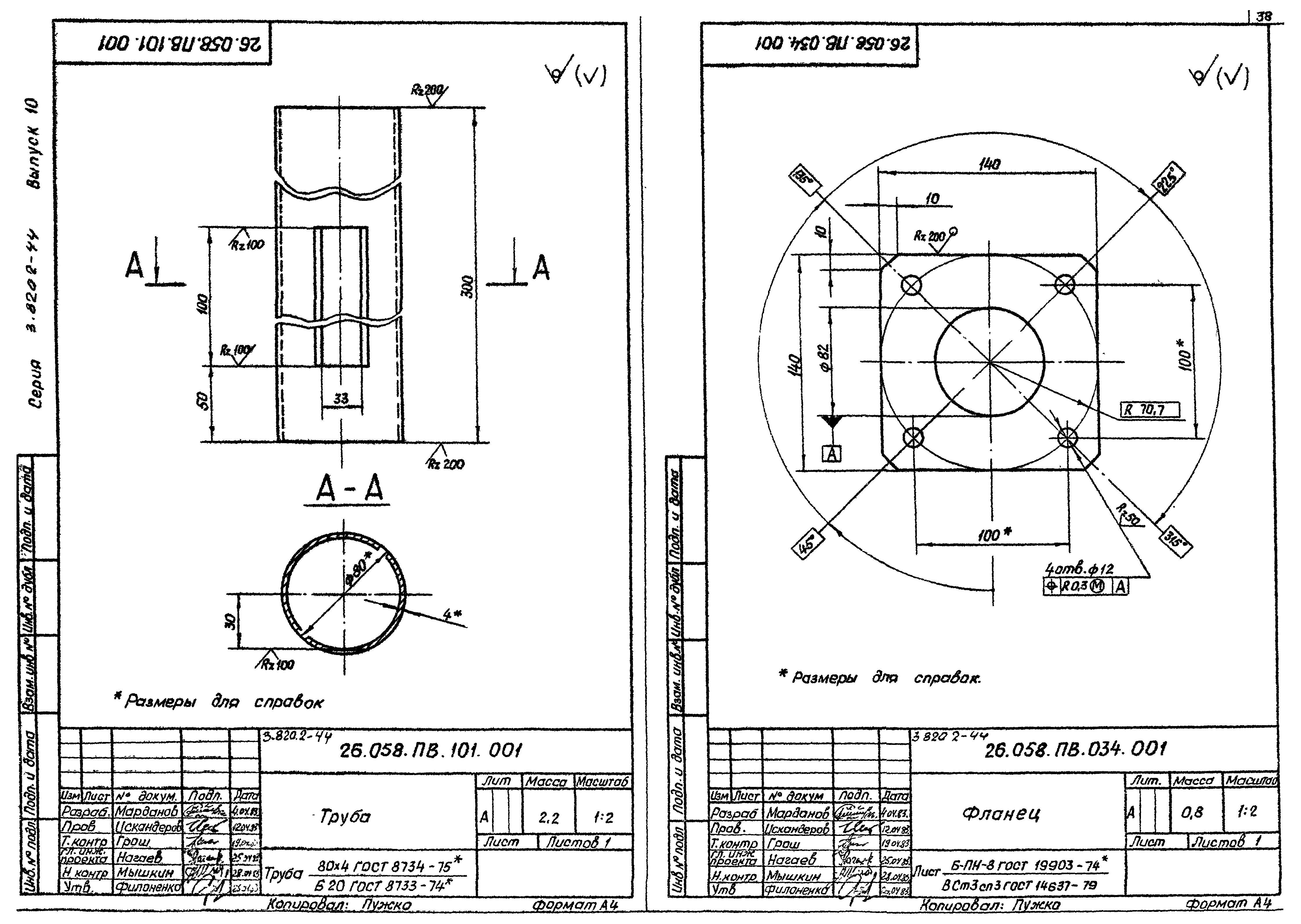
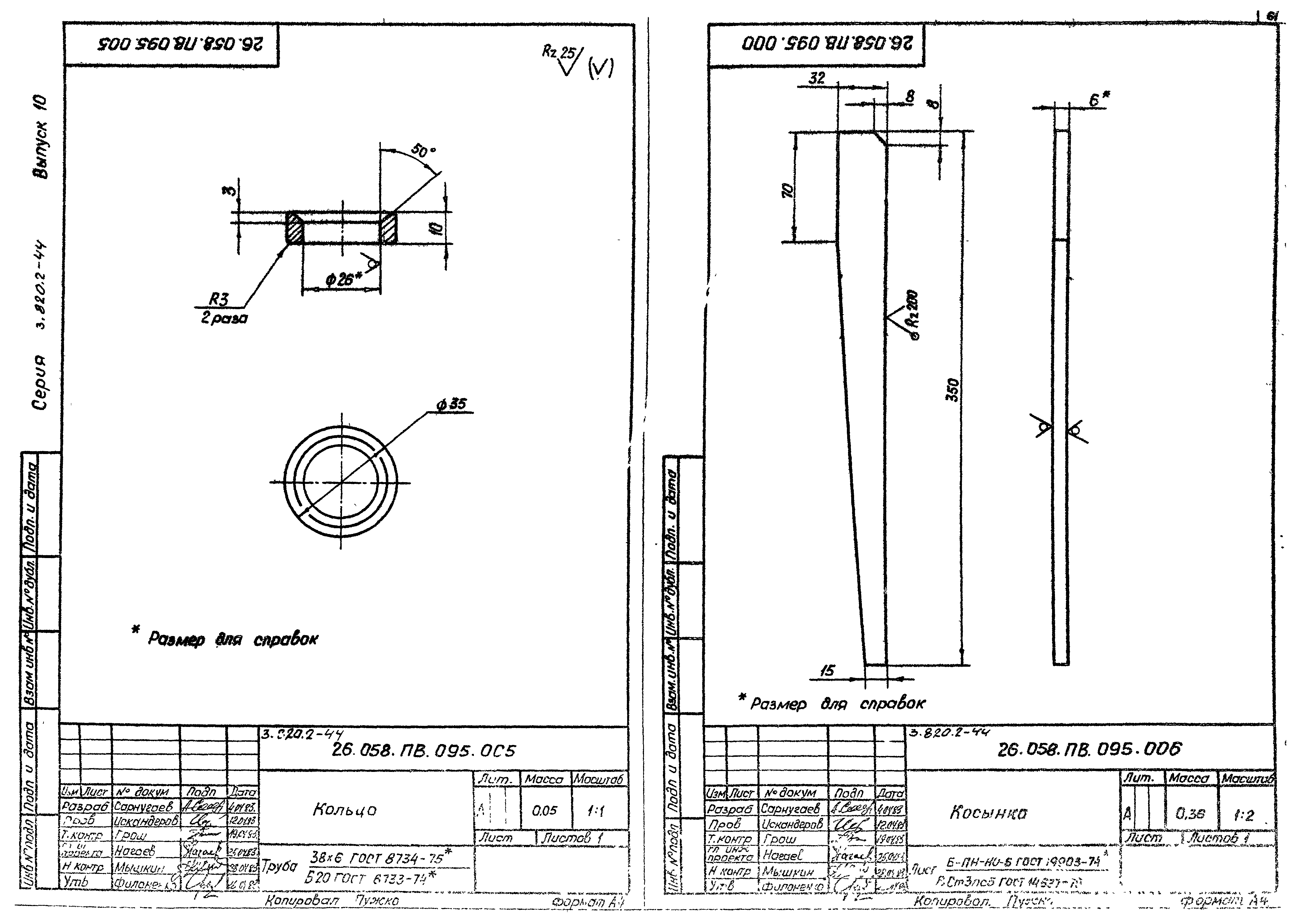
Скачать Серия 3.820.2-44 Выпуск 10. Подъемник одновинтовой с электроприводом г.п. 2,5 тс. марки 2,5 ЭВДата актуализации: 10.08.2017 Серия 3.820.2-44
Выпуск 10. Подъемник одновинтовой с электроприводом г.п. 2,5 тс. марки 2,5 ЭВ| Обозначение: | Серия 3.820.2-44 | | Обозначение англ: | Series 3.820.2-44 | | Статус: | не определен законодательством | | Название рус.: | Выпуск 10. Подъемник одновинтовой с электроприводом г.п. 2,5 тс. марки 2,5 ЭВ | | Дата добавления в базу: | 01.09.2013 | | Дата актуализации: | 05.05.2017 | | Дата введения: | 28.05.1984 | | Разработан: | Средазгипроводхлопок Минводхоза СССР
| | Утверждён: | 25.11.1983 Минводхоз СССР (USSR Minvodkhoz 551)
| | Расположен в: |
| | Заменяет собой: | |
                                                            
|