| ||||||||||||||||||||||||||||
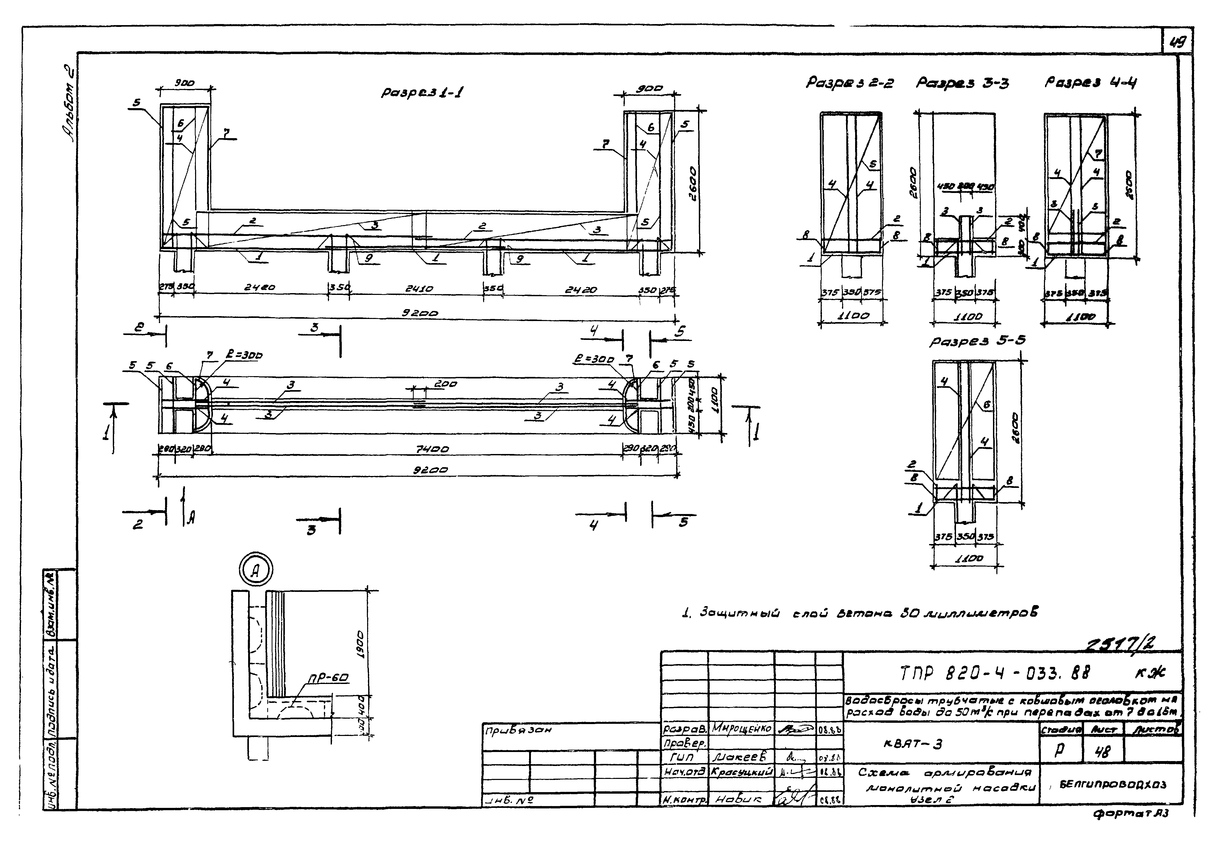
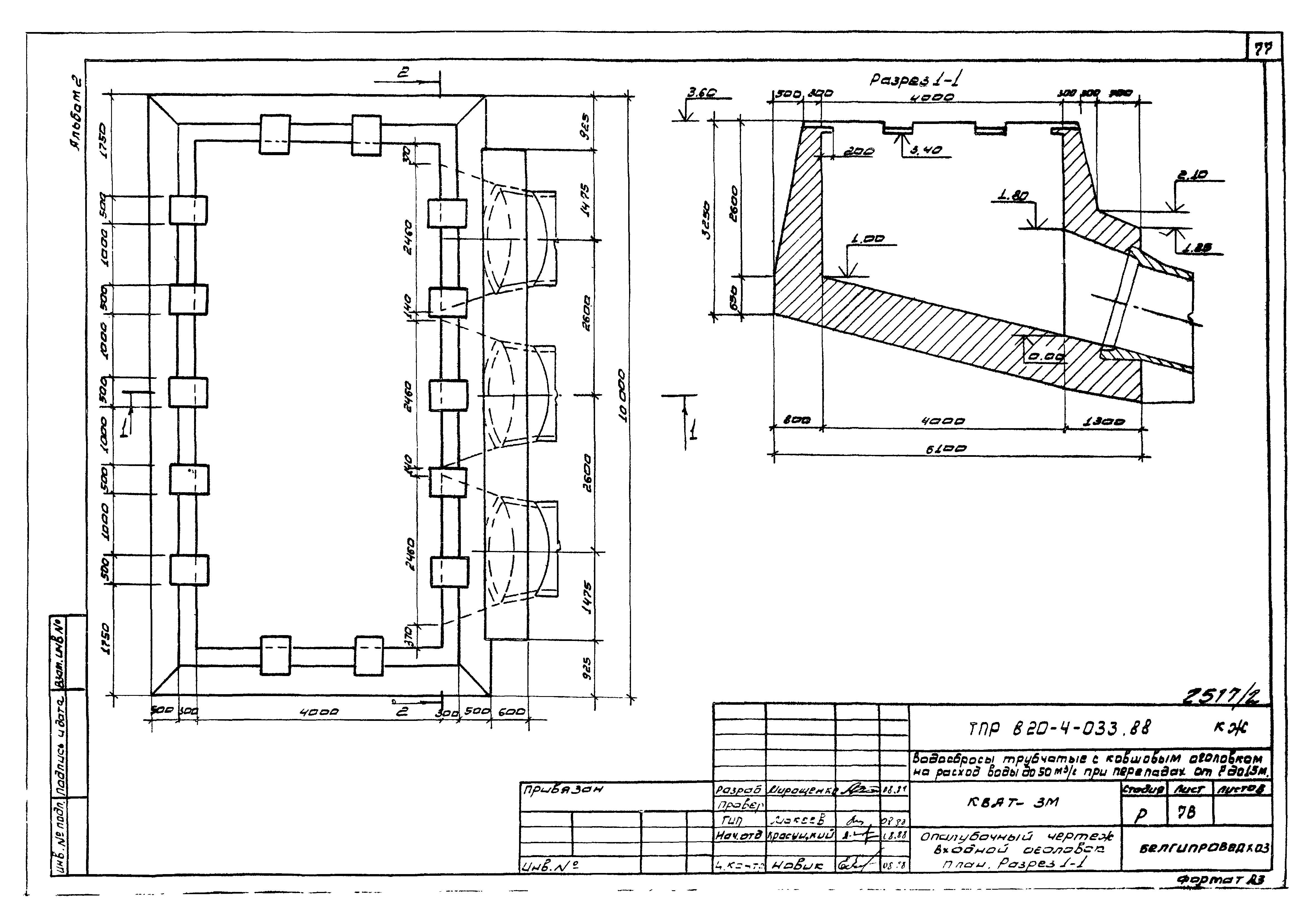
Скачать Типовые проектные решения 820-4-033.88 Альбом 2. Конструкции железобетонныеДата актуализации: 10.08.2017
|
| Обозначение: | Типовые проектные решения 820-4-033.88 |
| Обозначение англ: | 820-4-033.88 |
| Статус: | cправочные материалы, мп, тпр |
| Название рус.: | Альбом 2. Конструкции железобетонные |
| Дата добавления в базу: | 01.09.2013 |
| Дата актуализации: | 05.05.2017 |
| Дата введения: | 14.06.1988 |
| Разработан: | Белгипроводхоз Минводхоза СССР |
| Утверждён: | 14.06.1988 Минводхоз СССР (USSR Minvodkhoz 778) |
| Принят: | Союзводпроект |
| Издан: | ЦИТП Госстроя СССР (CITP, Gosstroy (USSR) 1989 г. ) |
| Расположен в: |
























































































