Информационная система
«Ёшкин Кот»

Скачать базу одним архивом
Скачать обновления
История создания базы
Карта сайта

Скачать Типовой проект 902-1-139.88 Альбом 7. Нестандартизированное оборудование (из ТП 902-1-136.88)

Дата актуализации: 10.08.2017

Типовой проект 902-1-139.88

Альбом 7. Нестандартизированное оборудование (из ТП 902-1-136.88)

Обозначение: Типовой проект 902-1-139.88
Обозначение англ: 902-1-139.88
Статус:не определен законодательством
Название рус.:Альбом 7. Нестандартизированное оборудование (из ТП 902-1-136.88)
Дата добавления в базу:01.09.2013
Дата актуализации:05.05.2017
Дата введения:19.07.1988
Оглавление:ТП 902-1-136.88 Содержание альбома
ТП 902-1-136.88 Н1-01.000 Решетка-заслонка
ТП 902-1-136.88 Н1-01.100 Решетка
ТП 902-1-136.88 Н1-01.005 Ось
ТП 902-1-136.88 Н1-01.000СБ Решетка-заслонка. Сборочный чертеж
ТП 902-1-136.88 Н1-01.101 Упор
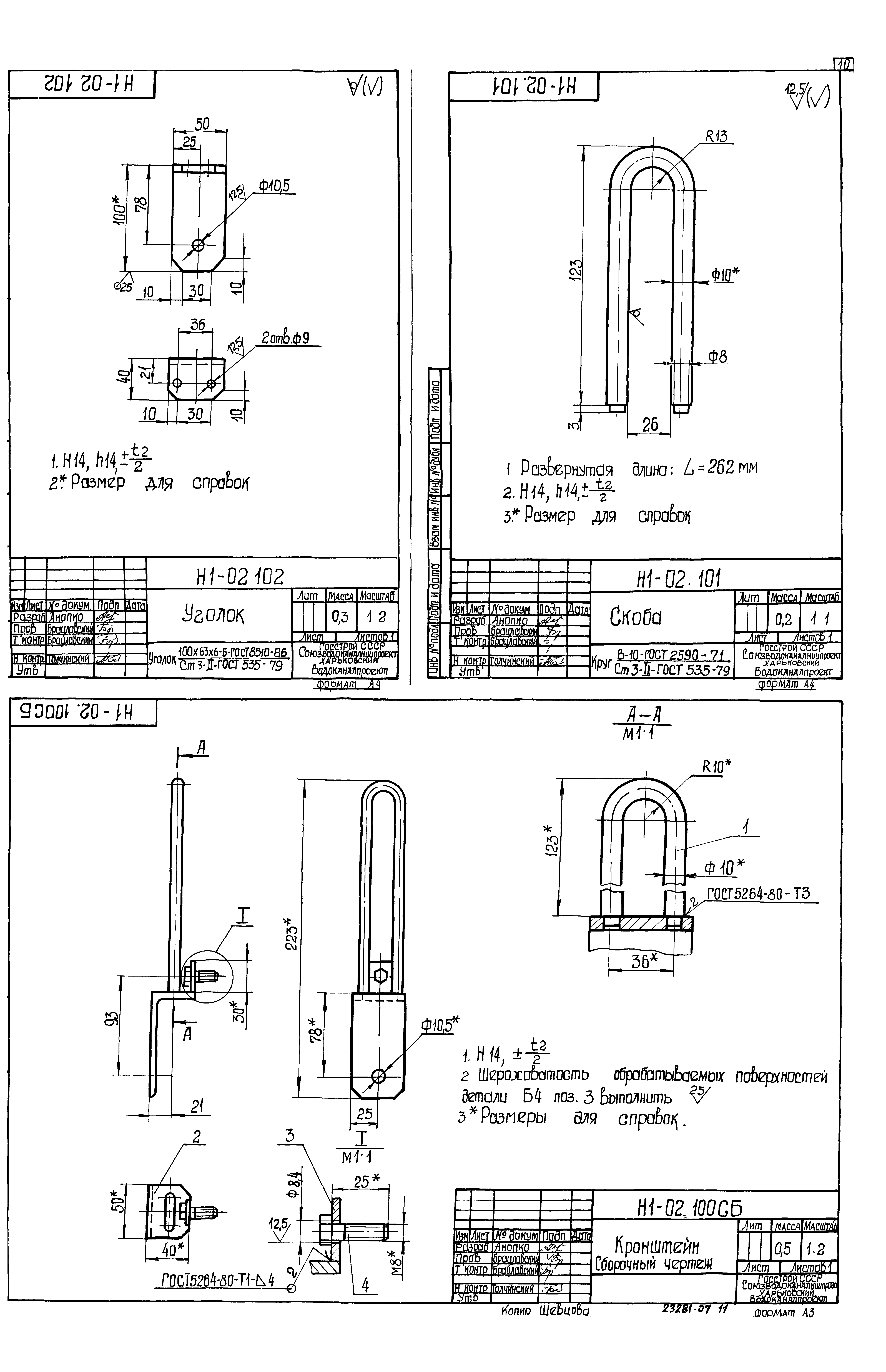
ТП 902-1-136.88 Н1-01.102 Уголок
ТП 902-1-136.88 Н1-01.100СБ Решетка. Сборочный чертеж
ТП 902-1-136.88 Н1-01.001 Пластина
ТП 902-1-136.88 Н1-01.003 Заслонка
ТП 902-1-136.88 Н1-01.103 Пластина
ТП 902-1-136.88 Н1-01.002 Направляющая
ТП 902-1-136.88 Н1-02.001 Колесо
ТП 902-1-136.88 Н1-02.002 Ось
ТП 902-1-136.88 Н1-02.003 Крючок
ТП 902-1-136.88 Н1-02.000 Блок
ТП 902-1-136.88 Н1-02.100 Кронштейн
ТП 902-1-136.88 Н1-04.000 Устройство отборное напорное
ТП 902-1-136.88 Н1-03.000 Расширитель
ТП 902-1-136.88 Н1-04.100 Разделитель мембранный
ТП 902-1-136.88 Н1-02.000СБ Блок. Сборочный чертеж
ТП 902-1-136.88 Н1-02.102 Уголок
ТП 902-1-136.88 Н1-02.101 Скоба
ТП 902-1-136.88 Н1-02.100СБ Кронштейн. Сборочный чертеж
ТП 902-1-136.88 Н1-03.000СБ Расширитель. Сборочный чертеж
ТП 902-1-136.88 Н1-04.000СБ Устройство отборное напорное. Сборочный чертеж
ТП 902-1-136.88 Н1-03.002 Днище
ТП 902-1-136.88 Н1-03.001 Корпус
ТП 902-1-136.88 Н1-04.001 Прокладка
ТП 902-1-136.88 Н1-01.004 Прокладка
ТП 902-1-136.88 Н1-04.002 Прокладка
ТП 902-1-136.88 Н1-04.003 Прокладка
ТП 902-1-136.88 Н1-04.004 Пробка
ТП 902-1-136.88 Н1-04.102 Кольцо
ТП 902-1-136.88 Н1-04.100СБ Разделитель мембранный. Сборочный чертеж
ТП 902-1-136.88 Н1-04.101 Корпус
ТП 902-1-136.88 Н1-04.200 Отвод
ТП 902-1-136.88 Н1-05.000 Патрубок монтажный
ТП 902-1-136.88 Н1-05.200 Патрубок
ТП 902-1-136.88 Н1-04.103 Мембрана
ТП 902-1-136.88 Н1-04.201 Труба
ТП 902-1-136.88 Н1-04.200СБ Отвод. Сборочный чертеж
ТП 902-1-136.88 Н1-05.002 Фланец
ТП 902-1-136.88 Н1-05.100 Патрубок
ТП 902-1-136.88 Н1-06.000 Установка патрубка
ТП 902-1-136.88 Н1-05.100СБ Патрубок. Сборочный чертеж
ТП 902-1-136.88 Н1-05.001 Прокладка
ТП 902-1-136.88 Н1-05.200 Патрубок. Сборочный чертеж
ТП 902-1-136.88 Н1-05.201 Труба
ТП 902-1-136.88 Н1-05.000СБ Патрубок монтажный. Сборочный чертеж
ТП 902-1-136.88 Н1-06.000СБ Установка патрубка. Сборочный чертеж
ТП 902-1-136.88 Н1-06.111 Конус
ТП 902-1-136.88 Н1-06.001 Заглушка
ТП 902-1-136.88 Н1-06.100СБ Патрубок. Сборочный чертеж
ТП 902-1-136.88 Н1-06.110СБ Патрубок. Сборочный чертеж
ТП 902-1-136.88 Н1-06.100 Патрубок
ТП 902-1-136.88 Н1-07.100 Створка
ТП 902-1-136.88 Н1-06.110 Патрубок
ТП 902-1-136.88 Н1-07.200 Скоба
ТП 902-1-136.88 Н1-08.000 Устройство отборное разрежения
ТП 902-1-136.88 Н1-07.000 Кронштейн решетчатый
ТП 902-1-136.88 Н1-08.000 Устройство отборное разрежения. Сборочный чертеж
ТП 902-1-136.88 Н1-07.000СБ Кронштейн решетчатый. Сборочный чертеж
ТП 902-1-136.88 Н1-07.100СБ Створка. Сборочный чертеж
ТП 902-1-136.88 Н1-06.002 Прокладка
ТП 902-1-136.88 Н1-07.101 Ребро
ТП 902-1-136.88 Н1-07.200СБ Скоба. Сборочный чертеж
ТП 902-1-136.88 Н1-07.202 Пластина
ТП 902-1-136.88 Н1-07.102 Скоба
ТП 902-1-136.88 Н1-07.201 Скоба
ТП 902-1-136.88 Н1-07.103 Петля
ТП 902-1-136.88 Н1-07.104 Пруток
ТП 902-1-136.88 Н1-07.106 Уголок
ТП 902-1-136.88 Н1-07.105 Уголок
ТП 902-1-136.88 Н1-04.202 Фланец
ТП 902-1-136.88 Н1-08.100СБ Патрубок. Сборочный чертеж
ТП 902-1-136.88 Н1-08.101 Фланец
ТП 902-1-136.88 Н1-08.102 Корпус
ТП 902-1-136.88 Н1-08.100 Патрубок
Разработан: Харьковский Водоканалпроект
Утверждён:19.07.1988 Госстрой СССР (Государственный комитет Совета Министров СССР по делам строительства) (USSR Gosstroy 46)
Расположен в:Техническая документация Строительство Справочные документы Типовые строительные конструкции, изделия и узлы Общероссийский строительный каталог Промышленные предприятия, здания и сооружения Здания и сооружения санитарно-технические Канализация Станции насосные Станции насосные для перекачки бытовых сточных вод
Заменяет собой:
Типовой проект 902-1-139.88Типовой проект 902-1-139.88Типовой проект 902-1-139.88Типовой проект 902-1-139.88Типовой проект 902-1-139.88Типовой проект 902-1-139.88Типовой проект 902-1-139.88Типовой проект 902-1-139.88Типовой проект 902-1-139.88Типовой проект 902-1-139.88Типовой проект 902-1-139.88Типовой проект 902-1-139.88Типовой проект 902-1-139.88Типовой проект 902-1-139.88Типовой проект 902-1-139.88Типовой проект 902-1-139.88Типовой проект 902-1-139.88Типовой проект 902-1-139.88Типовой проект 902-1-139.88Типовой проект 902-1-139.88Типовой проект 902-1-139.88Типовой проект 902-1-139.88Типовой проект 902-1-139.88Типовой проект 902-1-139.88Типовой проект 902-1-139.88Типовой проект 902-1-139.88Типовой проект 902-1-139.88Типовой проект 902-1-139.88Типовой проект 902-1-139.88Типовой проект 902-1-139.88Типовой проект 902-1-139.88

© 2013 Ёшкин Кот :-) Карта сайта