Информационная система
«Ёшкин Кот»

Скачать базу одним архивом
Скачать обновления
История создания базы
Карта сайта

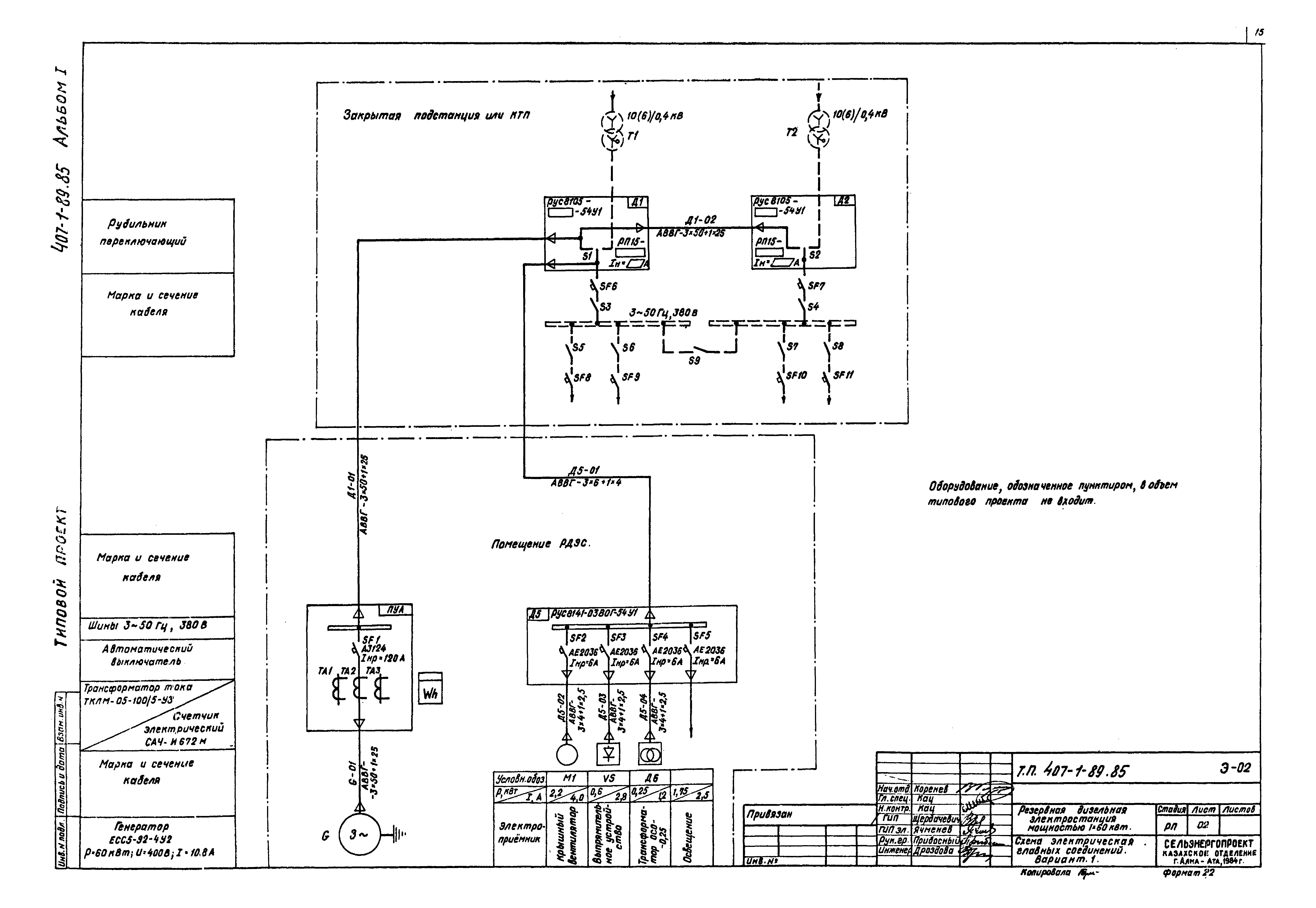
Скачать Типовой проект 407-1-89.85 Альбом I. Общая пояснительная записка. Тепломеханическая часть. Электротехническая часть. Архитектурно-строительные решения. Отопление и вентиляция. Водопровод и канализация. Спецификации оборудования

Дата актуализации: 10.08.2017

Типовой проект 407-1-89.85

Альбом I. Общая пояснительная записка. Тепломеханическая часть. Электротехническая часть. Архитектурно-строительные решения. Отопление и вентиляция. Водопровод и канализация. Спецификации оборудования

Обозначение: Типовой проект 407-1-89.85
Обозначение англ: 407-1-89.85
Статус:не определен законодательством
Название рус.:Альбом I. Общая пояснительная записка. Тепломеханическая часть. Электротехническая часть. Архитектурно-строительные решения. Отопление и вентиляция. Водопровод и канализация. Спецификации оборудования
Дата добавления в базу:01.09.2013
Дата актуализации:05.05.2017
Дата введения:19.09.1984
Разработан: Сельэнергопроект
Утверждён:19.09.1984 Минэнерго СССР (USSR Minenergo 37)
Издан: ЦИТП Госстроя СССР (CITP, Gosstroy (USSR) 1987 г. )
Расположен в:Техническая документация Строительство Справочные документы Типовые строительные конструкции, изделия и узлы Общероссийский строительный каталог Промышленные предприятия, здания и сооружения Предприятия, здания и сооружения промышленности и электроэнергетики Электроэнергетика Электростанции угольные, газомазутные и дизельные Электростанции дизельные
Типовой проект 407-1-89.85Типовой проект 407-1-89.85Типовой проект 407-1-89.85Типовой проект 407-1-89.85Типовой проект 407-1-89.85Типовой проект 407-1-89.85Типовой проект 407-1-89.85Типовой проект 407-1-89.85Типовой проект 407-1-89.85Типовой проект 407-1-89.85Типовой проект 407-1-89.85Типовой проект 407-1-89.85Типовой проект 407-1-89.85Типовой проект 407-1-89.85Типовой проект 407-1-89.85Типовой проект 407-1-89.85Типовой проект 407-1-89.85Типовой проект 407-1-89.85Типовой проект 407-1-89.85Типовой проект 407-1-89.85Типовой проект 407-1-89.85Типовой проект 407-1-89.85Типовой проект 407-1-89.85Типовой проект 407-1-89.85Типовой проект 407-1-89.85Типовой проект 407-1-89.85Типовой проект 407-1-89.85Типовой проект 407-1-89.85Типовой проект 407-1-89.85Типовой проект 407-1-89.85Типовой проект 407-1-89.85Типовой проект 407-1-89.85Типовой проект 407-1-89.85Типовой проект 407-1-89.85Типовой проект 407-1-89.85Типовой проект 407-1-89.85Типовой проект 407-1-89.85Типовой проект 407-1-89.85Типовой проект 407-1-89.85Типовой проект 407-1-89.85Типовой проект 407-1-89.85Типовой проект 407-1-89.85Типовой проект 407-1-89.85Типовой проект 407-1-89.85Типовой проект 407-1-89.85Типовой проект 407-1-89.85Типовой проект 407-1-89.85Типовой проект 407-1-89.85Типовой проект 407-1-89.85Типовой проект 407-1-89.85Типовой проект 407-1-89.85Типовой проект 407-1-89.85Типовой проект 407-1-89.85Типовой проект 407-1-89.85Типовой проект 407-1-89.85Типовой проект 407-1-89.85Типовой проект 407-1-89.85Типовой проект 407-1-89.85Типовой проект 407-1-89.85Типовой проект 407-1-89.85Типовой проект 407-1-89.85Типовой проект 407-1-89.85

© 2013 Ёшкин Кот :-) Карта сайта