Информационная система
«Ёшкин Кот»

Скачать базу одним архивом
Скачать обновления
История создания базы
Карта сайта

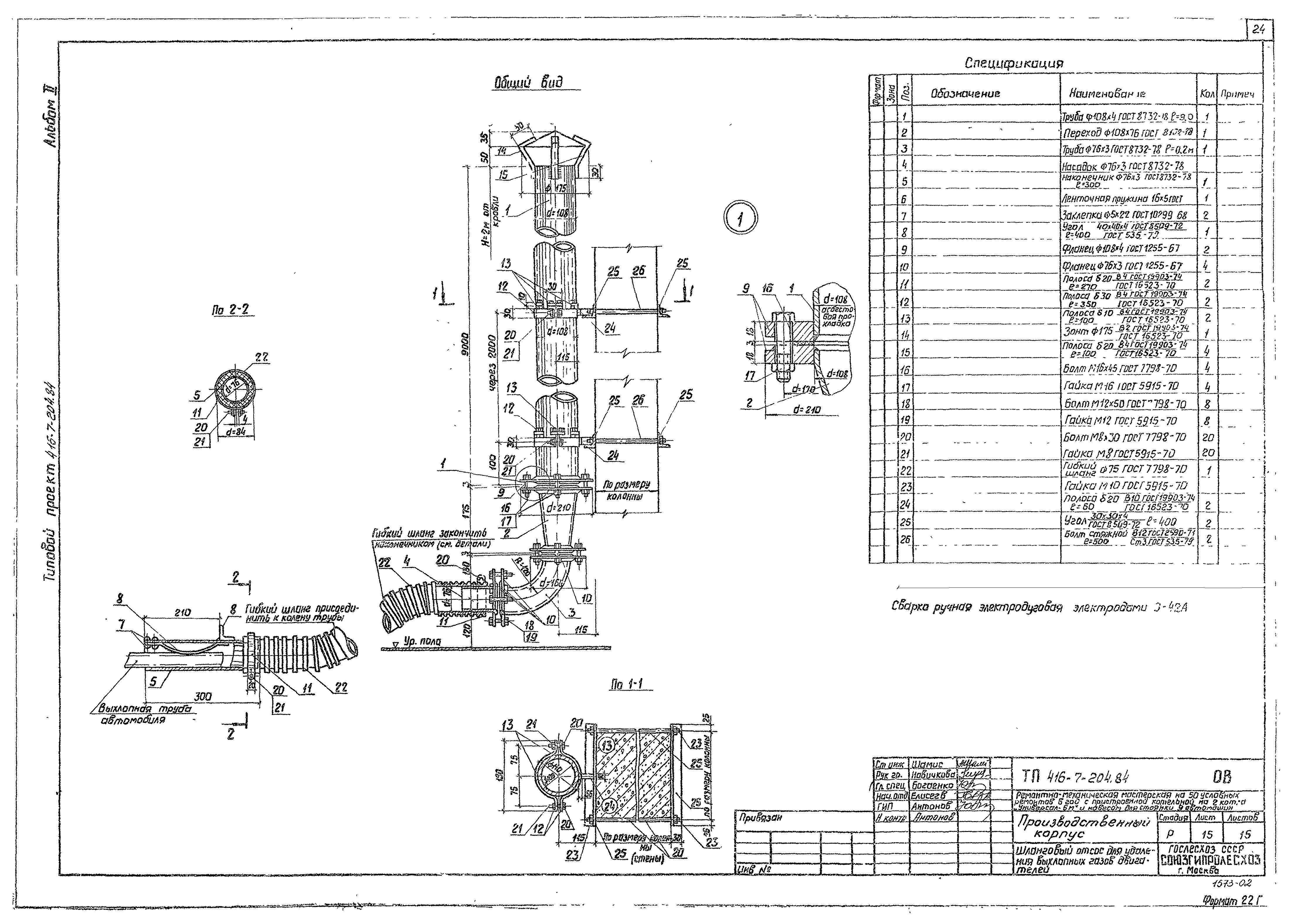
Скачать Типовой проект 416-7-204.84 Альбом II. Внутренний водопровод и канализация. Отопление и вентиляция. Электрооборудование. Автоматизация санитарно-технических систем

Дата актуализации: 10.08.2017

Типовой проект 416-7-204.84

Альбом II. Внутренний водопровод и канализация. Отопление и вентиляция. Электрооборудование. Автоматизация санитарно-технических систем

Обозначение: Типовой проект 416-7-204.84
Обозначение англ: 416-7-204.84
Статус:не определен законодательством
Название рус.:Альбом II. Внутренний водопровод и канализация. Отопление и вентиляция. Электрооборудование. Автоматизация санитарно-технических систем
Дата добавления в базу:01.09.2013
Дата актуализации:05.05.2017
Дата введения:24.07.1984
Разработан: Союзгипролесхоз
Утверждён:08.10.1980 Гослесхоз СССР (USSR Gosleskhoz 84)
Расположен в:Техническая документация Строительство Справочные документы Типовые строительные конструкции, изделия и узлы Общероссийский строительный каталог Промышленные предприятия, здания и сооружения Предприятия, здания и сооружения промышленности и электроэнергетики Ремонтные предприятия. Административно-бытовые, производственные и вспомогательные здания и сооружения промышленных предприятий Ремонтные предприятия, производственные и вспомогательные здания и сооружения
Типовой проект 416-7-204.84Типовой проект 416-7-204.84Типовой проект 416-7-204.84Типовой проект 416-7-204.84Типовой проект 416-7-204.84Типовой проект 416-7-204.84Типовой проект 416-7-204.84Типовой проект 416-7-204.84Типовой проект 416-7-204.84Типовой проект 416-7-204.84Типовой проект 416-7-204.84Типовой проект 416-7-204.84Типовой проект 416-7-204.84Типовой проект 416-7-204.84Типовой проект 416-7-204.84Типовой проект 416-7-204.84Типовой проект 416-7-204.84Типовой проект 416-7-204.84Типовой проект 416-7-204.84Типовой проект 416-7-204.84Типовой проект 416-7-204.84Типовой проект 416-7-204.84Типовой проект 416-7-204.84Типовой проект 416-7-204.84Типовой проект 416-7-204.84Типовой проект 416-7-204.84Типовой проект 416-7-204.84Типовой проект 416-7-204.84Типовой проект 416-7-204.84Типовой проект 416-7-204.84Типовой проект 416-7-204.84Типовой проект 416-7-204.84Типовой проект 416-7-204.84Типовой проект 416-7-204.84Типовой проект 416-7-204.84Типовой проект 416-7-204.84Типовой проект 416-7-204.84Типовой проект 416-7-204.84Типовой проект 416-7-204.84Типовой проект 416-7-204.84Типовой проект 416-7-204.84Типовой проект 416-7-204.84Типовой проект 416-7-204.84Типовой проект 416-7-204.84Типовой проект 416-7-204.84Типовой проект 416-7-204.84Типовой проект 416-7-204.84Типовой проект 416-7-204.84Типовой проект 416-7-204.84Типовой проект 416-7-204.84Типовой проект 416-7-204.84Типовой проект 416-7-204.84Типовой проект 416-7-204.84Типовой проект 416-7-204.84Типовой проект 416-7-204.84Типовой проект 416-7-204.84Типовой проект 416-7-204.84Типовой проект 416-7-204.84Типовой проект 416-7-204.84Типовой проект 416-7-204.84Типовой проект 416-7-204.84Типовой проект 416-7-204.84Типовой проект 416-7-204.84Типовой проект 416-7-204.84Типовой проект 416-7-204.84Типовой проект 416-7-204.84

© 2013 Ёшкин Кот :-) Карта сайта