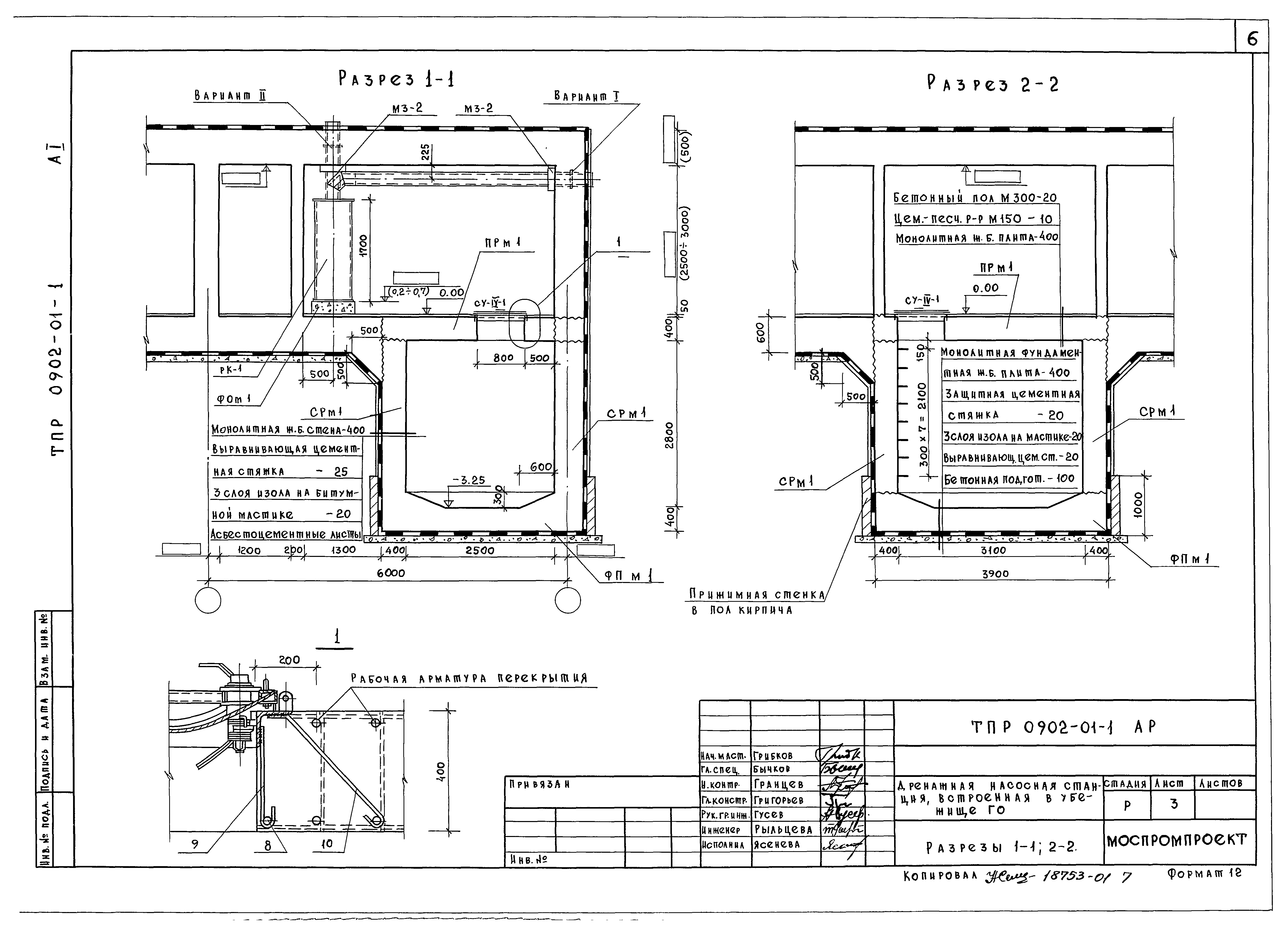
Скачать Типовые проектные решения 0902-01-1 Альбом I. Архитектурно-строительные и технологические чертежи. Отопление и вентиляция. Электрооборудование. Контрольно-измерительные приборы и автоматикаДата актуализации: 10.08.2017 Типовые проектные решения 0902-01-1
Альбом I. Архитектурно-строительные и технологические чертежи. Отопление и вентиляция. Электрооборудование. Контрольно-измерительные приборы и автоматика| Обозначение: | Типовые проектные решения 0902-01-1 | | Обозначение англ: | 0902-01-1 | | Статус: | cправочные материалы, мп, тпр | | Название рус.: | Альбом I. Архитектурно-строительные и технологические чертежи. Отопление и вентиляция. Электрооборудование. Контрольно-измерительные приборы и автоматика | | Дата добавления в базу: | 01.09.2013 | | Дата актуализации: | 05.05.2017 | | Дата введения: | 13.09.1982 | | Разработан: | Моспромпроект
| | Утверждён: | 13.09.1982 Мосгорисполком (Mosgorispolkom 2704с)
| | Расположен в: |
|
                               
|