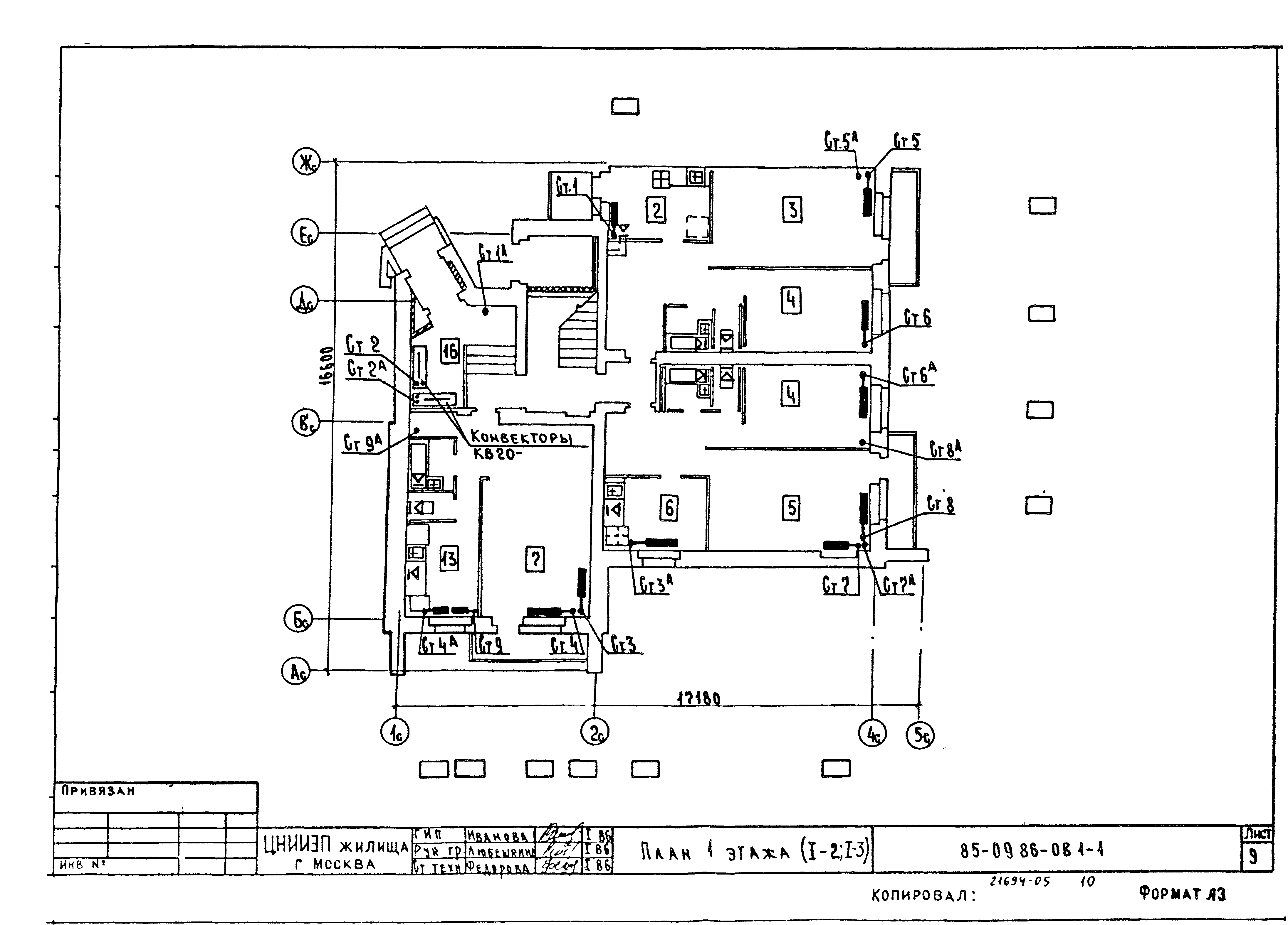
Скачать Типовой проект 85-09.86 ОВ.1-1. Отопление и вентиляция ниже и выше отметки 0.000Дата актуализации: 10.08.2017 Типовой проект 85-09.86
ОВ.1-1. Отопление и вентиляция ниже и выше отметки 0.000Обозначение: | Типовой проект 85-09.86 | Обозначение англ: | 85-09.86 | Статус: | не определен законодательством | Название рус.: | ОВ.1-1. Отопление и вентиляция ниже и выше отметки 0.000 | Дата добавления в базу: | 01.09.2013 | Дата актуализации: | 05.05.2017 | Дата введения: | 30.07.1986 | Разработан: | ЦНИИЭП жилища
| Утверждён: | 31.12.1969 Госгражданстрой (Gosgrazhdanstroy 280)
| Расположен в: |
|
                     
|