Информационная система
«Ёшкин Кот»

Скачать базу одним архивом
Скачать обновления
История создания базы
Карта сайта

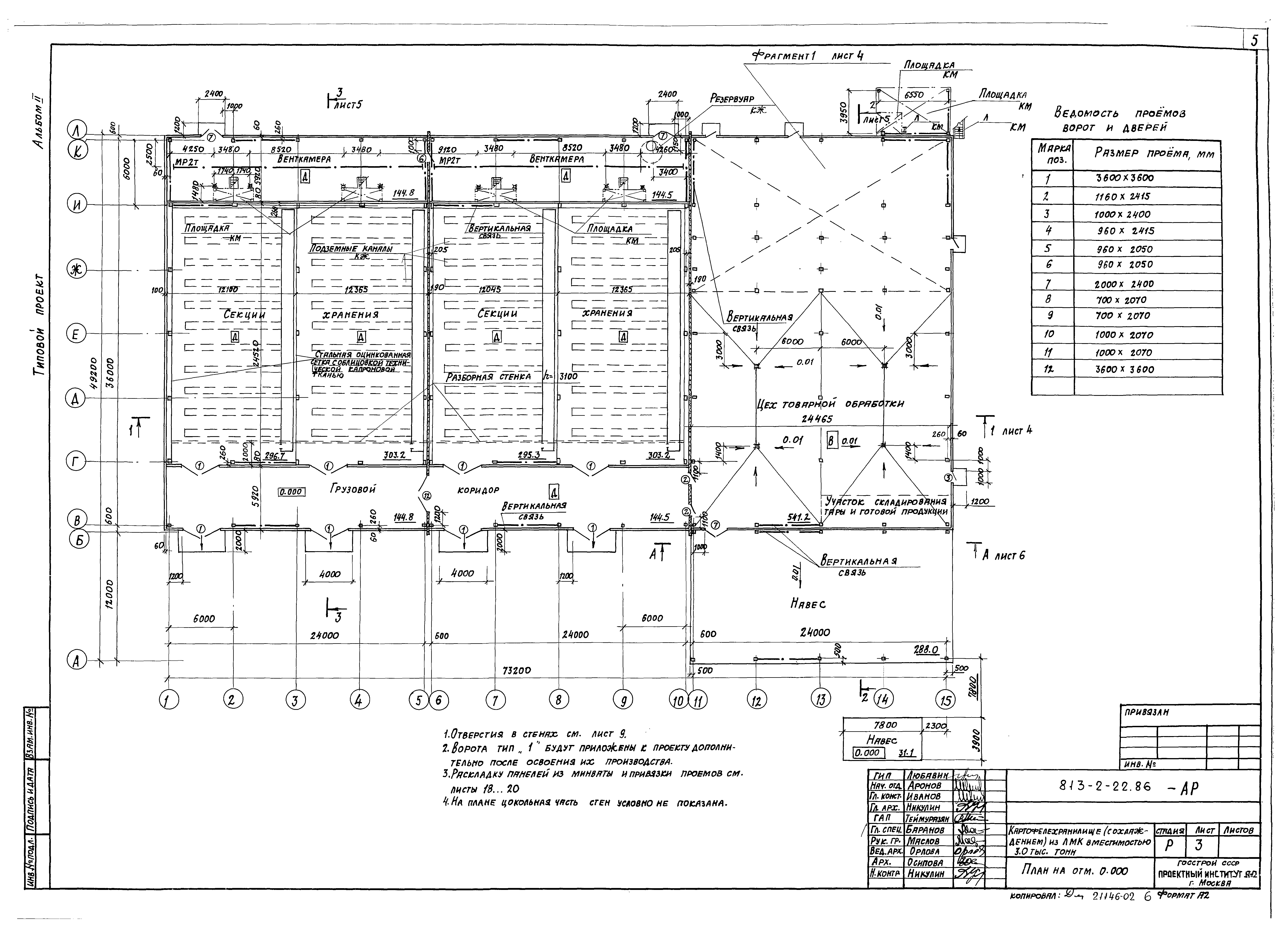
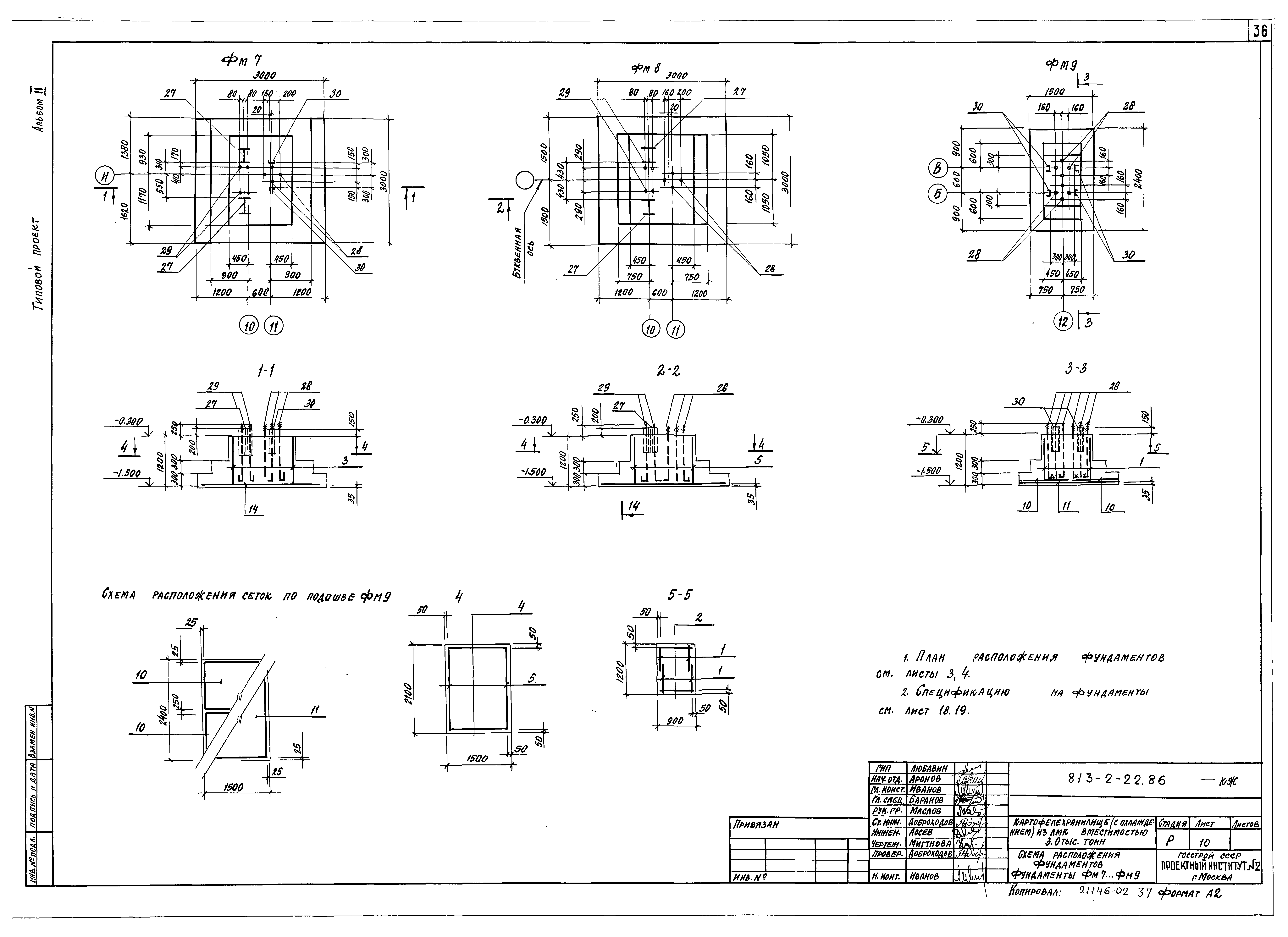
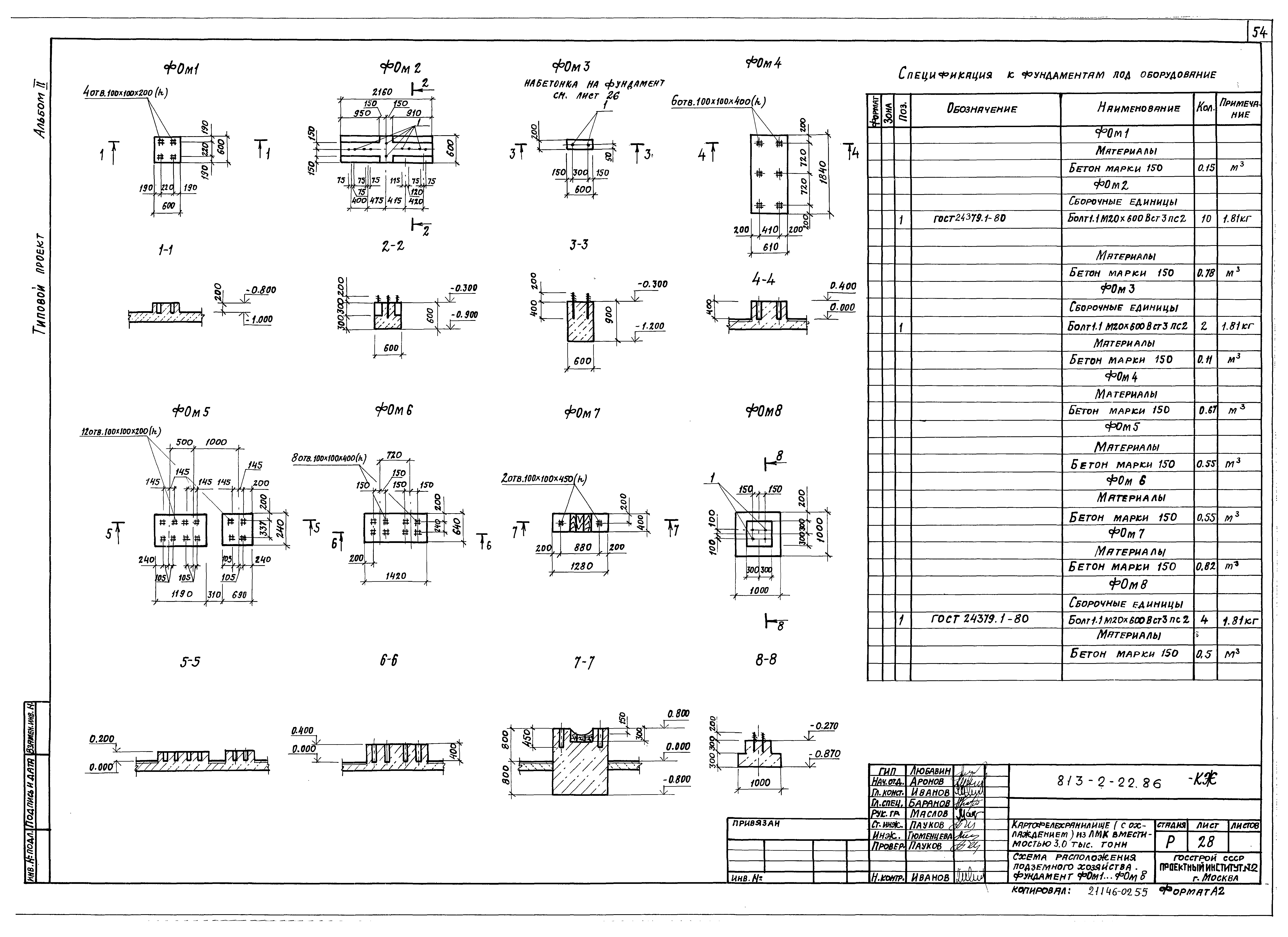
Скачать Типовой проект 813-2-22.86 Альбом II. Архитектурные решения. Конструкции железобетонные

Дата актуализации: 10.08.2017

Типовой проект 813-2-22.86

Альбом II. Архитектурные решения. Конструкции железобетонные

Обозначение: Типовой проект 813-2-22.86
Обозначение англ: 813-2-22.86
Статус:не определен законодательством
Название рус.:Альбом II. Архитектурные решения. Конструкции железобетонные
Дата добавления в базу:01.09.2013
Дата актуализации:05.05.2017
Дата введения:14.11.1985
Разработан: Проектный институт №2
Утверждён:27.09.1985 Минплодоовощхоз СССР (2)
Расположен в:Техническая документация Строительство Справочные документы Типовые строительные конструкции, изделия и узлы Общероссийский строительный каталог Сельскохозяйственные предприятия, здания и сооружения Предприятия, здания и сооружения для хранения зерна, семян, картофеля, овощей, фруктов и другой сельскохозяйственной продукции Картофелехранилища
Типовой проект 813-2-22.86Типовой проект 813-2-22.86Типовой проект 813-2-22.86Типовой проект 813-2-22.86Типовой проект 813-2-22.86Типовой проект 813-2-22.86Типовой проект 813-2-22.86Типовой проект 813-2-22.86Типовой проект 813-2-22.86Типовой проект 813-2-22.86Типовой проект 813-2-22.86Типовой проект 813-2-22.86Типовой проект 813-2-22.86Типовой проект 813-2-22.86Типовой проект 813-2-22.86Типовой проект 813-2-22.86Типовой проект 813-2-22.86Типовой проект 813-2-22.86Типовой проект 813-2-22.86Типовой проект 813-2-22.86Типовой проект 813-2-22.86Типовой проект 813-2-22.86Типовой проект 813-2-22.86Типовой проект 813-2-22.86Типовой проект 813-2-22.86Типовой проект 813-2-22.86Типовой проект 813-2-22.86Типовой проект 813-2-22.86Типовой проект 813-2-22.86Типовой проект 813-2-22.86Типовой проект 813-2-22.86Типовой проект 813-2-22.86Типовой проект 813-2-22.86Типовой проект 813-2-22.86Типовой проект 813-2-22.86Типовой проект 813-2-22.86Типовой проект 813-2-22.86Типовой проект 813-2-22.86Типовой проект 813-2-22.86Типовой проект 813-2-22.86Типовой проект 813-2-22.86Типовой проект 813-2-22.86Типовой проект 813-2-22.86Типовой проект 813-2-22.86Типовой проект 813-2-22.86Типовой проект 813-2-22.86Типовой проект 813-2-22.86Типовой проект 813-2-22.86Типовой проект 813-2-22.86Типовой проект 813-2-22.86Типовой проект 813-2-22.86Типовой проект 813-2-22.86Типовой проект 813-2-22.86Типовой проект 813-2-22.86Типовой проект 813-2-22.86Типовой проект 813-2-22.86

© 2013 Ёшкин Кот :-) Карта сайта