Информационная система
«Ёшкин Кот»

Скачать базу одним архивом
Скачать обновления
История создания базы
Карта сайта

Скачать СТО 70238424.27.060.01.001-2009 Котлы паровые стационарные. Общие технические условия на капитальный ремонт. Нормы и требования

Дата актуализации: 10.08.2017

СТО 70238424.27.060.01.001-2009

Котлы паровые стационарные. Общие технические условия на капитальный ремонт. Нормы и требования

Обозначение: СТО 70238424.27.060.01.001-2009
Обозначение англ: STO 70238424.27.060.01.001-2009
Статус:проект
Название рус.:Котлы паровые стационарные. Общие технические условия на капитальный ремонт. Нормы и требования
Дата добавления в базу:01.10.2014
Дата актуализации:05.05.2017
Область применения:Стандарт распространяется на капитальный ремонт котлов паровых стационарных и предназначен для применения генерирующими компаниями, эксплуатирующими организациями на тепловых электростанциях, ремонтными и иными организациями, осуществляющими ремонт котлов паровых стационарных.
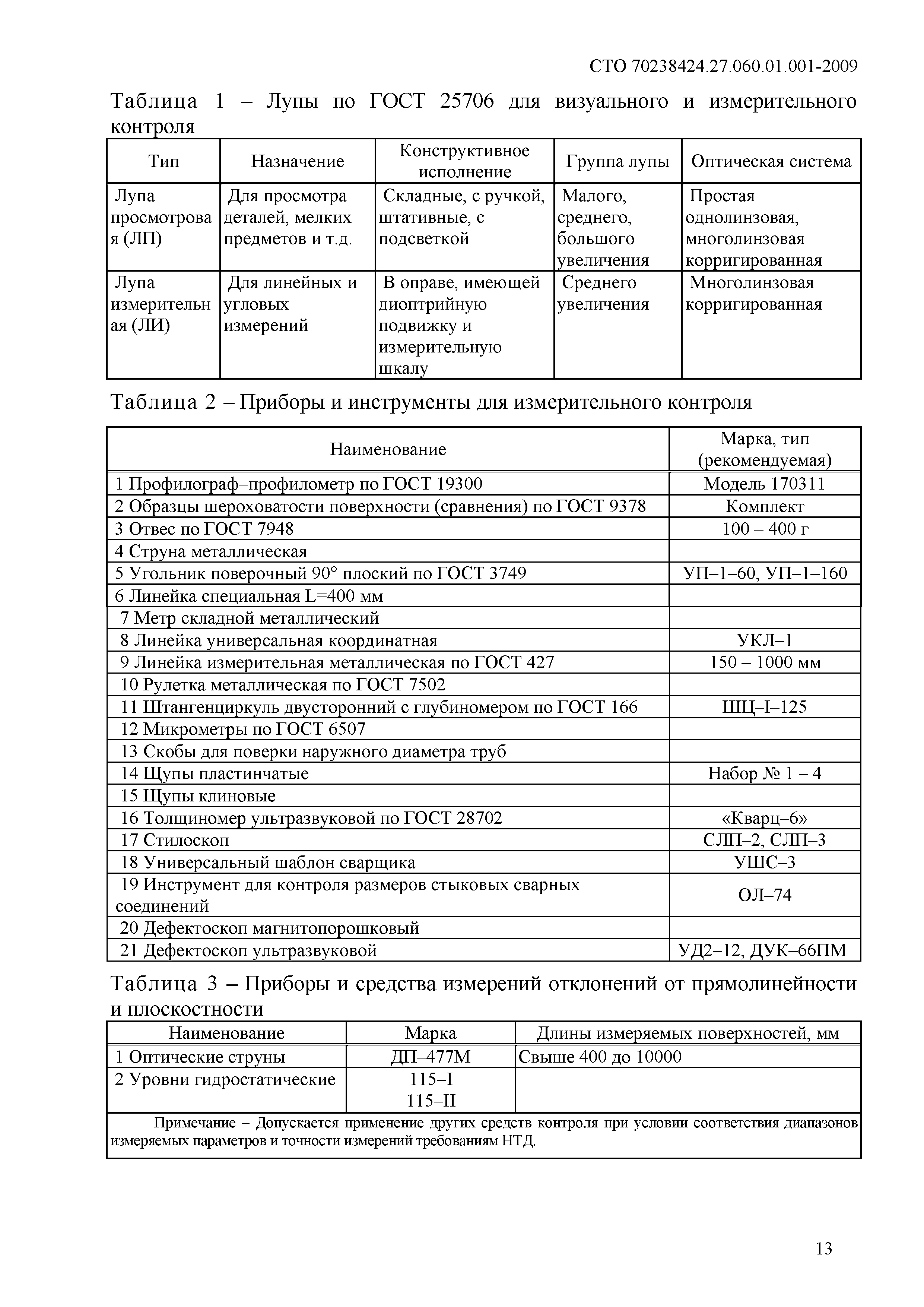
Оглавление:1 Область применения
2 Нормативные ссылки
3 Термины, определения, обозначения и сокращения
4 Общие положения
5 Общие технические сведения
6 Общие технические требования
7 Требования к составным частям
   7.1 Поверхности нагрева паровых стационарных котлов
   7.2 Трубопроводы и коллекторы в пределах парового стационарного котла
   7.3 Барабаны паровых стационарных котлов и сепарационные устройства внутри барабана
   7.4 Горелки газомазутные и пылеугольные паровых стационарных котлов
   7.5 Трубчатые воздухоподогреватели паровых стационарных котлов
   7.6 Гарнитура паровых стационарных котлов
   7.7 Каркасы, лестницы и площадки паровых стационарных котлов
8 Требования к собранному изделию
9 Испытания и показатели качества отремонтированных котлов
10 Требования к обеспечению безопасности
11 Оценка и подтверждение соответствия
Приложение А (обязательное). Экраны паровых стационарных котлов
Приложение Б (обязательное). Пароперегреватели паровых стационарных котлов
Приложение В (обязательное). Экономайзеры стационарных паровых котлов
Приложение Г (обязательное). Барабаны паровых стационарных котлов
Приложение Д (обязательное). Внутрибарабанные сепарационные устройства паровых стационарных котлов
Приложение Е (обязательное). Горелки газомазутные паровых стационарных котлов
Приложение Ж (обязательное). Горелки паровых стационарных котлов
Приложение И (обязательное). Трубчатые воздухоподогреватели стационарных паровых котлов
Приложение К (обязательное). Гарнитура котла
Приложение Л (обязательное). Элементы каркаса, лестниц и площадок котла
Библиография
Разработан: ЗАО ЦКБ Энергоремонт
Утверждён: НП ИНВЭЛ
Расположен в:Техническая документация
Нормативные ссылки:
СТО 70238424.27.060.01.001-2009СТО 70238424.27.060.01.001-2009СТО 70238424.27.060.01.001-2009СТО 70238424.27.060.01.001-2009СТО 70238424.27.060.01.001-2009СТО 70238424.27.060.01.001-2009СТО 70238424.27.060.01.001-2009СТО 70238424.27.060.01.001-2009СТО 70238424.27.060.01.001-2009СТО 70238424.27.060.01.001-2009СТО 70238424.27.060.01.001-2009СТО 70238424.27.060.01.001-2009СТО 70238424.27.060.01.001-2009СТО 70238424.27.060.01.001-2009СТО 70238424.27.060.01.001-2009СТО 70238424.27.060.01.001-2009СТО 70238424.27.060.01.001-2009СТО 70238424.27.060.01.001-2009СТО 70238424.27.060.01.001-2009СТО 70238424.27.060.01.001-2009СТО 70238424.27.060.01.001-2009СТО 70238424.27.060.01.001-2009СТО 70238424.27.060.01.001-2009СТО 70238424.27.060.01.001-2009СТО 70238424.27.060.01.001-2009СТО 70238424.27.060.01.001-2009СТО 70238424.27.060.01.001-2009СТО 70238424.27.060.01.001-2009СТО 70238424.27.060.01.001-2009СТО 70238424.27.060.01.001-2009СТО 70238424.27.060.01.001-2009СТО 70238424.27.060.01.001-2009СТО 70238424.27.060.01.001-2009СТО 70238424.27.060.01.001-2009СТО 70238424.27.060.01.001-2009СТО 70238424.27.060.01.001-2009СТО 70238424.27.060.01.001-2009СТО 70238424.27.060.01.001-2009СТО 70238424.27.060.01.001-2009СТО 70238424.27.060.01.001-2009СТО 70238424.27.060.01.001-2009СТО 70238424.27.060.01.001-2009СТО 70238424.27.060.01.001-2009СТО 70238424.27.060.01.001-2009СТО 70238424.27.060.01.001-2009СТО 70238424.27.060.01.001-2009СТО 70238424.27.060.01.001-2009СТО 70238424.27.060.01.001-2009СТО 70238424.27.060.01.001-2009СТО 70238424.27.060.01.001-2009СТО 70238424.27.060.01.001-2009СТО 70238424.27.060.01.001-2009СТО 70238424.27.060.01.001-2009СТО 70238424.27.060.01.001-2009СТО 70238424.27.060.01.001-2009СТО 70238424.27.060.01.001-2009СТО 70238424.27.060.01.001-2009СТО 70238424.27.060.01.001-2009СТО 70238424.27.060.01.001-2009СТО 70238424.27.060.01.001-2009СТО 70238424.27.060.01.001-2009СТО 70238424.27.060.01.001-2009СТО 70238424.27.060.01.001-2009СТО 70238424.27.060.01.001-2009СТО 70238424.27.060.01.001-2009СТО 70238424.27.060.01.001-2009СТО 70238424.27.060.01.001-2009СТО 70238424.27.060.01.001-2009СТО 70238424.27.060.01.001-2009СТО 70238424.27.060.01.001-2009СТО 70238424.27.060.01.001-2009СТО 70238424.27.060.01.001-2009СТО 70238424.27.060.01.001-2009СТО 70238424.27.060.01.001-2009СТО 70238424.27.060.01.001-2009СТО 70238424.27.060.01.001-2009СТО 70238424.27.060.01.001-2009СТО 70238424.27.060.01.001-2009СТО 70238424.27.060.01.001-2009СТО 70238424.27.060.01.001-2009СТО 70238424.27.060.01.001-2009СТО 70238424.27.060.01.001-2009СТО 70238424.27.060.01.001-2009СТО 70238424.27.060.01.001-2009СТО 70238424.27.060.01.001-2009СТО 70238424.27.060.01.001-2009СТО 70238424.27.060.01.001-2009СТО 70238424.27.060.01.001-2009СТО 70238424.27.060.01.001-2009СТО 70238424.27.060.01.001-2009СТО 70238424.27.060.01.001-2009СТО 70238424.27.060.01.001-2009СТО 70238424.27.060.01.001-2009СТО 70238424.27.060.01.001-2009СТО 70238424.27.060.01.001-2009СТО 70238424.27.060.01.001-2009СТО 70238424.27.060.01.001-2009СТО 70238424.27.060.01.001-2009СТО 70238424.27.060.01.001-2009СТО 70238424.27.060.01.001-2009СТО 70238424.27.060.01.001-2009СТО 70238424.27.060.01.001-2009СТО 70238424.27.060.01.001-2009СТО 70238424.27.060.01.001-2009СТО 70238424.27.060.01.001-2009СТО 70238424.27.060.01.001-2009СТО 70238424.27.060.01.001-2009СТО 70238424.27.060.01.001-2009СТО 70238424.27.060.01.001-2009СТО 70238424.27.060.01.001-2009СТО 70238424.27.060.01.001-2009СТО 70238424.27.060.01.001-2009СТО 70238424.27.060.01.001-2009СТО 70238424.27.060.01.001-2009СТО 70238424.27.060.01.001-2009СТО 70238424.27.060.01.001-2009СТО 70238424.27.060.01.001-2009СТО 70238424.27.060.01.001-2009СТО 70238424.27.060.01.001-2009СТО 70238424.27.060.01.001-2009СТО 70238424.27.060.01.001-2009СТО 70238424.27.060.01.001-2009СТО 70238424.27.060.01.001-2009СТО 70238424.27.060.01.001-2009СТО 70238424.27.060.01.001-2009СТО 70238424.27.060.01.001-2009СТО 70238424.27.060.01.001-2009СТО 70238424.27.060.01.001-2009СТО 70238424.27.060.01.001-2009СТО 70238424.27.060.01.001-2009СТО 70238424.27.060.01.001-2009СТО 70238424.27.060.01.001-2009СТО 70238424.27.060.01.001-2009СТО 70238424.27.060.01.001-2009СТО 70238424.27.060.01.001-2009СТО 70238424.27.060.01.001-2009СТО 70238424.27.060.01.001-2009СТО 70238424.27.060.01.001-2009СТО 70238424.27.060.01.001-2009СТО 70238424.27.060.01.001-2009СТО 70238424.27.060.01.001-2009СТО 70238424.27.060.01.001-2009СТО 70238424.27.060.01.001-2009СТО 70238424.27.060.01.001-2009СТО 70238424.27.060.01.001-2009СТО 70238424.27.060.01.001-2009СТО 70238424.27.060.01.001-2009СТО 70238424.27.060.01.001-2009СТО 70238424.27.060.01.001-2009СТО 70238424.27.060.01.001-2009СТО 70238424.27.060.01.001-2009СТО 70238424.27.060.01.001-2009СТО 70238424.27.060.01.001-2009СТО 70238424.27.060.01.001-2009СТО 70238424.27.060.01.001-2009СТО 70238424.27.060.01.001-2009СТО 70238424.27.060.01.001-2009СТО 70238424.27.060.01.001-2009СТО 70238424.27.060.01.001-2009СТО 70238424.27.060.01.001-2009СТО 70238424.27.060.01.001-2009СТО 70238424.27.060.01.001-2009СТО 70238424.27.060.01.001-2009СТО 70238424.27.060.01.001-2009СТО 70238424.27.060.01.001-2009СТО 70238424.27.060.01.001-2009СТО 70238424.27.060.01.001-2009СТО 70238424.27.060.01.001-2009СТО 70238424.27.060.01.001-2009СТО 70238424.27.060.01.001-2009СТО 70238424.27.060.01.001-2009

© 2013 Ёшкин Кот :-) Карта сайта