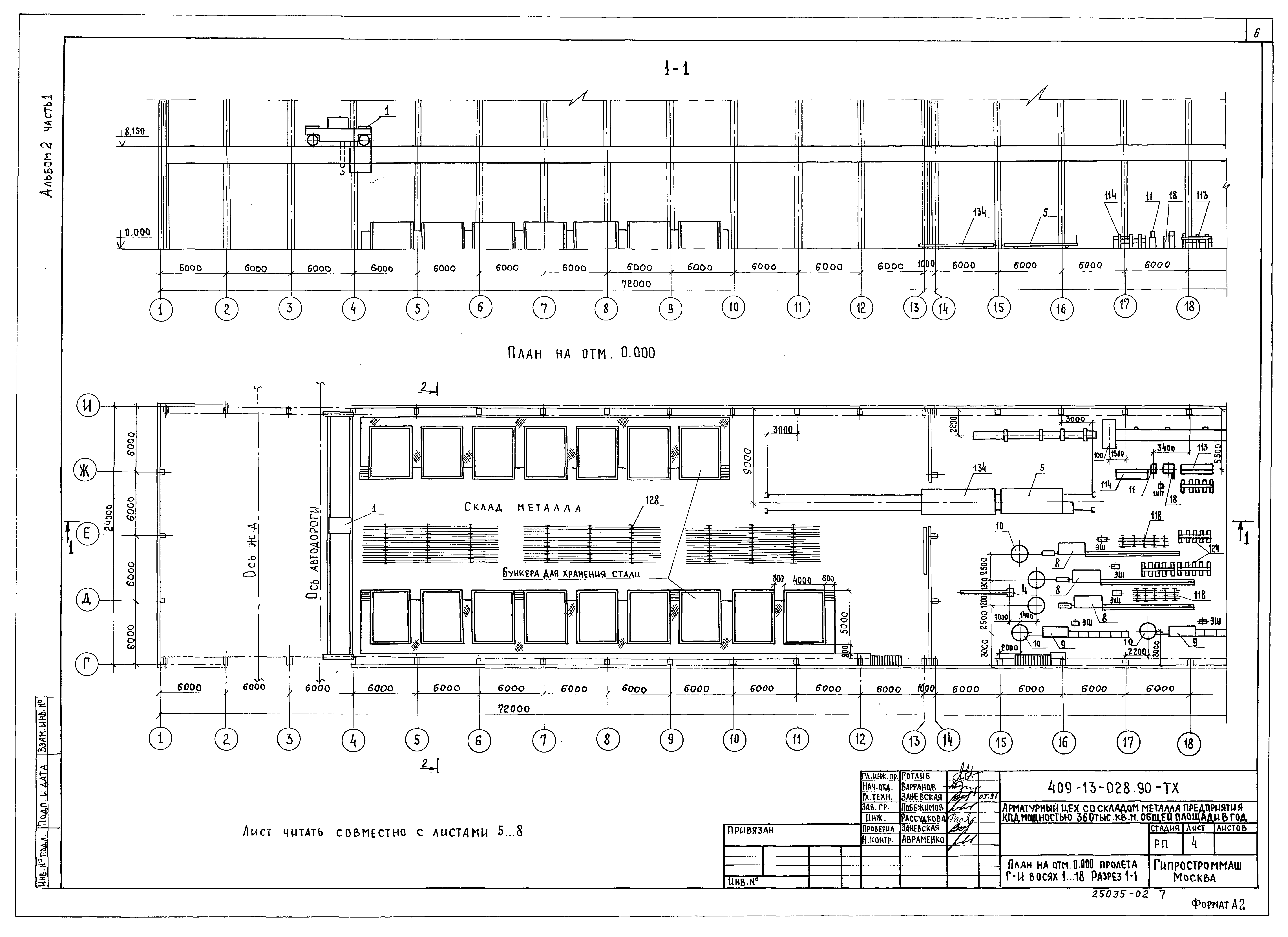
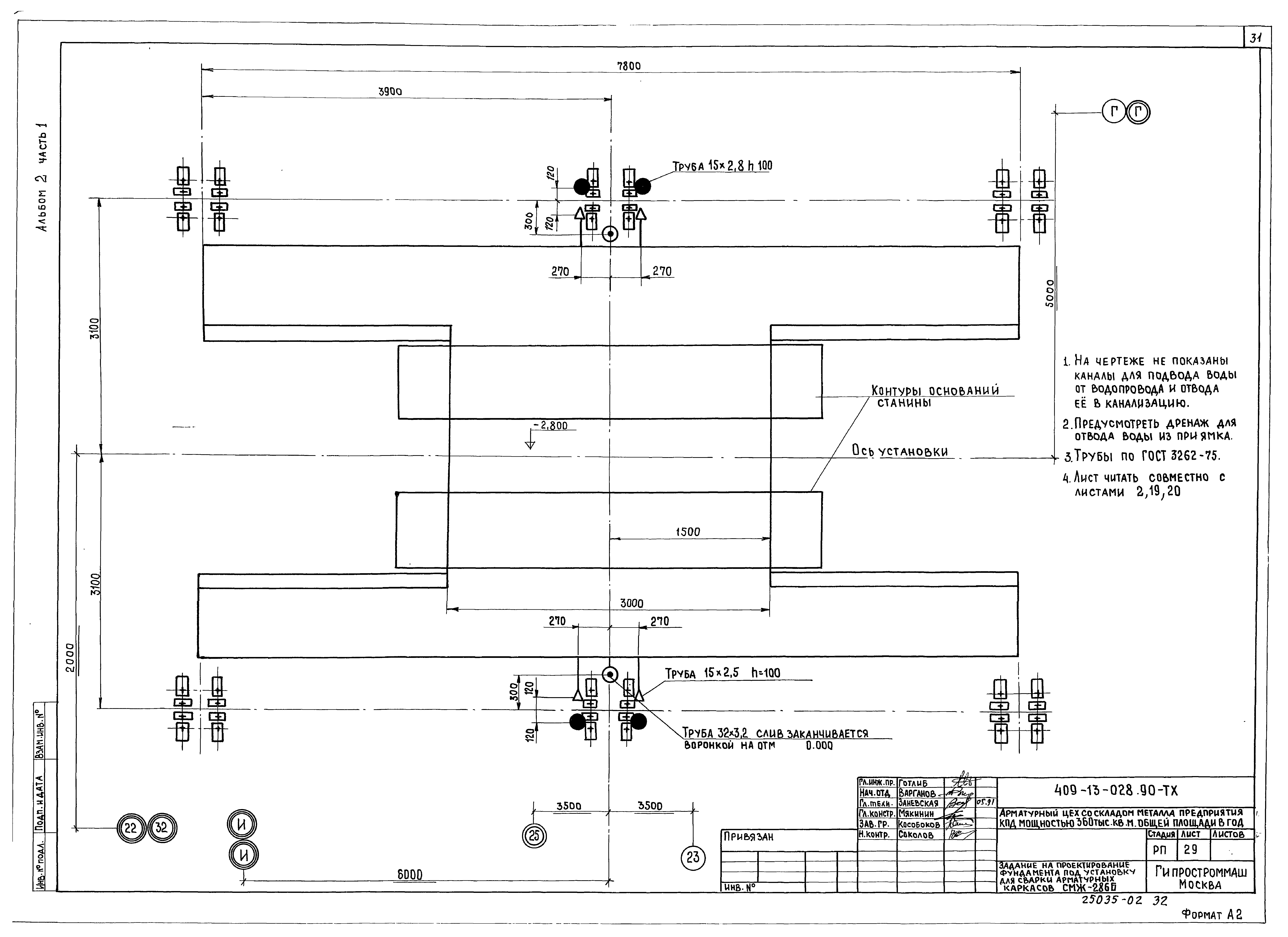
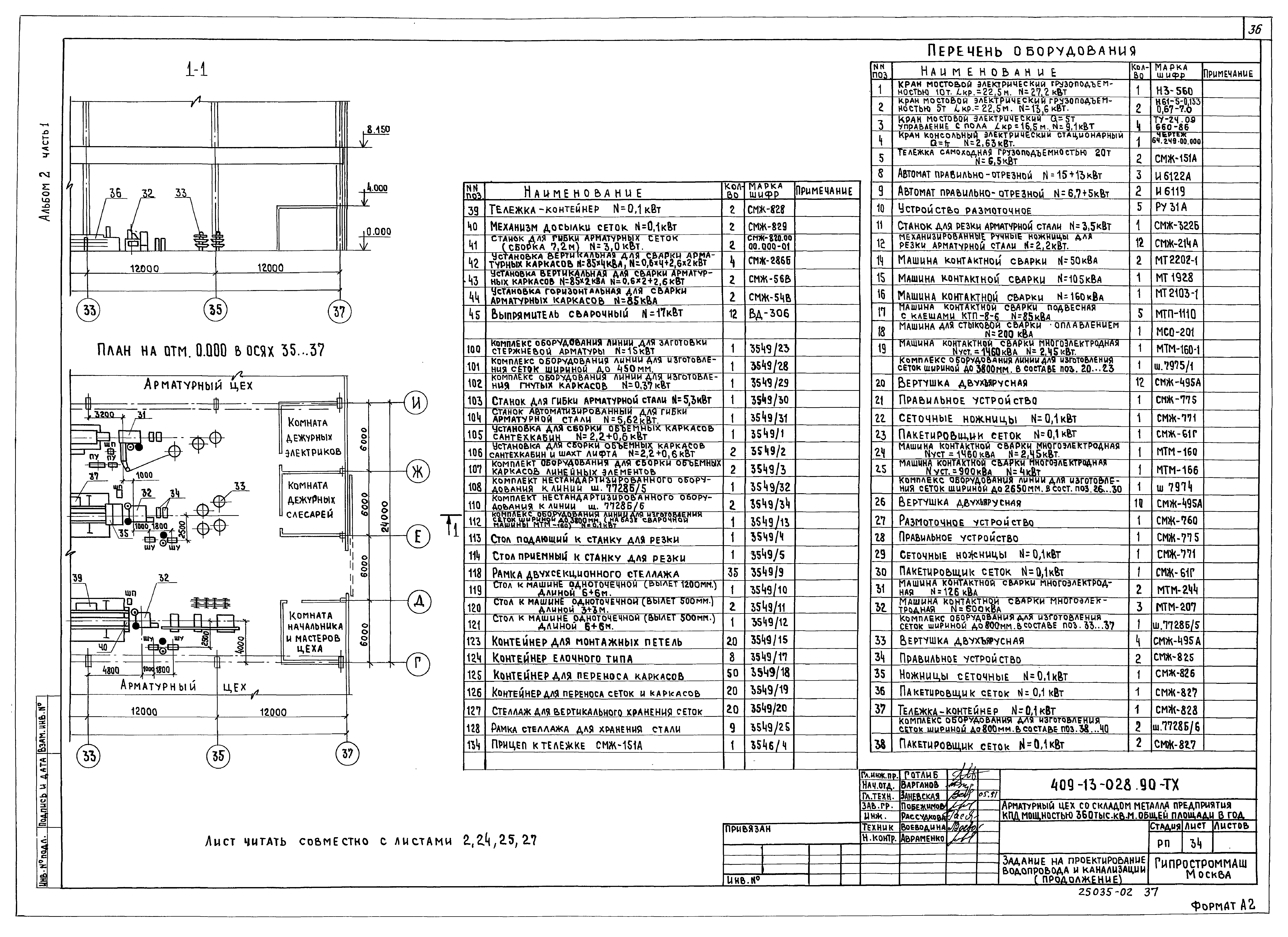
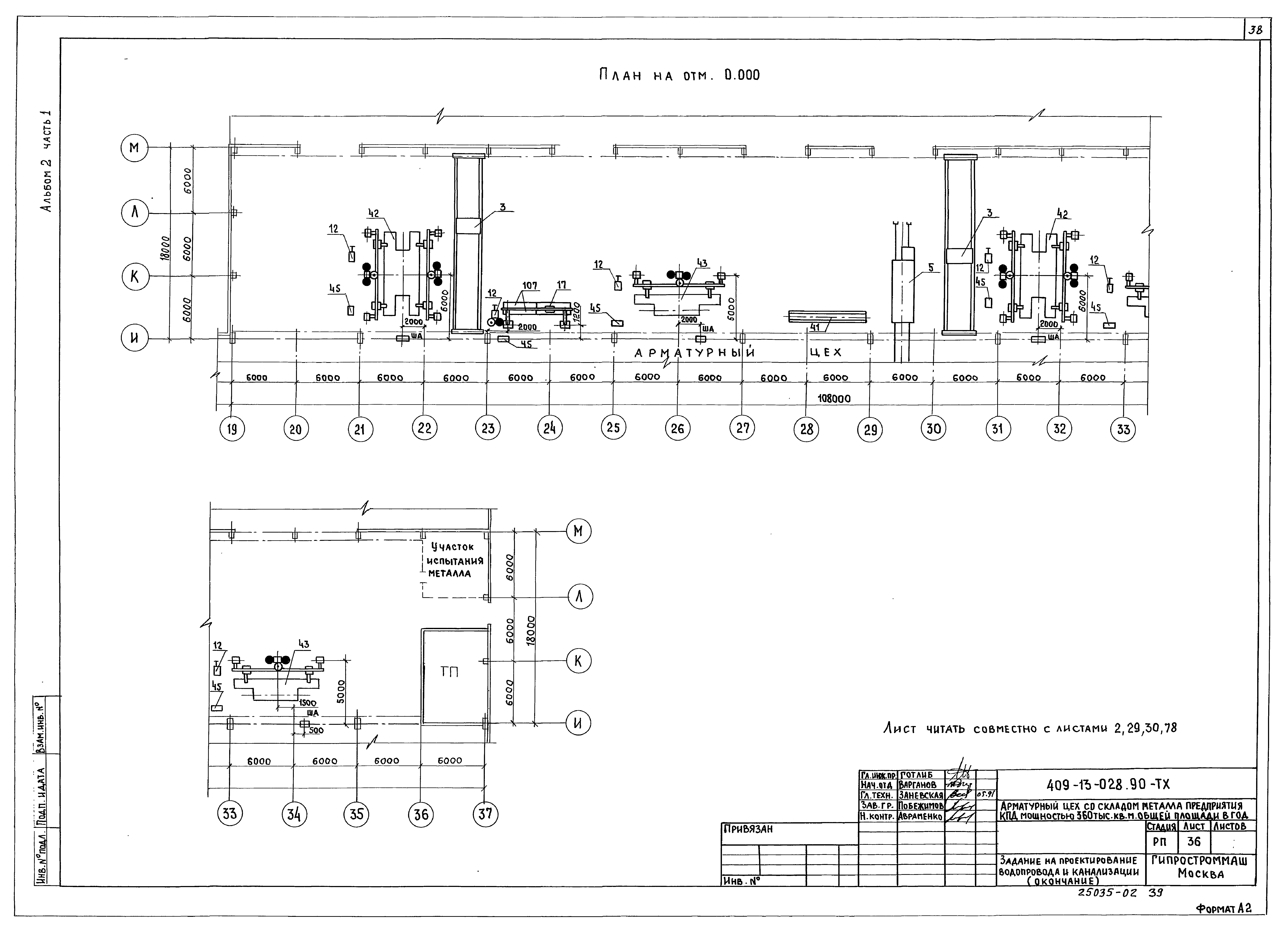
Скачать Типовые проектные решения 409-13-028.90 Альбом 2. Часть 1. Технология производстваДата актуализации: 10.08.2017 Типовые проектные решения 409-13-028.90
Альбом 2. Часть 1. Технология производства| Обозначение: | Типовые проектные решения 409-13-028.90 | | Обозначение англ: | 409-13-028.90 | | Статус: | cправочные материалы, мп, тпр | | Название рус.: | Альбом 2. Часть 1. Технология производства | | Дата добавления в базу: | 01.09.2013 | | Дата актуализации: | 05.05.2017 | | Дата введения: | 01.04.1991 | | Разработан: | Гипростроммаш
| | Утверждён: | 01.04.1991 Гипростроммаш (36)
| | Расположен в: |
|
                                                 
|