Информационная система
«Ёшкин Кот»

Скачать базу одним архивом
Скачать обновления
История создания базы
Карта сайта

Скачать Типовой проект 125-050/1,2 Часть 01. Раздел 01-1. Архитектурно-строительные чертежи ниже отм. 0.000. Здания с ленточными фундаментами

Дата актуализации: 10.08.2017

Типовой проект 125-050/1,2

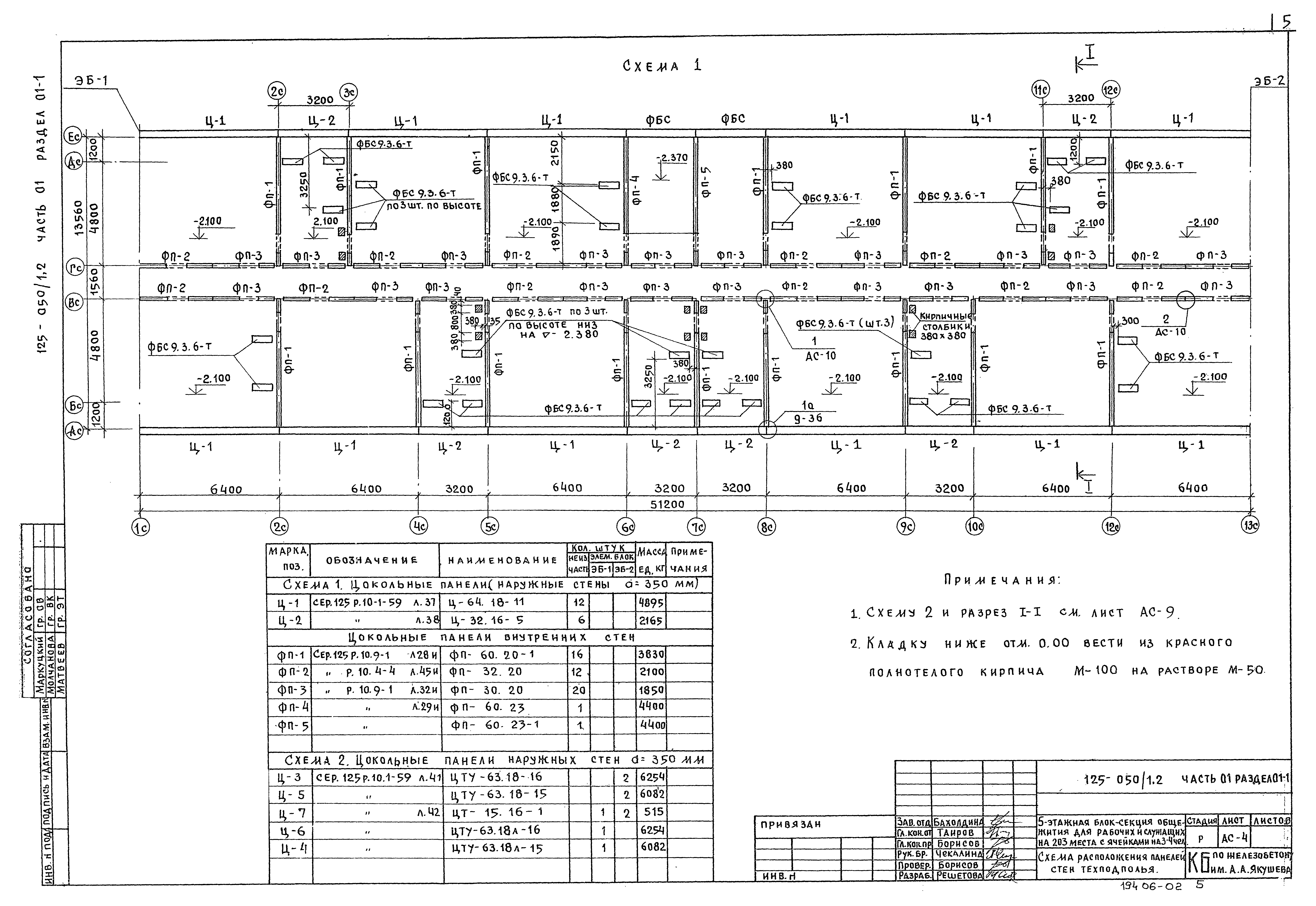
Часть 01. Раздел 01-1. Архитектурно-строительные чертежи ниже отм. 0.000. Здания с ленточными фундаментами

Обозначение: Типовой проект 125-050/1,2
Обозначение англ: 125-050/1,2
Статус:не определен законодательством
Название рус.:Часть 01. Раздел 01-1. Архитектурно-строительные чертежи ниже отм. 0.000. Здания с ленточными фундаментами
Дата добавления в базу:01.09.2013
Дата актуализации:05.05.2017
Дата введения:25.10.1983
Оглавление:Общие данные
Схемы нагрузок на отм. - 0.300 и - 2.400
Схема расположения панелей стен технического подполья
Развертки стен техподполья
Схема расположения фундаментов
Сечения фундаментов
Схема расположения фундаментов на элементы блокировки
Элементы блокировки. План лестничной клетки. Разрезы I-I, II-II
Вход в техподполье. Разрезы III-III; IV-IV
Схема расположения панелей перекрытия над техподпольем
Спецификация железобетонных изделий ниже отм. 0.000 на неизменяемую часть
Спецификация железобетонных изделий ниже отм. 0.000 на элементы блокировки
Спецификация металлических элементов ниже отм. 0.000
Разработан: КБ по железобетону им. А.А. Якушева
Утверждён:19.11.1978 Госстрой РСФСР (Russian Federation Gosstroy 8-23)
Расположен в:Техническая документация Строительство Справочные документы Типовые строительные конструкции, изделия и узлы Общероссийский строительный каталог Жилые здания для строительства в городах и поселках городского типа Обычные условия Общежития Серия 125
Типовой проект 125-050/1,2Типовой проект 125-050/1,2Типовой проект 125-050/1,2Типовой проект 125-050/1,2Типовой проект 125-050/1,2Типовой проект 125-050/1,2Типовой проект 125-050/1,2Типовой проект 125-050/1,2Типовой проект 125-050/1,2Типовой проект 125-050/1,2Типовой проект 125-050/1,2Типовой проект 125-050/1,2Типовой проект 125-050/1,2Типовой проект 125-050/1,2Типовой проект 125-050/1,2

© 2013 Ёшкин Кот :-) Карта сайта