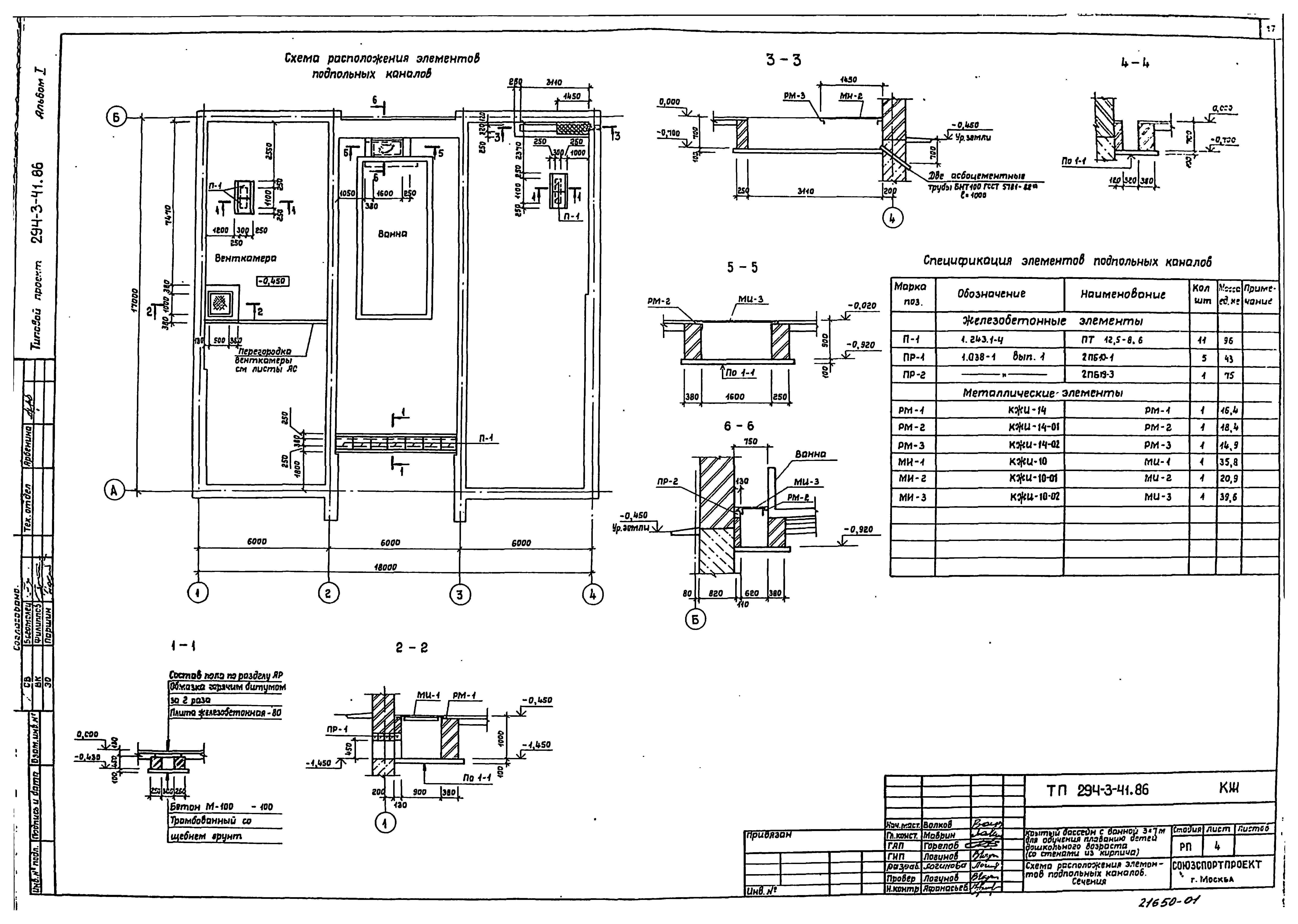
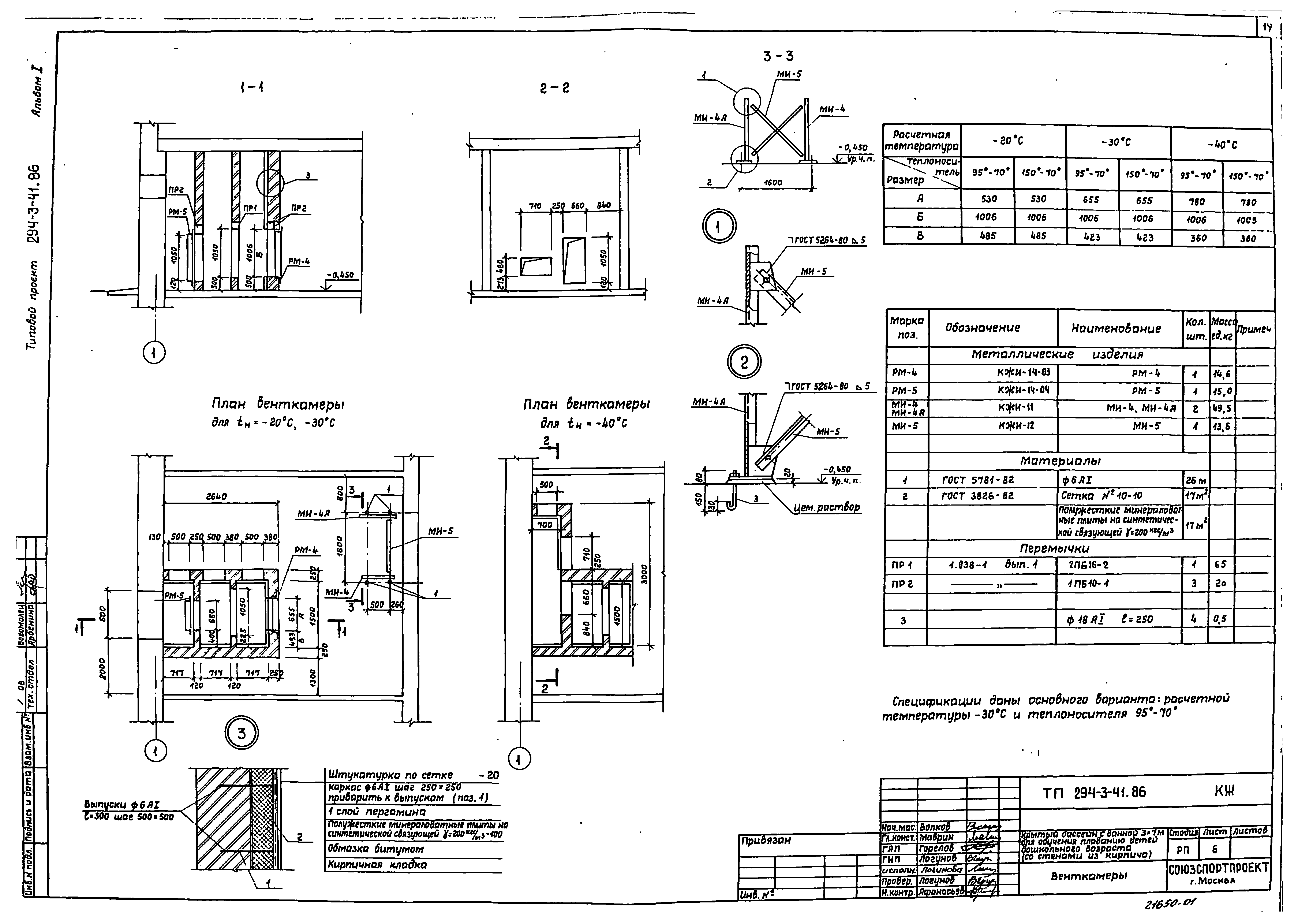
Скачать Типовой проект 294-3-41.86 Альбом I. Архитектурно-строительная и технологическая части, санитарно-техническая и электротехническая части, связь и сигнализация, автоматизация сантехустройствДата актуализации: 10.08.2017 Типовой проект 294-3-41.86
Альбом I. Архитектурно-строительная и технологическая части, санитарно-техническая и электротехническая части, связь и сигнализация, автоматизация сантехустройствОбозначение: | Типовой проект 294-3-41.86 | Обозначение англ: | 294-3-41.86 | Статус: | не определен законодательством | Название рус.: | Альбом I. Архитектурно-строительная и технологическая части, санитарно-техническая и электротехническая части, связь и сигнализация, автоматизация сантехустройств | Дата добавления в базу: | 01.09.2013 | Дата актуализации: | 05.05.2017 | Дата введения: | 10.09.1986 | Разработан: | Союзспортпроект Спорткомитета СССР
| Утверждён: | 20.03.1986 Госгражданстрой (Gosgrazhdanstroy 98)
| Расположен в: |
|
                                                       
|