Информационная система
«Ёшкин Кот»

Скачать базу одним архивом
Скачать обновления
История создания базы
Карта сайта

Скачать Типовой проект 274-20-144.85 Альбом I. Архитектурно-строительные решения. Витражи. Технология и механизация. Отопление и вентиляция. Водопровод и канализация. Холодоснабжение. Электроосвещение и силовое электрооборудование. Автоматизация устройств инженерного оборудования. Связь и сигнализация

Дата актуализации: 10.08.2017

Типовой проект 274-20-144.85

Альбом I. Архитектурно-строительные решения. Витражи. Технология и механизация. Отопление и вентиляция. Водопровод и канализация. Холодоснабжение. Электроосвещение и силовое электрооборудование. Автоматизация устройств инженерного оборудования. Связь и сигнализация

Обозначение: Типовой проект 274-20-144.85
Обозначение англ: 274-20-144.85
Статус:не определен законодательством
Название рус.:Альбом I. Архитектурно-строительные решения. Витражи. Технология и механизация. Отопление и вентиляция. Водопровод и канализация. Холодоснабжение. Электроосвещение и силовое электрооборудование. Автоматизация устройств инженерного оборудования. Связь и сигнализация
Дата добавления в базу:01.09.2013
Дата актуализации:05.05.2017
Дата введения:08.10.1985
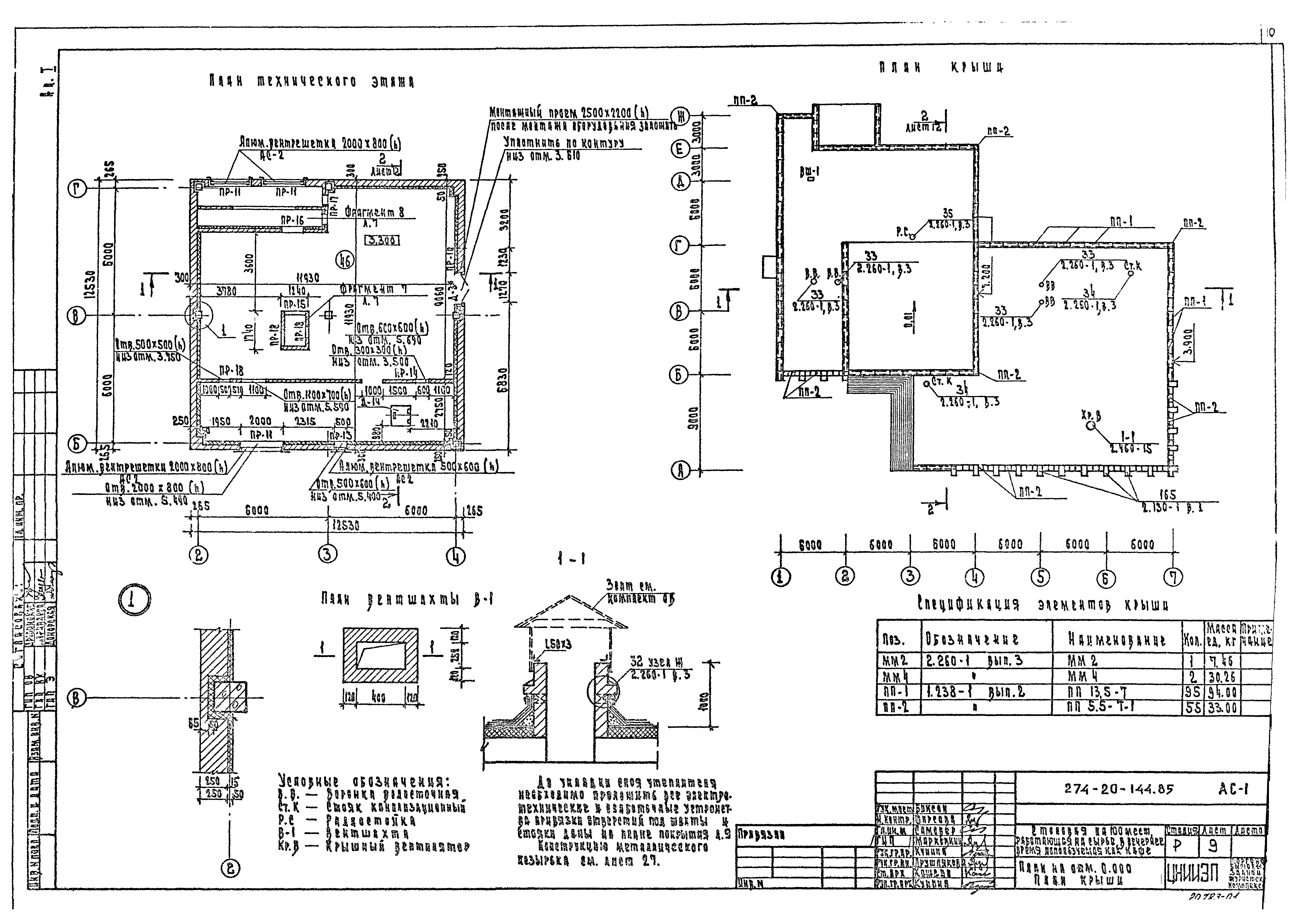
Оглавление:Чертежи основного комплекта марки АС1
   Общие данные
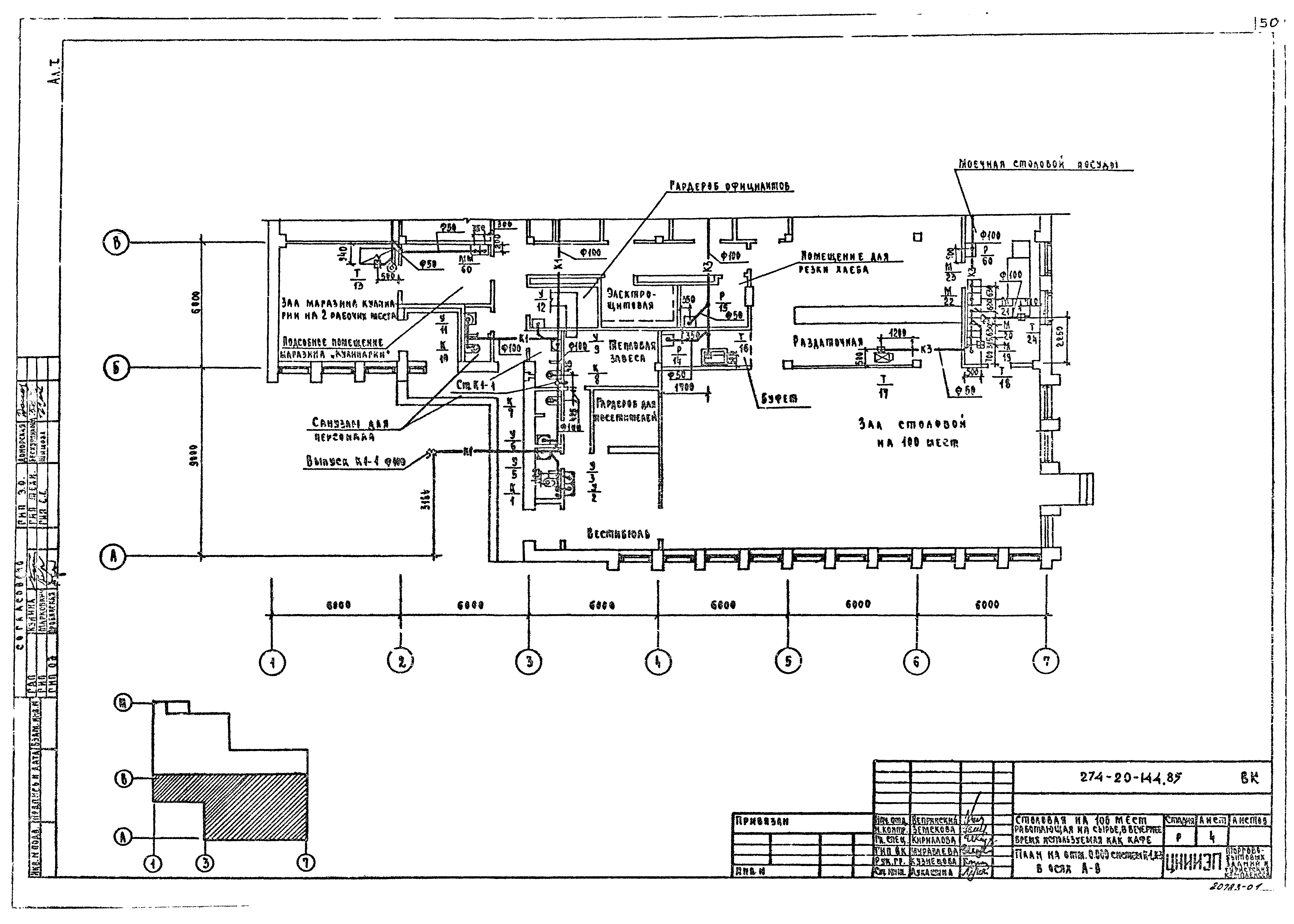
   План на отм. 0.000 в осях А - В
   План на отм. 0.000 в осях В - Ж
   Фрагменты плана
   Охлаждаемые камеры в осях 1 - 2
   План на отм. 3.300. План крыши
   Фасад 1 - 7. Фасад 7 - 1
   Фасад А - Ж. Фасад Ж - А
   Разрез 1-1, разрез 2-2, разрез 3-3
   Вариант расстановки оборудования в зале столовой
   Схема нагрузок на фундаменты
   План фундаментов и подпольных каналов в осях А - В
   План фундаментов и подпольных каналов в осях В - Ж. Сечения 13-13 - 15-15
   Сечения фундаментов и подпольных каналов
   Монтажные схемы каркаса
   Развертки каркаса по осям Б, В, Г, Д, 2, 4
   Схема перемычек и отверстий в осях А - В
   Схема перемычек и отверстий в осях В - Ж
   Ведомость перемычек
   Спецификация перемычек, элементов плана
   План перекрытия и покрытия в осях А - В
   План перекрытия и покрытия в осях В - Ж
   Сечения 1-1 - 5-5. Спецификация элементов покрытия и перекрытия
   Схема козырька
   Разбивка закладных деталей для крепления витражей, окон и дверей
Чертежи основного комплекта марки АС2
   Общие данные
   Спецификация элементов. Монтажные узлы 1, 2
   Оконные блоки и тамбуры в осях 1 - 7. План. Сечения
Чертежи основного комплекта марки ТХМ
   Общие данные
   План на отм. 0.000 в осях А - В
   План на отм. 0.000 в осях В - Ж
   Подъемный стол ПС-500. Установочный чертеж
Чертежи основного комплекта марки ОВ
   Общие данные
   План на отм. 0.000 в осях А - В
   План на отм. 0.000 в осях В - Ж
   Схема системы отопления
   Схема системы теплоснабжения установок П1, П2, У1. Узел управления
   Схемы систем П1 - П4, У1, В1 - В5, ВЕ1, ВЕ2
   Установки систем П1, П2, У1, ВЕ1 - ВЕ5. Планы. Разрезы
   Установки систем П1, П2, У1, ВЕ1 - ВЕ5. Спецификация
   Конструкция тепловой изоляции
Чертежи основного комплекта марки ВК
   Общие данные
   План на отм. 0.000 систем В1, Т3 в осях А - В. Воронка
   План на отм. 0.000 систем В1, Т3 в осях В - Ж
   План на отм. 0.000 систем К1, К3 в осях А - В
   План на отм. 0.000 систем К1, К2, К3 в осях В - Ж. Гидрозатвор
   Схема систем В1, Т3
   Схема систем К1, К2, К3
Чертежи основного комплекта марки ХС
   Общие данные
   План охлаждаемых камер. Разрезы 1-1, 2-2
   Схемы хладоновых трубопроводов
Чертежи основного комплекта марки ЭОМ
   Общие данные
   Схема питающих сетей
   План осветительных сетей на отм. 0.000
   План силовых и питающих сетей на отм. 0.000
   План осветительных силовых и питающих сетей технического этажа на отм. 3.300
   Расчетная схема ЩС1, ЩС2, ЩС3
   Опросный лист
Чертежи основного комплекта марки АУ
   Общие данные
   Приточная система П1. Схема автоматизации
   Приточная система П1. Схема электрическая принципиальная
   Приточная система П1. Схема соединений внешних проводок
   Приточная система П2. Схема автоматизации и электрическая принципиальная
   Приточная система П2. Схема соединений внешних проводок
   Завесы У1. Схемы автоматизации, электрическая принципиальная, соединений внешних проводок
   Приточные системы П1, П2. Завеса У1. План расположения
   Узел присоединения калориферов. Схемы автоматизации и соединений внешних проводок, план расположения
   Холодильные машины Х1, Х2 для камер. Схема соединений внешних проводок
   Холодильные машины Х1, Х2 для камер. План расположения
Чертежи основного комплекта марки СС
   Общие данные
   Схемы. Экспликация помещений
   План на отм. 0.000 в осях Б - Е
Разработан: ЦНИИЭП торгово-бытовых зданий и туристских комплексов
Утверждён:06.03.1968 Госгражданстрой (Gosgrazhdanstroy 43)
Расположен в:Техническая документация Строительство Справочные документы Типовые строительные конструкции, изделия и узлы Общероссийский строительный каталог Общественные здания в городах и поселках городского типа Предприятия торговли и общественного питания. Общественные центры Предприятия общественного питания Столовые
Типовой проект 274-20-144.85Типовой проект 274-20-144.85Типовой проект 274-20-144.85Типовой проект 274-20-144.85Типовой проект 274-20-144.85Типовой проект 274-20-144.85Типовой проект 274-20-144.85Типовой проект 274-20-144.85Типовой проект 274-20-144.85Типовой проект 274-20-144.85Типовой проект 274-20-144.85Типовой проект 274-20-144.85Типовой проект 274-20-144.85Типовой проект 274-20-144.85Типовой проект 274-20-144.85Типовой проект 274-20-144.85Типовой проект 274-20-144.85Типовой проект 274-20-144.85Типовой проект 274-20-144.85Типовой проект 274-20-144.85Типовой проект 274-20-144.85Типовой проект 274-20-144.85Типовой проект 274-20-144.85Типовой проект 274-20-144.85Типовой проект 274-20-144.85Типовой проект 274-20-144.85Типовой проект 274-20-144.85Типовой проект 274-20-144.85Типовой проект 274-20-144.85Типовой проект 274-20-144.85Типовой проект 274-20-144.85Типовой проект 274-20-144.85Типовой проект 274-20-144.85Типовой проект 274-20-144.85Типовой проект 274-20-144.85Типовой проект 274-20-144.85Типовой проект 274-20-144.85Типовой проект 274-20-144.85Типовой проект 274-20-144.85Типовой проект 274-20-144.85Типовой проект 274-20-144.85Типовой проект 274-20-144.85Типовой проект 274-20-144.85Типовой проект 274-20-144.85Типовой проект 274-20-144.85Типовой проект 274-20-144.85Типовой проект 274-20-144.85Типовой проект 274-20-144.85Типовой проект 274-20-144.85Типовой проект 274-20-144.85Типовой проект 274-20-144.85Типовой проект 274-20-144.85Типовой проект 274-20-144.85Типовой проект 274-20-144.85Типовой проект 274-20-144.85Типовой проект 274-20-144.85Типовой проект 274-20-144.85Типовой проект 274-20-144.85Типовой проект 274-20-144.85Типовой проект 274-20-144.85Типовой проект 274-20-144.85Типовой проект 274-20-144.85Типовой проект 274-20-144.85Типовой проект 274-20-144.85Типовой проект 274-20-144.85Типовой проект 274-20-144.85Типовой проект 274-20-144.85Типовой проект 274-20-144.85Типовой проект 274-20-144.85Типовой проект 274-20-144.85Типовой проект 274-20-144.85Типовой проект 274-20-144.85Типовой проект 274-20-144.85Типовой проект 274-20-144.85Типовой проект 274-20-144.85Типовой проект 274-20-144.85Типовой проект 274-20-144.85Типовой проект 274-20-144.85Типовой проект 274-20-144.85

© 2013 Ёшкин Кот :-) Карта сайта