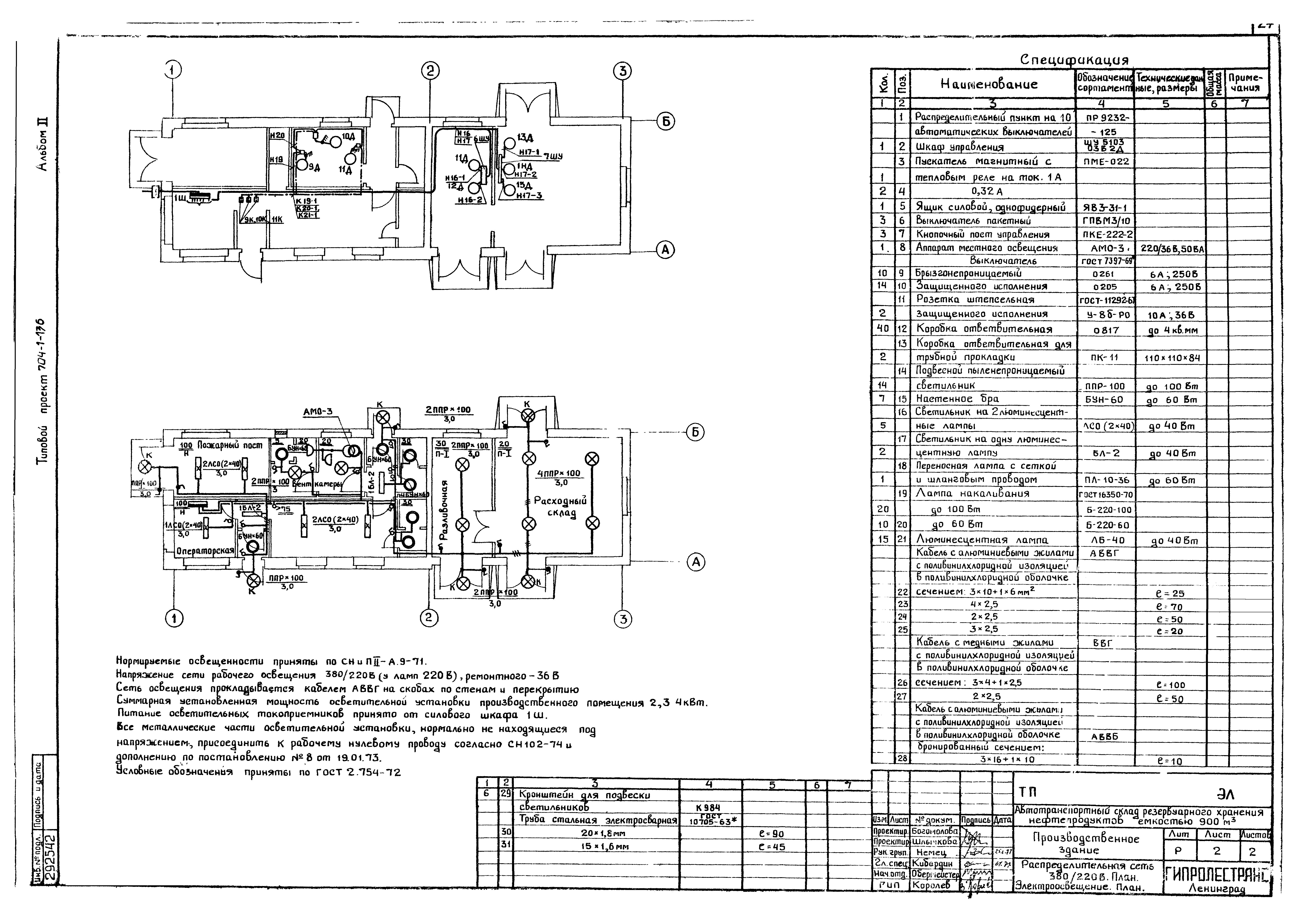
Скачать Типовой проект 704-1-136 Альбом II. Производственное здание. ЧертежиДата актуализации: 10.08.2017 Типовой проект 704-1-136
Альбом II. Производственное здание. ЧертежиОбозначение: | Типовой проект 704-1-136 | Обозначение англ: | 704-1-136 | Статус: | действует | Название рус.: | Альбом II. Производственное здание. Чертежи | Дата добавления в базу: | 01.09.2013 | Дата актуализации: | 05.05.2017 | Разработан: | Гипролестранс
| Утверждён: | 03.12.1976 Минлеспром СССР (USSR Minlesprom 113)
| Расположен в: |
|
                                        
|