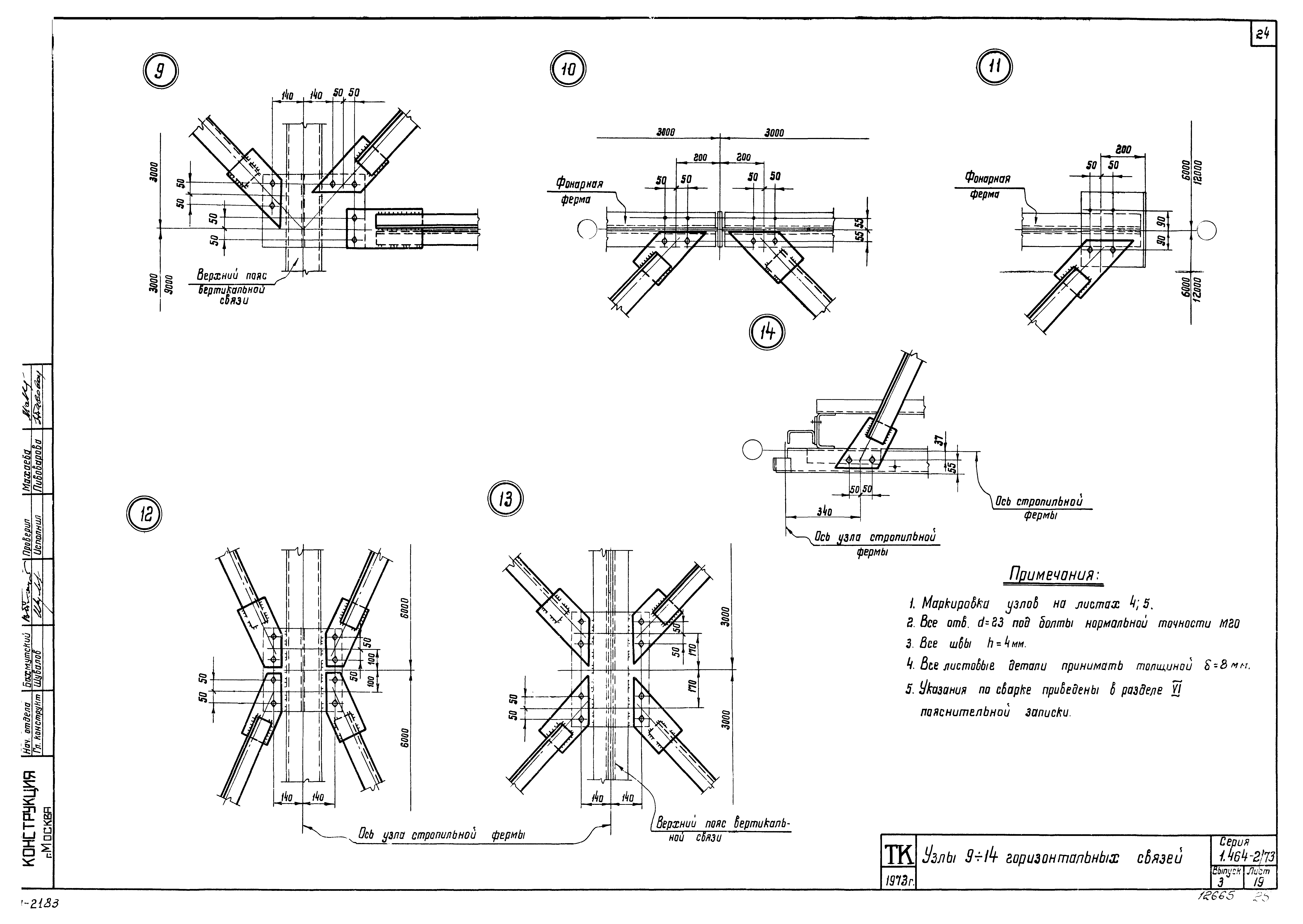
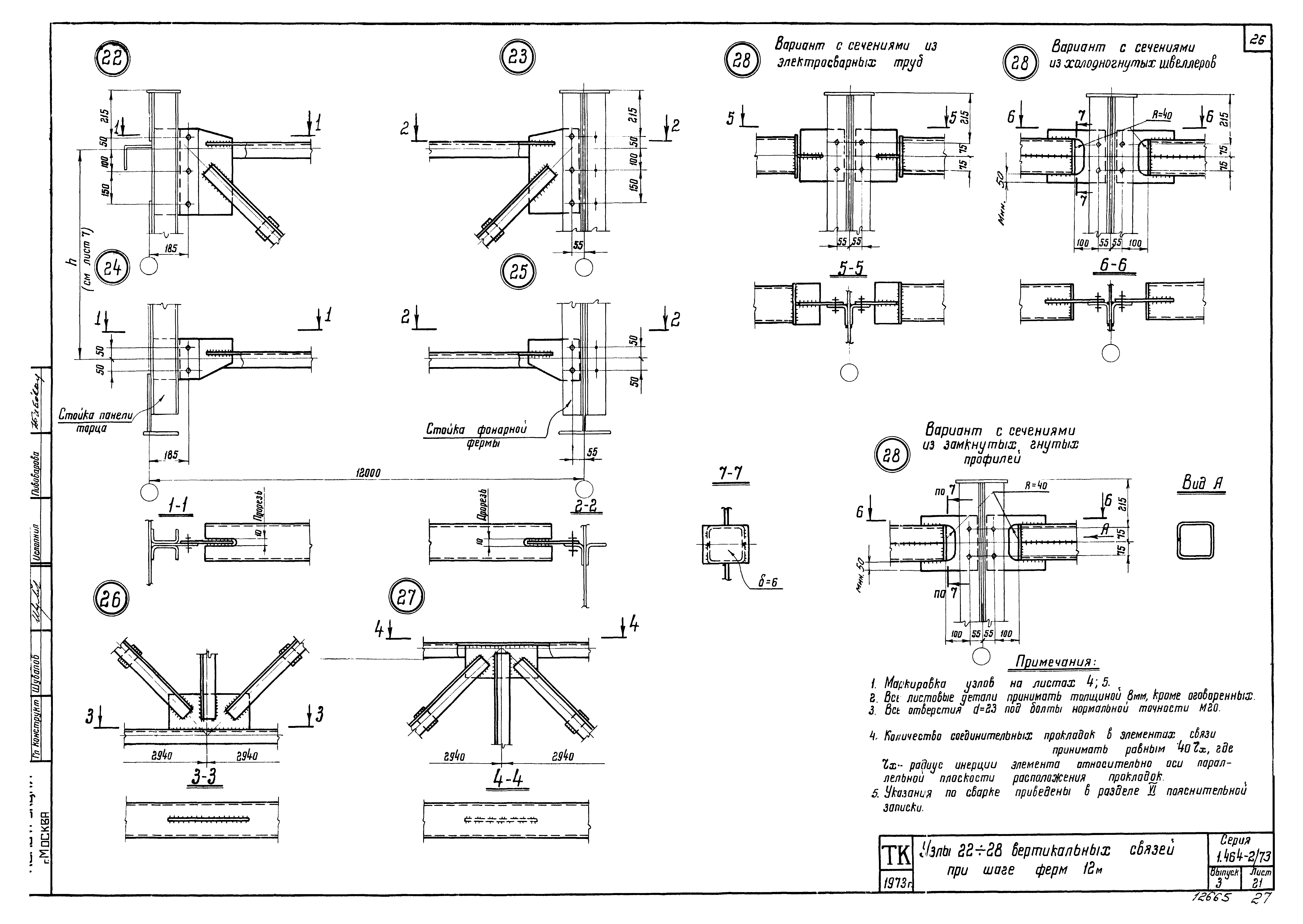
Скачать Серия 1.464-2/73 Выпуск 3. Фонари из холодногнутых профилей с применением в покрытии железобетонных плит для зданий, возводимых в несейсмических районах. Чертежи КМДата актуализации: 10.08.2017 Серия 1.464-2/73
Выпуск 3. Фонари из холодногнутых профилей с применением в покрытии железобетонных плит для зданий, возводимых в несейсмических районах. Чертежи КМ| Обозначение: | Серия 1.464-2/73 | | Обозначение англ: | Series 1.464-2/73 | | Статус: | не действует | | Название рус.: | Выпуск 3. Фонари из холодногнутых профилей с применением в покрытии железобетонных плит для зданий, возводимых в несейсмических районах. Чертежи КМ | | Дата добавления в базу: | 01.09.2013 | | Дата актуализации: | 05.05.2017 | | Дата введения: | 01.05.1974 | | Дата окончания срока действия: | 01.11.1976 | | Разработан: | ЦНИИпроектстальконструкция
| | Утверждён: | 31.01.1974 Госстрой СССР (Государственный комитет Совета Министров СССР по делам строительства) (USSR Gosstroy 9)
| | Расположен в: |
| | Чем заменён: | |
                            
|