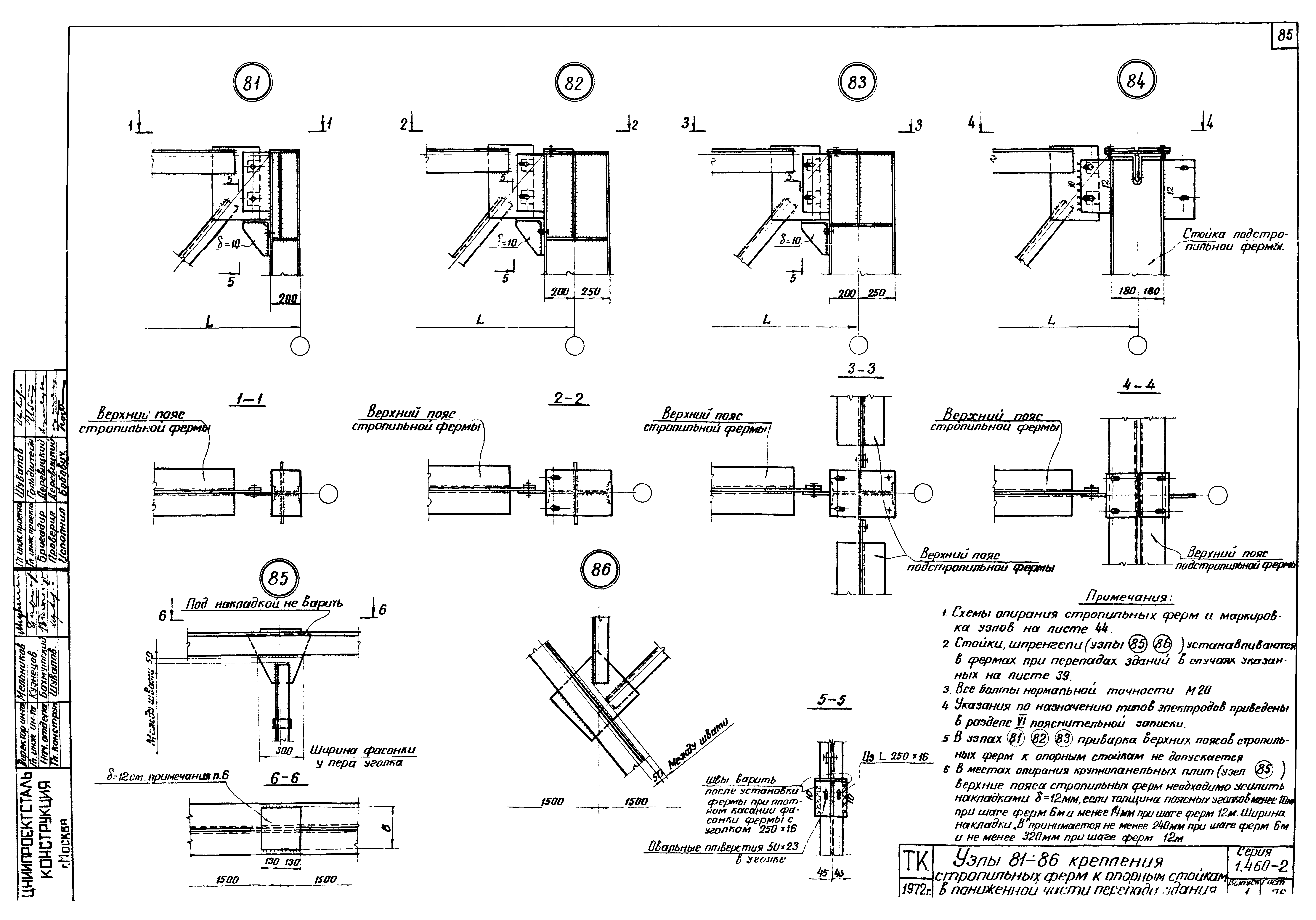
Скачать Серия 1.460-2 Выпуск 1. Покрытия пролетами 18; 24; 30 и 36 м для зданий, возводимых в несейсмических районах с расчетными температурами выше минус 40 градусов Цельсия. Чертежи КМДата актуализации: 10.08.2017 Серия 1.460-2
Выпуск 1. Покрытия пролетами 18; 24; 30 и 36 м для зданий, возводимых в несейсмических районах с расчетными температурами выше минус 40 градусов Цельсия. Чертежи КМ| Обозначение: | Серия 1.460-2 | | Обозначение англ: | Series 1.460-2 | | Статус: | заменен | | Название рус.: | Выпуск 1. Покрытия пролетами 18; 24; 30 и 36 м для зданий, возводимых в несейсмических районах с расчетными температурами выше минус 40 градусов Цельсия. Чертежи КМ | | Дата добавления в базу: | 01.09.2013 | | Дата актуализации: | 05.05.2017 | | Дата введения: | 01.04.1981 | | Разработан: | ЦНИИпроектстальконструкция
| | Утверждён: | 20.02.1973 Госстрой СССР (Государственный комитет Совета Министров СССР по делам строительства) (USSR Gosstroy 27)
| | Расположен в: |
| | Чем заменён: | |
                                                                                                        
|