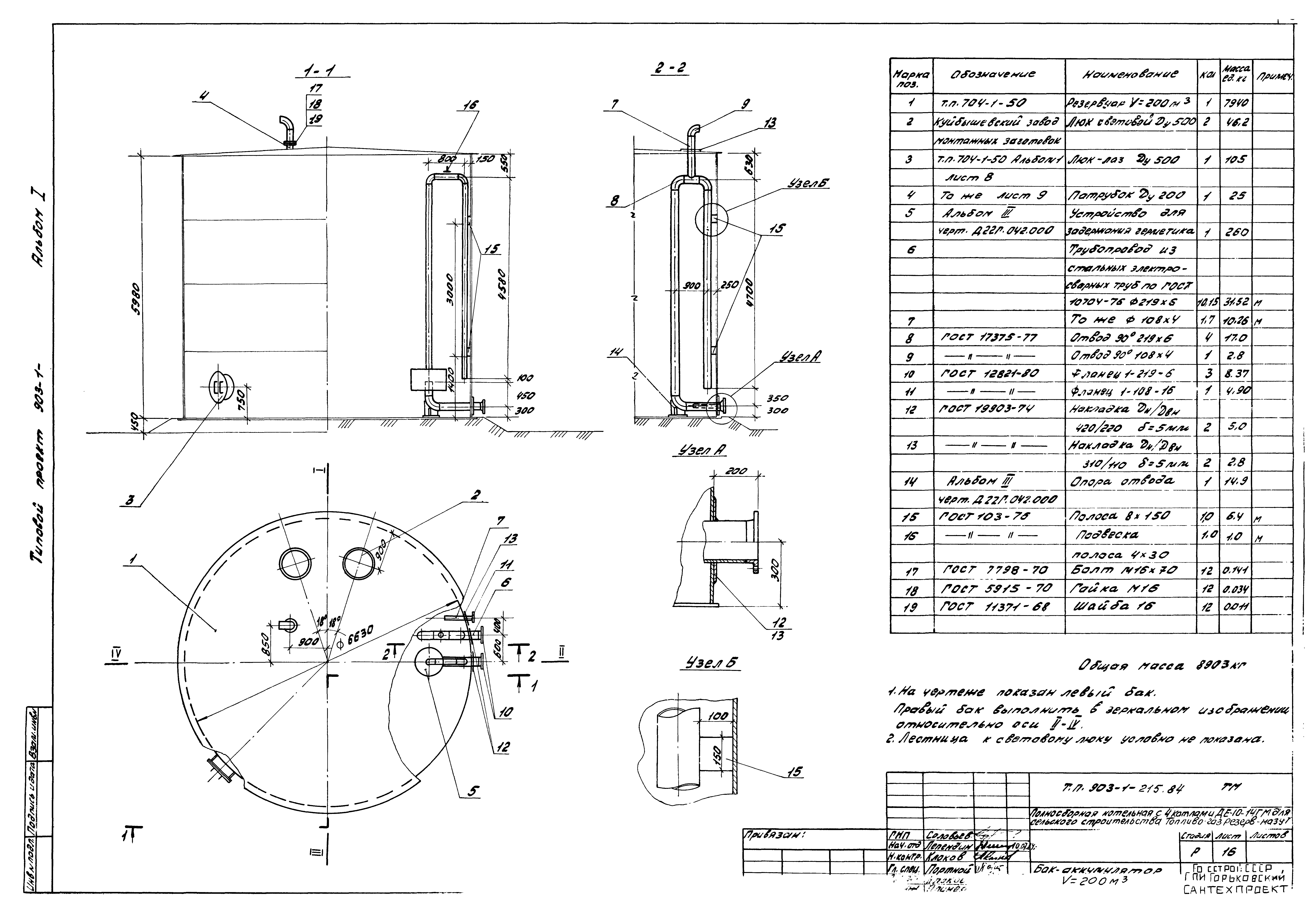
Скачать Типовой проект 903-1-215.84 Альбом I. Тепломеханическая часть. Сборочные чертежи котельной. Установка оборудования неблочного исполненияДата актуализации: 10.08.2017 Типовой проект 903-1-215.84
Альбом I. Тепломеханическая часть. Сборочные чертежи котельной. Установка оборудования неблочного исполненияОбозначение: | Типовой проект 903-1-215.84 | Обозначение англ: | 903-1-215.84 | Статус: | действует | Название рус.: | Альбом I. Тепломеханическая часть. Сборочные чертежи котельной. Установка оборудования неблочного исполнения | Дата добавления в базу: | 01.09.2013 | Дата актуализации: | 05.05.2017 | Разработан: | Горьковский Сантехпроект
| Утверждён: | 02.07.1984 Минсельхоз СССР (USSR Minselkhoz 51-3Г)
| Расположен в: |
|
                                          
|