Скачать Типовой проект 214-1-267.83 Альбом II. Отопление и вентиляция, водопровод и канализация, силовое электрооборудование и электроосвещение, связь и сигнализация, автоматика приточных системДата актуализации: 10.08.2017 Типовой проект 214-1-267.83
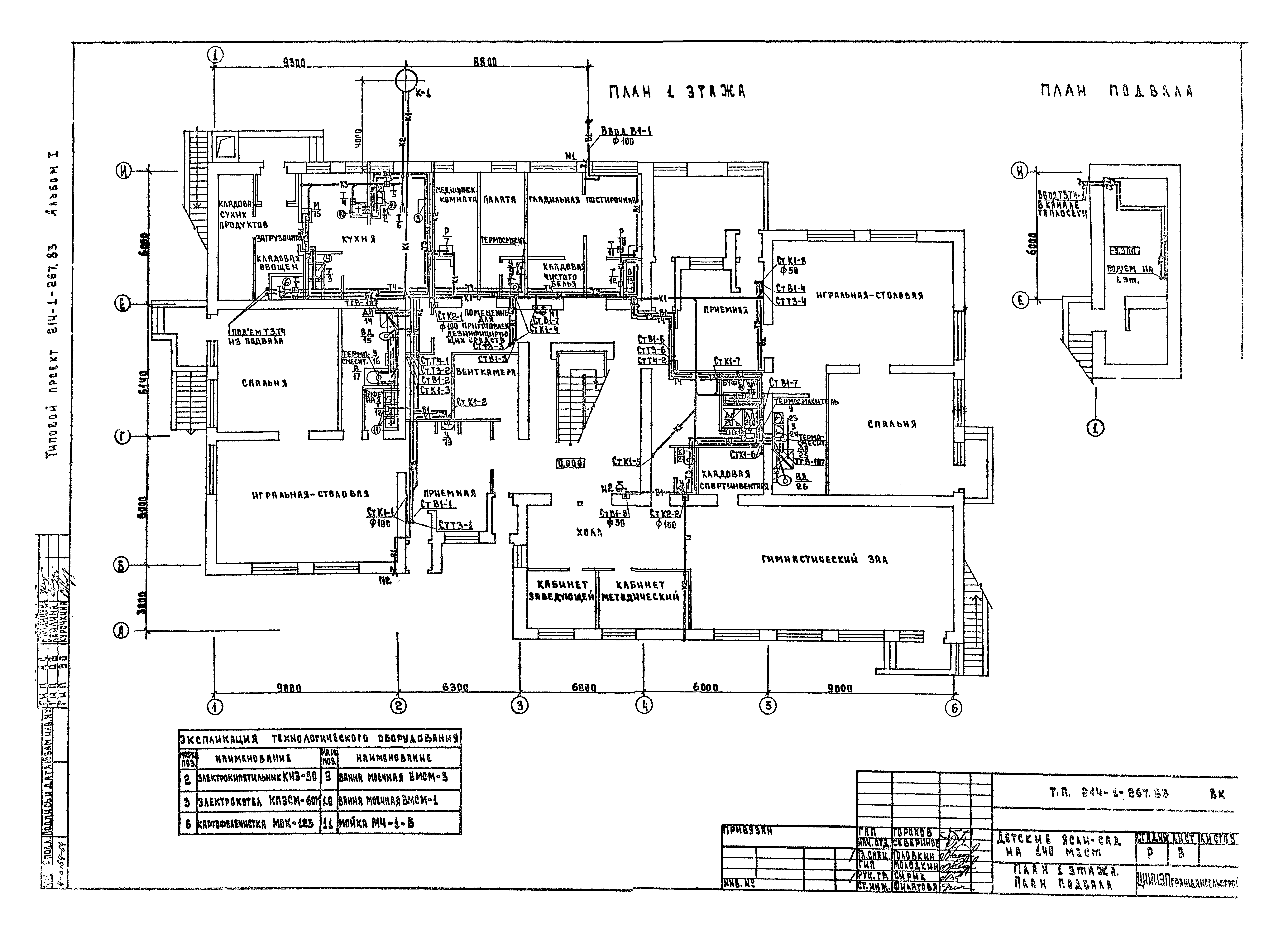
Альбом II. Отопление и вентиляция, водопровод и канализация, силовое электрооборудование и электроосвещение, связь и сигнализация, автоматика приточных системОбозначение: | Типовой проект 214-1-267.83 | Обозначение англ: | 214-1-267.83 | Статус: | не определен законодательством | Название рус.: | Альбом II. Отопление и вентиляция, водопровод и канализация, силовое электрооборудование и электроосвещение, связь и сигнализация, автоматика приточных систем | Дата добавления в базу: | 01.09.2013 | Дата актуализации: | 05.05.2017 | Дата введения: | 05.12.1984 | Разработан: | ЦНИИЭП граждансельстрой
| Утверждён: | 22.04.1983 Госгражданстрой (Gosgrazhdanstroy 118)
| Расположен в: |
|
                                           
|