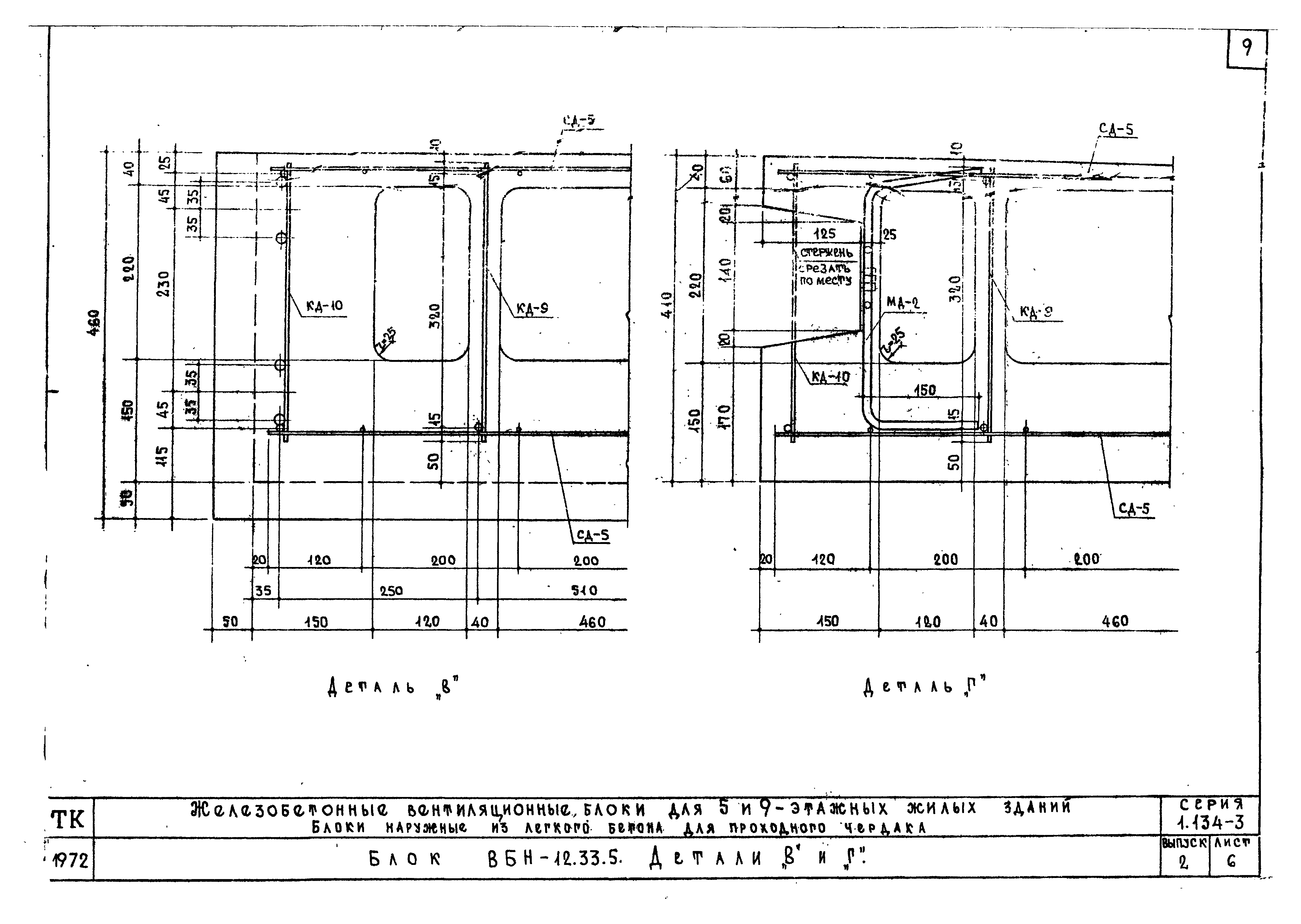
Скачать Серия 1.134-3 Выпуск 2. Блоки наружные из легкого бетона для проходного чердакаДата актуализации: 10.08.2017 Серия 1.134-3
Выпуск 2. Блоки наружные из легкого бетона для проходного чердака| Обозначение: | Серия 1.134-3 | | Обозначение англ: | Series 1.134-3 | | Статус: | действует | | Название рус.: | Выпуск 2. Блоки наружные из легкого бетона для проходного чердака | | Дата добавления в базу: | 01.09.2013 | | Дата актуализации: | 05.05.2017 | | Дата введения: | 15.11.1972 | | Разработан: | ЦНИИЭП жилища
| | Утверждён: | 11.08.1972 Государственный комитет по гражданскому строительству и архитектуре при Госстрое СССР (148)
| | Расположен в: |
|
                  
|