Скачать Типовой проект 503-6-9.86 Альбом I. Площадка АЗС. Пояснительная записка. Чертежи (генплан, технологические коммуникации, архитектурно-строительные решения, наружные сети водоснабжения и канализации, электроснабжение, автоматизация)Дата актуализации: 10.08.2017 Типовой проект 503-6-9.86
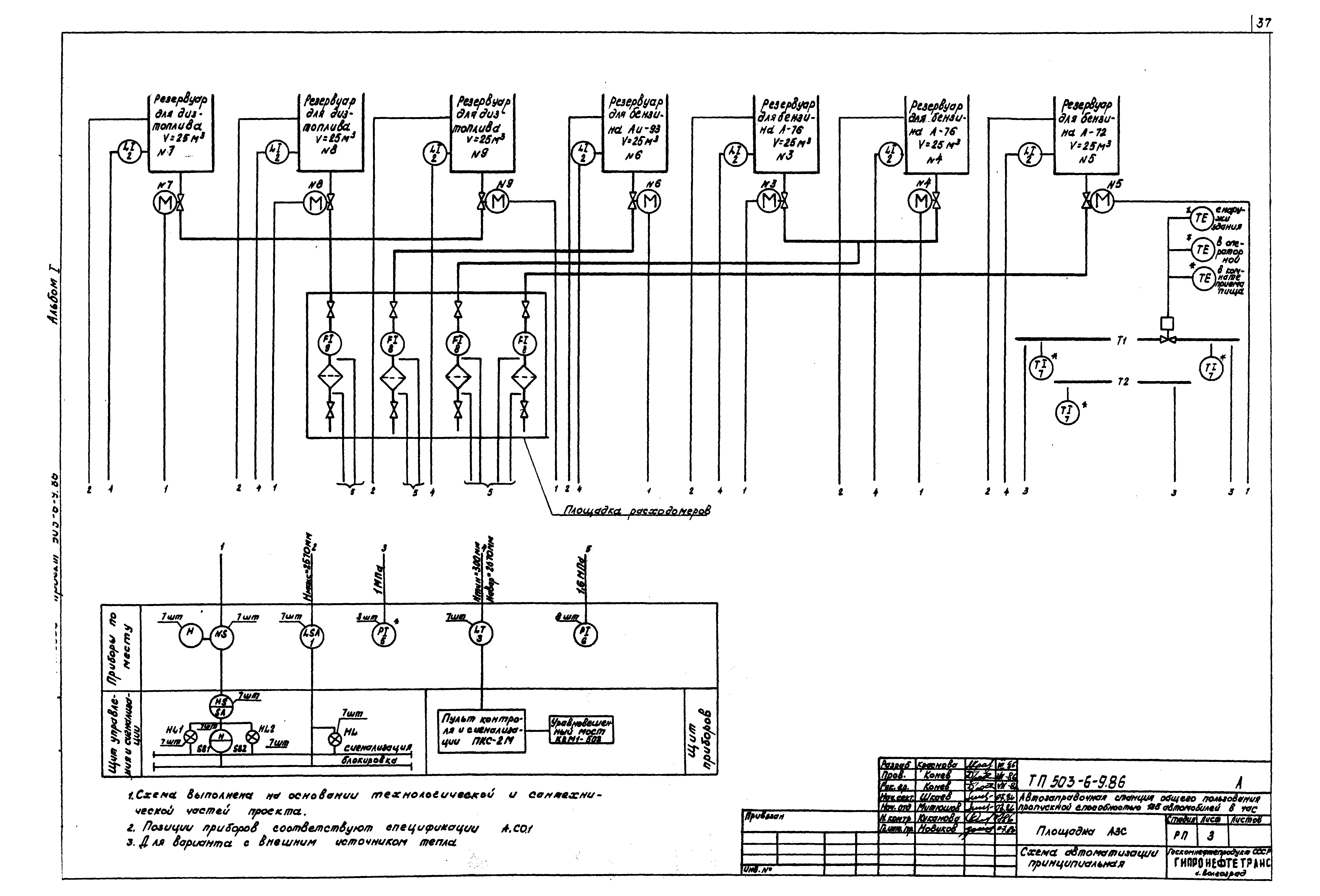
Альбом I. Площадка АЗС. Пояснительная записка. Чертежи (генплан, технологические коммуникации, архитектурно-строительные решения, наружные сети водоснабжения и канализации, электроснабжение, автоматизация)Обозначение: | Типовой проект 503-6-9.86 | Обозначение англ: | 503-6-9.86 | Статус: | не определен законодательством | Название рус.: | Альбом I. Площадка АЗС. Пояснительная записка. Чертежи (генплан, технологические коммуникации, архитектурно-строительные решения, наружные сети водоснабжения и канализации, электроснабжение, автоматизация) | Дата добавления в базу: | 01.09.2013 | Дата актуализации: | 05.05.2017 | Дата введения: | 03.06.1986 | Разработан: | Гипронефтетранс
| Утверждён: | 23.04.1986 Госкомнефтепродукт СССР (24-13-5)
| Расположен в: |
|
                                                        
|