Информационная система
«Ёшкин Кот»

Скачать базу одним архивом
Скачать обновления
История создания базы
Карта сайта

Скачать Типовой проект 904-1-48 Альбом 4. Архитектурно-строительная и сантехническая части для 4 компрессоров

Дата актуализации: 10.08.2017

Типовой проект 904-1-48

Альбом 4. Архитектурно-строительная и сантехническая части для 4 компрессоров

Обозначение: Типовой проект 904-1-48
Обозначение англ: 904-1-48
Статус:действует
Название рус.:Альбом 4. Архитектурно-строительная и сантехническая части для 4 компрессоров
Дата добавления в базу:01.09.2013
Дата актуализации:05.05.2017
Дата введения:01.01.1982
Оглавление:Содержание альбома
Пояснительная записка
Архитектурные решения
Общие данные (начало)
Общие данные (окончание)
План подземного хозяйства
Фрагменты плана 1,2. Фундамент ФО2. Спецификация
Фундаменты под оборудование ФО3-ФО14. Сечения 1-1-15-15
Сечения 16-16-27-27. Узлы 1-5
Планы на отм. 0.000 и 3.800. Спецификация элементов заполнения проемов и перемычек
Фрагменты плана 1-3. Спецификация
Разрезы 1-1-8-8
Фасады. Схемы заполнения оконных проемов
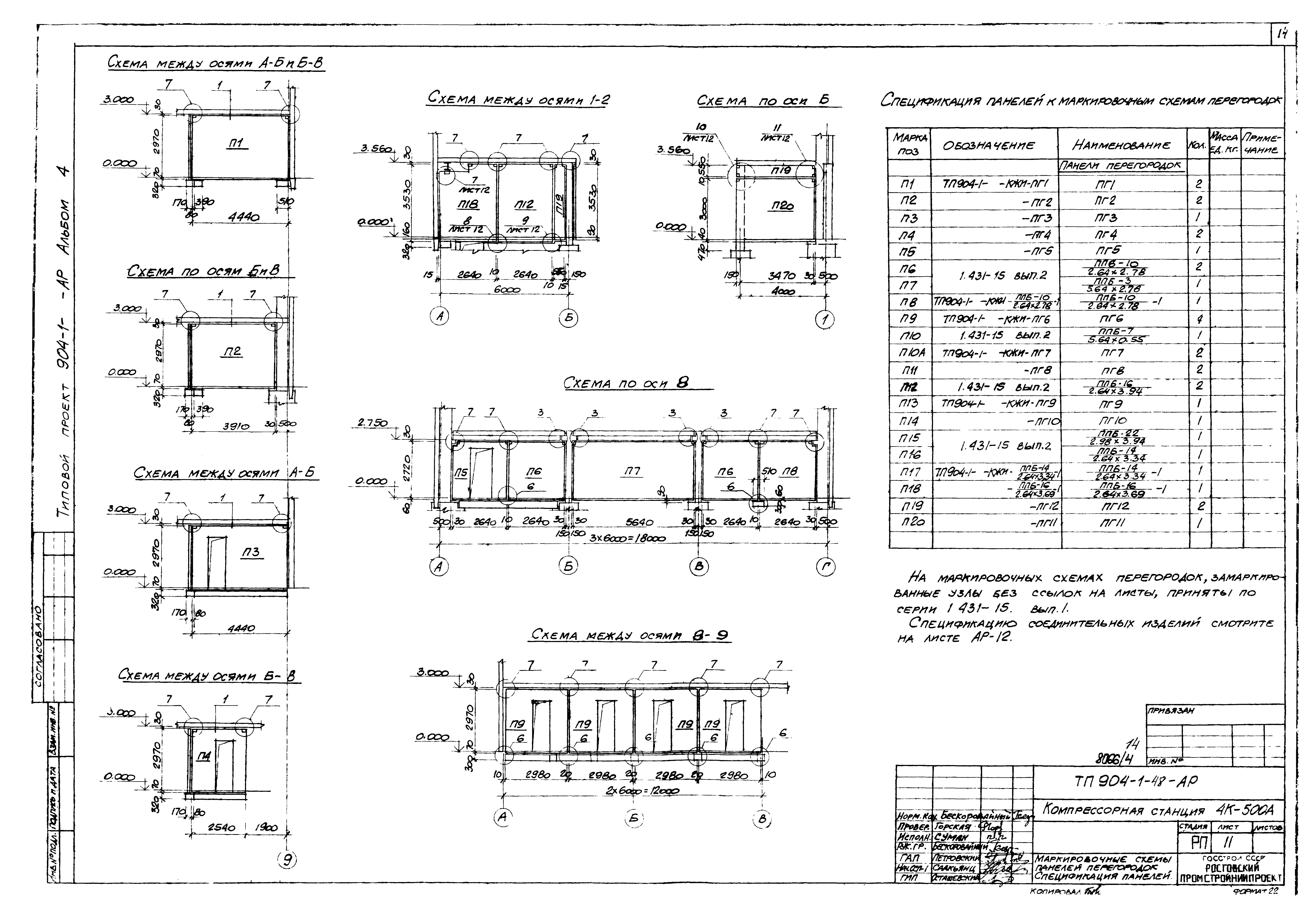
Маркировочные схемы панелей перегородок. Спецификация панелей
Маркировочные схемы панелей перегородок. Спецификация соединения изделий
Схема расположения опор двойного пола. Схема раскладки проступей
Сечения 1-1-3-3. Узлы 13-20
Ведомость отделки помещений. Экспликация полов. План кровли
Узлы 21-32
Конструкции железобетонные
Общие данные (начало)
Общие данные (продолжение)
Общие данные (окончание)
Схема расположения элементов фундаментов
Узлы 1-7,7н. Разрезы 3-3-9-9
Фундаменты ФМ1-ФМ3;ФМ9
Фундаменты ФМ4-ФМ6
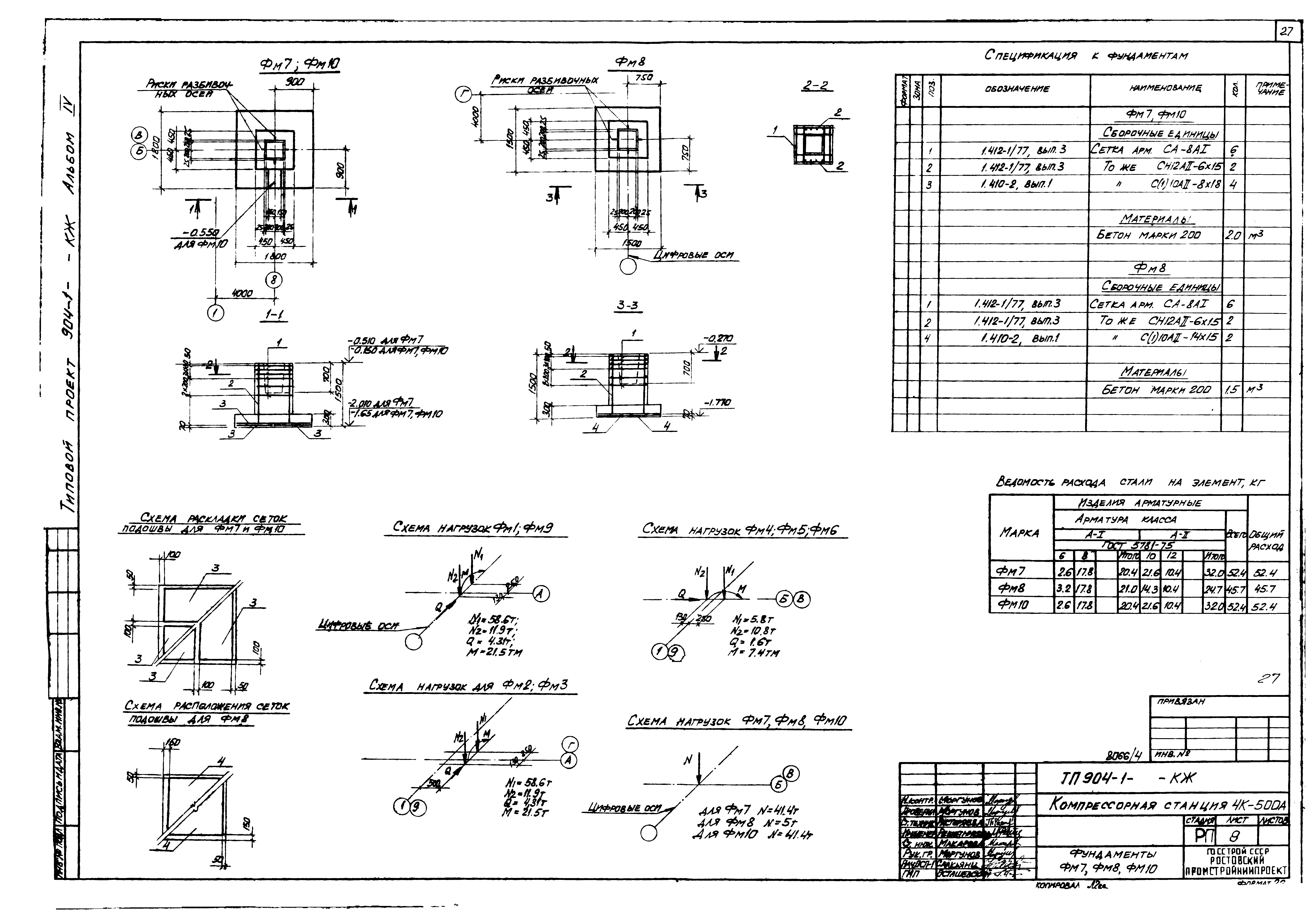
Фундаменты ФМ7,ФМ8,ФМ10
Схемы расположения плит перекрытия канала и элементов колодца К1
Схемы расположения элементов каркаса
Схема расположения элементов лестниц
Схемы расположения балок покрытия, плит покрытия и перекрытия, карнизных панелей
Узлы 1-3. Разрезы 2-2-6-6
Монолитные участки УМ1-УМ6
Схемы расположения стеновых панелей по осям А,Г,1,9
Фрагменты 1-9
Фрагменты 10-15
Фундамент ФО1. План. Общий вид
Фундамент ФО1. Разрезы 1-1-3-3. Узлы 6-8. Общий вид
Фундамент ФО1. Разрезы 4-4-5-5. План подливки и соединительных элементов. Узлы 1-5. Общий вид
Фундамент ФО1. Разрезы 6-6-10-10. Общий вид
Фундамент ФО1. Спецификация и ведомость расхода стали на фундамент ФО1
Фундамент ФО1. Схема сеток подошвы. Разрезы 4-4,В-В,2-2. Схема армирования
Фундамент ФО1. Разрезы 7-7,8-8,10-10,12-12,13-13. Схема армирования
Фундамент ФО1. Схема сеток плиты. Узлы 9-13. Разрезы 14-14,15-15. Схема армирования
Конструкции металлические
Общие данные
Техническая спецификация стали (начало)
Техническая спецификация стали (продолжение)
Техническая спецификация стали (окончание)
Техническая спецификация стали на лестницы (начало)
Техническая спецификация стали на лестницы (окончание) и крановые рельсы
Схема расположения подкрановых балок рельсов, упоров
Схема расположения балок перекрытия на отм. 3.800
Схема расположения щитов перекрытия на отм. 3.800
Разрезы 10-10-21-21
Узлы 1-8
Элементы МЭ1-МЭ6,МЭ3а
Элементы МЭ3б-МЭ3г. Ригель МР1
Короба электрокабелей
Схема расположения щитов на отм. 0.000,3.800. Щиты. Схема расположения балок на отм. 1.200,2.700,3.800
Схема расположения щитов на отм. 3.220,7.400, кронштейнов. Деталь ограждения кровли
Шахта для электрокабелей. Схема расположения стоек
Схема расположения лестниц и ограждений
Схема расположения опоры под трубопровод
Внутренние водопровод и канализация
Общие данные (начало)
Общие данные (окончание). План на отм. 0.000
Фрагмент 1. Схемы
Отопление и вентиляция
Общие данные (начало)
Общие данные (продолжение)
Общие данные (окончание)
План отопления и вентиляции на отм. 0.000
План отопления и вентиляции на отм. 3.800
Схема системы отопления. Разрез 4-4
Схема систем П1,В3,ВЕ1. Разрез 1-1,2-2,3-3
Установка систем П1,В3
Разработан: Ростовский Промстройниипроект Госстроя СССР
Утверждён:19.11.1981 Минстройдормаш (Minstroydormash 31/81)
Расположен в:Техническая документация Строительство Справочные документы Типовые строительные конструкции, изделия и узлы Общероссийский строительный каталог Промышленные предприятия, здания и сооружения Здания и сооружения санитарно-технические Воздухоснабжение, вентиляция и кондиционирование воздуха Воздухоснабжение
Типовой проект 904-1-48Типовой проект 904-1-48Типовой проект 904-1-48Типовой проект 904-1-48Типовой проект 904-1-48Типовой проект 904-1-48Типовой проект 904-1-48Типовой проект 904-1-48Типовой проект 904-1-48Типовой проект 904-1-48Типовой проект 904-1-48Типовой проект 904-1-48Типовой проект 904-1-48Типовой проект 904-1-48Типовой проект 904-1-48Типовой проект 904-1-48Типовой проект 904-1-48Типовой проект 904-1-48Типовой проект 904-1-48Типовой проект 904-1-48Типовой проект 904-1-48Типовой проект 904-1-48Типовой проект 904-1-48Типовой проект 904-1-48Типовой проект 904-1-48Типовой проект 904-1-48Типовой проект 904-1-48Типовой проект 904-1-48Типовой проект 904-1-48Типовой проект 904-1-48Типовой проект 904-1-48Типовой проект 904-1-48Типовой проект 904-1-48Типовой проект 904-1-48Типовой проект 904-1-48Типовой проект 904-1-48Типовой проект 904-1-48Типовой проект 904-1-48Типовой проект 904-1-48Типовой проект 904-1-48Типовой проект 904-1-48Типовой проект 904-1-48Типовой проект 904-1-48Типовой проект 904-1-48Типовой проект 904-1-48Типовой проект 904-1-48Типовой проект 904-1-48Типовой проект 904-1-48Типовой проект 904-1-48Типовой проект 904-1-48Типовой проект 904-1-48Типовой проект 904-1-48Типовой проект 904-1-48Типовой проект 904-1-48Типовой проект 904-1-48Типовой проект 904-1-48Типовой проект 904-1-48Типовой проект 904-1-48Типовой проект 904-1-48Типовой проект 904-1-48Типовой проект 904-1-48Типовой проект 904-1-48Типовой проект 904-1-48Типовой проект 904-1-48Типовой проект 904-1-48Типовой проект 904-1-48Типовой проект 904-1-48Типовой проект 904-1-48Типовой проект 904-1-48Типовой проект 904-1-48Типовой проект 904-1-48Типовой проект 904-1-48Типовой проект 904-1-48Типовой проект 904-1-48Типовой проект 904-1-48

© 2013 Ёшкин Кот :-) Карта сайта