Информационная система
«Ёшкин Кот»

Скачать базу одним архивом
Скачать обновления
История создания базы
Карта сайта

Скачать Типовой проект 904-1-48 Альбом 2. Электротехническая часть

Дата актуализации: 10.08.2017

Типовой проект 904-1-48

Альбом 2. Электротехническая часть

Обозначение: Типовой проект 904-1-48
Обозначение англ: 904-1-48
Статус:действует
Название рус.:Альбом 2. Электротехническая часть
Дата добавления в базу:01.09.2013
Дата актуализации:05.05.2017
Дата введения:01.01.1982
Оглавление:Титульный лист
Содержание альбома
Общие данные
Размещение электрооборудования. Элементы планов на отм. 0.000 и 3.800
Прокладка кабелей на отм. 0.000. План
Распредустройство 6(10)кВ. Принципиальная однолинейная схема
Схема электрическая принципиальная камер синхронного электродвигателя
Схема электрическая принципиальная камер 6(12) ввода 1(2). Начало
Схема электрическая принципиальная камеры 8 секционного выключателя. Начало
Схема электрическая принципиальная камер 6(12) ввода 1(2). Окончание
Схема электрическая принципиальная камеры 8 секционного выключателя. Окончание
Схема электрическая принципиальная камеры 5 трансформатора оперативных цепей 1. Начало
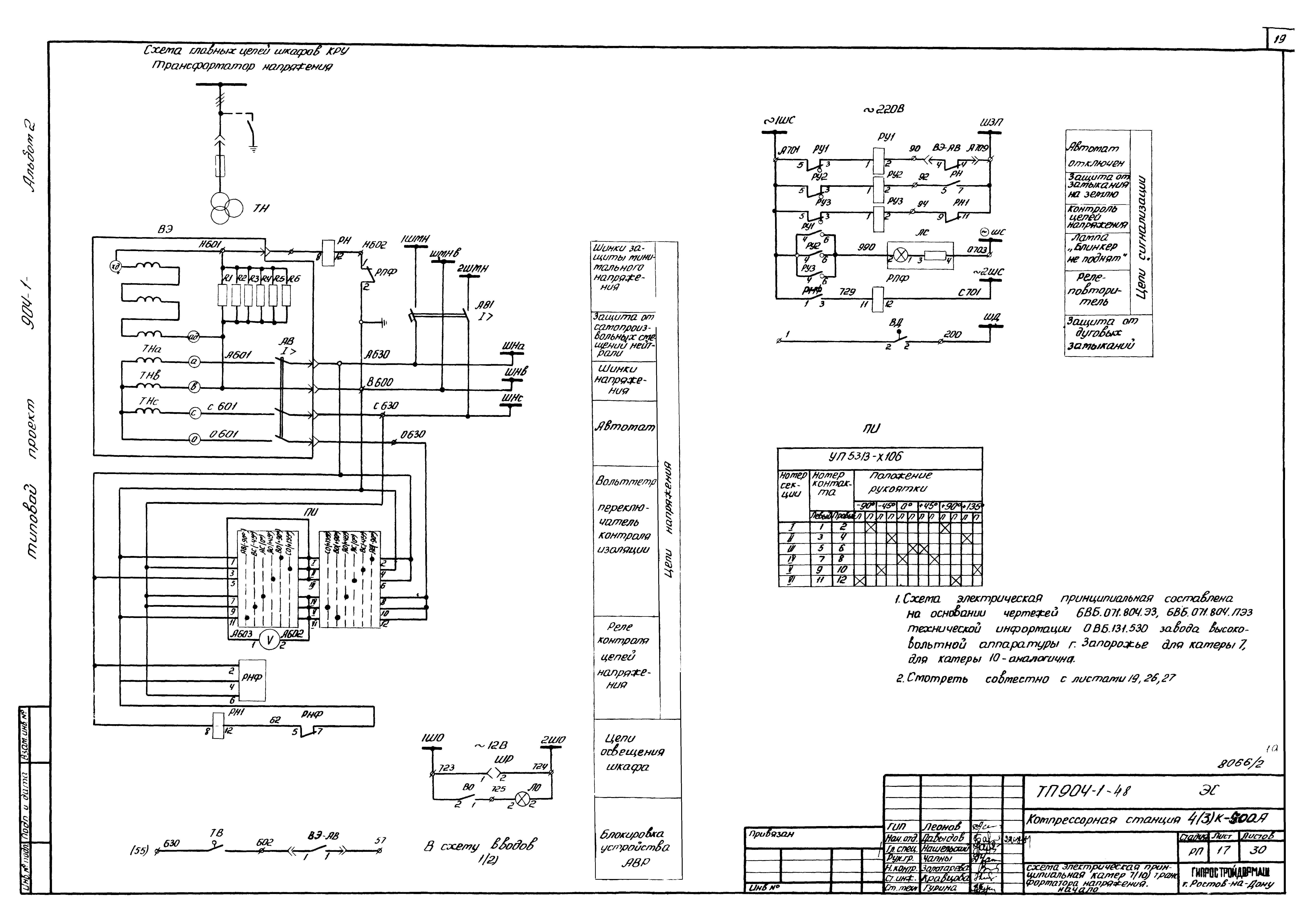
Схема электрическая принципиальная камеры 7(10) трансформатора напряжения. Начало
Схема электрическая принципиальная камеры 5 трансформатора оперативных цепей 1. Окончание
Схема электрическая принципиальная камеры 7(10) трансформатора напряжения. Окончание
Схема электрическая принципиальная камеры 9 секционного разъединителя
Цепи оперативной блокировки
Дооборудование камеры 9 секционного разъединителя. Схема соединений
Камеры КРУ 3,4. Схема подключения
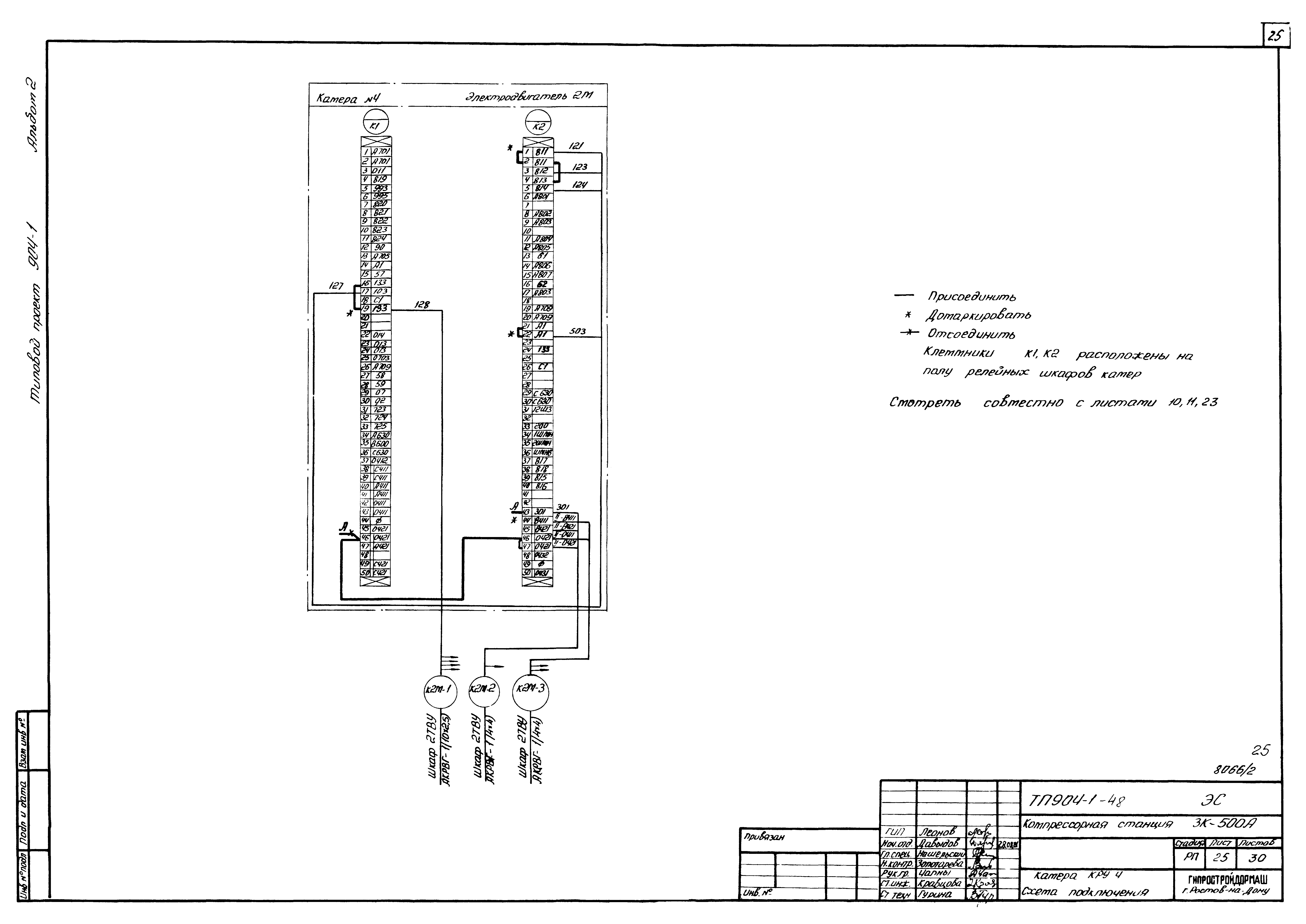
Камеры КРУ 4. Схема подключения
Камеры КРУ 5,6,7,8. Схема подключения
Камеры КРУ 9,10,11,12. Схема подключения
Камеры КРУ 13,14. Схема подключения
Опросный лист для заказа камер КРУ2-10-20 6(10)кВ
Общие данные
Технические данные электроприемников
Прокладка кабелей на отм. 3.800. План
Прокладка кабелей одного компрессорного агрегата
Маслохозяйство. Распределительная сеть 380 В. План
Прокладка кабелей. Разрезы
Кабельный журнал
Шкаф управления 1ШУ. Турбокомпрессорным агрегатом. Расчетная схема
Шкаф управления вспомприводами. Расчетная схема
Схема подключения контрольных цепей тиристорного возбудительного устройства
Схема подключения силовых цепей привода компрессорного агрегата
Шкаф управления турбокомпрессорным агрегатом 1ШУ(2ШУ,3ШУ,3ШУ). Схема подключения силовых цепей
Заземление
Ведомость изделий и материалов, комплектуемых подрядчиком
Ведомость объемов монтажных работ
Ведомость потребности в кабелях и проводах с использованием меди свинца
Общие данные
Рабочее электрическое освещение. План на отм. 0.000
Рабочее электрическое освещение. План на отм. 3.800
Ремонтное и аварийное электрическое освещение. План на отм. 0.000
Ремонтное и аварийное электрическое освещение. План на отм. 3.800
Электрическое освещение. Разрезы
Электрическое освещение. Питательная сеть 380В. Принципиальная однолинейная схема
Ведомость материалов и изделий, комплектуемых подрядчиком
Ведомость объемов монтажных работ
Площадка для обслуживания светильников
Площадка в сборе
Металлоконструкция
Площадка подвесная для обслуживания светильников. Сборочный чертеж
Площадка в сборе. Сборочный чертеж
Металлоконструкция. Сборочный чертеж
Дверца. Сборочный чертеж
Дверца
Общие данные
Пояснения. Условные обозначения
Выкопировки из планов на отм. 0.000 и 3.800
Схемы расположения сетей. Таблица загрузки кабеля
План на отм. 0.000 и 3.800
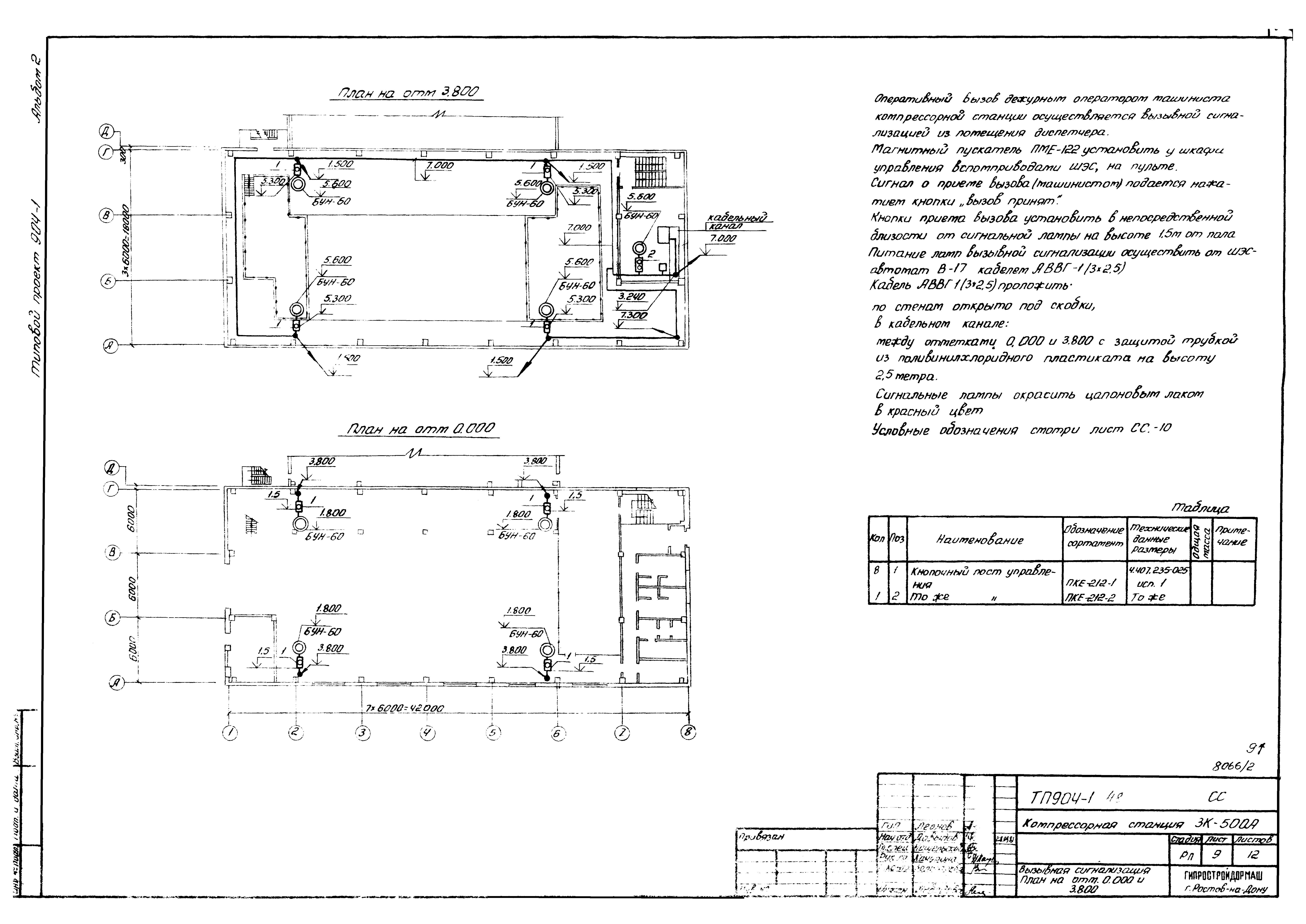
Схема вызывной сигнализации
Ведомость объемов монтажных работ
Разработан: Гипростройдормаш
Утверждён:19.11.1981 Минстройдормаш (Minstroydormash 31/81)
Расположен в:Техническая документация Строительство Справочные документы Типовые строительные конструкции, изделия и узлы Общероссийский строительный каталог Промышленные предприятия, здания и сооружения Здания и сооружения санитарно-технические Воздухоснабжение, вентиляция и кондиционирование воздуха Воздухоснабжение
Типовой проект 904-1-48Типовой проект 904-1-48Типовой проект 904-1-48Типовой проект 904-1-48Типовой проект 904-1-48Типовой проект 904-1-48Типовой проект 904-1-48Типовой проект 904-1-48Типовой проект 904-1-48Типовой проект 904-1-48Типовой проект 904-1-48Типовой проект 904-1-48Типовой проект 904-1-48Типовой проект 904-1-48Типовой проект 904-1-48Типовой проект 904-1-48Типовой проект 904-1-48Типовой проект 904-1-48Типовой проект 904-1-48Типовой проект 904-1-48Типовой проект 904-1-48Типовой проект 904-1-48Типовой проект 904-1-48Типовой проект 904-1-48Типовой проект 904-1-48Типовой проект 904-1-48Типовой проект 904-1-48Типовой проект 904-1-48Типовой проект 904-1-48Типовой проект 904-1-48Типовой проект 904-1-48Типовой проект 904-1-48Типовой проект 904-1-48Типовой проект 904-1-48Типовой проект 904-1-48Типовой проект 904-1-48Типовой проект 904-1-48Типовой проект 904-1-48Типовой проект 904-1-48Типовой проект 904-1-48Типовой проект 904-1-48Типовой проект 904-1-48Типовой проект 904-1-48Типовой проект 904-1-48Типовой проект 904-1-48Типовой проект 904-1-48Типовой проект 904-1-48Типовой проект 904-1-48Типовой проект 904-1-48Типовой проект 904-1-48Типовой проект 904-1-48Типовой проект 904-1-48Типовой проект 904-1-48Типовой проект 904-1-48Типовой проект 904-1-48Типовой проект 904-1-48Типовой проект 904-1-48Типовой проект 904-1-48Типовой проект 904-1-48Типовой проект 904-1-48Типовой проект 904-1-48Типовой проект 904-1-48Типовой проект 904-1-48Типовой проект 904-1-48Типовой проект 904-1-48Типовой проект 904-1-48Типовой проект 904-1-48Типовой проект 904-1-48Типовой проект 904-1-48Типовой проект 904-1-48Типовой проект 904-1-48Типовой проект 904-1-48Типовой проект 904-1-48Типовой проект 904-1-48Типовой проект 904-1-48Типовой проект 904-1-48Типовой проект 904-1-48Типовой проект 904-1-48Типовой проект 904-1-48Типовой проект 904-1-48Типовой проект 904-1-48Типовой проект 904-1-48Типовой проект 904-1-48Типовой проект 904-1-48Типовой проект 904-1-48Типовой проект 904-1-48Типовой проект 904-1-48Типовой проект 904-1-48Типовой проект 904-1-48Типовой проект 904-1-48Типовой проект 904-1-48Типовой проект 904-1-48Типовой проект 904-1-48Типовой проект 904-1-48Типовой проект 904-1-48

© 2013 Ёшкин Кот :-) Карта сайта