Информационная система
«Ёшкин Кот»

Скачать базу одним архивом
Скачать обновления
История создания базы
Карта сайта

Скачать Типовой проект 214-1-260.83 Альбом I. Архитектурно-строительные и технологические чертежи

Дата актуализации: 10.08.2017

Типовой проект 214-1-260.83

Альбом I. Архитектурно-строительные и технологические чертежи

Обозначение: Типовой проект 214-1-260.83
Обозначение англ: 214-1-260.83
Статус:не определен законодательством
Название рус.:Альбом I. Архитектурно-строительные и технологические чертежи
Дата добавления в базу:01.09.2013
Дата актуализации:05.05.2017
Дата введения:15.03.1984
Оглавление:Чертежи марки АС
Обложка
Титульный лист
Общие данные (начало)
Общие данные (продолжение)
Общие данные (окончание)
План фундаментов и подпольных каналов
Сечения по фундаментам и подпольным каналам
Венткамера
План 1 этажа. План подвала
План 2 этажа. Спецификация столярных изделий
Разрез 1-1. Деталь ограждения радиаторов
Фасады 1-7,А-В,7-1
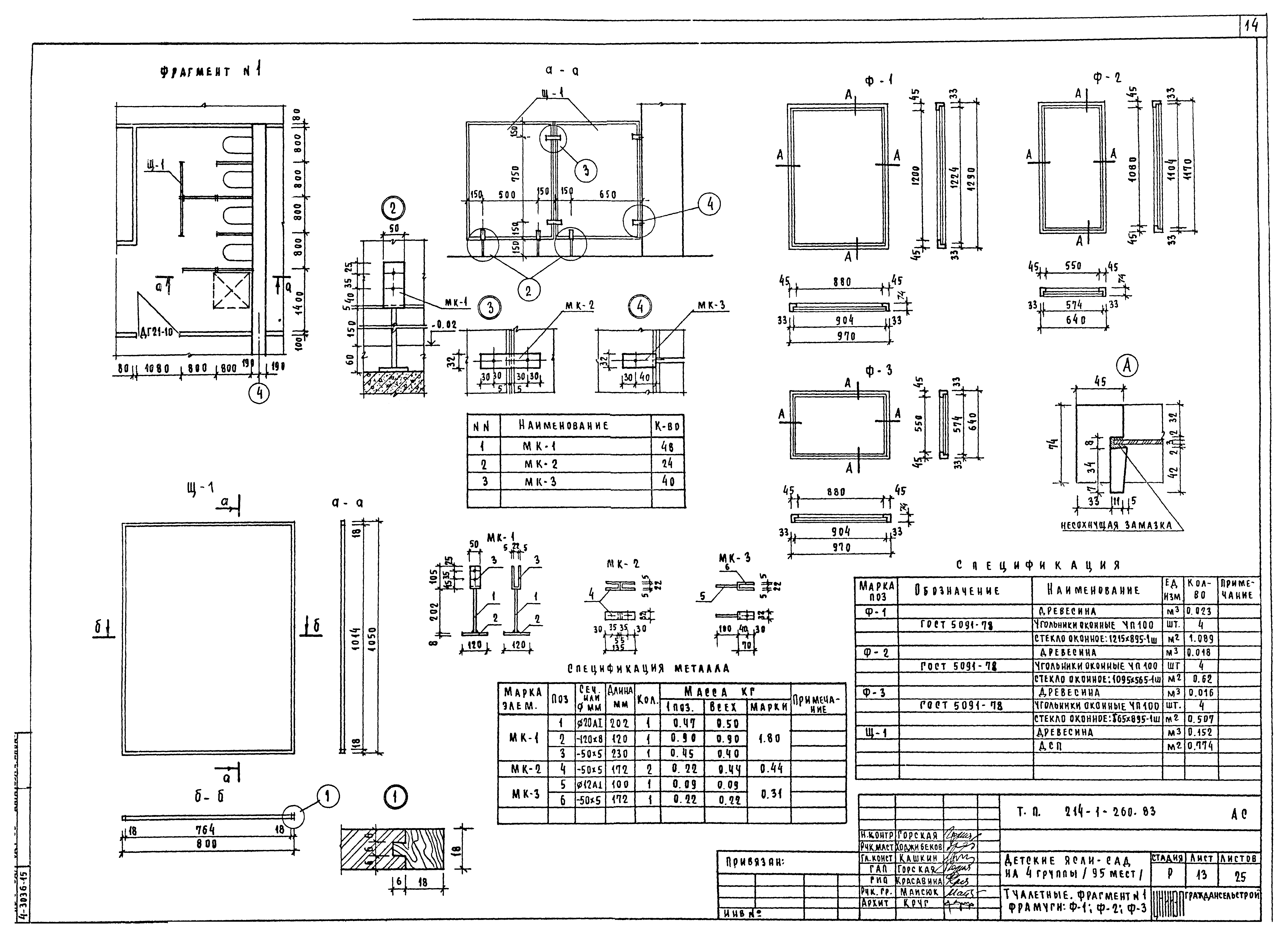
Туалетные. Фрагмент № 1. Фрамуги: Ф-1,Ф-2,Ф-3
Развертки стен с вентканалами
План перемычек. Ведомость перемычек
Схемы расположения элементов перекрытия, покрытия и перекрытия над подвалом
План кровли. Монолитные участки УМ-1,УМ-2
Лестницы Л-1,Л-2
Перегородки из с г.ш. 1 этажа (вариант)
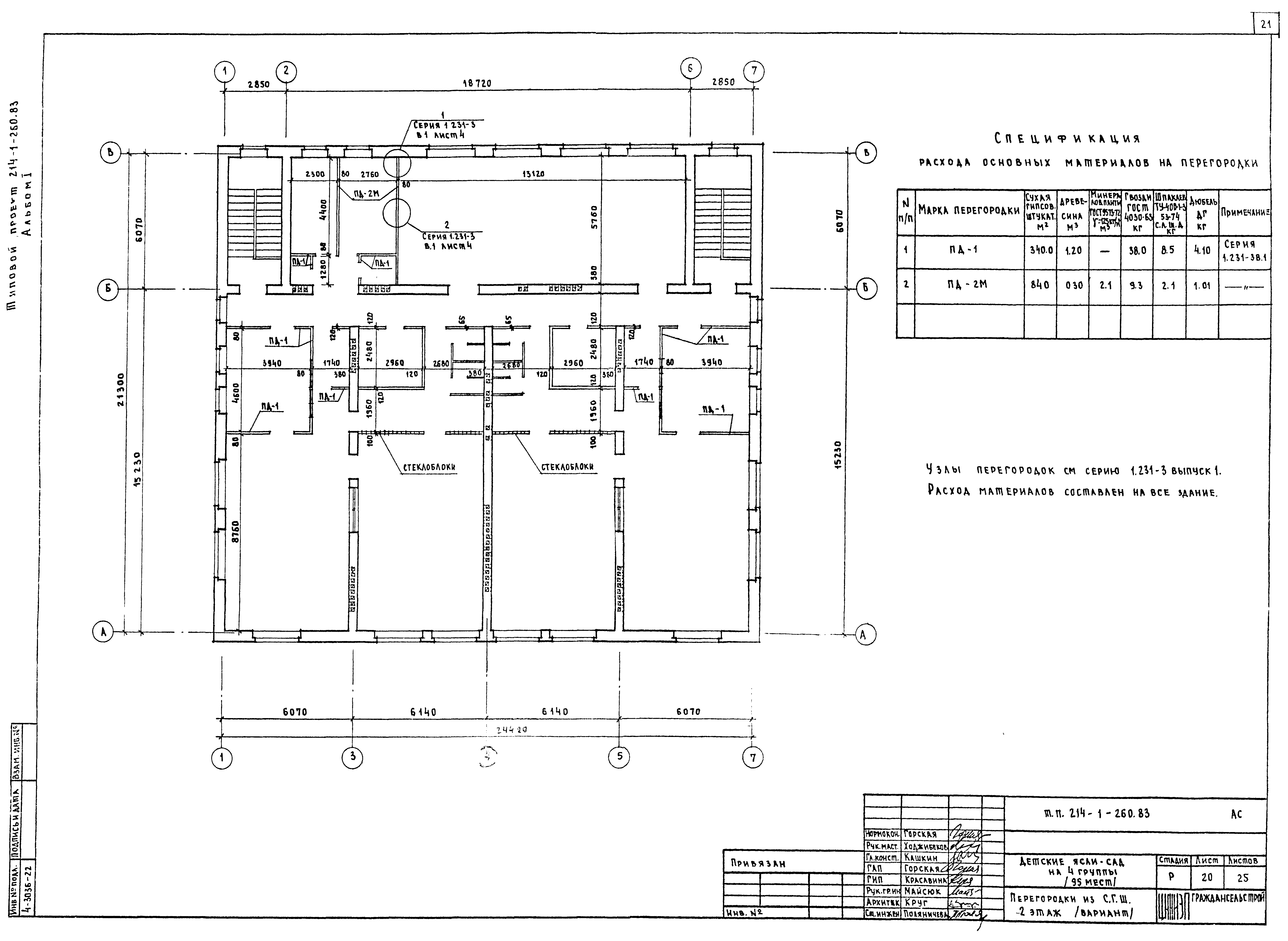
Перегородки из с г.ш. 2 этажа (вариант)
Фасады 1-7,А-В,7-1 (вариант с чердачной крышей)
Стропила. План. Разрез 1-1 (вариант)
Стропила. Разрезы 2-2-5-5. План кровли (вариант)
Стропила. Узлы 4-9 (вариант)
Стропила. Слуховое окно (вариант)
Чертежи марки ТХ
Спецификация технологического оборудования и мебели
План 1 этажа с расстановкой технологического оборудования и мебели
План 2 этажа с расстановкой технологического оборудования и мебели
Привязка сантехнических и электротехнических подводов к оборудованию
Разработан: ЦНИИЭП граждансельстрой
Утверждён:05.11.1982 Госгражданстрой (Gosgrazhdanstroy 297)
Расположен в:Техническая документация Строительство Справочные документы Типовые строительные конструкции, изделия и узлы Общероссийский строительный каталог Общественные здания для строительства в сельской местности Детские дошкольные учреждения Детские ясли-сады
Типовой проект 214-1-260.83Типовой проект 214-1-260.83Типовой проект 214-1-260.83Типовой проект 214-1-260.83Типовой проект 214-1-260.83Типовой проект 214-1-260.83Типовой проект 214-1-260.83Типовой проект 214-1-260.83Типовой проект 214-1-260.83Типовой проект 214-1-260.83Типовой проект 214-1-260.83Типовой проект 214-1-260.83Типовой проект 214-1-260.83Типовой проект 214-1-260.83Типовой проект 214-1-260.83Типовой проект 214-1-260.83Типовой проект 214-1-260.83Типовой проект 214-1-260.83Типовой проект 214-1-260.83Типовой проект 214-1-260.83Типовой проект 214-1-260.83Типовой проект 214-1-260.83Типовой проект 214-1-260.83Типовой проект 214-1-260.83Типовой проект 214-1-260.83Типовой проект 214-1-260.83Типовой проект 214-1-260.83Типовой проект 214-1-260.83Типовой проект 214-1-260.83Типовой проект 214-1-260.83Типовой проект 214-1-260.83

© 2013 Ёшкин Кот :-) Карта сайта