Скачать Типовой проект 214-1-254.83 Альбом II. Чертежи санитарно-технические, электрооборудования, связи и сигнализации, автоматики вентиляционных системДата актуализации: 10.08.2017 Типовой проект 214-1-254.83
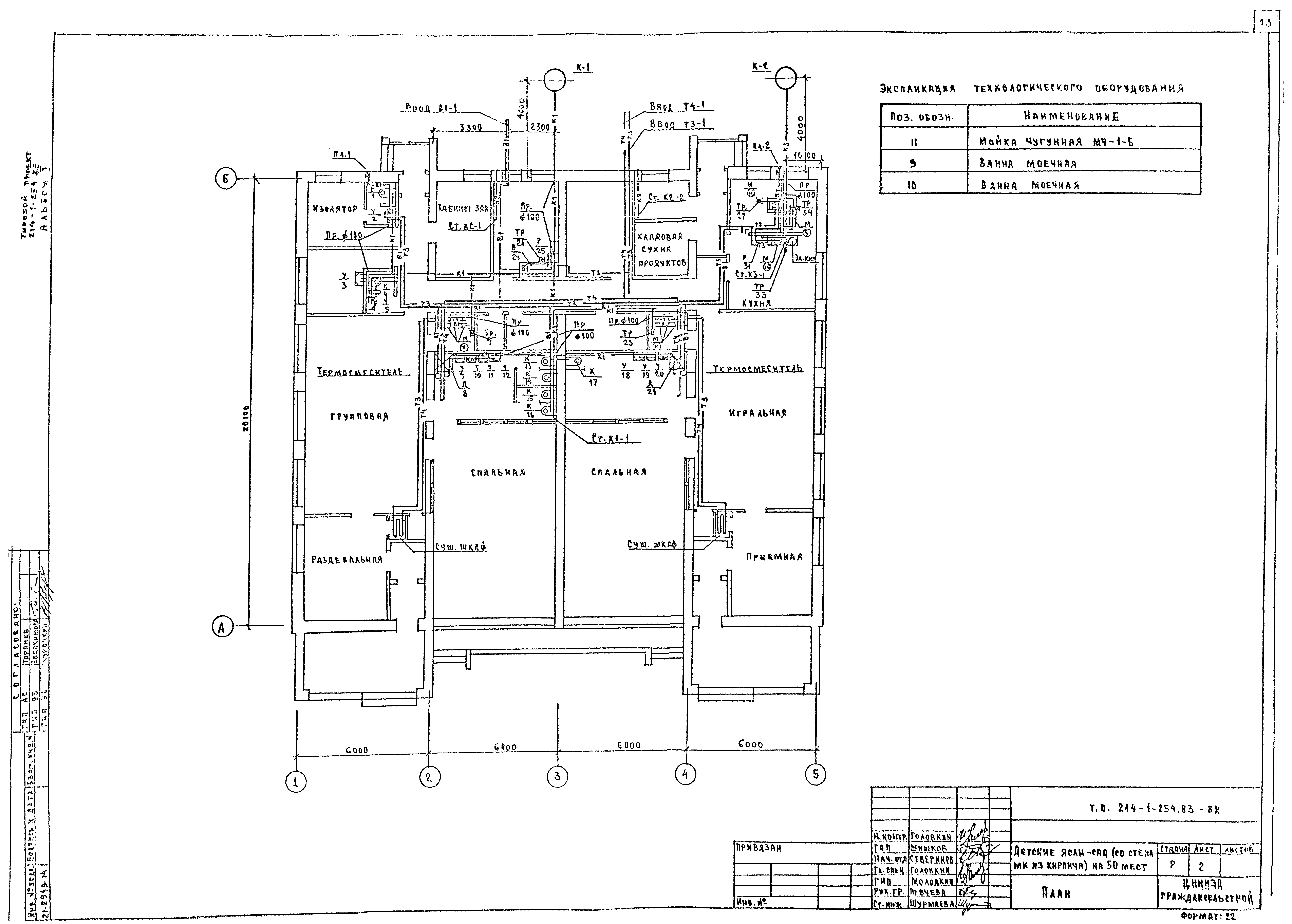
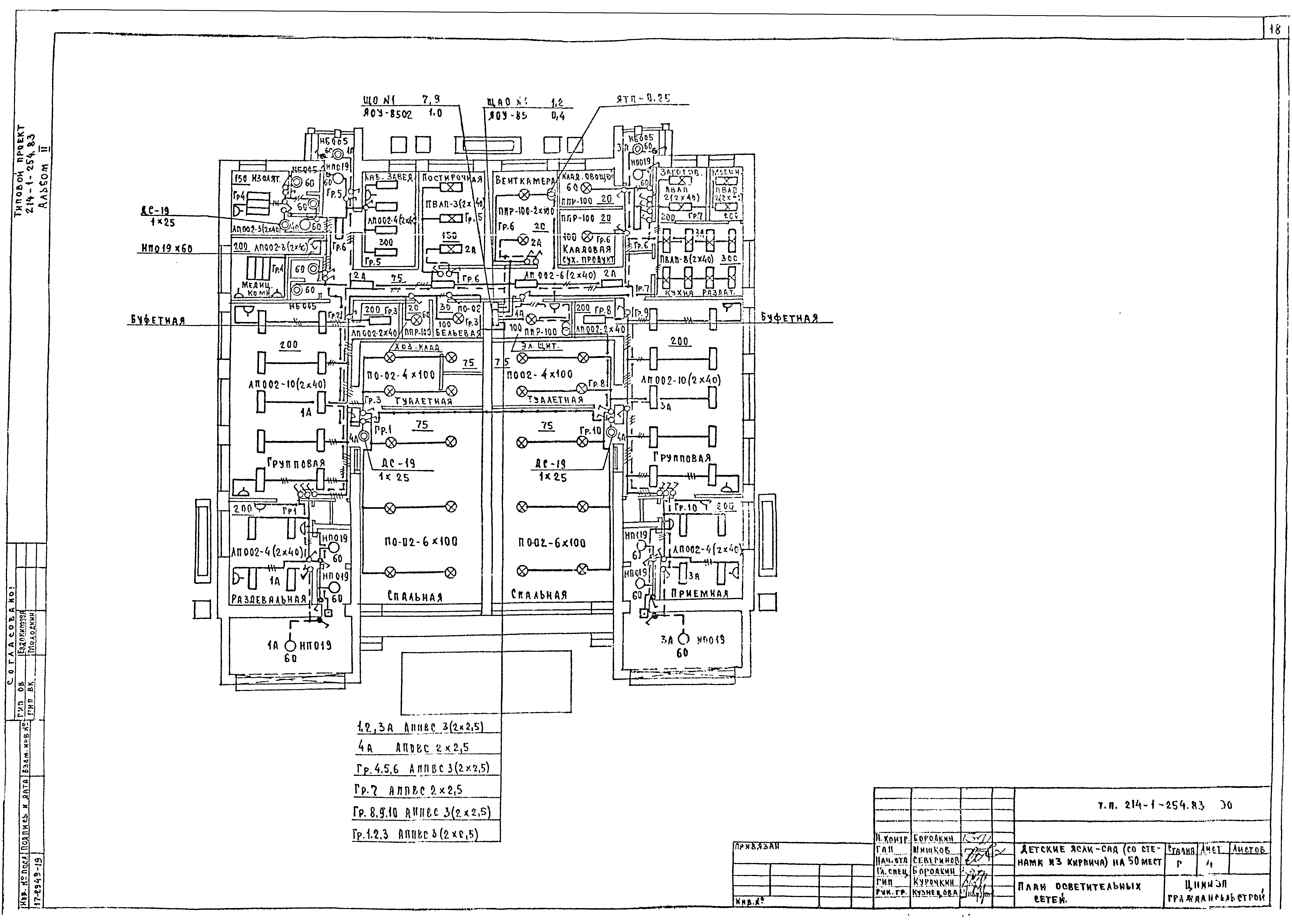
Альбом II. Чертежи санитарно-технические, электрооборудования, связи и сигнализации, автоматики вентиляционных системОбозначение: | Типовой проект 214-1-254.83 | Обозначение англ: | 214-1-254.83 | Статус: | не определен законодательством | Название рус.: | Альбом II. Чертежи санитарно-технические, электрооборудования, связи и сигнализации, автоматики вентиляционных систем | Дата добавления в базу: | 01.09.2013 | Дата актуализации: | 05.05.2017 | Дата введения: | 25.01.1984 | Оглавление: | Титульный лист Содержание альбома Отопление и вентиляция марки ОВ ОВ-1 Общие данные (начало) ОВ-2 Общие данные (продолжение) ОВ-3 Общие данные (окончание) ОВ-4 План ОВ-5 Схема системы отопления ОВ-6 Установка системы П-1. Схема системы теплоснабжения установки П-1 ОВ-7 Таблица местных отсосов от технологического оборудования схема систем вентиляции. Узел управления ОВН1-ОВН3 Чертежи общий видов нетиповых конструкций Водопровод и канализация марки ВК ВК-1 Общие данные ВК-2 План ВК-3 Схемы систем К1,К2,К3,В1,Т3,Т4 Электрооборудование марки ЭО Э-1 Общие данные Э-2 Спецификация Э-3 Расчетная схема питающих сетей Э-4 План осветительных сетей Э-5 План силовых и питающих сетей Э-6 Расчетная схема осветительных и силовых сетей Опросный лист Устройства связи марки УС УС-1 Общие данные УС-2 Спецификация УС-3 План этажа. План кровли. Схема расположения устройств связи Автоматика приточных систем марки АВ АВ-1 Общие данные АВ-2 Спецификация АВ-3 Функциональная схема П-1 АВ-4 Система № 1. Схема электрическая принципиальная управления АВ-5 Система № 1. Схема электрическая принципиальная регулирования АВ-6 Схема подключений П-1. Схема расположений П-1 | Разработан: | ЦНИИЭП граждансельстрой
| Утверждён: | 29.07.1982 Госгражданстрой (Gosgrazhdanstroy 198)
| Расположен в: |
|
                             
|