Информационная система
«Ёшкин Кот»

Скачать базу одним архивом
Скачать обновления
История создания базы
Карта сайта

Скачать Типовой проект 902-2-180 Альбом XI. Электротехнические чертежи (из ТП 902-2-179)

Дата актуализации: 10.08.2017

Типовой проект 902-2-180

Альбом XI. Электротехнические чертежи (из ТП 902-2-179)

Обозначение: Типовой проект 902-2-180
Обозначение англ: 902-2-180
Статус:не действует
Название рус.:Альбом XI. Электротехнические чертежи (из ТП 902-2-179)
Дата добавления в базу:01.09.2013
Дата актуализации:05.05.2017
Дата введения:01.02.1982
Оглавление:Содержание альбома. Пояснительная записка
АК-1 Ведомость приборов и средств автоматизации
АК-2 Ведомости комплектных устройств, щитов и пультов, электроаппаратуры
АК-3 Схема автоматизации функциональная
АК-4 Щитовой затвор. Схема принципиальная электрическая
АК-5 Схема питания приборов. Схема подключения приборов технологического контроля
АК-6 Щитовой затвор. Схема подключения электрооборудования. Шкаф дифманометра. Схема питания электроаппаратуры
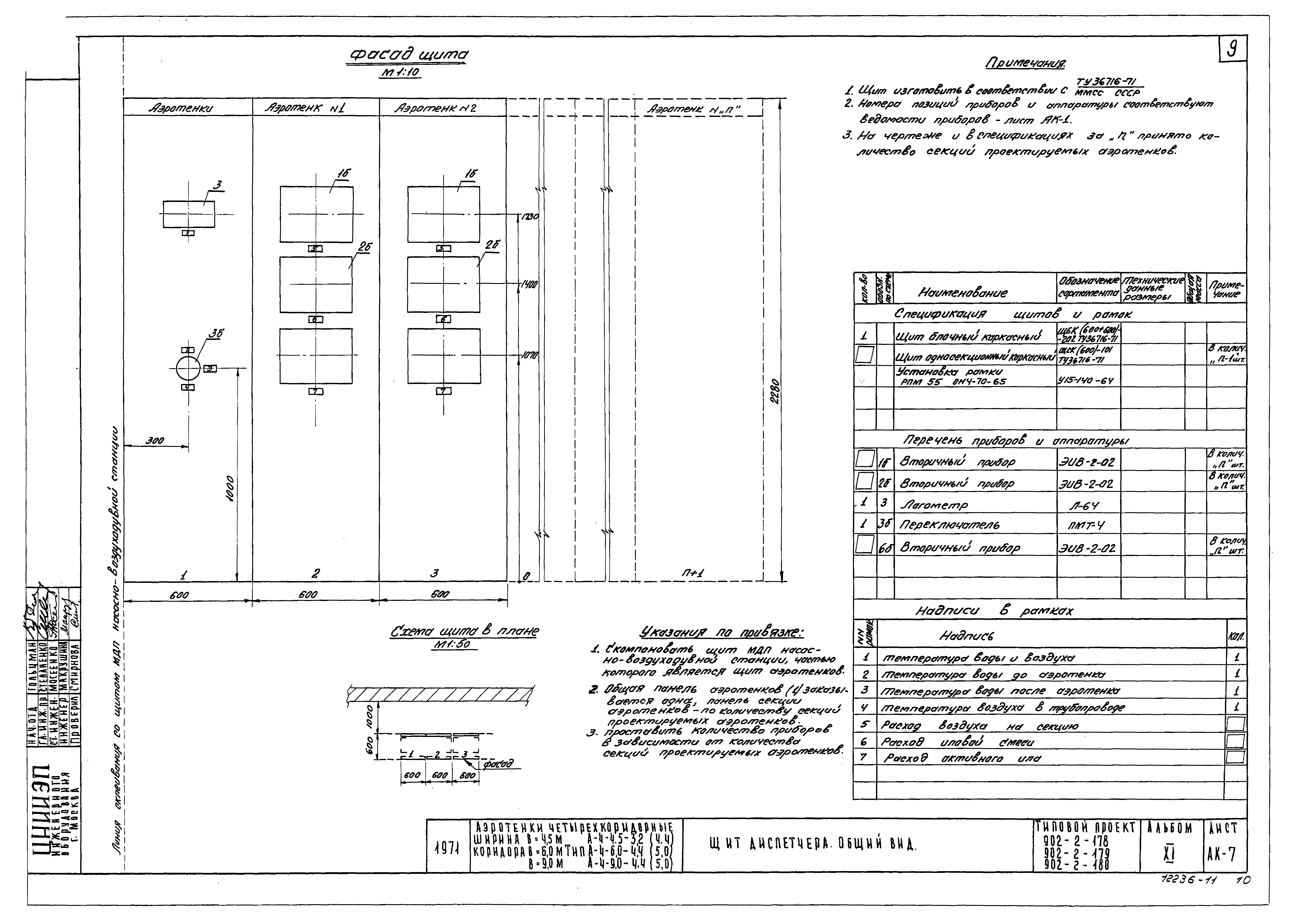
АК-7 Щит диспетчера. Общий вид
АК-8 Щит диспетчера. Панели 1,2. Схема соединений
АК-9 Щит диспетчера. Панели 1,2. Схема соединений
АК-10 Щит диспетчера. Панель 3. Схема соединений
АК-11 Шкаф дифманометра. Общий вид. Схема соединений
АК-12 Пример плана с размещение электрооборудования
Разработан: ЦНИИЭП инженерного оборудования
Утверждён:27.10.1972 Госгражданстрой (Gosgrazhdanstroy 205)
Расположен в:Техническая документация Строительство Справочные документы Типовые строительные конструкции, изделия и узлы Общероссийский строительный каталог Промышленные предприятия, здания и сооружения Здания и сооружения санитарно-технические Канализация Сооружения биологической (биохимической) очистки Аэротенки, аэрируемые биопруды, аэроакселаторы
Заменяет собой:
  • Типовой проект 902-2-50
Типовой проект 902-2-180Типовой проект 902-2-180Типовой проект 902-2-180Типовой проект 902-2-180Типовой проект 902-2-180Типовой проект 902-2-180Типовой проект 902-2-180Типовой проект 902-2-180Типовой проект 902-2-180Типовой проект 902-2-180Типовой проект 902-2-180Типовой проект 902-2-180Типовой проект 902-2-180Типовой проект 902-2-180Типовой проект 902-2-180

© 2013 Ёшкин Кот :-) Карта сайта