Информационная система
«Ёшкин Кот»

Скачать базу одним архивом
Скачать обновления
История создания базы
Карта сайта

Скачать Типовой проект 902-2-180 Альбом VIII. Строительные чертежи. Сборные железобетонные элементы (из ТП 902-2-179)

Дата актуализации: 10.08.2017

Типовой проект 902-2-180

Альбом VIII. Строительные чертежи. Сборные железобетонные элементы (из ТП 902-2-179)

Обозначение: Типовой проект 902-2-180
Обозначение англ: 902-2-180
Статус:не действует
Название рус.:Альбом VIII. Строительные чертежи. Сборные железобетонные элементы (из ТП 902-2-179)
Дата добавления в базу:01.09.2013
Дата актуализации:05.05.2017
Дата введения:01.02.1982
Оглавление:КС-1 Пояснительная записка
КС-2 Пояснительная записка
КС-3 Аэротенки глубиной 5,0;4,4;3,2 м. Стеновые панели ПК1-54-1а;ПК1-48-1а;ПК-36-1а;ПК1-54-3а;ПК1-48-3а. Опалубка и армирование
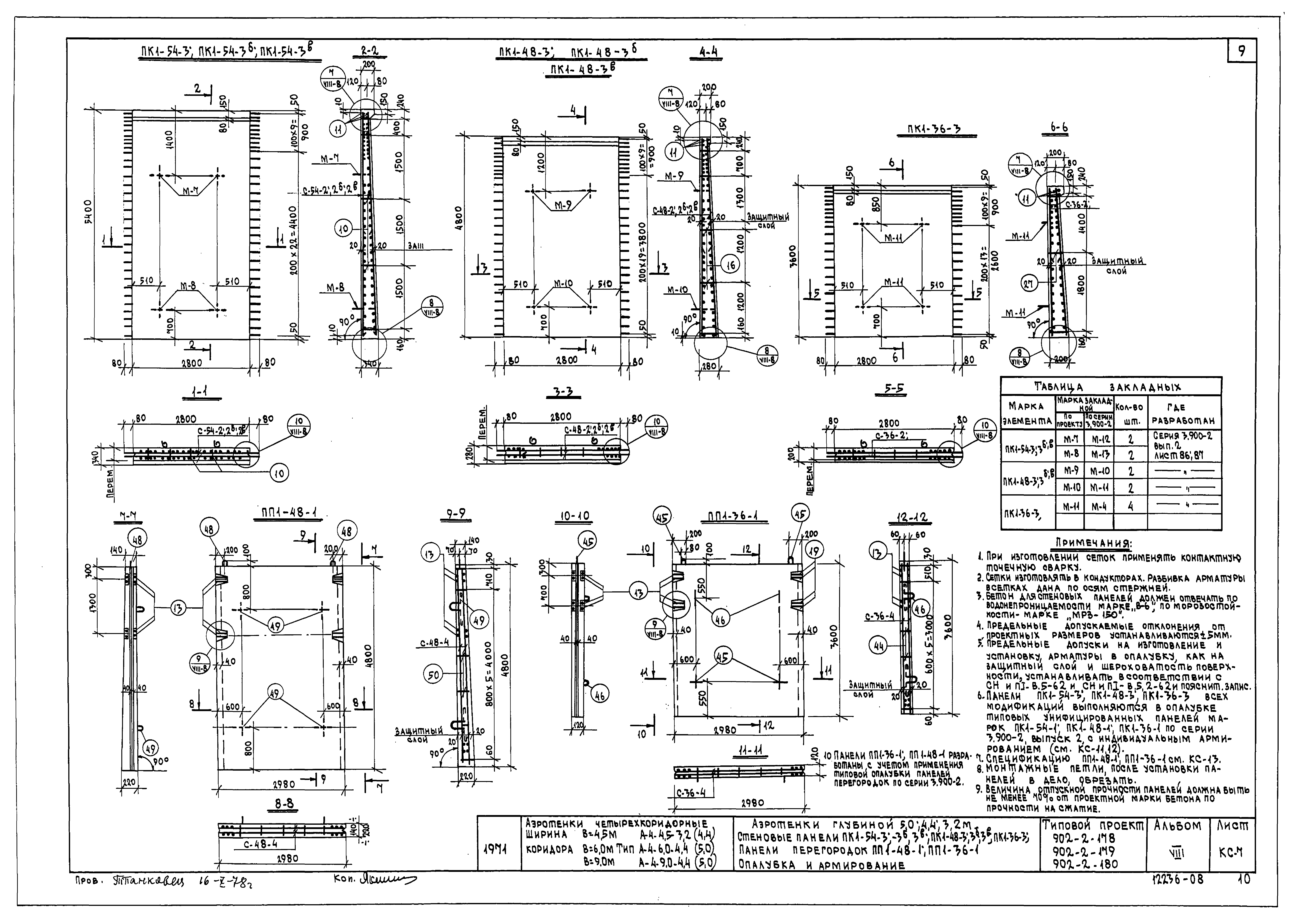
КС-4 Аэротенки глубиной 5,0;4,4;3,2 м. Стеновые панели ПК1-54-1б;ПК1-48-1б;ПК-36-1б. Опалубка и армирование
КС-5 Аэротенки глубиной 5,0;4,4;3,2 м. Стеновые панели ПК1-54-1а;ПК1-48-1а;ПК-36-1а. Опалубка и армирование
КС-6 Аэротенки глубиной 5,0;4,4;3,2 м. Детали стыков панелей ПКУ1-54-1аб;ПКУ1-48-1а,б;ПКУ-36-1а,б между собой с панелями ПК1-54-1,2;ПК1-48-1,2;ПК1-36-1,2
КС-7 Аэротенки глубиной 5,0;4,4;3,2 м. Стеновые панели ПК1-54-3,3б,3в;ПК1-48-3,3б,3в;ПК-36-3,3б. Панели перегородок ПП1-48-1;ПП1-36-1. Опалубка и армирование
КС-8 Аэротенки глубиной 5,0;4,4;3,2 м. Панели стеновые, панели перегородок. Узлы 1-10
КС-9 Аэротенки глубиной 5,0;4,4;3,2 м. Стеновые панели ПК1-54-1а;ПК1-48-1а;ПК1-36-1а. Спецификация
КС-10 Аэротенки глубиной 5,0;4,4;3,2 м. Стеновые панели ПКУ1-54-1а,1б;ПКУ1-48-1а,1б;ПКУ1-36-1а,1б. Спецификация
КС-11 Аэротенки глубиной 5,0;4,4;3,2 м. Ширина коридора В=4,5 м и В=6,0 м. Стеновые панели ПК1-54-3,3а,3б;ПК1-48-3,3а,3б;ПК1-36-3. Спецификация
КС-12 Аэротенки глубиной 5,0;4,4;3,2 м. Ширина коридора В=9,0 м. Стеновые панели ПК1-54-3,3а,3б,3в;ПК1-48-3,3а,3б,3в. Спецификация
КС-13 Аэротенки глубиной 5,0;4,4;3,2 м. Панели перегородок ПП1-48-1;ПП1-36-1. Спецификация
КС-14 Аэротенки глубиной 5,0;4,4;3,2 м. Опалубочный чертеж ПЖ1-3а. Армирование П-1. Закладные детали М-4-М-6
КС-15 Аэротенки глубиной 5,0;4,4;3,2 м. Блок фильтросного канала БФК. Опалубка и армирование
КС-16 Аэротенки глубиной 5,0;4,4;3,2 м. Балки Б-1;Б-2. Опалубка и армирование. Спецификация
Разработан: ЦНИИЭП инженерного оборудования
Утверждён:27.10.1972 Госгражданстрой (Gosgrazhdanstroy 205)
Расположен в:Техническая документация Строительство Справочные документы Типовые строительные конструкции, изделия и узлы Общероссийский строительный каталог Промышленные предприятия, здания и сооружения Здания и сооружения санитарно-технические Канализация Сооружения биологической (биохимической) очистки Аэротенки, аэрируемые биопруды, аэроакселаторы
Заменяет собой:
  • Типовой проект 902-2-50
Типовой проект 902-2-180Типовой проект 902-2-180Типовой проект 902-2-180Типовой проект 902-2-180Типовой проект 902-2-180Типовой проект 902-2-180Типовой проект 902-2-180Типовой проект 902-2-180Типовой проект 902-2-180Типовой проект 902-2-180Типовой проект 902-2-180Типовой проект 902-2-180Типовой проект 902-2-180Типовой проект 902-2-180Типовой проект 902-2-180Типовой проект 902-2-180Типовой проект 902-2-180Типовой проект 902-2-180Типовой проект 902-2-180

© 2013 Ёшкин Кот :-) Карта сайта