Информационная система
«Ёшкин Кот»

Скачать базу одним архивом
Скачать обновления
История создания базы
Карта сайта

Скачать Типовой проект 902-2-179 Альбом I. Пояснительная записка

Дата актуализации: 10.08.2017

Типовой проект 902-2-179

Альбом I. Пояснительная записка

Обозначение: Типовой проект 902-2-179
Обозначение англ: 902-2-179
Статус:не действует
Название рус.:Альбом I. Пояснительная записка
Дата добавления в базу:01.09.2013
Дата актуализации:05.05.2017
Дата введения:01.10.1983
Оглавление:Содержание альбома
ПЗ-1 Состав проектов
ПЗ-2 Общая часть
ПЗ-3 Технологические показатели одной секции аэротенков
ПЗ-4 Примерные схемы компоновок аэротенков
ПЗ-5 Технологическая часть
ПЗ-6 Строительная часть
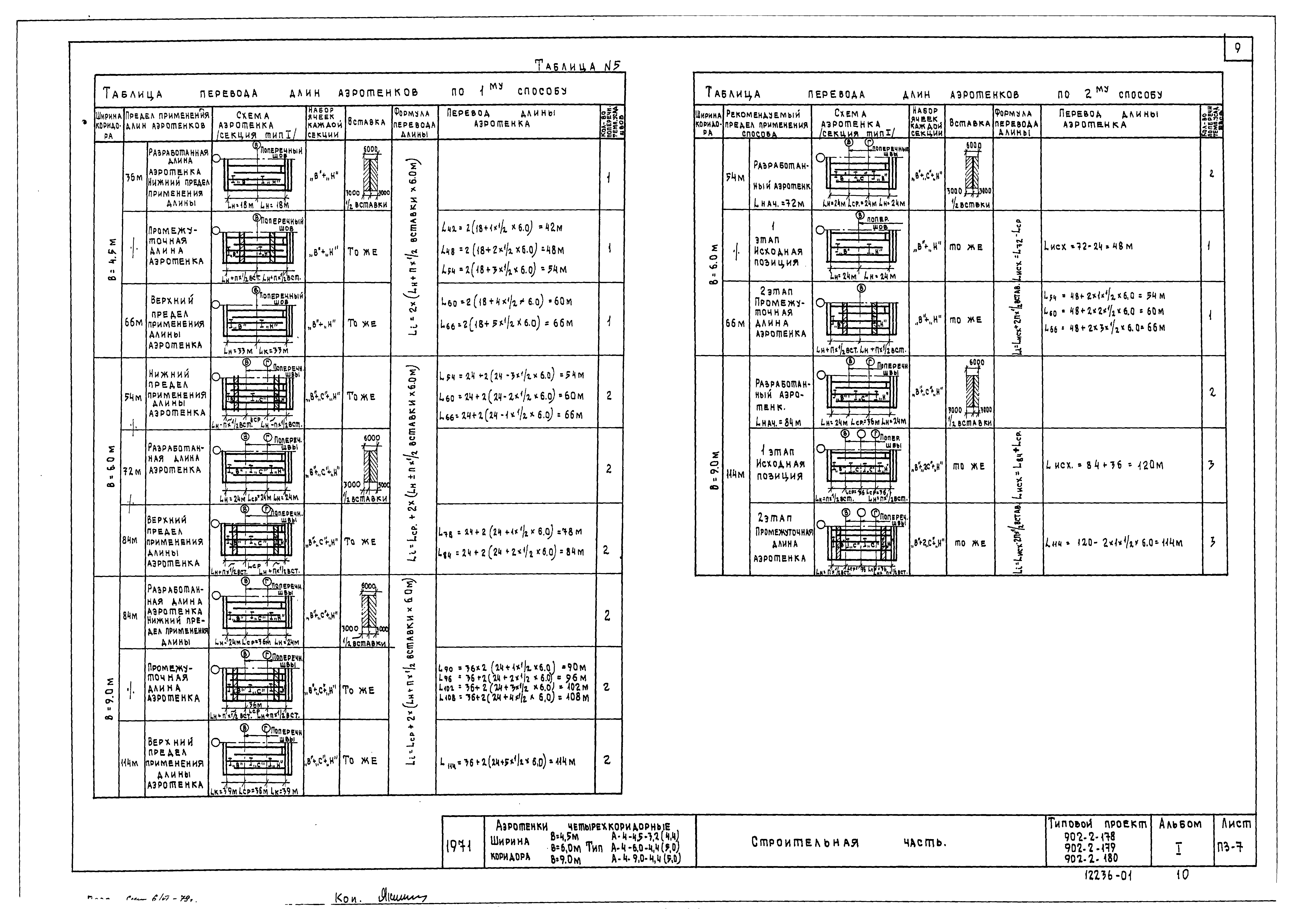
ПЗ-7 Строительная часть
ПЗ-8 Строительная часть
ПЗ-9 Строительная часть
ПЗ-10 Строительная часть
ПЗ-11 Строительная часть. Указания по привязке. Технологическая часть
ПЗ-12 Указания по привязке. Строительная часть и автоматизация
ПЗ-13 Указания по привязке. График подбора аэротенков
ПЗ-14 Указания по привязке. Схемы размещения вставок
ПЗ-15 Приложение № 1. Расчетные объемы аэротенков. Потребные расходы воздуха
ПЗ-16 Приложение № 2. Пример гидравлического расчета
ПЗ-17 Приложение № 2. Пример гидравлического расчета. Приложение № 3. Пример расчета воздуховодов
Разработан: ЦНИИЭП инженерного оборудования
Утверждён:27.10.1972 Госгражданстрой (Gosgrazhdanstroy 205)
Расположен в:Техническая документация Строительство Справочные документы Типовые строительные конструкции, изделия и узлы Общероссийский строительный каталог Промышленные предприятия, здания и сооружения Здания и сооружения санитарно-технические Канализация Сооружения биологической (биохимической) очистки Аэротенки, аэрируемые биопруды, аэроакселаторы
Заменяет собой:
  • Типовой проект 902-2-49
Типовой проект 902-2-179Типовой проект 902-2-179Типовой проект 902-2-179Типовой проект 902-2-179Типовой проект 902-2-179Типовой проект 902-2-179Типовой проект 902-2-179Типовой проект 902-2-179Типовой проект 902-2-179Типовой проект 902-2-179Типовой проект 902-2-179Типовой проект 902-2-179Типовой проект 902-2-179Типовой проект 902-2-179Типовой проект 902-2-179Типовой проект 902-2-179Типовой проект 902-2-179Типовой проект 902-2-179Типовой проект 902-2-179Типовой проект 902-2-179

© 2013 Ёшкин Кот :-) Карта сайта