Информационная система
«Ёшкин Кот»

Скачать базу одним архивом
Скачать обновления
История создания базы
Карта сайта

Скачать Типовой проект 902-2-178 Альбом IX. Нестандартизированное оборудование. Затвор щитовой 1200х2000 (из ТП 902-2-179)

Дата актуализации: 10.08.2017

Типовой проект 902-2-178

Альбом IX. Нестандартизированное оборудование. Затвор щитовой 1200х2000 (из ТП 902-2-179)

Обозначение: Типовой проект 902-2-178
Обозначение англ: 902-2-178
Статус:не действует
Название рус.:Альбом IX. Нестандартизированное оборудование. Затвор щитовой 1200х2000 (из ТП 902-2-179)
Дата добавления в базу:01.09.2013
Дата актуализации:05.05.2017
Дата введения:01.01.1986
Оглавление:Титульный лист
Содержание альбома
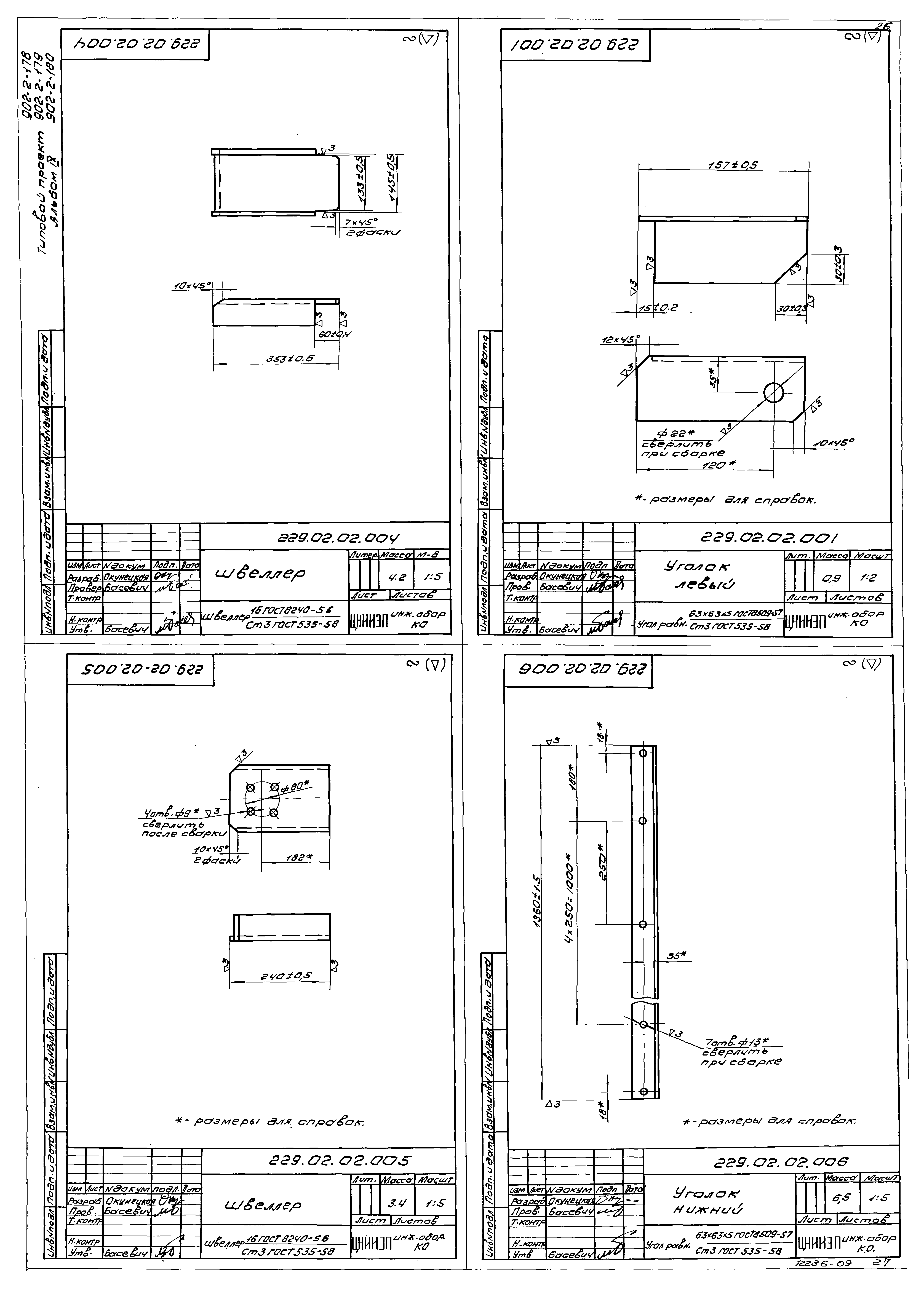
229.00.00.000 Затвор щитовой 1200х2000
229.01.00.000 Рычаг
229.01.00.001 Уголок
229.02.00.000 Рама затвора
229.02.03.000 Рама задняя
229.02.01.000 Рама верхняя
229.03.00.000 Щит в сборе
229.02.02.000 Рама передняя
229.02.05.001 Уголок
229.02.05.000 Стойка правая
229.02.05.002 Уголок правый
229.02.04.000 Стойка правая
229.03.00.000 Щит в сборе
229.03.01.000 Щит
229.03.02.000 Кожух
229.03.01.007 Косынка
229.03.02.002 Заглушка
229.03.02.001 Кожух
229.04.00.003 Палец
229.04.00.002 Втулка
229.04.00.001 Корпус
229.04.00.000 Гайка
229.05.00.000 Кронштейн
229.05.00.002 Бобышка
229.05.00.001 Ребро
229.06.00.000 Полуось
229.06.00.002 Плита
229.06.00.001 Ось
229.07.00.000 Звездочка t=15,875 z=21
229.07.01.000 Звездочка
229.08.00.000 Ручка
229.09.00.000 Звездочка t=15,875 z=14
229.08.01.001 Планка
229.08.01.000 Планка
229.08.01.002 Бобышка
229.08.00.001 Ручка
229.00.00.003 Прокладка
229.00.00.008 Прокладка
229.01.00.003 Вставка
229.01.00.002 Ушко
229.02.01.001 Швеллер
229.02.01.002 Ребро
229.02.01.005 Трубы
229.02.01.004 Плита
229.02.00.003 Втулка распорная
229.02.00.006 Планка
229.02.01.006 Ушко
229.02.00.005 Полоса анкерная
229.02.02.004 Швеллер
229.02.02.001 Уголок левый
229.02.02.006 Уголок нижний
229.02.02.005 Швеллер
229.02.02.002 Уголок левый
229.02.02.003 Уголок правый
229.02.04.001 Уголок левый
229.02.04.002 Уголок
229.02.03.002 Уголок левый
229.02.03.001 Уголок правый
229.02.00.007 Прокладка
229.02.00.002 Полоса анкерная
229.02.00.001 Накладка
229.02.00.004 Уплотнение
229.03.00.006 Уплотнение боковое
229.02.02.007 Уголок правый
229.03.00.007 Планка
229.03.01.006 Уголок
229.03.00.002 Уплотнение данное
229.03.00.001 Ограничитель
229.03.01.001 Стойка левая
229.03.01.004 Лист
229.03.01.005 Стойка правая
229.03.01.003 Косынка
229.03.01.002 Плита
229.03.00.003 Планка
229.03.00.005 Планка
229.03.00.004 Планка
229.05.00.003 Основание
229.09.00.002 Звездочка
229.09.00.001 Втулка
229.07.01.002 Звездочка
229.07.00.001 Втулка
229.07.01.001 Втулка
229.00.00.001 Штанга
229.00.00.009 Рукав
229.00.00.015 Штырь
229.00.00.002 Крышка
229.00.00.017 Прокладка
229.07.01.003 Планка
229.00.00.004 Втулка
229.00.00.005 Кольцо верхнее
229.00.00.007 Кольцо сальниковое
229.00.00.006 Кольцо нижнее
229.00.00.013 Ось
229.00.00.014 Пружина
229.00.00.011 Шайба
229.00.00.012 Прокладка
229.00.00.016 Корпус
229.00.00.000 Затвор щитовой 1200х1200. Спецификация
229.01.00.000 Рычаг. Спецификация
229.02.03.000 Рама задняя. Спецификация
229.02.00.000 Рама затвора. Спецификация
229.03.02.000 Кожух. Спецификация
229.03.01.000 Щит. Спецификация
229.03.00.000 Щит в сборе. Спецификация
229.02.01.000 Рама верхняя. Спецификация
229.02.02.000 Рама передняя. Спецификация
229.04.00.000 Гайка. Спецификация
229.05.00.000 Кронштейн. Спецификация
229.09.00.000 Звездочка t=15,875 z=14. Спецификация
229.07.01.000 Звездочка. Спецификация
229.07.00.000 Звездочка t=15,875 z=21. Спецификация
229.08.00.000 Ручка. Спецификация
Разработан: ЦНИИЭП инженерного оборудования
Утверждён:27.10.1972 Госгражданстрой (Gosgrazhdanstroy 205)
Расположен в:Техническая документация Строительство Справочные документы Типовые строительные конструкции, изделия и узлы Общероссийский строительный каталог Промышленные предприятия, здания и сооружения Здания и сооружения санитарно-технические Канализация Сооружения биологической (биохимической) очистки Аэротенки, аэрируемые биопруды, аэроакселаторы
Заменяет собой:
  • Типовой проект 902-2-48
Типовой проект 902-2-178Типовой проект 902-2-178Типовой проект 902-2-178Типовой проект 902-2-178Типовой проект 902-2-178Типовой проект 902-2-178Типовой проект 902-2-178Типовой проект 902-2-178Типовой проект 902-2-178Типовой проект 902-2-178Типовой проект 902-2-178Типовой проект 902-2-178Типовой проект 902-2-178Типовой проект 902-2-178Типовой проект 902-2-178Типовой проект 902-2-178Типовой проект 902-2-178Типовой проект 902-2-178Типовой проект 902-2-178Типовой проект 902-2-178Типовой проект 902-2-178Типовой проект 902-2-178Типовой проект 902-2-178Типовой проект 902-2-178Типовой проект 902-2-178Типовой проект 902-2-178Типовой проект 902-2-178Типовой проект 902-2-178Типовой проект 902-2-178Типовой проект 902-2-178Типовой проект 902-2-178Типовой проект 902-2-178Типовой проект 902-2-178Типовой проект 902-2-178Типовой проект 902-2-178Типовой проект 902-2-178Типовой проект 902-2-178Типовой проект 902-2-178Типовой проект 902-2-178Типовой проект 902-2-178Типовой проект 902-2-178Типовой проект 902-2-178Типовой проект 902-2-178Типовой проект 902-2-178Типовой проект 902-2-178Типовой проект 902-2-178

© 2013 Ёшкин Кот :-) Карта сайта