| ||||||||||||||||||||||||||
Скачать Серия ИИЭ23-2 Железобетонные ригели этажерок, прямоугольного сечения, пролетом 4,5 мДата актуализации: 10.08.2017
|
| Обозначение: | Серия ИИЭ23-2 |
| Обозначение англ: | Series ИИЭ23-2 |
| Статус: | не действует |
| Название рус.: | Железобетонные ригели этажерок, прямоугольного сечения, пролетом 4,5 м |
| Дата добавления в базу: | 01.09.2013 |
| Дата актуализации: | 05.05.2017 |
| Дата окончания срока действия: | 01.07.1974 |
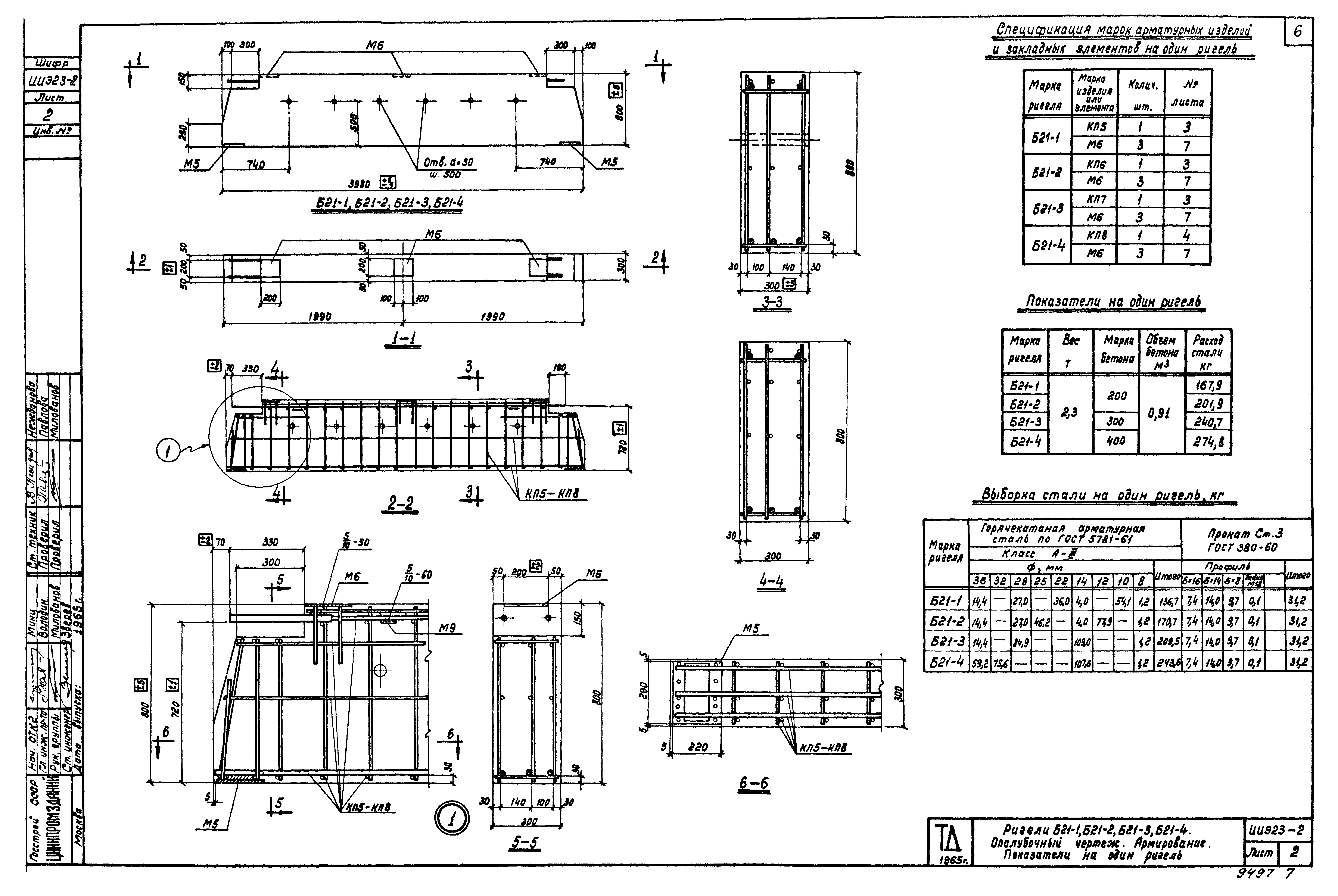
| Оглавление: | Пояснительная записка Ригель Б20-1,Б20-2,Б20-3,Б20-4. Опалубочный чертеж. Армирование. Показатели на один ригель Ригель Б21-1,Б21-2,Б21-3,Б21-4. Опалубочный чертеж. Армирование. Показатели на один ригель Ригели Б20-1-Б20-3,Б21-1-Б21-3. Пространственные каркасы КП1-КП3,КП5-КП7. Спецификация марок арматурных изделий Ригели Б20-4,Б21-4. Пространственные каркасы КП4,КП8. Спецификация марок арматурных изделий Ригели Б20-1-Б20-4,Б21-1-Б21-4. Детали пространственных каркасов Ригели Б20-1-Б20-4,Б21-1-Б21-4. Каркасы КР1-КР8. Спецификация и выборка стали Ригели Б20-1-Б20-4,Б21-1-Б21-4. Закладные элементы М5,М6,М8А,М11,М12 Заготовочные чертежи отдельных позиций. Спецификация стали на один закладной элемент |
| Разработан: | ЦНИИпромзданий НИИЖБ |
| Утверждён: | 03.10.1967 Госстрой СССР (Государственный комитет Совета Министров СССР по делам строительства) (USSR Gosstroy 169) |
| Расположен в: |












