| ||||||||||||||||||||||||||||
Скачать Серия ИИЭ23-1 Железобетонные ригели этажерок, прямоугольного сечения, пролетом 6 мДата актуализации: 10.08.2017
|
| Обозначение: | Серия ИИЭ23-1 |
| Обозначение англ: | Series ИИЭ23-1 |
| Статус: | не действует |
| Название рус.: | Железобетонные ригели этажерок, прямоугольного сечения, пролетом 6 м |
| Дата добавления в базу: | 01.09.2013 |
| Дата актуализации: | 05.05.2017 |
| Дата окончания срока действия: | 01.07.1974 |
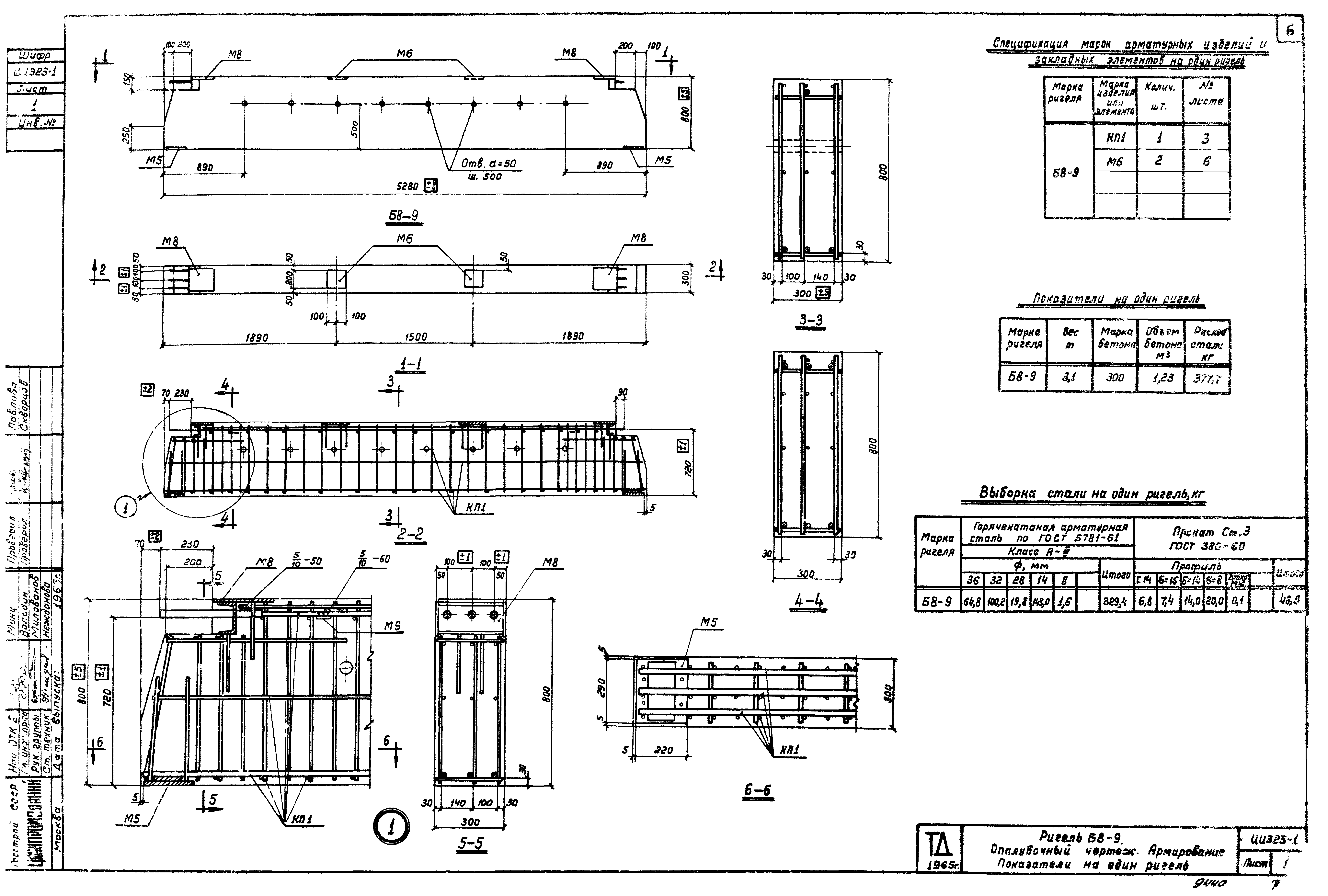
| Оглавление: | Пояснительная записка Ригель 68-9. Опалубочный чертеж. Армирование. Показатели на один ригель Ригель 69-5,69-6. Опалубочный чертеж. Армирование. Показатели на один ригель Ригель 68-9,69-5,69-6. Пространственные каркасы КП1-КП3. Спецификация марок арматурных изделий Ригель 68-9,69-5,69-6. Детали пространственных каркасов Ригель 68-9,69-5,69-6. Каркасы КР1-КР3. Спецификация и выборка стали Ригель 68-9,69-5,69-6. Закладные элементы М3,М5,М6,М8,М9 Заготовочные чертежи отдельных позиций. Спецификация стали на один закладной элемент |
| Разработан: | ЦНИИпромзданий НИИЖБ |
| Утверждён: | 29.08.1967 Госстрой СССР (Государственный комитет Совета Министров СССР по делам строительства) (USSR Gosstroy 160) |
| Расположен в: | |
| Чем заменён: |












