| ||||||||||||||||||||
Скачать Том 5. Рабочие чертежи КМ. Пояснительная запискаДата актуализации: 10.08.2017 |
| Статус: | cправочные материалы, мп, тпр |
| Название рус.: | Том 5. Рабочие чертежи КМ. Пояснительная записка |
| Дата добавления в базу: | 01.09.2013 |
| Дата актуализации: | 05.05.2017 |
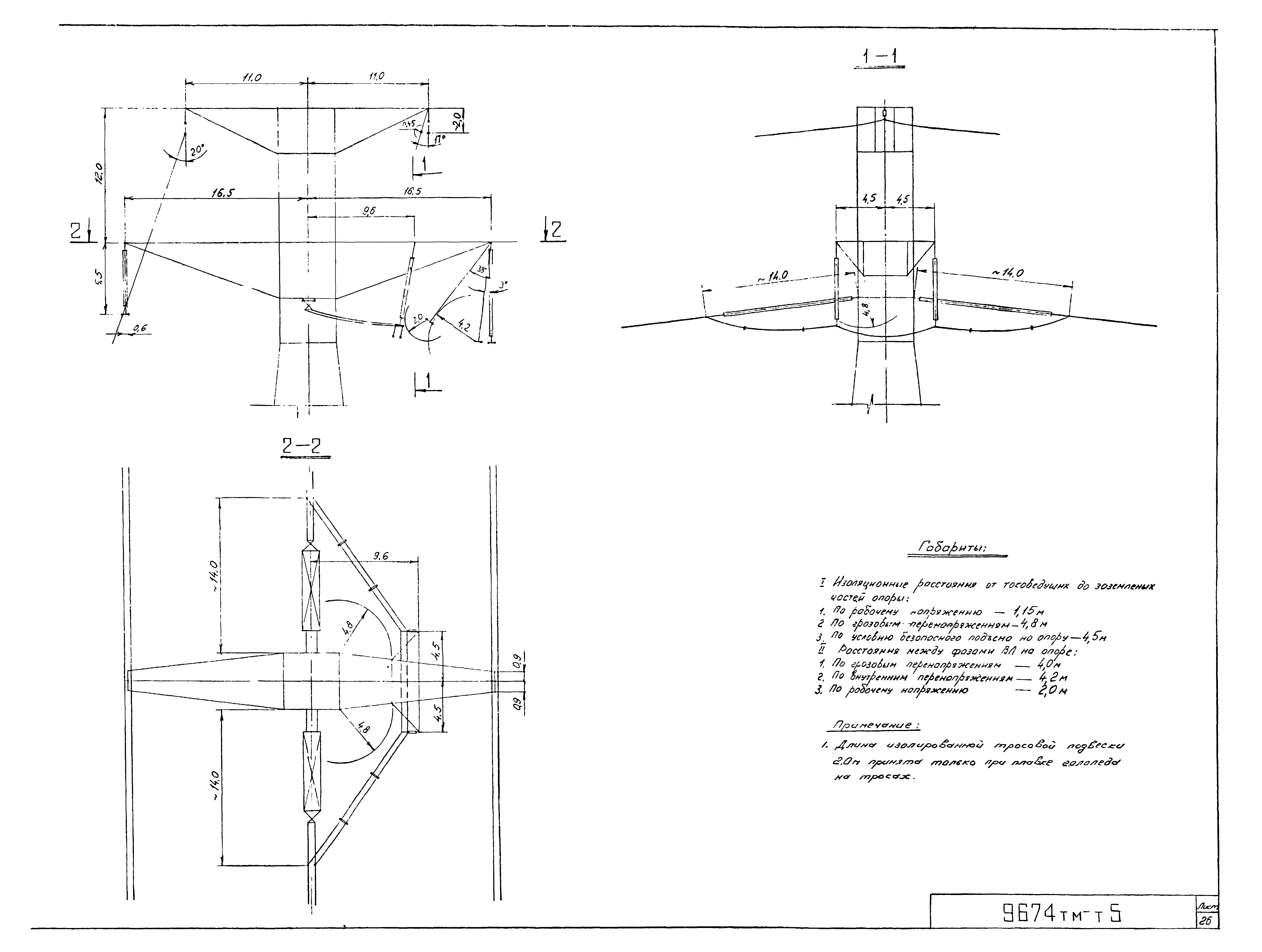
| Оглавление: | Обложка Титульные листы Состав проекта Содержание тома 5 Сведения по технической документации Пояснительная записка 1. Основные исходные положения проекта 2. Краткое описание конструкций опор 3. Указания по применению опор 4. Выписка из патентного формуляра инв. №9674ТМ-Т4. Отчет о патентных исследованиях Приложение 1. Обзорный лист опор Приложение 2. Воздушно-изоляционные расстояния для переходных опор Приложение 3. Воздушно-изоляционные расстояния для концевой опоры Приложение 4. Нагрузки на фундаменты переходных опор |
| Разработан: | Северо-западное отделение института Энергосетьпроект |
| Утверждён: | 01.01.1981 Энергосетьпроект (Energosetproject ) |
| Расположен в: |


























