| ||||||||||||||||||||||||
Скачать А-06/63 Выпуск 2. Чертежи повторного примененияДата актуализации: 10.08.2017
|
| Обозначение: | А-06/63 |
| Обозначение англ: | А-06/63 |
| Статус: | не действует |
| Название рус.: | Выпуск 2. Чертежи повторного применения |
| Дата добавления в базу: | 01.09.2013 |
| Дата актуализации: | 05.05.2017 |
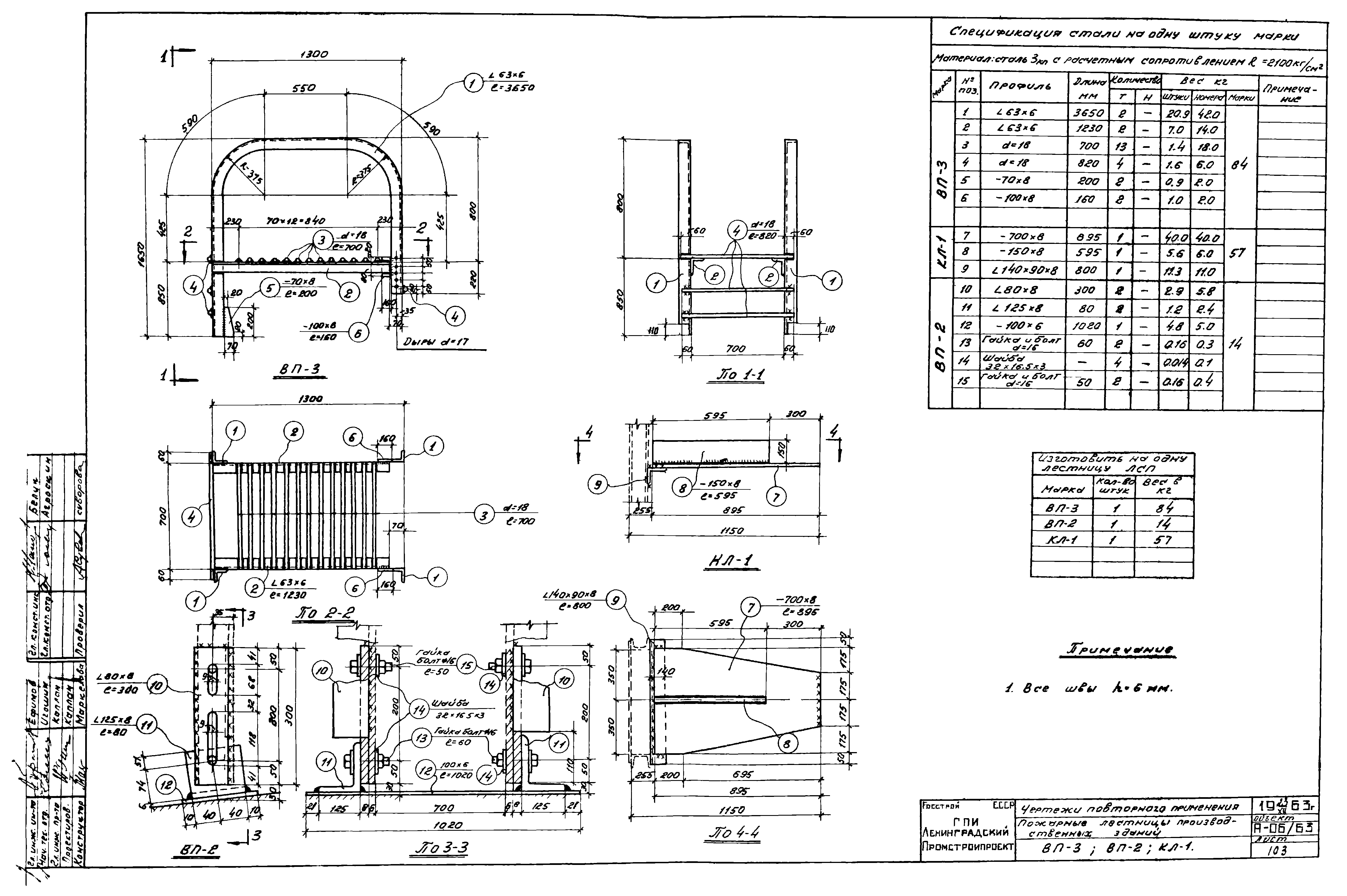
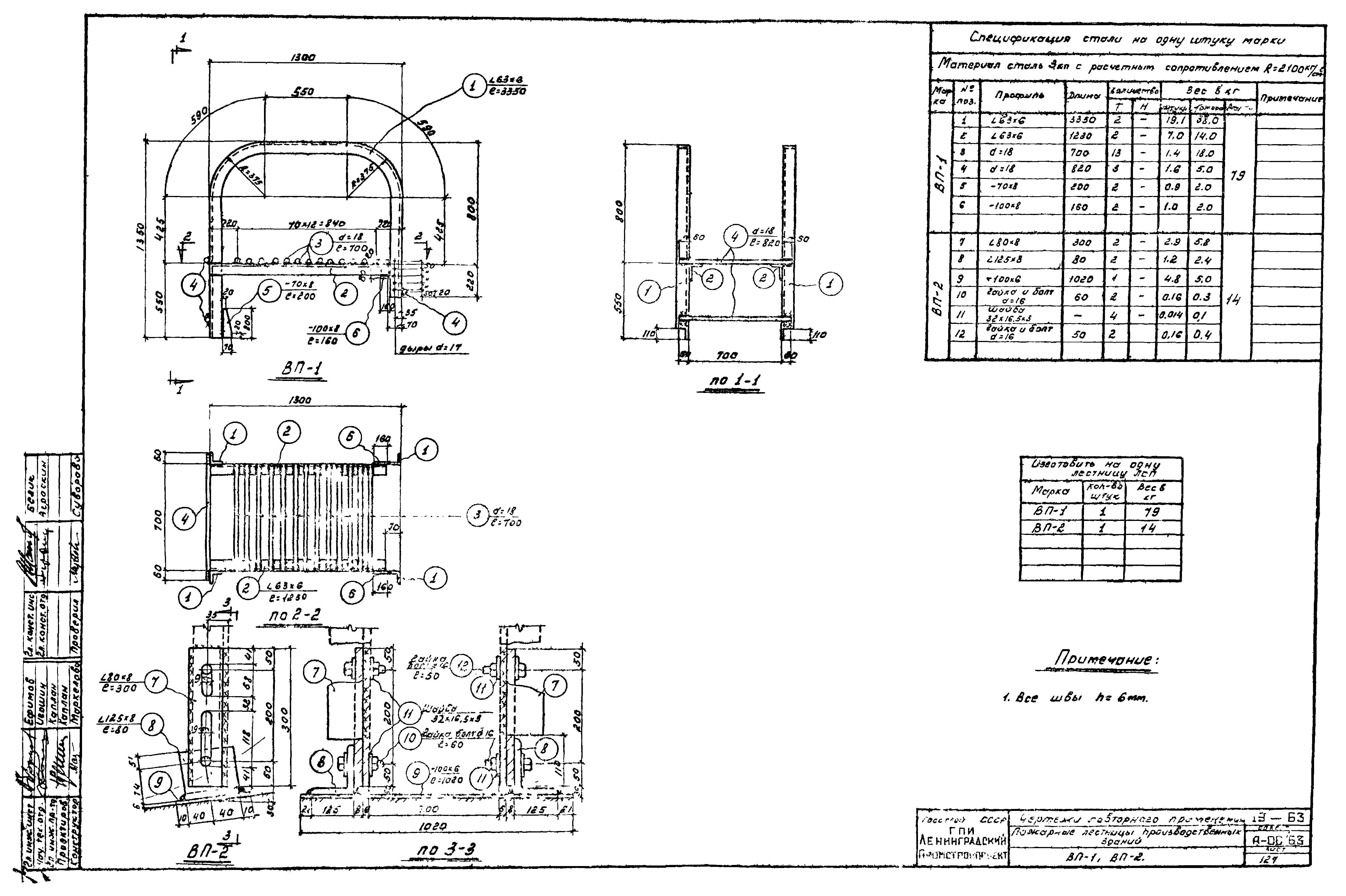
| Оглавление: | ЛП-1 ЛП-2 ЛП-3 ЛП-4 ЛП-5 ЛП-6 ЛП-7 ЛП-8 ЛП-9 ЛП-10 ЛП-11 ЛП-12 ЛП-13 ЛП-14 ЛП-15 ЛП-16 ЛП-17 ЛП-18 ЛП-19 ЛП-20 ЛП-21 ЛП-22 ЛП-23 ЛП-24 ЛП-25 ЛП-26 ЛП-27 ЛП-28 ЛП-29 ЛП-30 ЛП-31 ЛП-32 ЛП-33 ЛП-34 ЛП-35 ЛП-36 ЛП-37 ЛП-38 ЛП-39 ЛП-40 ЛП-41 ЛП-42 ЛП-43 ЛП-44 ЛП-45 ЛП-46 ЛП-47 ЛП-48 ЛП-49 ЛП-50 ЛП-51 ЛП-52 ЛП-53 ЛП-54 ЛП-55 ЛП-56 ЛП-57 ЛП-58;КЛ-25 ЛП-59;КЛ-25 ЛП-60;КЛ-25 ЛП-61;КЛ-25 ЛП-62;КЛ-25 ЛП-63;КЛ-25 ЛП-64;КЛ-25 ЛП-65;КЛ-25 ЛП-66;КЛ-25 ЛП-67;КЛ-25 ЛП-68;КЛ-25 ВП-1;ВП-2;КЛ-1 ВП-3;ВП-2;КЛ-1 ВП-3;ВП-2;КЛ-2 ВП-1;ВП-2;КЛ-1;КЛ-2 ВП-4;ВП-2;КЛ-1 ВП-4;ВП-2;КЛ-3 ВП-5;ВП-2;КЛ-3 ВП-5;ВП-2;КЛ-4 ВП-5;ВП-2;КЛ-3;КЛ-4 ПП-1 Крепление лестницы при установке между колоннами КЛ-15;КЛ-20 Крепление лестницы при установке между колоннами КЛ-16;КЛ-21 Крепление лестницы при установке между колоннами КЛ-17;КЛ-22 Крепление лестницы при установке между колоннами КЛ-18;КЛ-23 Крепление лестницы при установке между колоннами КЛ-19;КЛ-24 Крепление лестницы при установке между колоннами КЛ-5;КЛ-10 Крепление лестницы при установке между колоннами КЛ-6;КЛ-11 Крепление лестницы при установке между колоннами КЛ-7;КЛ-12 Крепление лестницы при установке между колоннами КЛ-8;КЛ-13 Крепление лестницы при установке между колоннами КЛ-9;КЛ-14 ВП-6;ВП-2;КЛ-3 ВП-1;ВП-2 ВП-6;ВП-2 |
| Разработан: | Ленинградский Промстройпроект |
| Утверждён: | 23.12.1963 Ленинградский Промстройпроект |
| Расположен в: |


































































































