Скачать Серия КЭ-01-52 Выпуск X. Альбом 1. Колонны, армированные сварными каркасами. Рабочие чертежи колоннДата актуализации: 10.08.2017 Серия КЭ-01-52
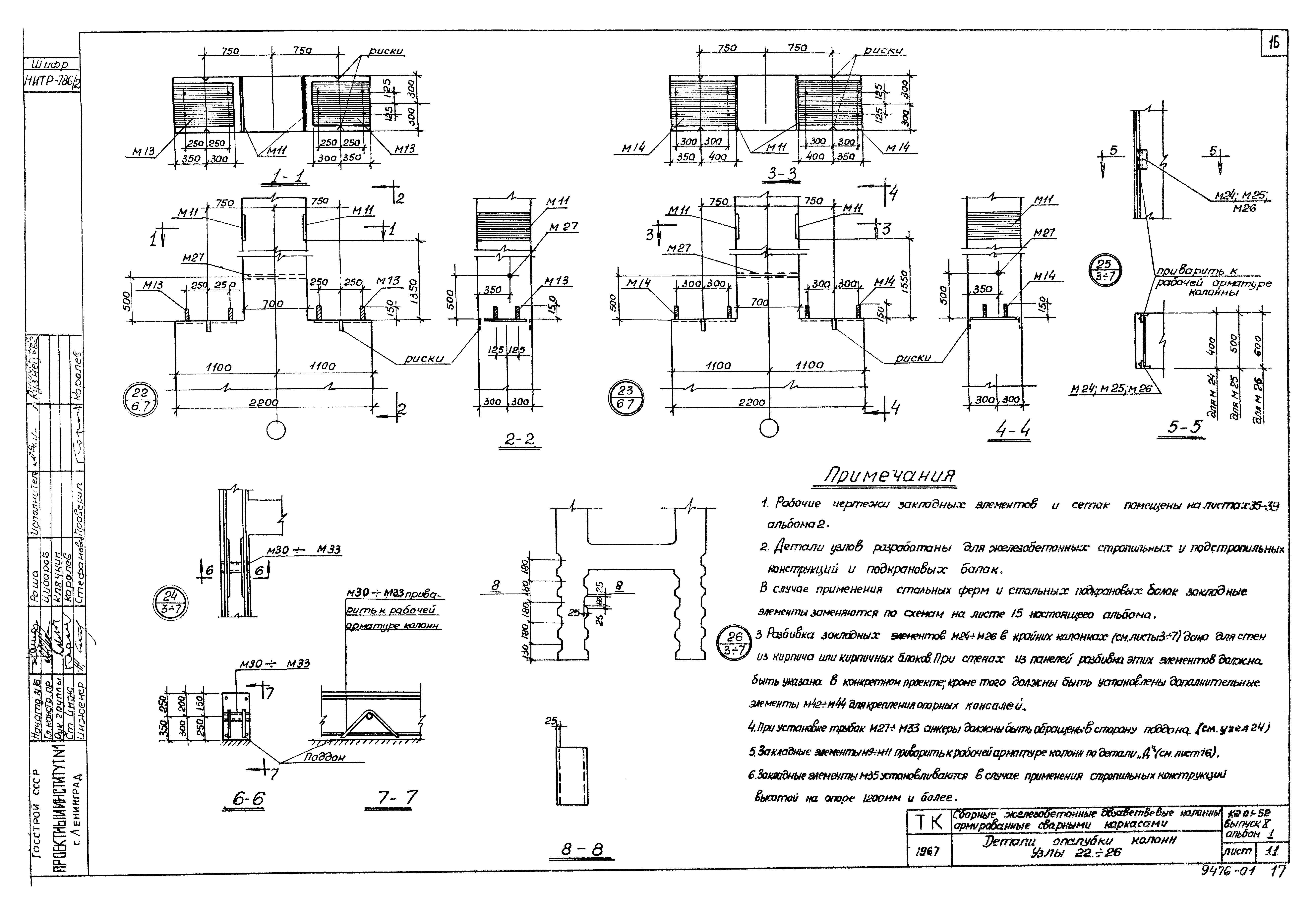
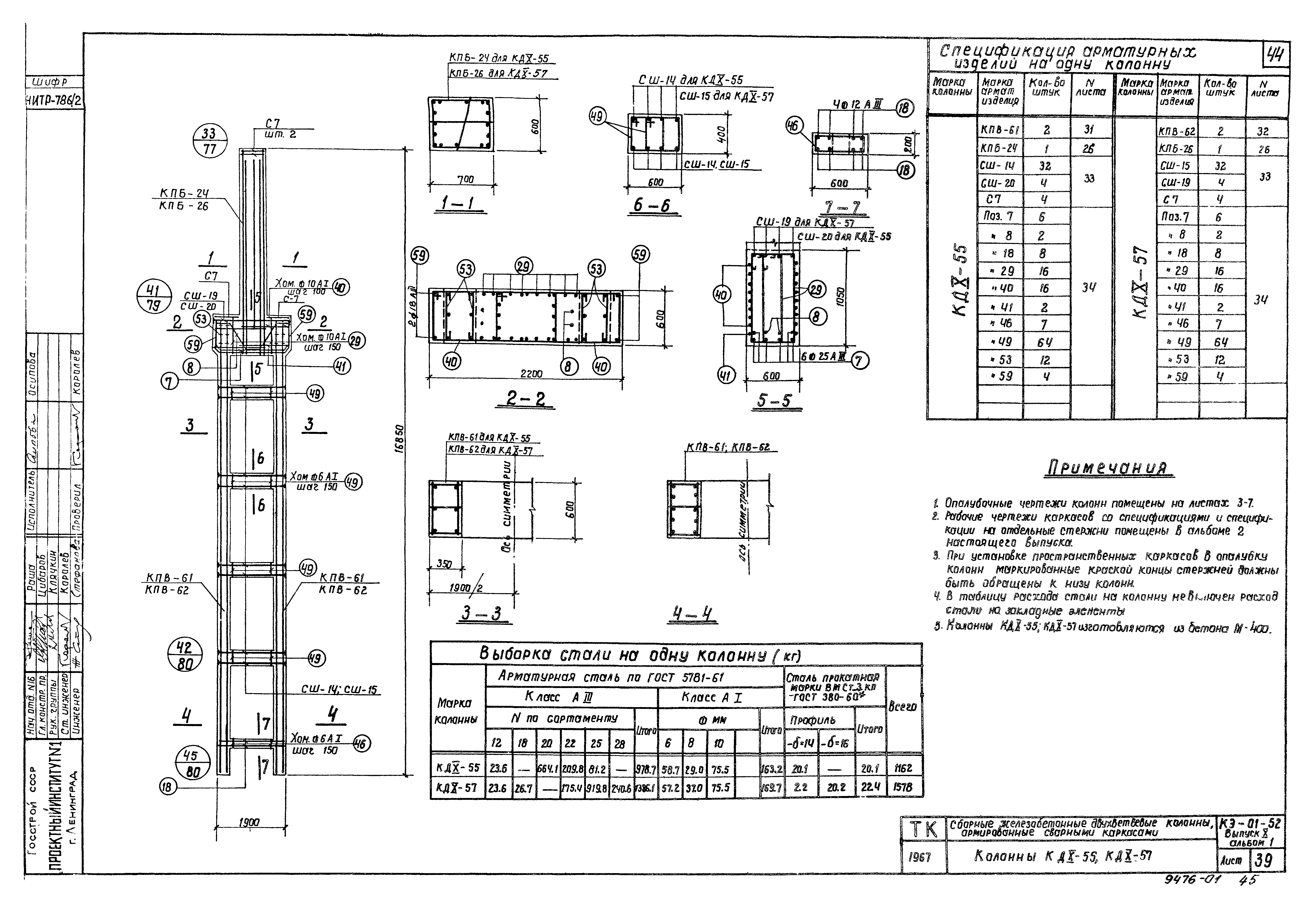
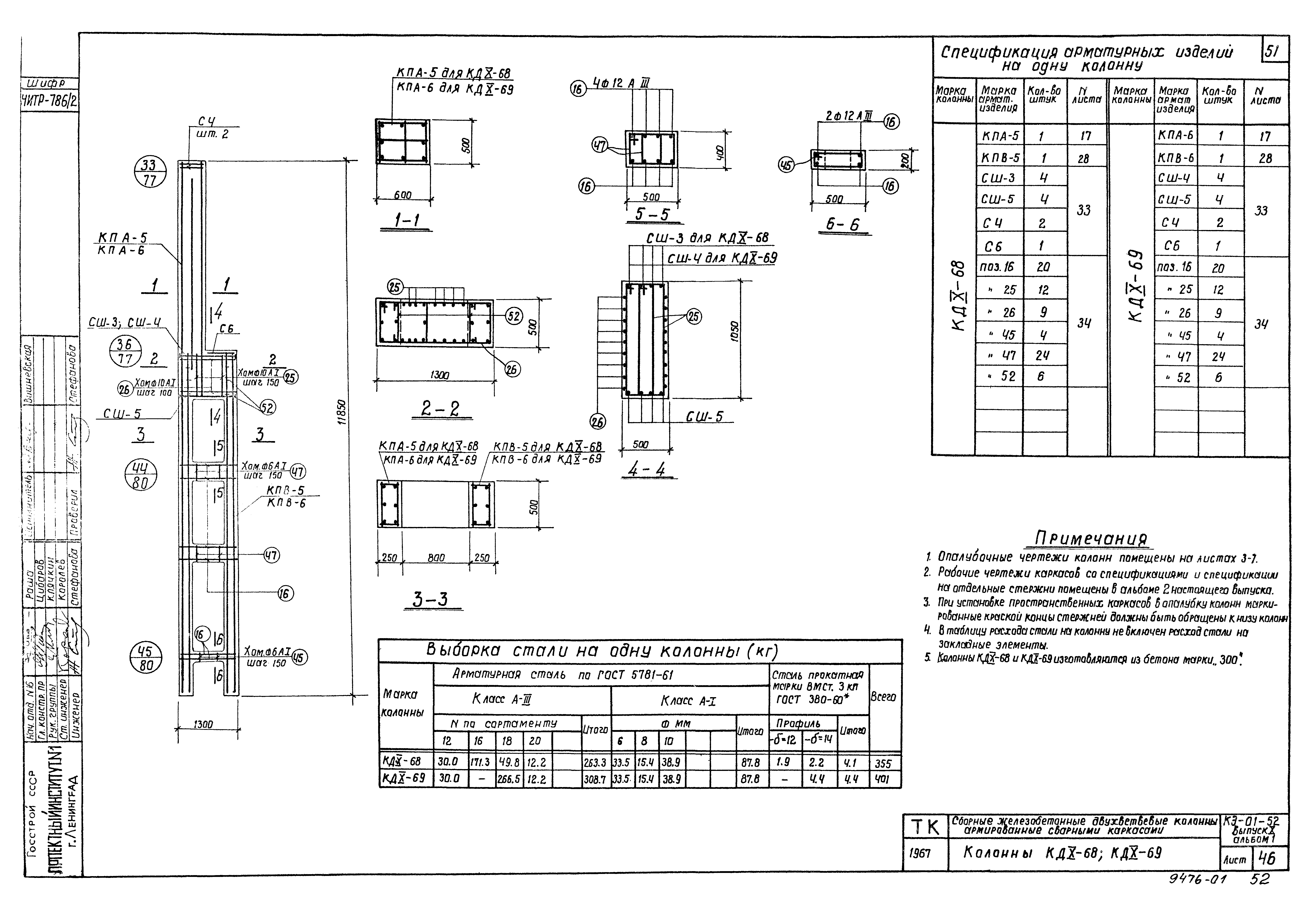
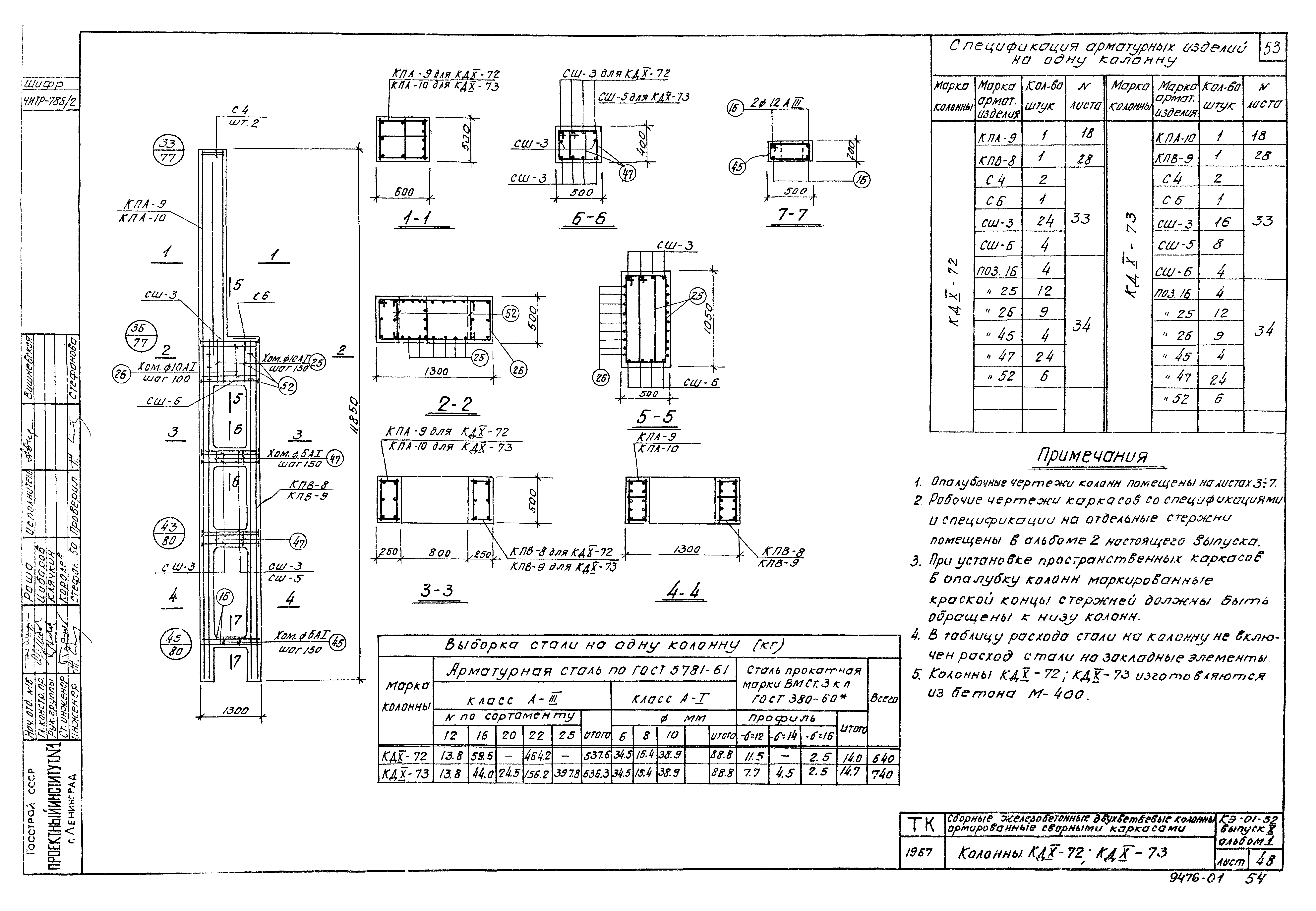
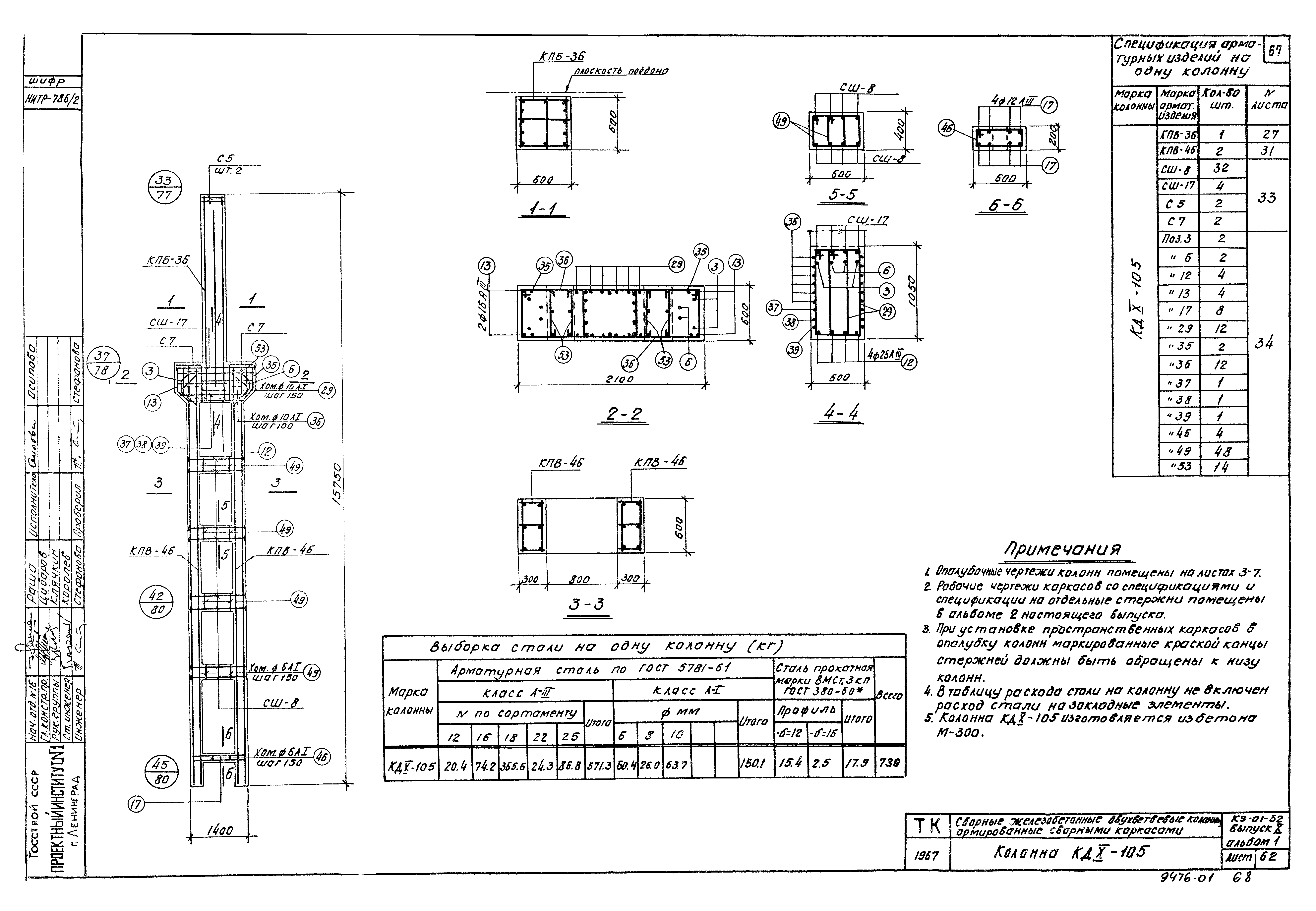
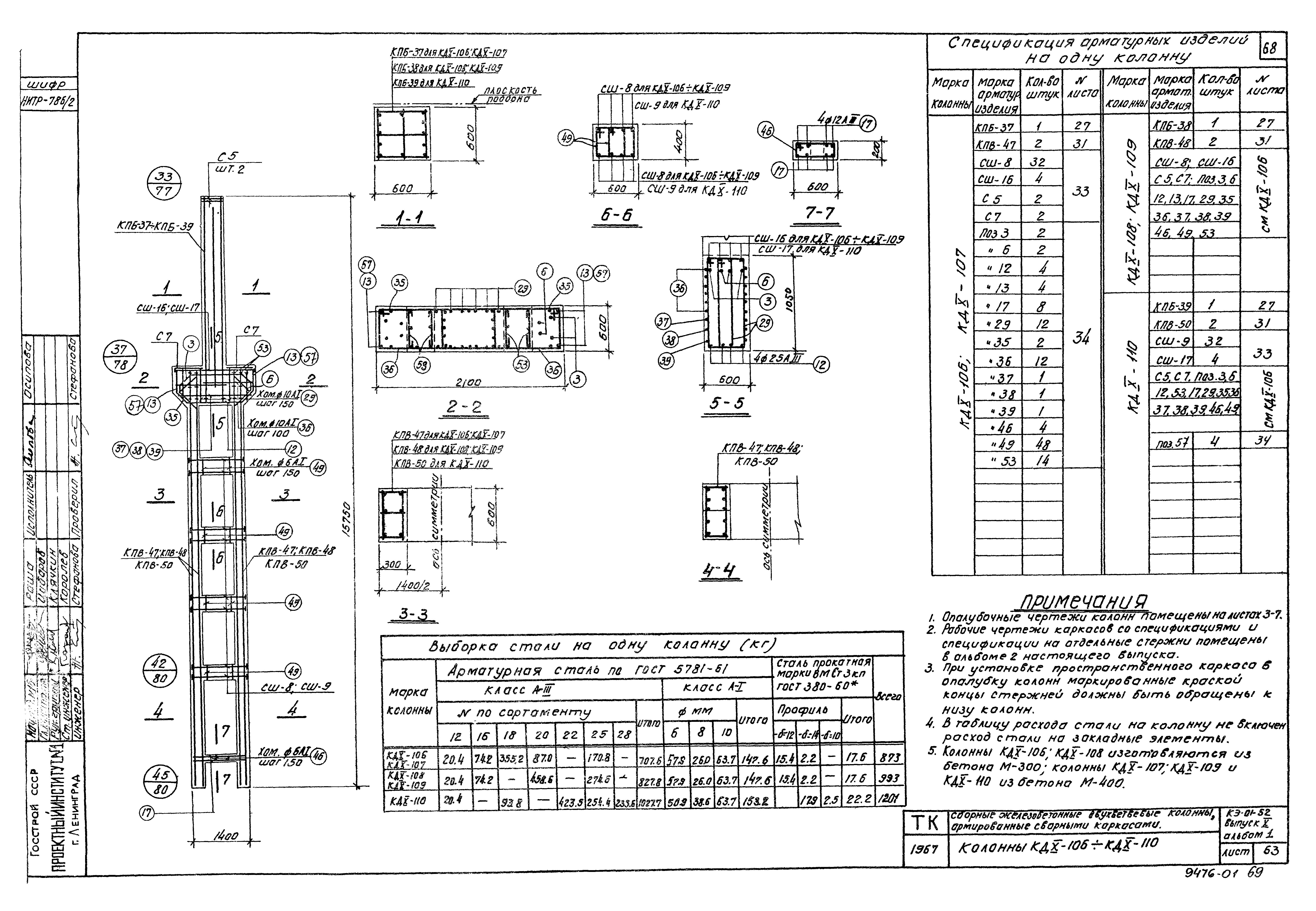
Выпуск X. Альбом 1. Колонны, армированные сварными каркасами. Рабочие чертежи колоннОбозначение: | Серия КЭ-01-52 | Обозначение англ: | Series КЭ-01-52 | Статус: | не действует | Название рус.: | Выпуск X. Альбом 1. Колонны, армированные сварными каркасами. Рабочие чертежи колонн | Дата добавления в базу: | 01.09.2013 | Дата актуализации: | 05.05.2017 | Дата введения: | 01.04.1968 | Дата окончания срока действия: | 01.02.1984 | Оглавление: | Содержание альбома Пояснительная записка Таблица замены марок колонн Расход материалов на колонны Колонны КДХ-1-КДХ-13;КДХ-68-КДХ-80. Опалубка Колонны КДХ-14-КДХ-32;КДХ-81-КДХ-95. Опалубка Колонны КДХ-33-КДХ-48;КДХ-96-КДХ-110. Опалубка Колонны КДХ-49-КДХ-57;КДХ-111-КДХ-122. Опалубка Колонны КДХ-58-КДХ-67;КДХ-123-КДХ-138. Опалубка Детали опалубки колонны. Узлы 1-9 Детали опалубки колонны. Узлы 10-16 Детали опалубки колонны. Узлы 17-21 Детали опалубки колонны. Узлы 22-26 Схема разбивки закладных элементов в М34 в крайних колоннах для крепления стоек торцового фахверка Схема разбивки закладных элементов в М34 в средних колоннах для крепления стоек торцового фахверка Детали опалубки колонн. Узлы 27-30. Детали установки закладных элементов М42-М44 для крепления опорных каркасов Схемы установки закладных элементов при применении стальных ферм покрытия Ключи для подбора и схема установки закладных элементов при применении стальных разрезных и неразрезных подкрановых балок Колонны КДХ-1,КДХ-2 Колонны КДХ-3,КДХ-4 Колонны КДХ-5-КДХ-7 Колонны КДХ-8-КДХ-10 Колонны КДХ-11,КДХ-12 Колонна КДХ-13 Колонны КДХ-14,КДХ-15 Колонны КДХ-16-КДХ-18 Колонны КДХ-19-КДХ-21 Колонны КДХ-22,КДХ-23 Колонны КДХ-24-КДХ-27 Колонны КДХ-28-КДХ-31 Колонна КДХ-32 Колонна КДХ-33 Колонны КДХ-34-КДХ-36 Колонны КДХ-37-КДХ-39 Колонны КДХ-40-КДХ-41 Колонны КДХ-42-КДХ-47 Колонна КДХ-48 Колонна КДХ-49 Колонны КДХ-50,КДХ-51 Колонны КДХ-52-КДХ-54 Колонны КДХ-55,КДХ-57 Колонна КДХ-56 Колонны КДХ-58,КДХ-59 Колонны КДХ-60,КДХ-61 Колонны КДХ-62,КДХ-64,КДХ-66 Колонна КДХ-63 Колонны КДХ-65,КДХ-67 Колонны КДХ-68,КДХ-69 Колонны КДХ-70,КДХ-71 Колонны КДХ-72,КДХ-73 Колонны КДХ-74,КДХ-75 Колонны КДХ-76-КДХ-78 Колонны КДХ-79,КДХ-80 Колонны КДХ-81,КДХ-82 Колонны КДХ-83-КДХ-85 Колонны КДХ-86-КДХ-88 Колонна КДХ-89 Колонны КДХ-90,КДХ-91 Колонны КДХ-92,КДХ-93 Колонны КДХ-94,КДХ-95 Колонна КДХ-96 Колонны КДХ-97-КДХ-100 Колонны КДХ-101-КДХ-104 Колонна КДХ-105 Колонны КДХ-106-КДХ-110 Колонны КДХ-111-КДХ-113 Колонны КДХ-114-КДХ-116 Колонны КДХ-117-КДХ-119 Колонна КДХ-120 Колонна КДХ-121 Колонна КДХ-122 Колонны КДХ-123-КДХ-126 Колонна КДХ-127 Колонны КДХ-128,КДХ-129 Колонны КДХ-130-КДХ-132 Колонны КДХ-133,КДХ-135,КДХ-137 Колонна КДХ-134 Колонны КДХ-136,КДХ-138 Детали армирования колонн. Узлы 32-36 Детали армирования колонн. Узлы 37,38 Детали армирования колонн. Узлы 39-41 Детали армирования колонн. Узлы 42-45 | Разработан: | НИИЖБ Проектный институт № 1 Госстроя СССР
| Утверждён: | 08.12.1967 Госстрой СССР (Государственный комитет Совета Министров СССР по делам строительства) (USSR Gosstroy 199)
| Расположен в: |
| Чем заменён: | |
                                                                                     
|