Скачать Типовой проект 503-16 Альбом I. Технологическая, строительная, сантехническая и электротехническая частиДата актуализации: 10.08.2017 Типовой проект 503-16
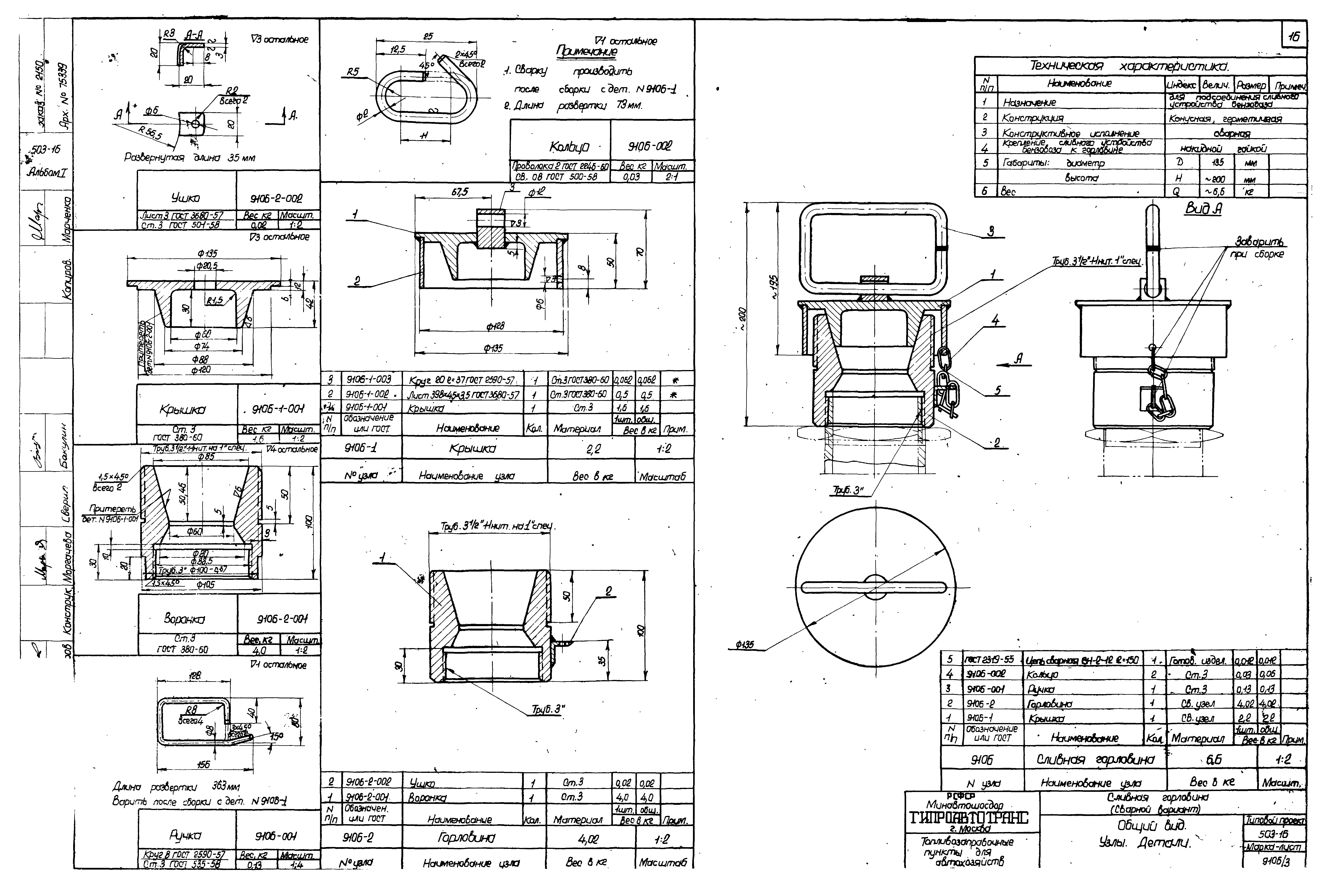
Альбом I. Технологическая, строительная, сантехническая и электротехническая частиОбозначение: | Типовой проект 503-16 | Обозначение англ: | 503-16 | Статус: | не действует | Название рус.: | Альбом I. Технологическая, строительная, сантехническая и электротехническая части | Дата добавления в базу: | 01.09.2013 | Дата актуализации: | 05.05.2017 | Разработан: | Гипроавтотранс Минавтотранса РСФСР
| Утверждён: | 07.06.1966 Гипроавтотранс (80)
| Расположен в: |
|
                                               
|