Обозначение: | Серия 1.463-13с |
Обозначение англ: | Series 1.463-13с |
Статус: | не действует |
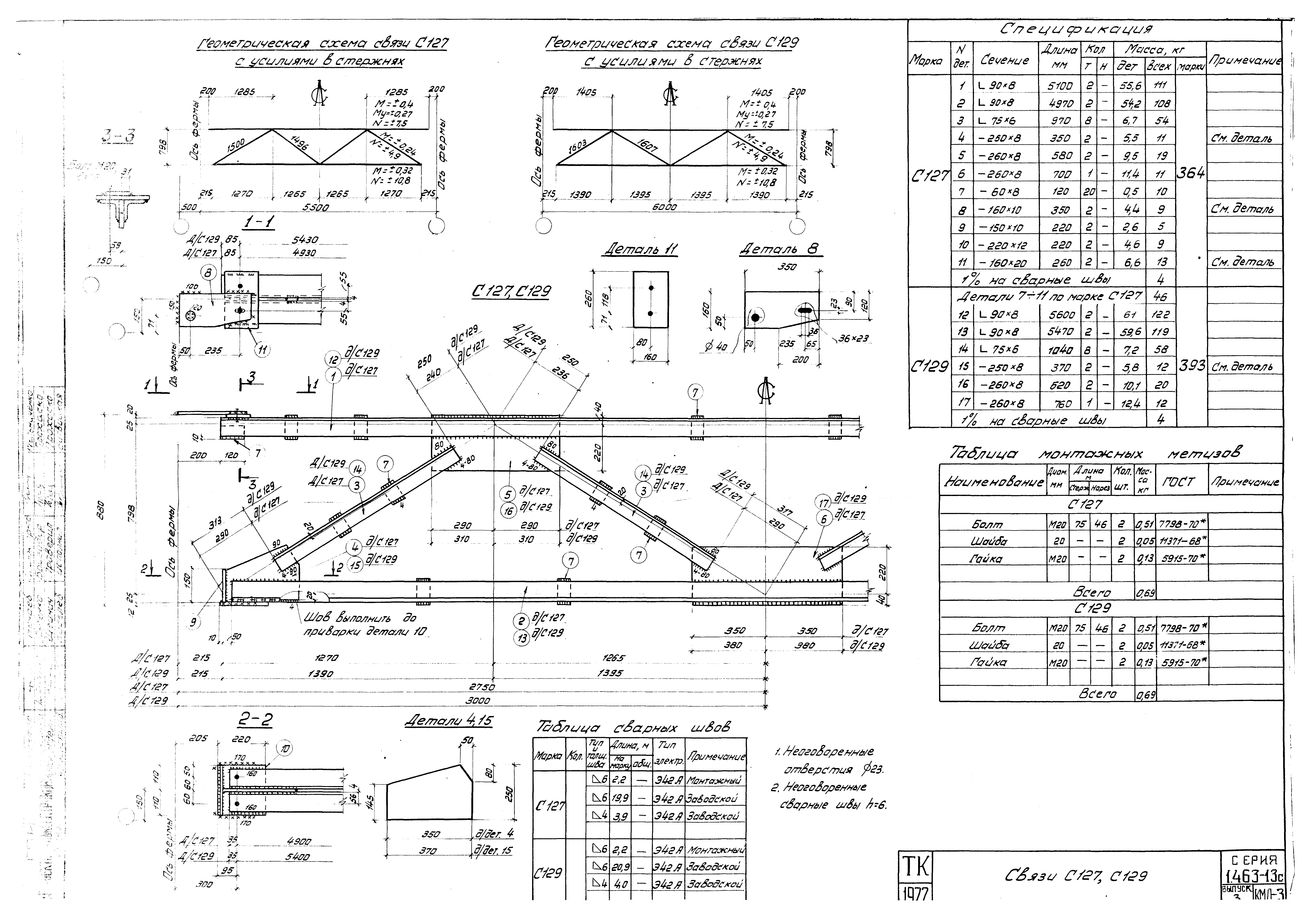
Название рус.: | Выпуск 3. Рабочие чертежи КМД стальных связей |
Дата добавления в базу: | 01.09.2013 |
Дата актуализации: | 05.05.2017 |
Дата введения: | 01.10.1978 |
Дата окончания срока действия: | 01.06.1989 |
Разработан: | НИИЖБ Проектный институт № 1 Госстроя СССР
|
Утверждён: | 05.04.1978 Госстрой СССР (Государственный комитет Совета Министров СССР по делам строительства) (USSR Gosstroy 25)
|
Расположен в: |
|
Чем заменён: | |