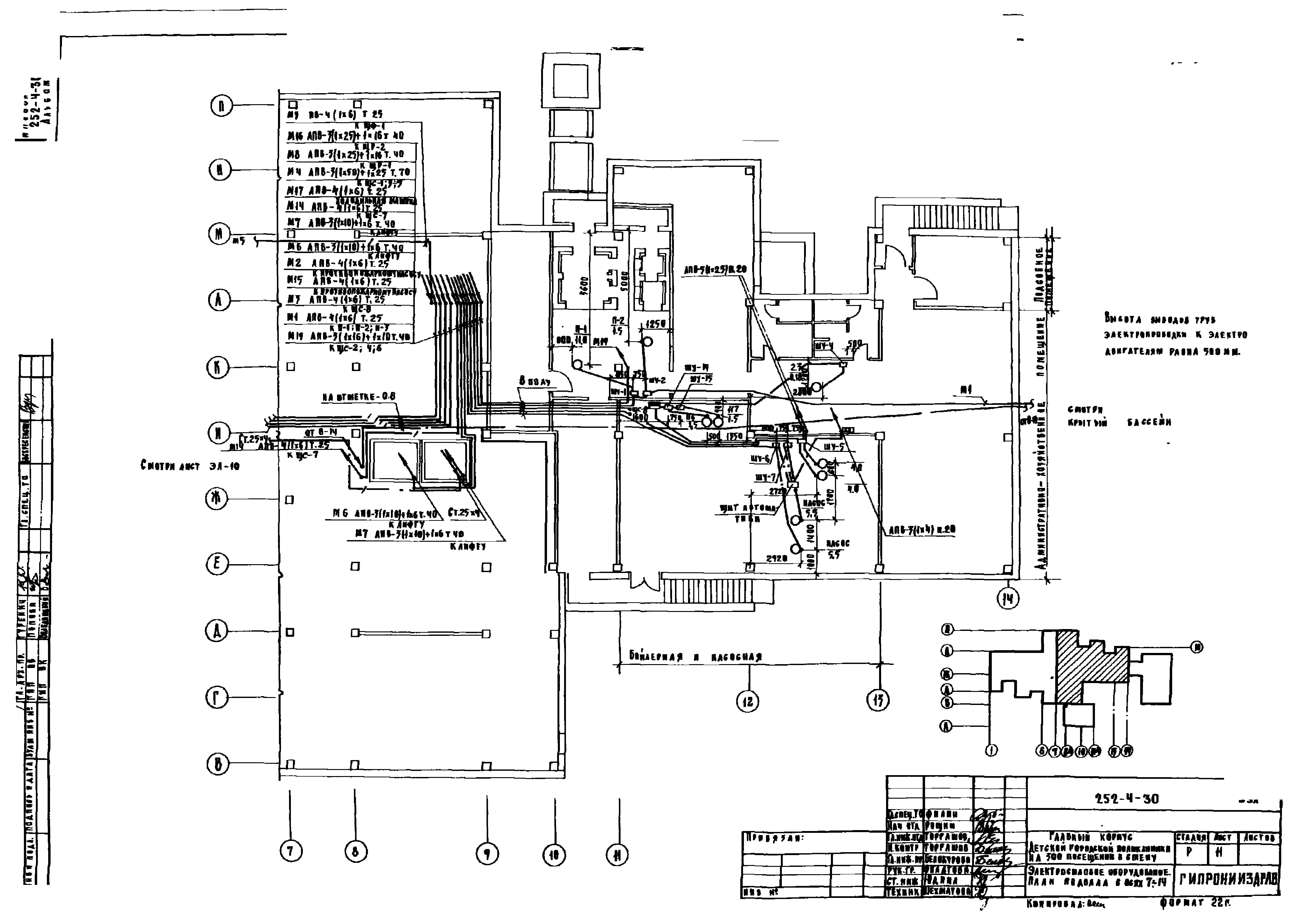
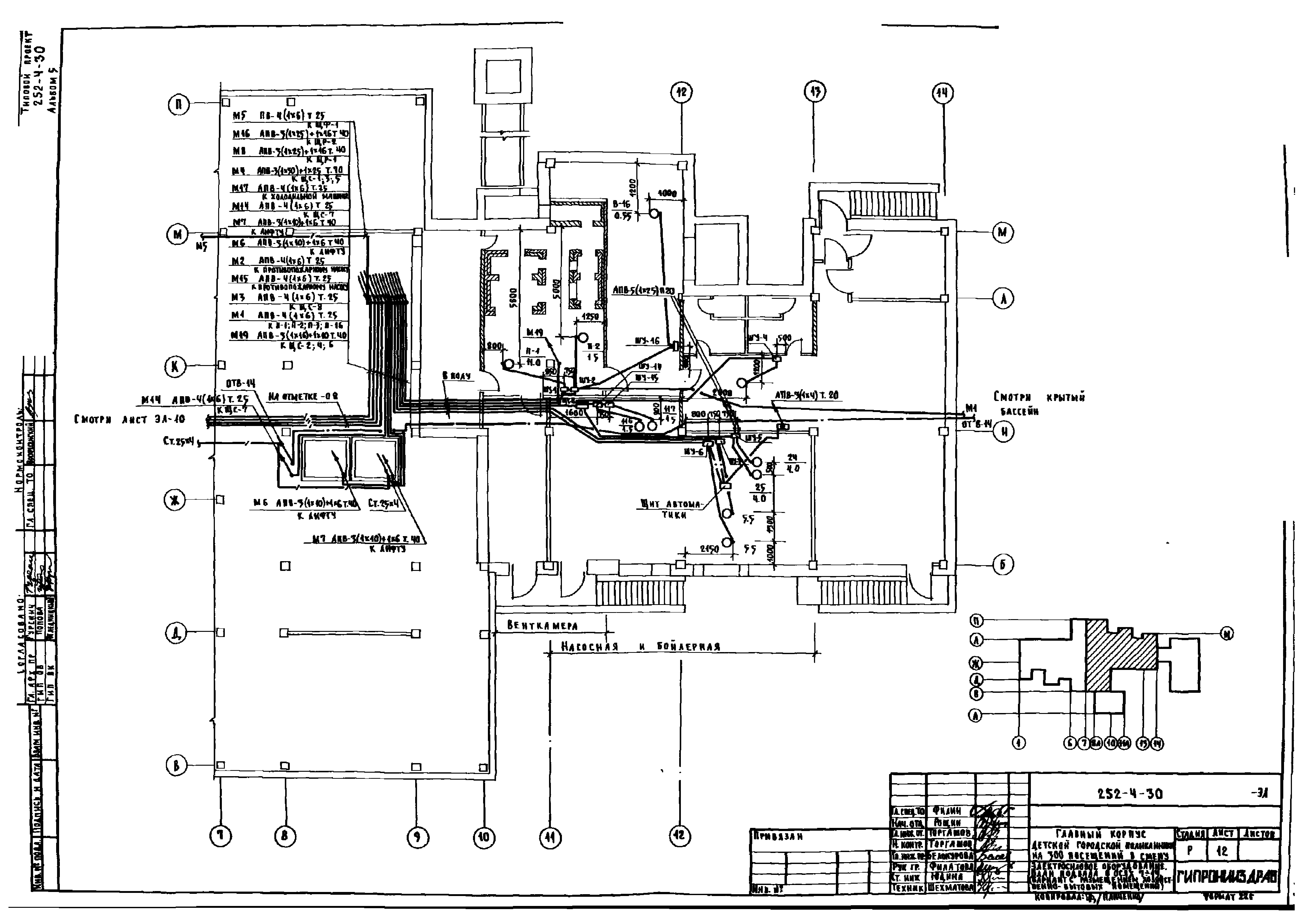
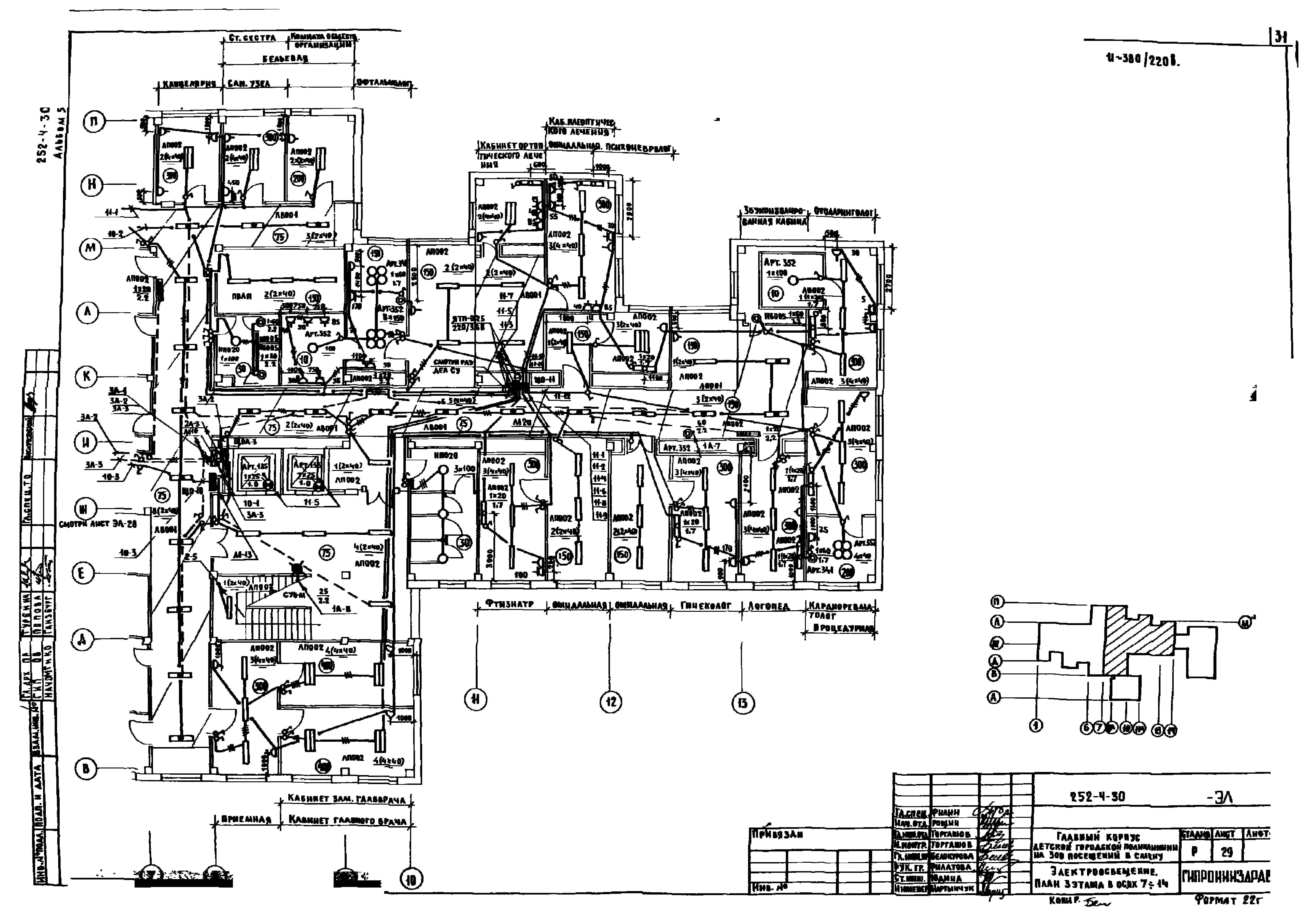
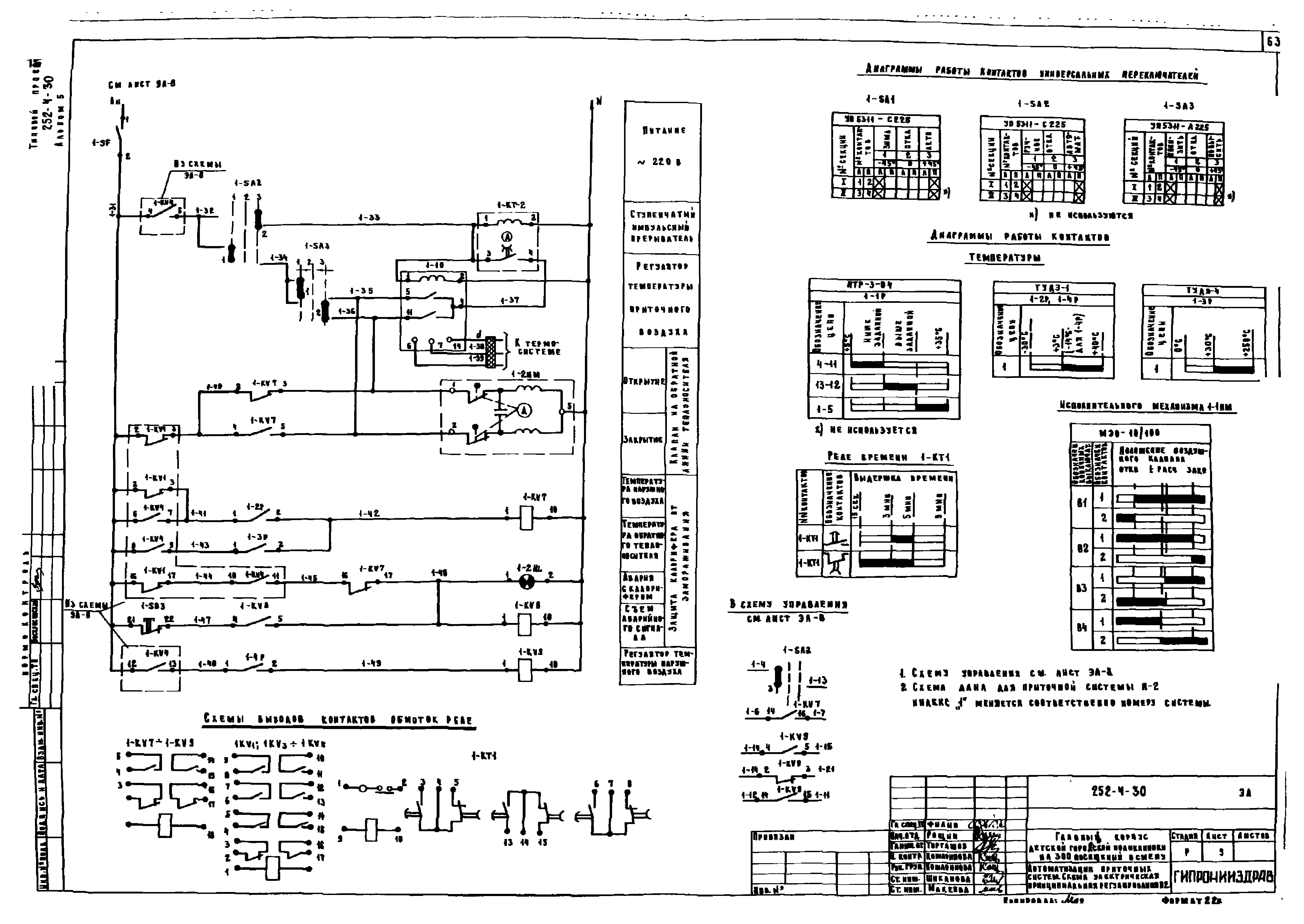
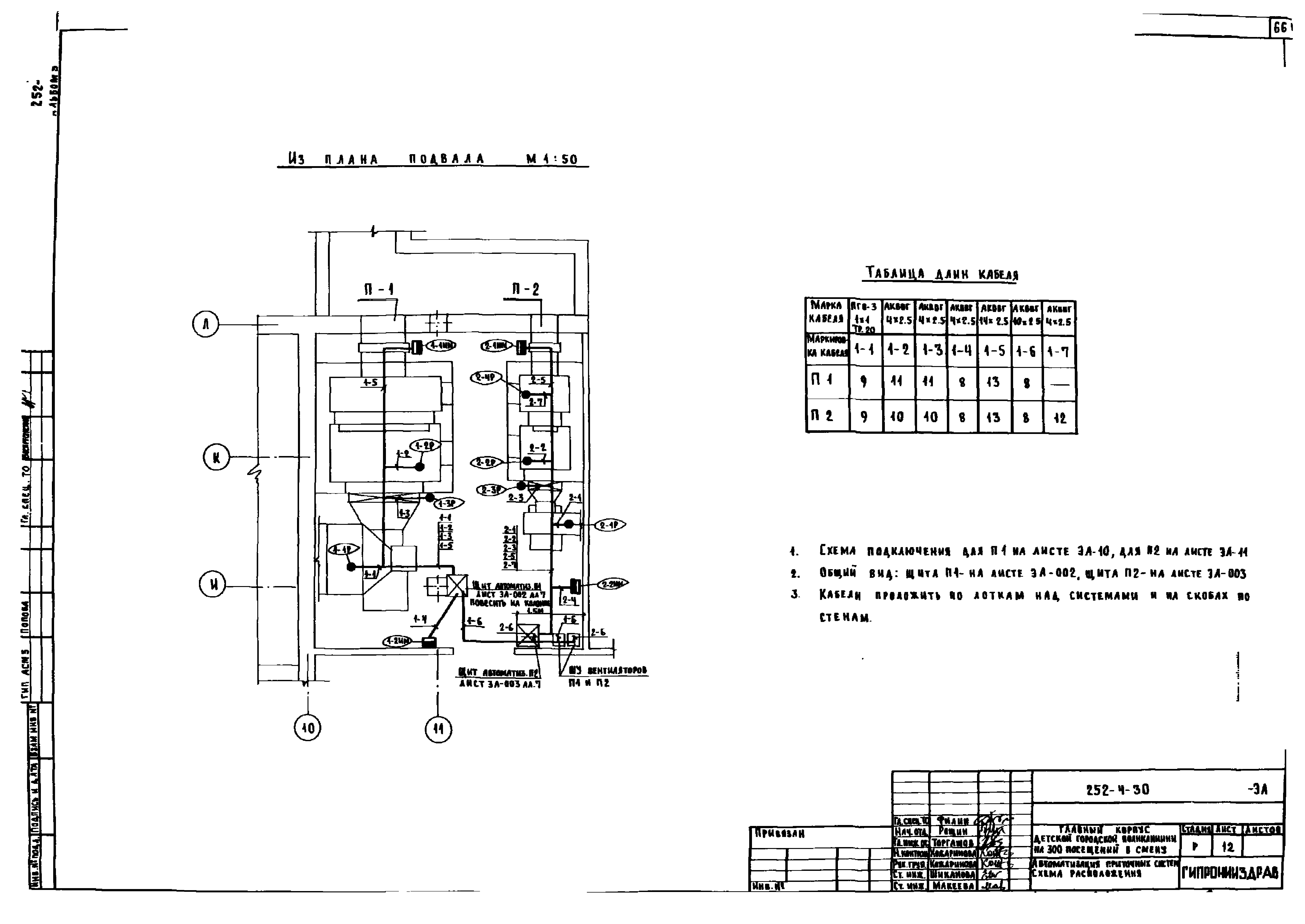
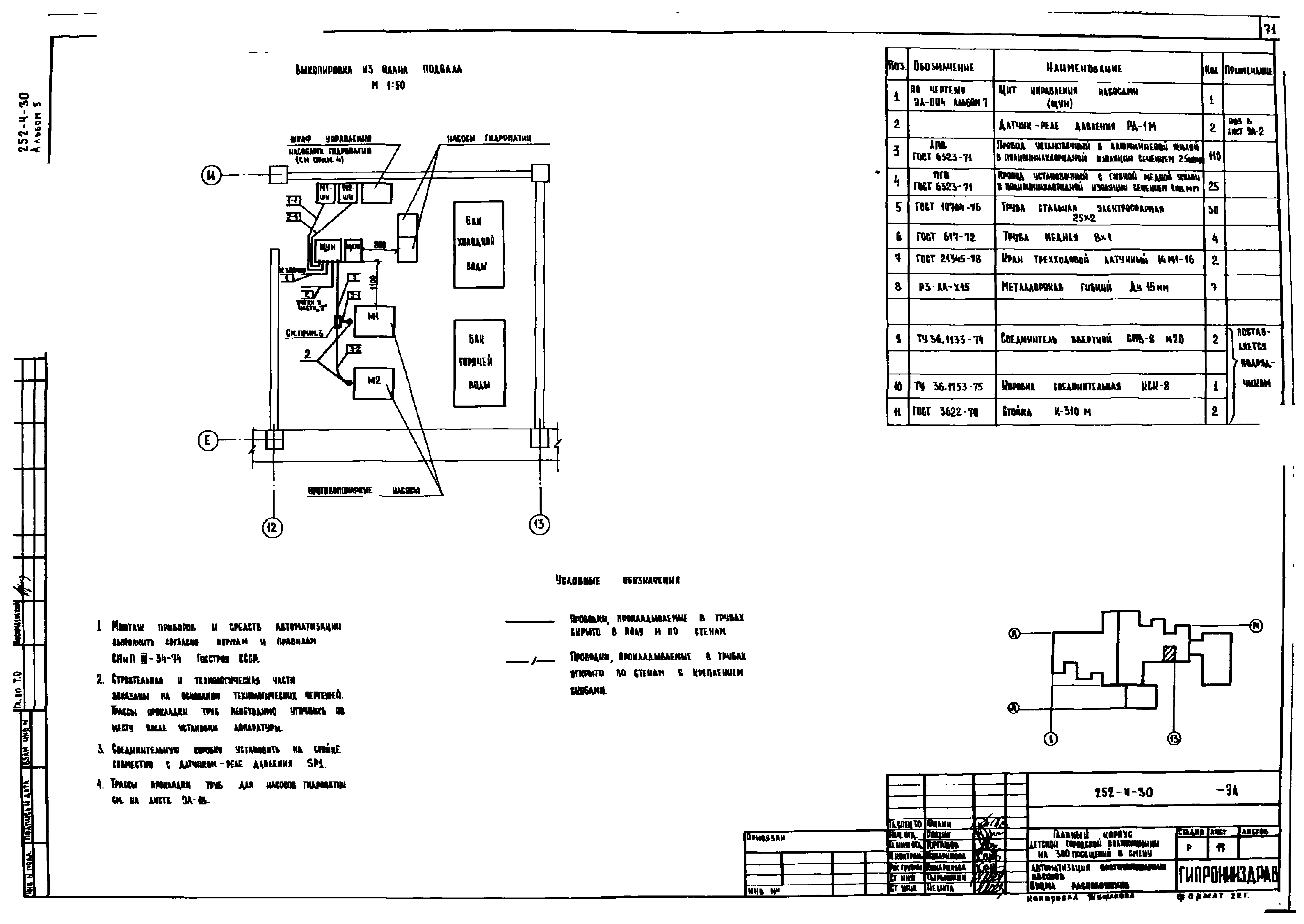
Скачать Типовой проект 252-4-30 Альбом 5. Главный корпус, электротехнические чертежи, электроосвещение, электрооборудование, устройство связи, автоматикаДата актуализации: 10.08.2017 Типовой проект 252-4-30
Альбом 5. Главный корпус, электротехнические чертежи, электроосвещение, электрооборудование, устройство связи, автоматикаОбозначение: | Типовой проект 252-4-30 | Обозначение англ: | 252-4-30 | Статус: | не определен законодательством | Название рус.: | Альбом 5. Главный корпус, электротехнические чертежи, электроосвещение, электрооборудование, устройство связи, автоматика | Дата добавления в базу: | 01.09.2013 | Дата актуализации: | 05.05.2017 | Дата введения: | 31.03.1981 | Разработан: | ГипроНИИздрав Минздрава СССР
| Утверждён: | 14.12.1979 Госгражданстрой (Gosgrazhdanstroy 267)
| Расположен в: |
|
                                                                           
|