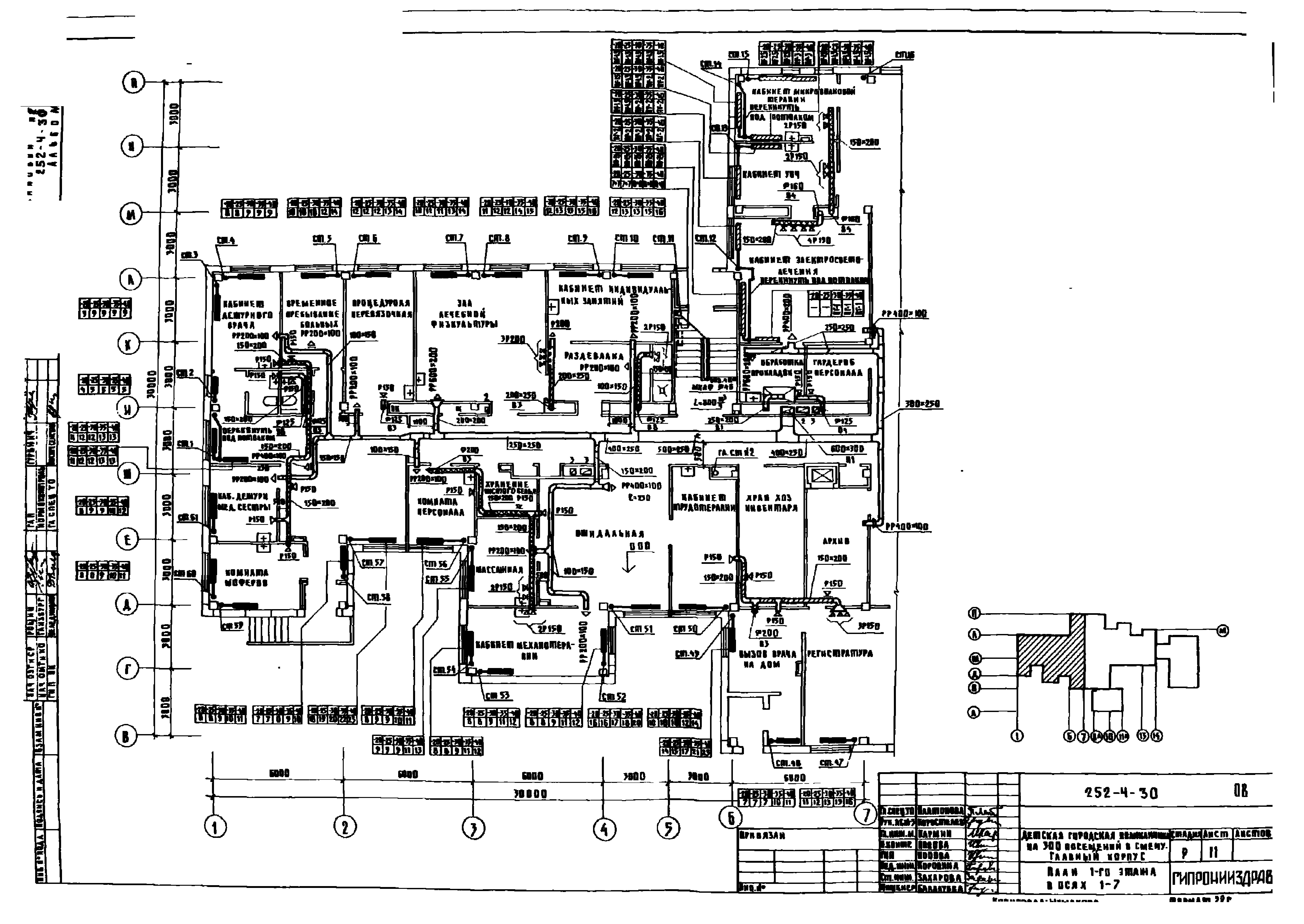
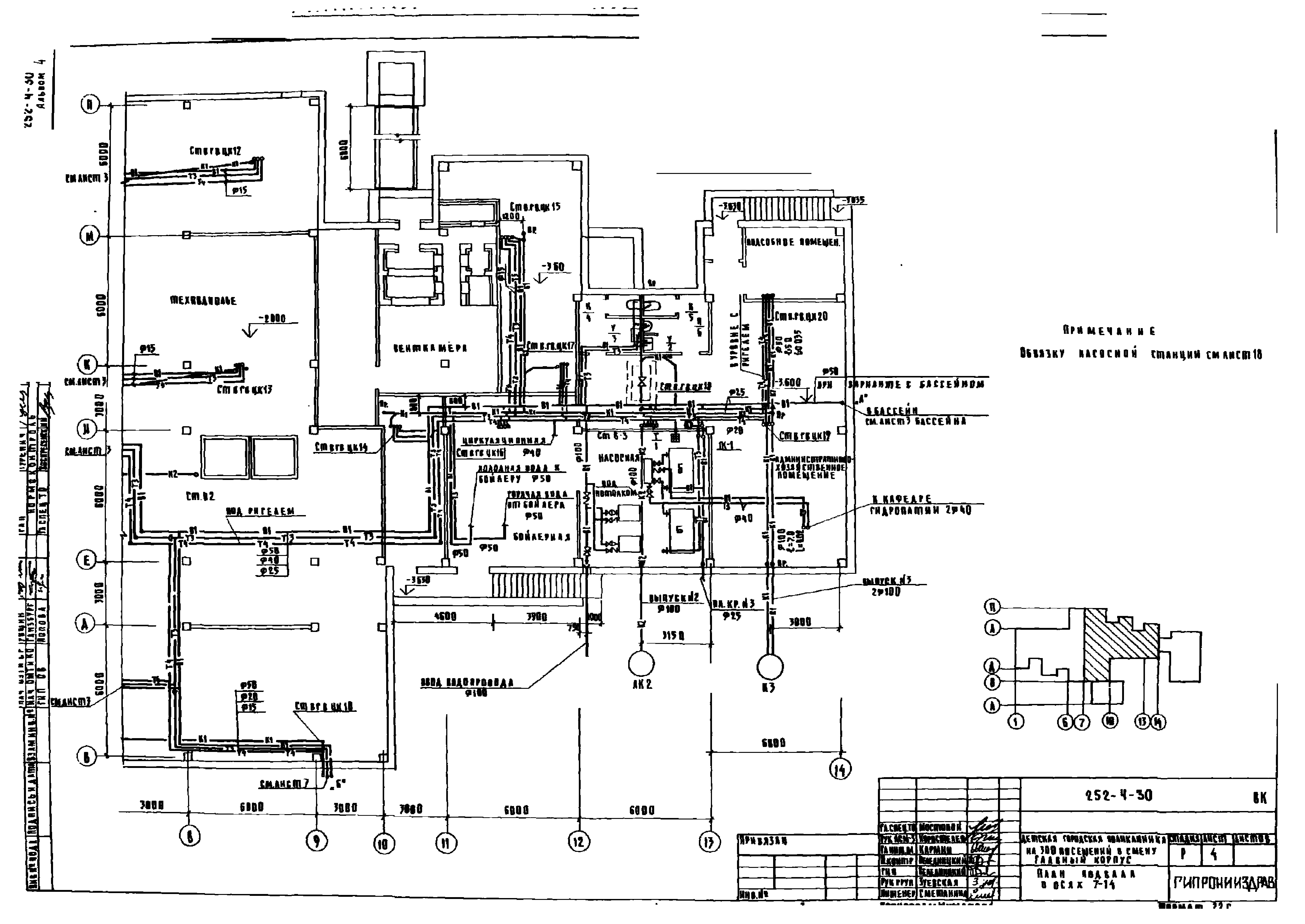
Скачать Типовой проект 252-4-30 Альбом 4. Главный корпус, санитарно-технические чертежи; отопление, вентиляция, водопровод, канализация, теплоснабжениеДата актуализации: 10.08.2017 Типовой проект 252-4-30
Альбом 4. Главный корпус, санитарно-технические чертежи; отопление, вентиляция, водопровод, канализация, теплоснабжениеОбозначение: | Типовой проект 252-4-30 | Обозначение англ: | 252-4-30 | Статус: | не определен законодательством | Название рус.: | Альбом 4. Главный корпус, санитарно-технические чертежи; отопление, вентиляция, водопровод, канализация, теплоснабжение | Дата добавления в базу: | 01.09.2013 | Дата актуализации: | 05.05.2017 | Дата введения: | 31.03.1981 | Разработан: | ГипроНИИздрав Минздрава СССР
| Утверждён: | 14.12.1979 Госгражданстрой (Gosgrazhdanstroy 267)
| Расположен в: |
|
                                                           
|