| ||||||||||||||||||||||||||
Скачать Типовые материалы для проектирования 904-02-25.86 Альбом 4. Схемы управления принципиальные. Низковольтные комплектные устройстваДата актуализации: 10.08.2017
|
| Обозначение: | Типовые материалы для проектирования 904-02-25.86 |
| Обозначение англ: | 904-02-25.86 |
| Статус: | cправочные материалы, мп, тпр |
| Название рус.: | Альбом 4. Схемы управления принципиальные. Низковольтные комплектные устройства |
| Дата добавления в базу: | 01.09.2013 |
| Дата актуализации: | 05.05.2017 |
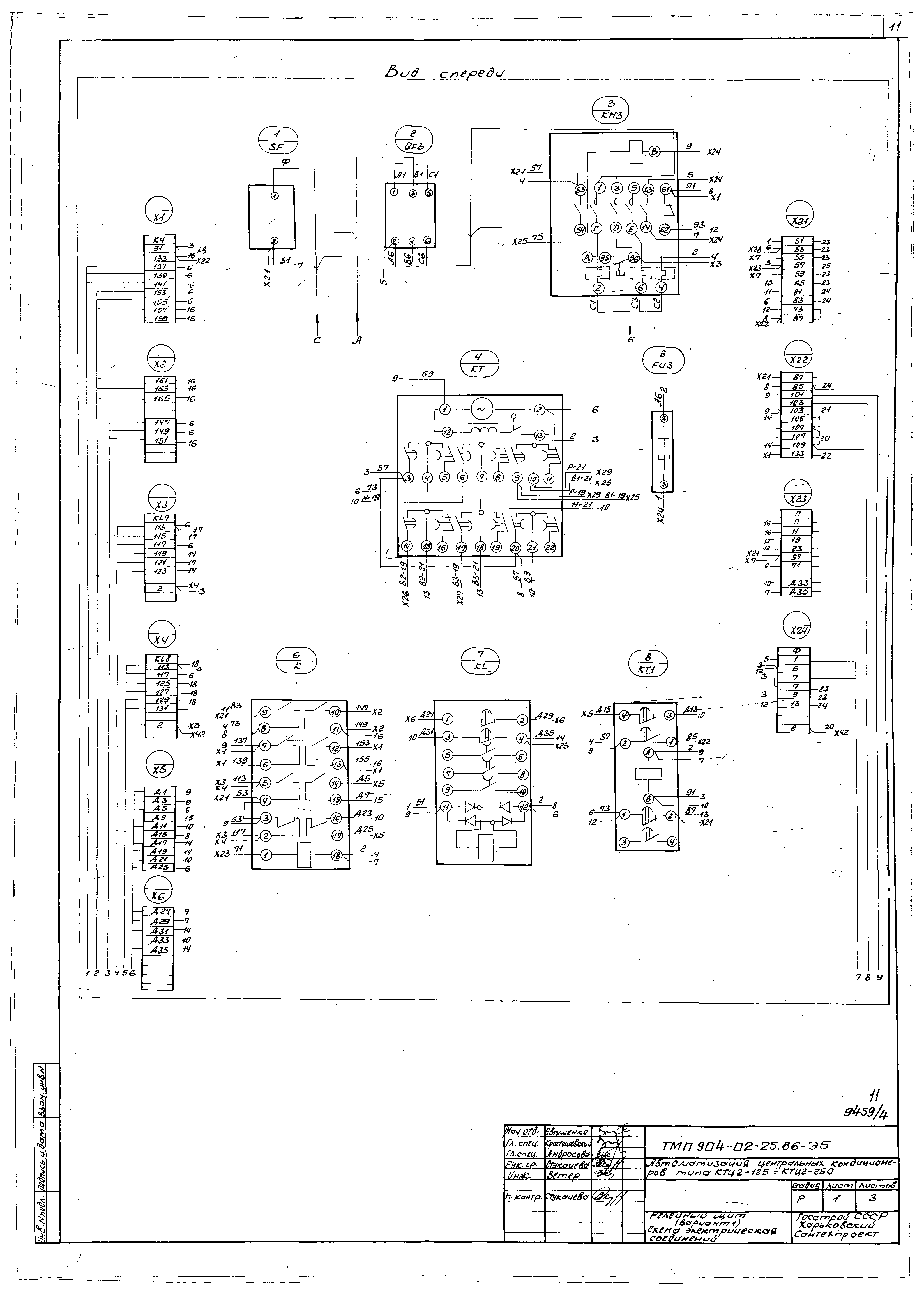
| Оглавление: | Содержание альбома Схема принципиальная унифицированная управления электроприводами Релейный щит (вариант 1). Технические данные аппаратов Релейный щит (вариант 1). Чертеж общего вида Релейный щит (вариант 1). Таблица перечня надписей Релейный щит (вариант 1). Схема электрическая соединений Релейный щит (вариант 2). Технические данные аппаратов Релейный щит (вариант 2). Чертеж общего вида Релейный щит (вариант 2). Таблица перечня надписей Релейный щит (вариант 2). Схема электрическая соединений Панель П1. Технические данные аппаратов Панель П1. Чертеж общего вида Панель П2 (П14). Технические данные аппаратов Панель П2 (П14). Чертеж общего вида Панель П3 (П8, П10). Технические данные аппаратов Панель П3 (П8, П10). Чертеж общего вида Панель П4 (П16). Технические данные аппаратов Панель П4 (П16). Чертеж общего вида Панель П5 (П6, П15). Технические данные аппаратов Панель П5 (П6, П15). Чертеж общего вида Панель П7 (П9). Технические данные аппаратов Панель П7 (П9). Чертеж общего вида Панель П11. Технические данные аппаратов Панель П11. Чертеж общего вида Панель П12. Технические данные аппаратов Панель П12. Чертеж общего вида Панель П13. Технические данные аппаратов Панель П13. Чертеж общего вида Панель П1 (П2). Схема электрическая соединений Панель П3 (П4). Схема электрическая соединений Панель П5 (П6). Схема электрическая соединений Панель П7 (П8). Схема электрическая соединений Панель П9 (П10, П11, П15, П16). Схема электрическая соединений Панель П11. Схема электрическая соединений Панель П12. Схема электрическая соединений Панель П13 (П14). Схема электрическая соединений |
| Разработан: | Харьковский Сантехниипроект |
| Утверждён: | 25.07.1986 Главстройпроект Госстроя СССР (45) |
| Расположен в: | |
| Заменяет собой: |


































