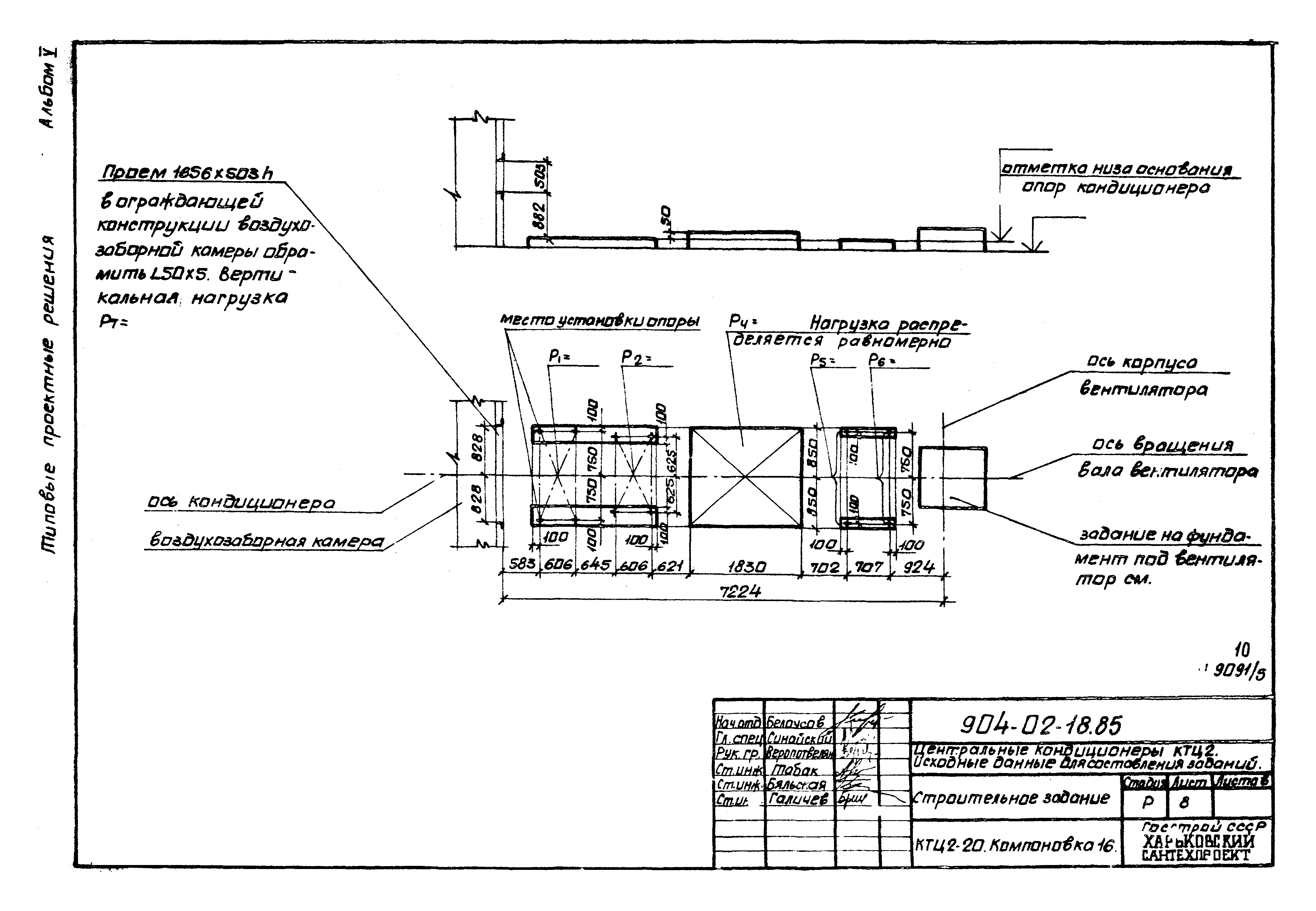
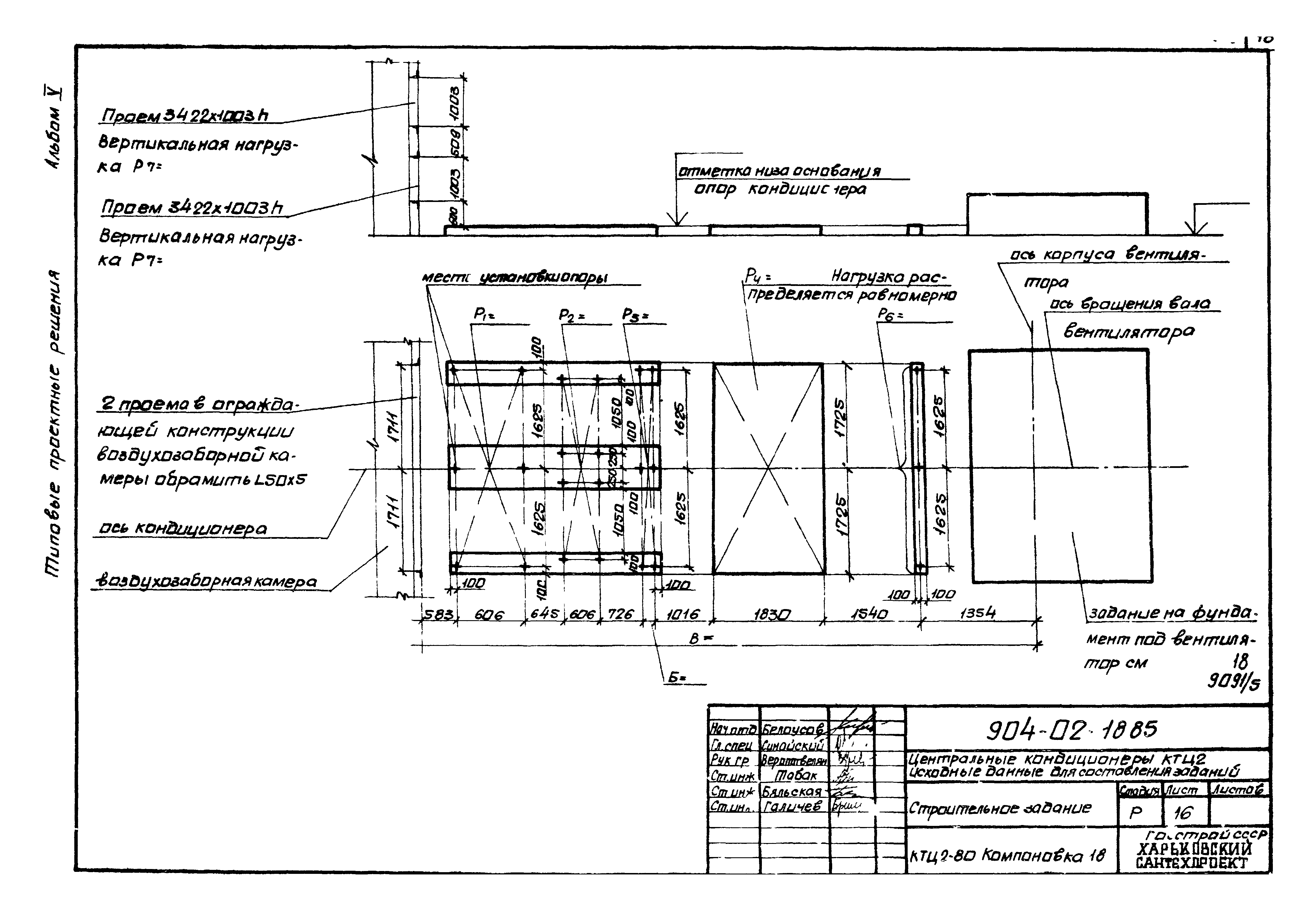
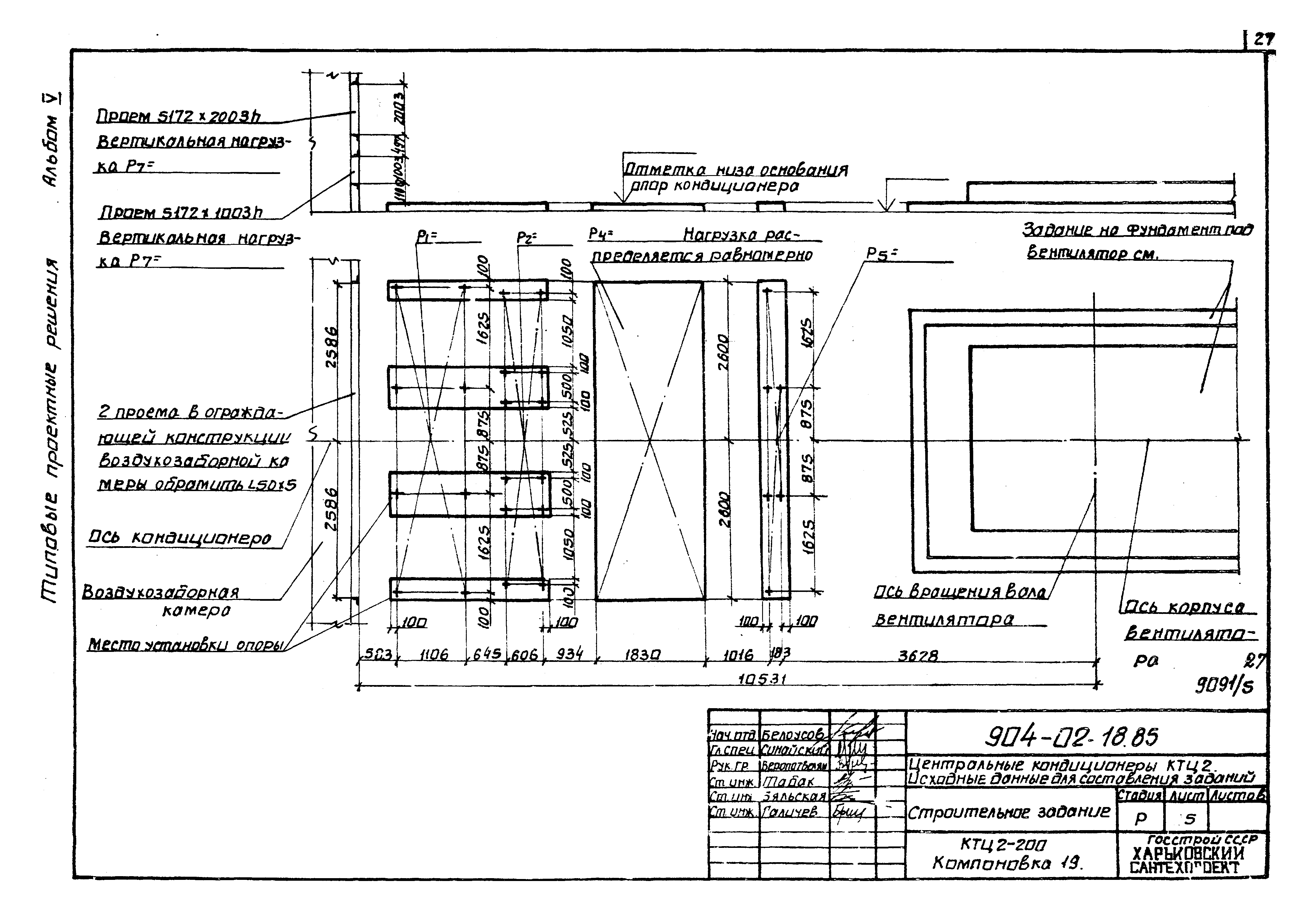
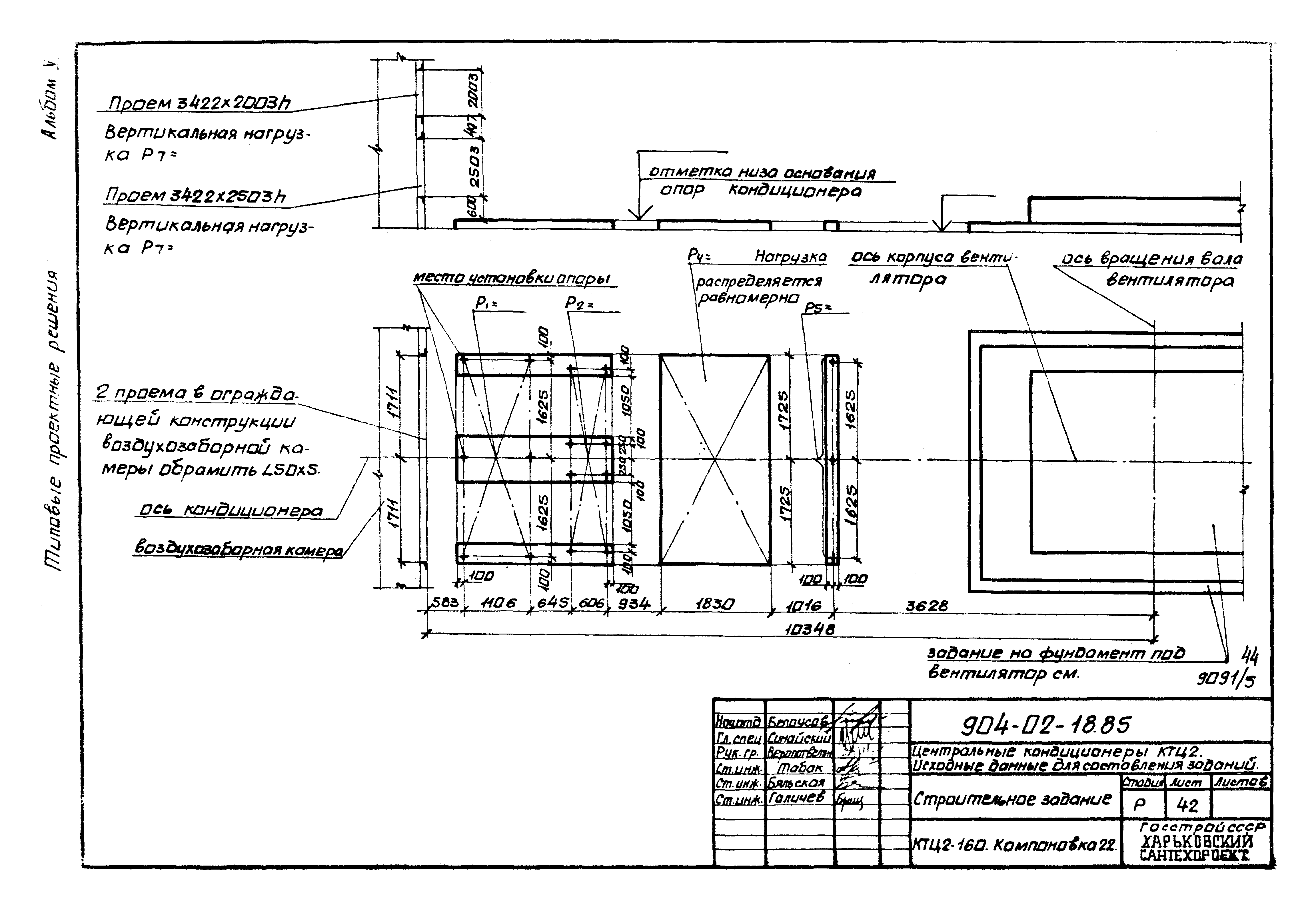
Скачать Типовые проектные решения 904-02-18.85 Альбом V. Строительные задания на секции кондиционеров модификаций базовых схем 5, 6 и базовой схемы 7Дата актуализации: 10.08.2017 Типовые проектные решения 904-02-18.85
Альбом V. Строительные задания на секции кондиционеров модификаций базовых схем 5, 6 и базовой схемы 7| Обозначение: | Типовые проектные решения 904-02-18.85 | | Обозначение англ: | 904-02-18.85 | | Статус: | cправочные материалы, мп, тпр | | Название рус.: | Альбом V. Строительные задания на секции кондиционеров модификаций базовых схем 5, 6 и базовой схемы 7 | | Дата добавления в базу: | 01.09.2013 | | Дата актуализации: | 05.05.2017 | | Разработан: | Харьковский Сантехниипроект
| | Утверждён: | 01.01.1984 Главпромстройпроект Госстроя СССР
| | Расположен в: |
|
                                                                     
|