| ||||||||||||||||||||||
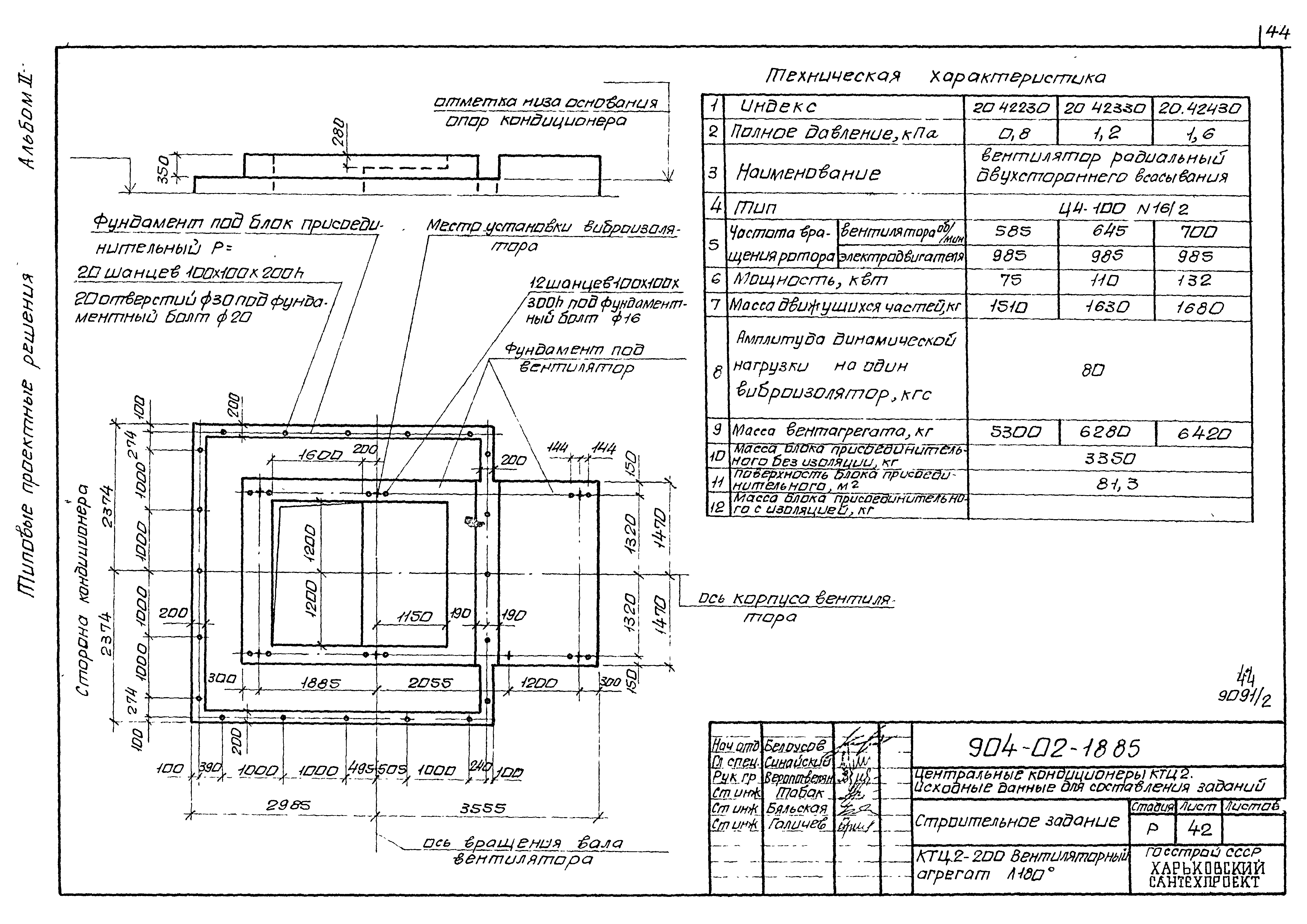
Скачать Типовые проектные решения 904-02-18.85 Альбом II. Строительные задания на вентиляторные агрегаты и насосы к БТМДата актуализации: 10.08.2017
|
| Обозначение: | Типовые проектные решения 904-02-18.85 |
| Обозначение англ: | 904-02-18.85 |
| Статус: | cправочные материалы, мп, тпр |
| Название рус.: | Альбом II. Строительные задания на вентиляторные агрегаты и насосы к БТМ |
| Дата добавления в базу: | 01.09.2013 |
| Дата актуализации: | 05.05.2017 |
| Разработан: | Харьковский Сантехниипроект |
| Утверждён: | 01.01.1984 Главпромстройпроект Госстроя СССР |
| Расположен в: |

















































