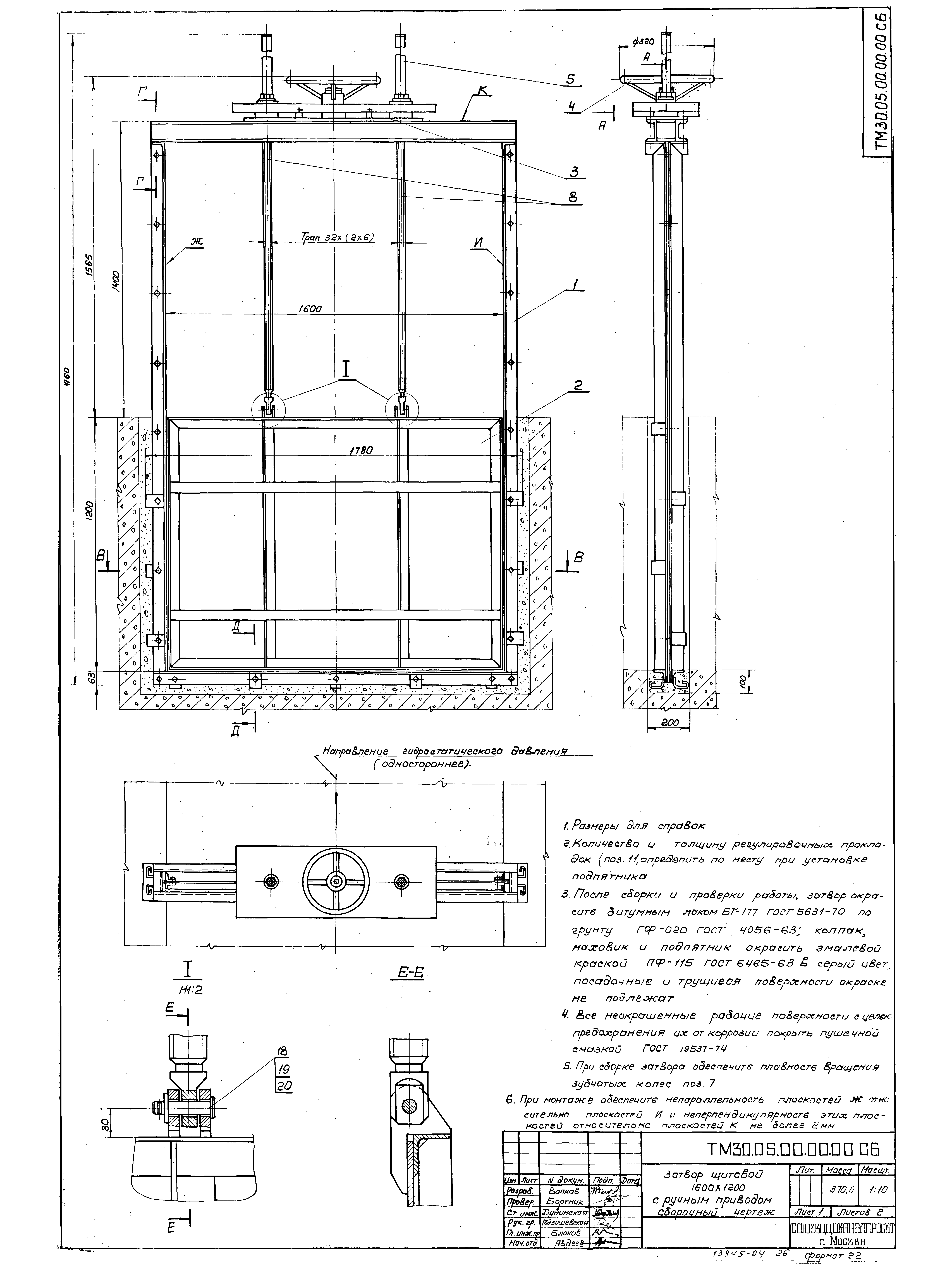
Скачать Типовой проект 902-2-264 Альбом IV. Нестандартизированное оборудованиеДата актуализации: 10.08.2017 Типовой проект 902-2-264
Альбом IV. Нестандартизированное оборудованиеОбозначение: | Типовой проект 902-2-264 | Обозначение англ: | 902-2-264 | Статус: | действует | Название рус.: | Альбом IV. Нестандартизированное оборудование | Дата добавления в базу: | 01.09.2013 | Дата актуализации: | 05.05.2017 | Дата введения: | 20.02.1975 | Разработан: | Союзводоканалниипроект
| Утверждён: | 09.12.1975 Главпромстройпроект Госстроя СССР
| Расположен в: |
|
                                   
|