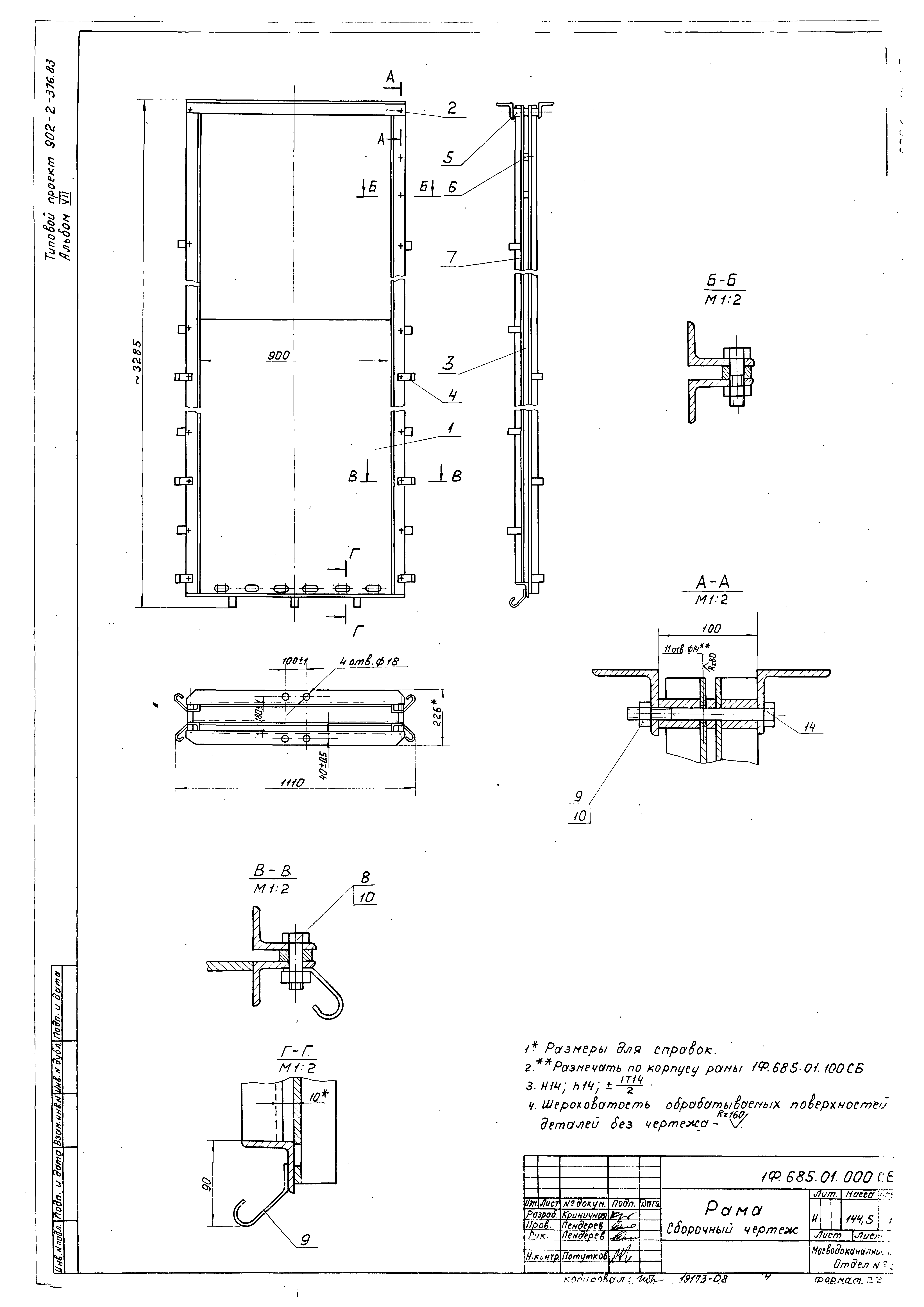
Скачать Типовой проект 902-2-376.83 Альбом VII. Нестандартизированное оборудование. Затворы щитовые, установка сигнализатора осадка и фасонные частиДата актуализации: 10.08.2017 Типовой проект 902-2-376.83
Альбом VII. Нестандартизированное оборудование. Затворы щитовые, установка сигнализатора осадка и фасонные частиОбозначение: | Типовой проект 902-2-376.83 | Обозначение англ: | 902-2-376.83 | Статус: | не действует | Название рус.: | Альбом VII. Нестандартизированное оборудование. Затворы щитовые, установка сигнализатора осадка и фасонные части | Дата добавления в базу: | 01.09.2013 | Дата актуализации: | 05.05.2017 | Разработан: | МосводоканалНИИпроект
| Утверждён: | 27.07.1983 МосводоканалНИИпроект (168)
| Расположен в: |
|
                             
|