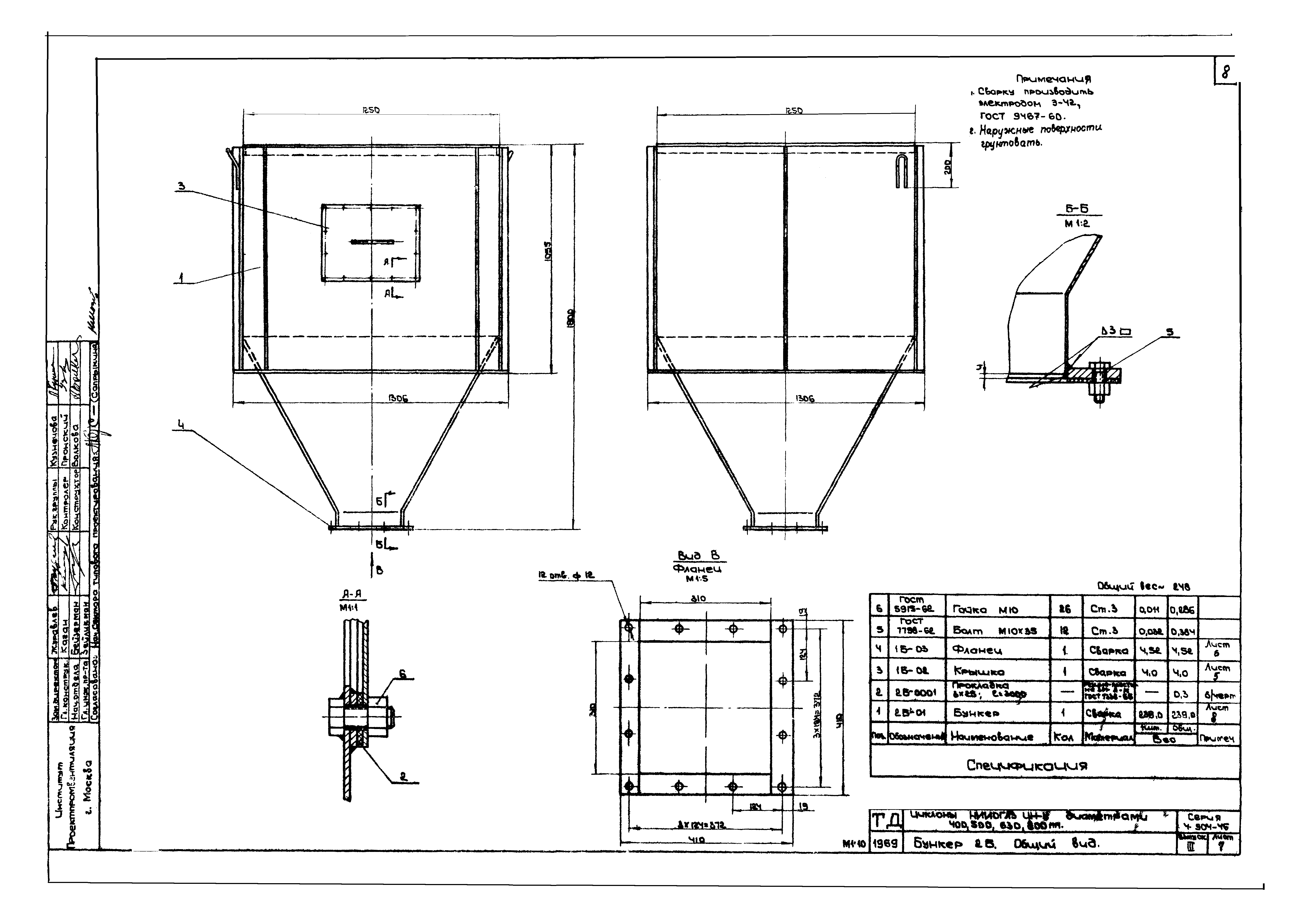
Скачать Серия 4.904-46 Выпуск III. Бункеры и затворы. Рабочие чертежиДата актуализации: 10.08.2017 Серия 4.904-46
Выпуск III. Бункеры и затворы. Рабочие чертежи| Обозначение: | Серия 4.904-46 | | Обозначение англ: | Series 4.904-46 | | Статус: | не действует | | Название рус.: | Выпуск III. Бункеры и затворы. Рабочие чертежи | | Дата добавления в базу: | 01.09.2013 | | Дата актуализации: | 05.05.2017 | | Дата окончания срока действия: | 01.05.1986 | | Разработан: | Проектпромвентиляция
| | Утверждён: | 12.03.1989 Главпромстройпроект Госстроя СССР (2)
| | Расположен в: |
| | Чем заменён: | |
                                      
|