Скачать Типовой проект 503-312 Альбом III. Архитектурно-строительные решения. Силовое электрооборудование и электроосвещение. КИП и автоматикаДата актуализации: 10.08.2017 Типовой проект 503-312
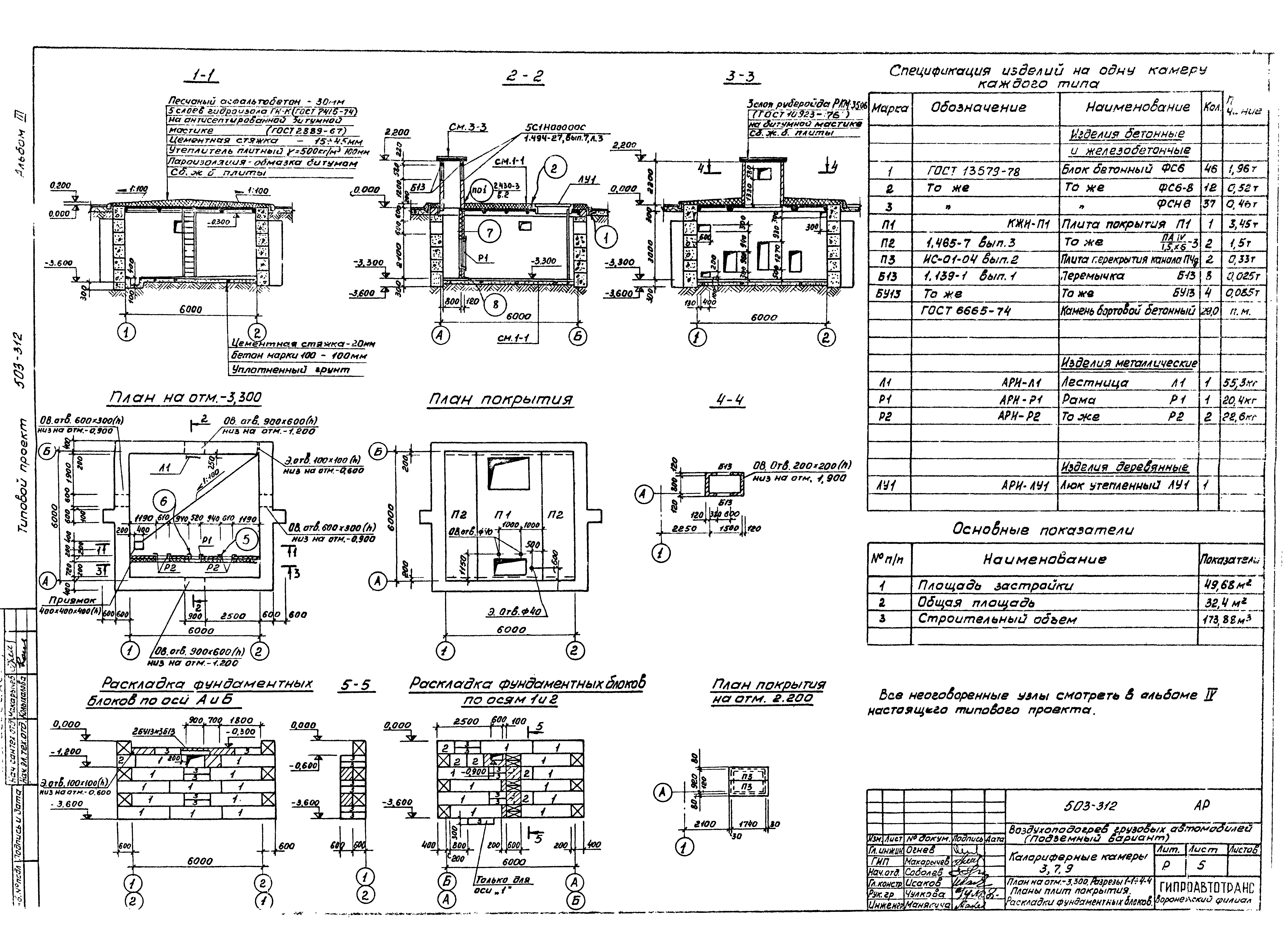
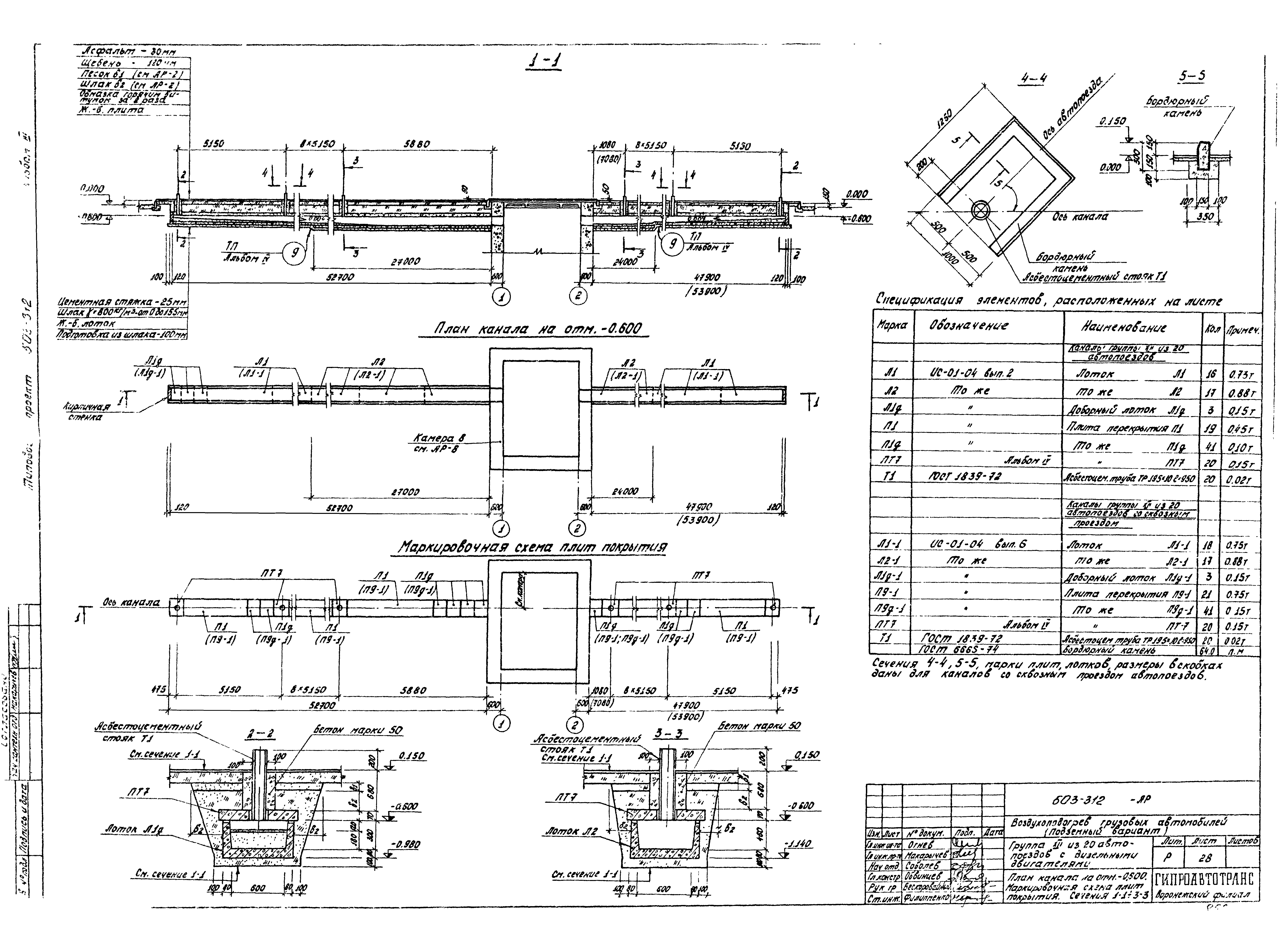
Альбом III. Архитектурно-строительные решения. Силовое электрооборудование и электроосвещение. КИП и автоматикаОбозначение: | Типовой проект 503-312 | Обозначение англ: | 503-312 | Статус: | действует | Название рус.: | Альбом III. Архитектурно-строительные решения. Силовое электрооборудование и электроосвещение. КИП и автоматика | Дата добавления в базу: | 01.09.2013 | Дата актуализации: | 05.05.2017 | Дата введения: | 30.04.1979 | Разработан: | Воронежский филиал Гипроавтотранс
| Утверждён: | 21.06.1978 Минавтотранс РСФСР (Russian Federation Minavtotrans 40)
| Расположен в: |
|
                                                                
|