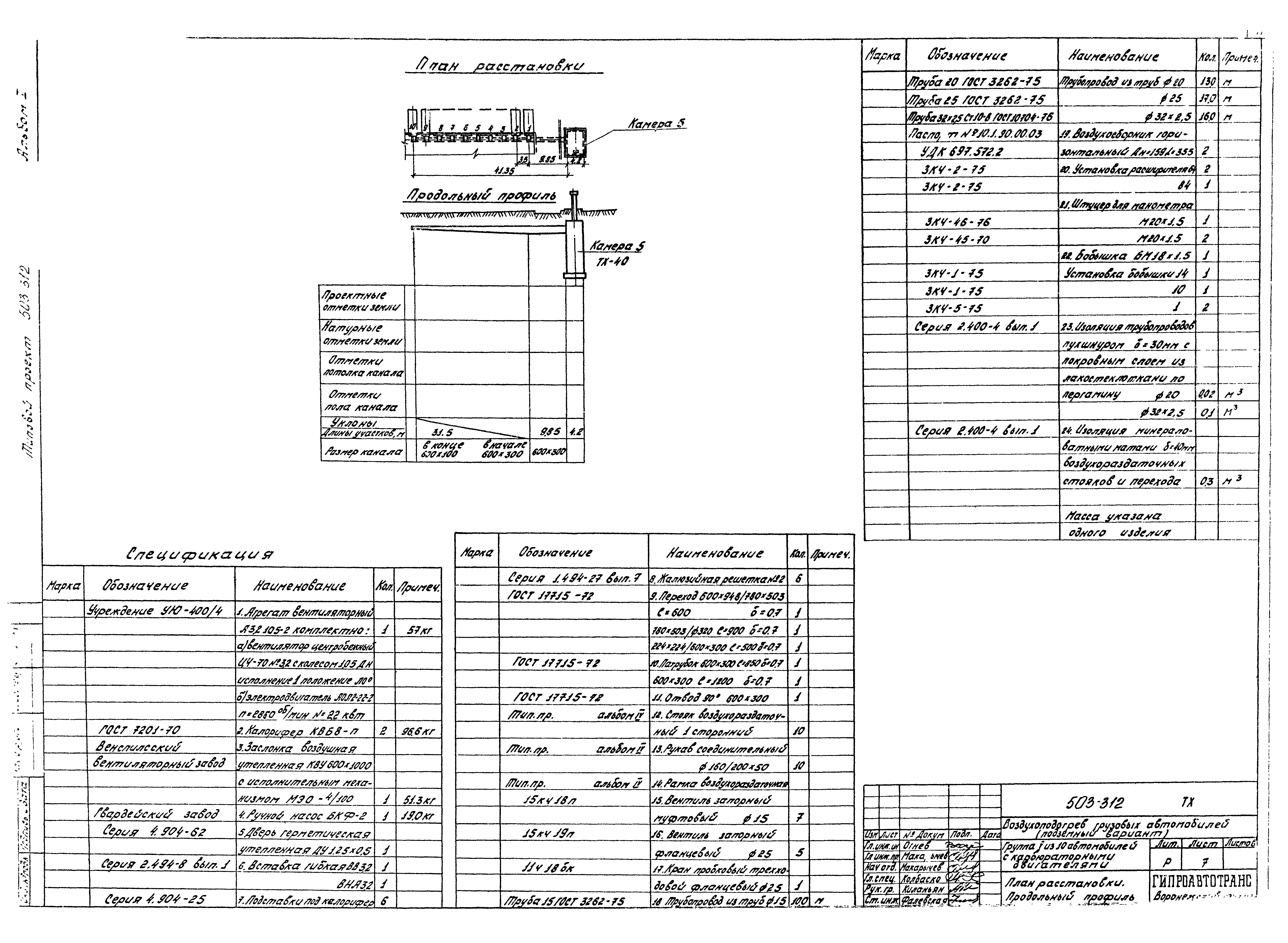
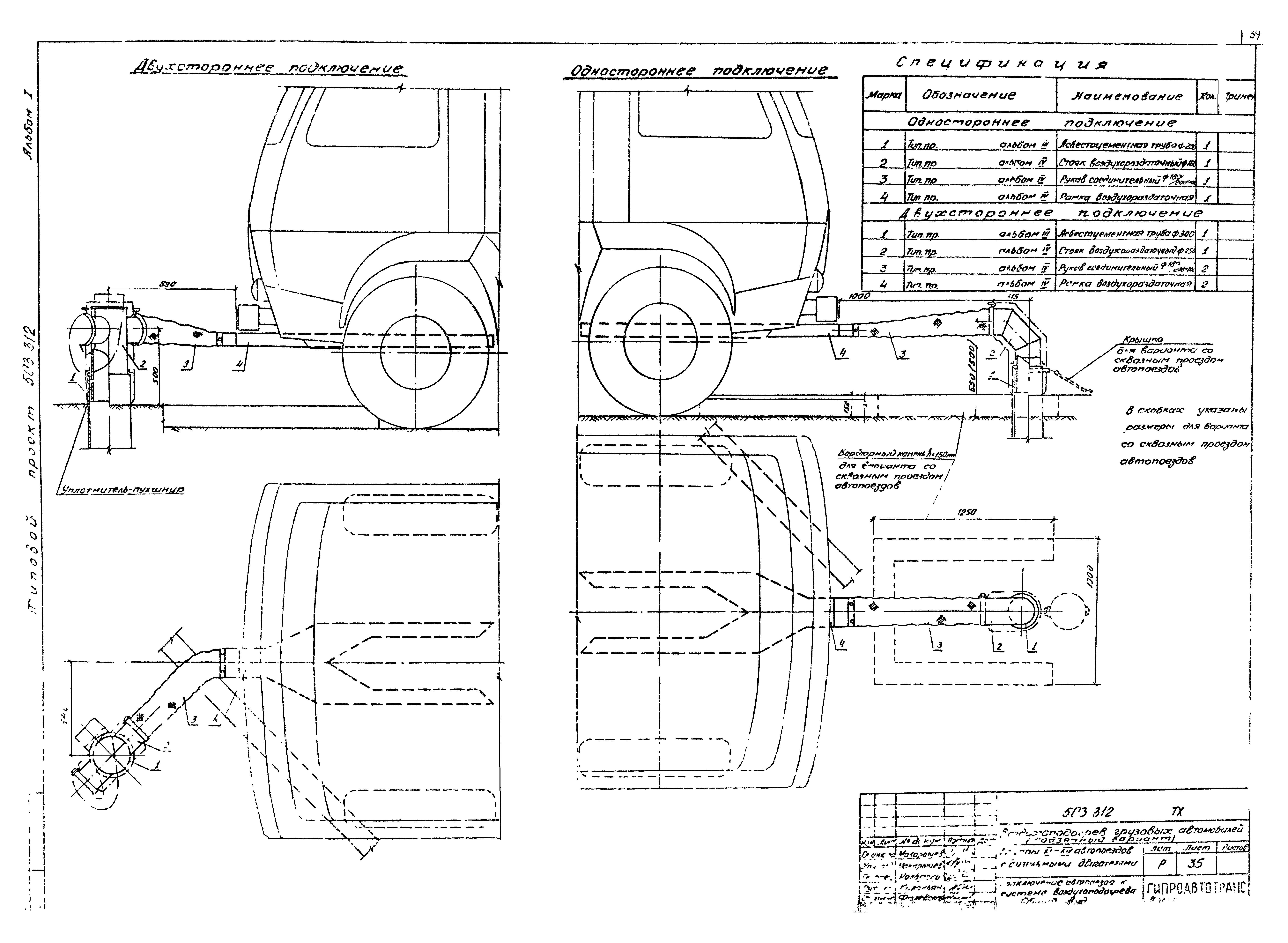
Скачать Типовой проект 503-312 Альбом I. Общая пояснительная записка. Технологические чертежиДата актуализации: 10.08.2017 Типовой проект 503-312
Альбом I. Общая пояснительная записка. Технологические чертежиОбозначение: | Типовой проект 503-312 | Обозначение англ: | 503-312 | Статус: | действует | Название рус.: | Альбом I. Общая пояснительная записка. Технологические чертежи | Дата добавления в базу: | 01.09.2013 | Дата актуализации: | 05.05.2017 | Разработан: | Воронежский филиал Гипроавтотранс
| Утверждён: | 21.06.1978 Минавтотранс РСФСР (Russian Federation Minavtotrans 40)
| Расположен в: |
|
                                                          
|