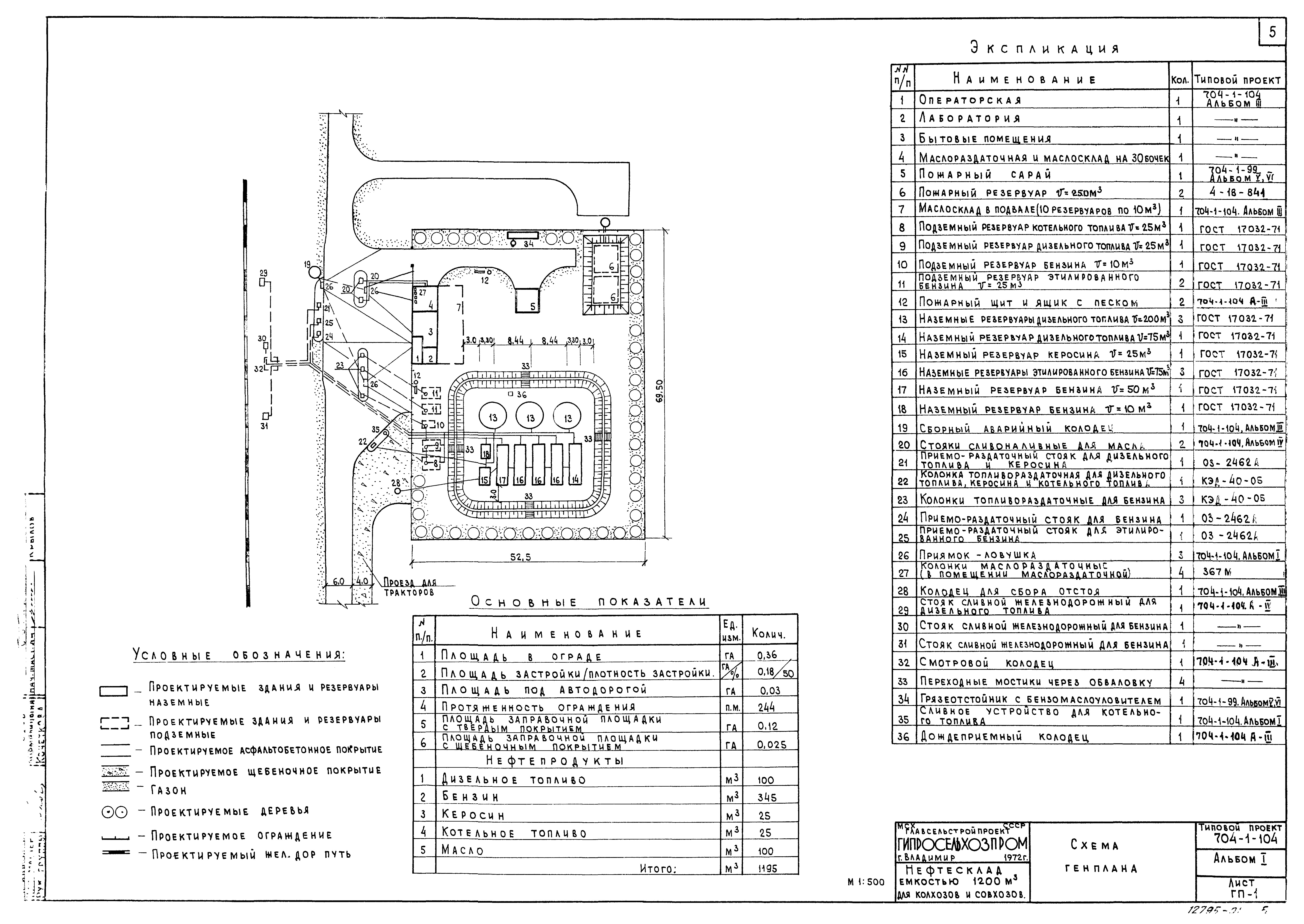
Скачать Типовой проект 704-1-104 Альбом I. Общеплощадочные материалы, раздаточные резервуары. Пояснительная записка и чертежиДата актуализации: 10.08.2017 Типовой проект 704-1-104
Альбом I. Общеплощадочные материалы, раздаточные резервуары. Пояснительная записка и чертежиОбозначение: | Типовой проект 704-1-104 | Обозначение англ: | 704-1-104 | Статус: | действует | Название рус.: | Альбом I. Общеплощадочные материалы, раздаточные резервуары. Пояснительная записка и чертежи | Дата добавления в базу: | 01.09.2013 | Дата актуализации: | 05.05.2017 | Дата введения: | 05.08.1974 | Разработан: | Гипросельхозпром
| Утверждён: | 21.05.1973 Минсельхоз СССР (USSR Minselkhoz 24)
| Расположен в: |
|
           
|